アプリで簡単 物件探し 通知 共有 アプリならではの機能を使ってみる
賃貸アパート

ソラーナ横川 横川駅 2LDK 賃貸(賃貸マンション・アパート)

情報提供元
SUUMO
ソラーナ横川
賃料 16.7万円  (管理費等:3000円)
礼金・敷金 16.7万円 / 33.4万円 保証金/敷引・償却 なし / -
交通
所在地 広島県広島市西区横川町2周辺地図
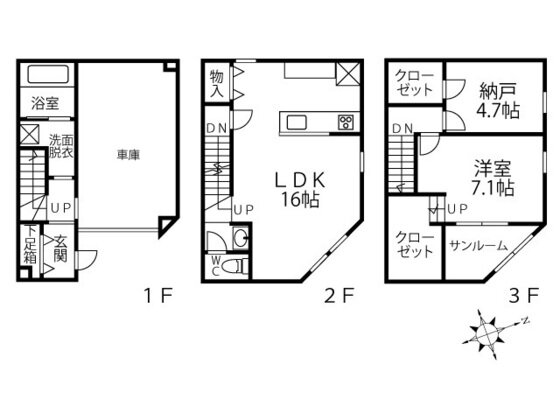
間取り 2LDK 専有面積 99.66m2
築年月 2021年12月 築年数 築4年1ヶ月
おすすめポイント
中四国管理戸数No.1☆の【良和ハウス】LINEで接客もOK ◆JR「横川駅」徒歩圏内の好立地♪◆1階に電動シャッター付ビルトインガレージあり♪◆嬉しいエアコン2台付き♪◆16帖の広々としたリビングで家族団欒の時間をお過ごしいただけます◆詳細は良和ハウスまで★★
お問い合わせ先
(株)良和ハウス広島十日市店
お問い合わせ先
(株)良和ハウス広島十日市店

詳細情報

賃料 16.7万円 管理費等 3000円
敷金 33.4万円 礼金 16.7万円
保証金 なし 敷引・償却 -
更新料 - 契約期間
カード決済 初期費用カード決済可
所在地 広島県広島市西区横川町2周辺地図
交通
建物名 ソラーナ横川 
間取り 2LDK(洋7.1 洋4.7 LDK16) 築年月(築年数) 2021年12月(築4年1ヶ月)
専有面積 99.66㎡ 所在階/階数 1階/3階建
建物構造 木造  方位  
現況   駐車場 有 無料
入居可能時期 相談 住宅保険 あり 2年 28000円
情報提供元 SUUMO[080H100460788960] 情報公開日
情報更新日 次回更新予定日 随時

設備など

2階以上 - 最上階 - 角部屋
駐車場(近隣含) エアコン付き バス・トイレ別
室内洗濯機置き場 追焚機能 オートロック付き -
モニタ付インターホン - フローリング - バルコニー -
ガスコンロ可 - 浴室乾燥機 - 24時間セキュリティ -
宅配ボックス - ペット相談可 - 二人入居可 -
設備 冷房・暖房・エアコン・バス・トイレ別・トイレ・収納スペース・洗濯機置場・洗面所・CATV・追焚機能・ウォークインクローゼット・温水洗浄便座・カウンターキッチン・風呂・対面K・クローゼット・プロパンガス・IHクッキングヒータ・浴トイレ別・車庫・洗面所独立・シューズボックス・室内洗濯機置き場 
リフォーム履歴 -
リノベーション履歴 -
備考 保証会社利用必:要確認/◆入居サポート:1,100円/月/バストイレ別/エアコン/クロゼット/室内洗濯置/シューズボックス/追焚機能浴室/角住戸/温水洗浄便座/脱衣所/洗面所独立/CATV/2面採光/対面式キッチン/IHクッキングヒーター/駐車場1台無料/全居室洋室/ウォークインクロゼット/単身者相談/二人入居相談/エアコン2台/LDK15畳以上/クロゼット2ヶ所/サンルーム/シャッター車庫/2駅利用可/3沿線以上利用可/駅徒歩5分以内/駅徒歩10分以内/上階無し/専有面積30坪以上/築5年以内/電動シャッター車庫/平面駐車場/プロパンガス/初期費用カード決済可/通風良好/そごう広島店(ショッピングセンター)まで1965m/フレスタ横川本店(スーパー)まで490m/ファミリーマート横川町三丁目店(コンビニ)まで237m/ウォンツ横川店(ドラッグストア)まで377m/広島市立三篠小学校(小学校)まで811m/医療法人社団公仁会槇殿順記念病院(病院)まで594m 
特記事項 角部屋・初期費用カード決済可

省エネ性能

エネルギー消費性能 -
断熱性能 -
目安光熱費 -

広島県広島市西区横川町2 周辺地図情報

地図
※地図上に表示される物件の位置は付近住所に所在することを表すものであり、実際の物件所在地とは異なる場合がございます。
   正確な物件所在地は、取扱い不動産会社にお問い合わせください。
お問い合わせ先
(株)良和ハウス広島十日市店

不動産会社情報

お問い合わせ先 商号:(株)良和ハウス広島十日市店
免許番号:国土交通大臣(2)第9113号
所在地:広島県広島市中区十日市町1-4-28
TEL:082-553-9845
取引態様:仲介
管理コード:
所属協会など: 中国地区不動産公正取引協議会加盟、(公社)広島県宅地建物取引業協会会員
共有する
QRコード
お問い合わせ先
(株)良和ハウス広島十日市店

    広島市西区の暮らしデータ

    人口などの統計情報

    世帯数 554462世帯
    人口総数 1178773人
    転入者数 61028人
    転入率(人口1000人当たり)
    51.77人
    転出者数 62233人
    転出率(人口1000人当たり)
    52.79人
    土地平均価格
    住宅地
    115999円/m2
    商業地
    556537円/m2

    結婚・育児の助成金

    子育て関連の独自の取り組み 地域の身近な場所でおむつ替え・授乳等が出来る赤ちゃん安心おでかけ事業「にこにこベビールーム」を実施。
    出産祝い なし
    公立保育所数 87所(うち0歳児保育を実施している保育所:69所)
    私立保育所数 95所(うち0歳児保育を実施している保育所:94所)
    保育所入所待機児童数 0人
    認定こども園数 70園 預かり保育実施園数 公立:- 私立:50園
    学校給食 【小学校】完全給食【中学校】完全給食 家庭弁当等との選択制/デリバリー形式[運搬:ランチボックス、内容:完全給食]
    公立中学校の学校選択制 一部実施
    子ども・学生等医療費助成<通院>対象年齢 小学校卒業まで 子ども・学生等医療費助成<入院>対象年齢 中学校卒業まで

    広島市西区の治安・ごみ収集情報

    公共料金・インフラ

    ガス料金(22m3使用した場合の月額) 広島ガス株式会社5505円
    水道料金(口径20mmで20m3の月額) 広島市2453円
    下水道料金(20m3を使用した場合の月額) 広島市2260円
    下水道普及率 96.5%

    安心・安全

    建物火災出火件数 147件
    人口10000人当たり
    1.22件
    刑法犯認知件数 7080件
    人口1000人当たり
    5.90件
    ハザード・防災マップ あり

    医療

    一般病院総数 73ヶ所
    一般診療所総数 1206ヶ所
    小児科医師数 261人
    小児人口10000人当たり
    17.38人
    産婦人科医師数 126人
    15~49歳女性人口1万人当たり
    5.32人
    介護保険料基準額(月額) 6400円

    ごみ

    家庭ごみ収集(可燃ごみ) 無料
    備考
    -
    家庭ごみの分別方式 7分別12種〔可燃ごみ ペットボトル リサイクルプラ その他プラ 不燃ごみ(ライター、陶磁器・その他不燃ごみ) 資源ごみ(紙類[新聞紙、ダンボール、雑誌・チラシ・菓子箱等]、ガラス類、金属類、布類) 有害ごみ〕
    家庭ごみの戸別収集 未実施
    粗大ごみ収集 あり
    備考
    有料。事前申込制。大型ごみ受付センターへの予約が必要。納付券を貼り付けたものを収集。大型ごみあんしんサポート(住宅内からの搬出を支援)あり。
    生ごみ処理機助成金制度 なし
    上限金額
    -
    上限比率
    -
    暮らしデータ提供元:生活ガイド.com
    ※行政機関により公表していない地域及びデータがございます。東京23区以外の政令指定都市は、市全体のデータとして表示しています。
    ※提供データには細心の注意を払っておりますが、調査後に変更がある場合があります。 最新の情報につきましては各市区役所までお問い合わせいただくか、自治体HPなどをご確認ください。
    OCN×ドコモ光新規お申込みで合計最大137,280円相当おトク!特典の内訳・適用条件など詳細はこちら

    広島市西区内の各駅の住みやすさ

    他のエリアから探す

    広島市西区の詳細地域から賃貸物件を探す

    井口井口鈴が台井口台井口明神打越町大芝大宮小河内町上天満町観音新町観音本町観音町草津梅が台草津新町草津浜町草津東草津本町草津南楠木町己斐上己斐大迫己斐中己斐西町己斐東己斐本町庚午北庚午中庚午南新庄町鈴が峰町高須高須台田方天満町中広町西観音町東観音町福島町古江上古江新町古江西町古江東町三篠北町三篠町三滝本町三滝町南観音南観音町都町山田町山手町横川新町横川町竜王町

    近辺の市区から探す

    広島市中区広島市東区広島市南区広島市安佐南区広島市安芸区広島市佐伯区廿日市市安芸郡府中町安芸郡海田町安芸郡坂町

    周辺の駅から探す

    山陽本線
    向洋天神川広島新白島横川西広島新井口五日市廿日市
    可部線
    広島新白島横川三滝安芸長束下祇園古市橋
    広島電鉄横川線
    横川駅横川一丁目別院前寺町十日市町

    広島県広島市西区で他のジャンルから探す


    掲載情報の著作権は提供元企業等に帰属します。
    Copyright:(C) 2025 Recruit Co., Ltd.
    アプリで簡単 物件探し 大手不動産サイトの情報から一括検!プッシュ通知で物件を見逃さない
    App Storeからダウンロード Google Playで手に入れよう QRコード