アプリで簡単 物件探し 通知 共有 アプリならではの機能を使ってみる
賃貸アパート

オオギハウス 青木駅 2DK 賃貸(賃貸マンション・アパート)

情報提供元
SUUMO
オオギハウス
賃料 9.5万円  (管理費等:3000円)
礼金・敷金 20万円 / なし 保証金/敷引・償却 なし / -
交通
所在地 兵庫県神戸市東灘区青木5周辺地図
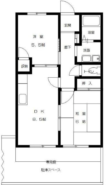
間取り 2DK 専有面積 46.88m2
築年月 1996年9月 築年数 築29年4ヶ月
おすすめポイント
駐車場付◆独立洗面台◆室内洗濯機置場 ピタットハウスではインターネット掲載物件は他社掲載分を含めエリアなど問わずご紹介できます!何社も回る手間なくお部屋探しが可能です。現地待ち合わせも可能!
お問い合わせ先
ピタットハウス三宮店(株)ライブデザイン
お問い合わせ先
ピタットハウス三宮店(株)ライブデザイン

詳細情報

賃料 9.5万円 管理費等 3000円
敷金 なし 礼金 20万円
保証金 なし 敷引・償却 -
更新料 - 契約期間
カード決済 初期費用カード決済可
所在地 兵庫県神戸市東灘区青木5周辺地図
交通
建物名 オオギハウス 
間取り 2DK(和6 洋5.5 DK8.5) 築年月(築年数) 1996年9月(築29年4ヶ月)
専有面積 46.88㎡ 所在階/階数 1階/2階建
建物構造 軽量鉄骨  方位  
現況   駐車場 有 無料
入居可能時期 即時 住宅保険 なし
情報提供元 SUUMO[060H100475659287] 情報公開日
情報更新日 次回更新予定日 随時

設備など

2階以上 - 最上階 - 角部屋
駐車場(近隣含) エアコン付き - バス・トイレ別
室内洗濯機置き場 追焚機能 - オートロック付き -
モニタ付インターホン - フローリング バルコニー -
ガスコンロ可 - 浴室乾燥機 - 24時間セキュリティ -
宅配ボックス - ペット相談可 - 二人入居可
設備 バス・トイレ別・トイレ・収納スペース・洗濯機置場・洗面所・CATV・BS端子・フローリング・シャンプードレッサ・駐輪場・クローゼット・専用庭・CS・浴トイレ別・洗面所独立・バイク置き場・コンロ2口以上・シューズボックス・インターネット対応・室内洗濯機置き場 
リフォーム履歴 -
リノベーション履歴 -
備考 保証会社利用可:貸主指定/普通借家02年/二人入居可/バストイレ別/クロゼット/フローリング/シャワー付洗面台/室内洗濯置/陽当り良好/シューズボックス/角住戸/脱衣所/洗面所独立/洗面化粧台/2口コンロ/駐輪場/押入/CATV/光ファイバー/即入居可/閑静な住宅地/BS・CS/敷金不要/CATVインターネット/バイク置場/2沿線利用可/専用庭/ネット専用回線/平坦地/一部フローリング/3駅以上利用可/駅徒歩5分以内/和室/洗面所にドア/縦型照明付洗面化粧台/高速ネット対応/保証会社利用可/IT重説 対応物件/初期費用カード決済可/通風良好/東灘警察署 青木交番(警察署・交番)まで265m/ファミリーマート 東灘青木店(コンビニ)まで371m/ローソン 東灘本山南町三丁目店(コンビニ)まで448m/セブンイレブン 阪神青木駅前店(コンビニ)まで422m/阪急OASIS(阪急オアシス) 本山南店(スーパー)まで576m/関西スーパー青木店(スーパー)まで414m 
特記事項 二人入居可・角部屋・日当り良好・閑静な住宅街・初期費用カード決済可

省エネ性能

エネルギー消費性能 -
断熱性能 -
目安光熱費 -

兵庫県神戸市東灘区青木5 周辺地図情報

地図
※地図上に表示される物件の位置は付近住所に所在することを表すものであり、実際の物件所在地とは異なる場合がございます。
   正確な物件所在地は、取扱い不動産会社にお問い合わせください。
お問い合わせ先
ピタットハウス三宮店(株)ライブデザイン

不動産会社情報

お問い合わせ先 商号:ピタットハウス三宮店(株)ライブデザイン
免許番号:国土交通大臣(1)第10464号
所在地:兵庫県神戸市中央区布引町4-2-6
TEL:078-855-9599
取引態様:仲介
管理コード:0000239182
所属協会など:(公社)近畿地区不動産公正取引協議会加盟、(公社)全日本不動産協会兵庫県本部会員
共有する
QRコード
お問い合わせ先
ピタットハウス三宮店(株)ライブデザイン

    神戸市東灘区の暮らしデータ

    人口などの統計情報

    世帯数 734091世帯
    人口総数 1500425人
    転入者数 75773人
    転入率(人口1000人当たり)
    50.50人
    転出者数 75052人
    転出率(人口1000人当たり)
    50.02人
    土地平均価格
    住宅地
    196681円/m2
    商業地
    844842円/m2

    結婚・育児の助成金

    子育て関連の独自の取り組み (1)妊産婦タクシー利用券。(2)産後ケア事業(32ヶ所)。(3)多胎児家庭支援の充実(多胎児家庭ホームヘルプサービス等)。(4)多様な保育施設で待機児童3年連続ゼロ(保育送迎ステーション等)。(5)病児保育(22ヶ所)。(6)夜間、休日に年中無休で診療する「神戸こども初期急病センター」。(7)天候関係なく無料で遊べる場所の充実(こべっこランド、こども本の森神戸、児童館120ヶ所等)。(8)学童保育希望者全員受入れ。(9)インフルエンザ予防接種費の一部助成(12歳まで)。(10)市民が市内高校に通う通学定期代無料化。(11)子連れ利用可能な無料コワーキングスペース(無料の一時保育付)。(12)大人同伴の小学生以下の市バス・地下鉄の料金が無料。(13)住み替え補助(「住みかえーる」で検索)。
    出産祝い あり
    公立保育所数 56所(うち0歳児保育を実施している保育所:45所)
    私立保育所数 70所(うち0歳児保育を実施している保育所:67所)
    保育所入所待機児童数 0人
    認定こども園数 191園 預かり保育実施園数 公立:28園 私立:37園
    学校給食 【小学校】完全給食【中学校】完全給食 デリバリー形式[運搬:ランチボックス、内容:完全給食]、但し家庭弁当等の持参も可(2024年9月から順次全員喫食制へ移行)
    公立中学校の学校選択制 一部実施(特定地域選択制)
    子ども・学生等医療費助成<通院>対象年齢 18歳3月末まで 子ども・学生等医療費助成<入院>対象年齢 18歳3月末まで

    神戸市東灘区の治安・ごみ収集情報

    公共料金・インフラ

    ガス料金(22m3使用した場合の月額) 大阪瓦斯株式会社4544円
    伊丹産業株式会社7185円
    水道料金(口径20mmで20m3の月額) 神戸市2926円
    下水道料金(20m3を使用した場合の月額) 神戸市1760円
    下水道普及率 98.7%

    安心・安全

    建物火災出火件数 236件
    人口10000人当たり
    1.55件
    刑法犯認知件数 12014件
    人口1000人当たり
    7.88件
    ハザード・防災マップ あり

    医療

    一般病院総数 98ヶ所
    一般診療所総数 1643ヶ所
    小児科医師数 408人
    小児人口10000人当たり
    24.03人
    産婦人科医師数 190人
    15~49歳女性人口1万人当たり
    6.47人
    介護保険料基準額(月額) 6580円

    ごみ

    家庭ごみ収集(可燃ごみ) 無料
    備考
    指定ごみ袋は有料だが、袋代にごみ収集・処理料金等を含まず。
    家庭ごみの分別方式 5分別〔缶・びん・ペットボトル 容器包装プラスチック 燃えないごみ カセットボンベ・スプレー缶 燃えるごみ〕 拠点回収:使用済小型家電 カセットボンベ・スプレー缶 水銀体温計・温度計・血圧計 蛍光管 乾電池・充電式電池・ボタン電池
    家庭ごみの戸別収集 一部実施(【ひまわり収集】クリーンステーションまで、ごみを持ち出すことが困難な高齢者または障害者など一部の対象者に実施)
    粗大ごみ収集 あり
    備考
    有料。戸別収集。事前申込制。申込みの後、大型ごみシール券を購入し貼付けて出すか、キャッシュレス決済を行う。申込みから1~2週間程度で収集。
    生ごみ処理機助成金制度 なし
    上限金額
    -
    上限比率
    -
    暮らしデータ提供元:生活ガイド.com
    ※行政機関により公表していない地域及びデータがございます。東京23区以外の政令指定都市は、市全体のデータとして表示しています。
    ※提供データには細心の注意を払っておりますが、調査後に変更がある場合があります。 最新の情報につきましては各市区役所までお問い合わせいただくか、自治体HPなどをご確認ください。
    OCN×ドコモ光新規お申込みで合計最大137,280円相当おトク!特典の内訳・適用条件など詳細はこちら

    神戸市東灘区内の各駅の住みやすさ

    他のエリアから探す

    神戸市東灘区の詳細地域から賃貸物件を探す

    魚崎北町魚崎中町魚崎西町魚崎南町渦森台青木岡本鴨子ケ原北青木甲南町向洋町中住吉台住吉東町住吉本町住吉南町住吉宮町住吉山手田中町西岡本深江北町深江浜町深江本町深江南町本庄町御影御影石町御影郡家御影塚町御影中町御影本町御影山手本山北町本山町岡本本山町北畑本山中町本山南町森北町森南町

    近辺の市区から探す

    神戸市灘区神戸市兵庫区神戸市長田区神戸市北区神戸市中央区尼崎市西宮市芦屋市宝塚市

    周辺の駅から探す

    東海道本線
    西宮さくら夙川芦屋甲南山手摂津本山住吉六甲道摩耶
    阪神電鉄本線
    香櫨園打出芦屋深江青木魚崎住吉御影石屋川

    兵庫県神戸市東灘区で他のジャンルから探す


    掲載情報の著作権は提供元企業等に帰属します。
    Copyright:(C) 2025 Recruit Co., Ltd.
    アプリで簡単 物件探し 大手不動産サイトの情報から一括検!プッシュ通知で物件を見逃さない
    App Storeからダウンロード Google Playで手に入れよう QRコード