アプリで簡単 物件探し 通知 共有 アプリならではの機能を使ってみる
賃貸アパート

ARCAりんくうI りんくうタウン駅 1LDK 賃貸(賃貸マンション・アパート)

情報提供元
SUUMO
ARCAりんくうI
賃料 7.95万円  (管理費等:6000円)
礼金・敷金 1ヶ月 / なし 保証金/敷引・償却 なし / -
交通
所在地 大阪府泉佐野市笠松2周辺地図
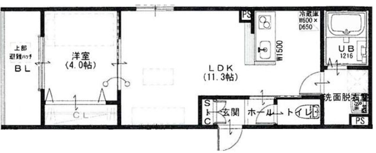
間取り 1LDK 専有面積 35.31m2
築年月 2025年3月 築年数 新築
おすすめポイント
ペット飼育可能☆新築物件☆ 「りんくうタウン駅」徒歩9分☆小型犬・ネコ飼育可能新築物件です☆
お問い合わせ先
富士ホームサービス(株)泉佐野駅前支店
お問い合わせ先
富士ホームサービス(株)泉佐野駅前支店

詳細情報

賃料 7.95万円 管理費等 6000円
敷金 なし 礼金 1ヶ月
保証金 なし 敷引・償却 -
更新料 - 契約期間
カード決済 -
所在地 大阪府泉佐野市笠松2周辺地図
交通
建物名 ARCAりんくうI 
間取り 1LDK(洋4 LDK11.3) 築年月(築年数) 2025年3月 新築
専有面積 35.31㎡ 所在階/階数 2階/3階建
建物構造 木造  方位  
現況   駐車場 無    近くの駐車場を探す
入居可能時期 即時 住宅保険 あり 2年 17000円
情報提供元 SUUMO[060H100423584306] 情報公開日
情報更新日 次回更新予定日 随時

設備など

2階以上 最上階 - 角部屋 -
駐車場(近隣含) - エアコン付き バス・トイレ別
室内洗濯機置き場 追焚機能 - オートロック付き
モニタ付インターホン フローリング バルコニー
ガスコンロ可 - 浴室乾燥機 24時間セキュリティ -
宅配ボックス ペット相談可 二人入居可 -
設備 冷房・暖房・エアコン・オートロック・バルコニー・バス・トイレ別・トイレ・収納スペース・洗濯機置場・洗面所・CATV・BS端子・フローリング・浴室乾燥機・温水洗浄便座・カウンターキッチン・モニタ付インターホン・宅配BOX・駐輪場・対面K・クローゼット・衣類乾燥機・都市ガス・IHクッキングヒータ・浴トイレ別・洗面所独立・コンロ2口以上・シューズボックス・インターネット無料・インターネット対応・室内洗濯機置き場 
リフォーム履歴 -
リノベーション履歴 -
備考 鍵交換費:19800円  マルチサポート費:1100円/月額/保証会社利用必:初回保証料:総賃料の70%  更新料:12000円/1年/バストイレ別/バルコニー/エアコン/クロゼット/フローリング/TVインターホン/浴室乾燥機/オートロック/室内洗濯置/シューズボックス/温水洗浄便座/脱衣所/洗面所独立/2口コンロ/駐輪場/宅配ボックス/CATV/敷金不要/対面式キッチン/ペット相談/IHクッキングヒーター/全居室洋室/保証人不要/単身者相談/CATVインターネット/二人入居相談/2沿線利用可/ネット使用料不要/浴室未使用/トイレ未使用/3駅以上利用可/駅徒歩10分以内/敷地内ごみ置き場/平面駐車場/キッチン未使用/都市ガス/BS/礼金1ヶ月/通風良好/ワークマンプラス泉佐野羽倉崎店(ショッピングセンター)まで499m/業務スーパー泉佐野店(スーパー)まで494m/セブンイレブン泉佐野松原2丁目店(コンビニ)まで486m/ディスカウントドラッグコスモスりんくう店(ドラッグストア)まで1017m/地方独立行政法人りんくう総合医療センター(病院)まで1027m/大阪公立大学りんくうキャンパス(大学・短大)まで957m 
特記事項 ペット相談可・保証人不要/代行

省エネ性能

エネルギー消費性能 -
断熱性能 -
目安光熱費 -

大阪府泉佐野市笠松2 周辺地図情報

地図
※地図上に表示される物件の位置は付近住所に所在することを表すものであり、実際の物件所在地とは異なる場合がございます。
   正確な物件所在地は、取扱い不動産会社にお問い合わせください。
お問い合わせ先
富士ホームサービス(株)泉佐野駅前支店

不動産会社情報

お問い合わせ先 商号:富士ホームサービス(株)泉佐野駅前支店
免許番号:国土交通大臣(8)第4288号
所在地:大阪府泉佐野市上町3-7-8
TEL:072-447-5361
取引態様:仲介
管理コード:
所属協会など:(公社)近畿地区不動産公正取引協議会加盟、(一社)大阪府宅地建物取引業協会会員
共有する
QRコード
お問い合わせ先
富士ホームサービス(株)泉佐野駅前支店

    泉佐野市の暮らしデータ

    人口などの統計情報

    世帯数 43783世帯
    人口総数 99037人
    転入者数 5827人
    転入率(人口1000人当たり)
    58.84人
    転出者数 4703人
    転出率(人口1000人当たり)
    47.49人
    土地平均価格
    住宅地
    66350円/m2
    商業地
    175500円/m2

    結婚・育児の助成金

    子育て関連の独自の取り組み 2019年10月からの「幼児教育・保育の無償化」実施にあわせ、泉佐野市在住で泉佐野市内の施設に在園している児童の給食費無償化を開始。保育所・認定こども園等に通う0~2歳児の保育料について、国基準では第2子半額のところを2023年4月から市単独で第2子無償を開始。2023年1月より多胎児を養育する世帯がいずみさのファミリー・サポート・センターを利用する際の利用料の補助券を配付。2023年1月より妊産婦の産婦人科等への通院や出産、産後の健診受診等でタクシーを利用する際の利用料の補助券を配付。2023年7月より2歳未満の乳幼児のいる世帯へ市指定のごみ袋を配布。
    出産祝い なし
    公立保育所数 0所(うち0歳児保育を実施している保育所:-)
    私立保育所数 1所(うち0歳児保育を実施している保育所:1所)
    保育所入所待機児童数 0人
    認定こども園数 16園 預かり保育実施園数 公立:- 私立:2園
    学校給食 【小学校】完全給食【中学校】完全給食
    公立中学校の学校選択制 一部実施
    子ども・学生等医療費助成<通院>対象年齢 18歳3月末まで 子ども・学生等医療費助成<入院>対象年齢 18歳3月末まで

    泉佐野市の治安・ごみ収集情報

    公共料金・インフラ

    ガス料金(22m3使用した場合の月額) 大阪瓦斯株式会社4544円
    水道料金(口径20mmで20m3の月額) 泉佐野市3014円
    下水道料金(20m3を使用した場合の月額) 泉佐野市2530円
    下水道普及率 45.2%

    安心・安全

    建物火災出火件数 13件
    人口10000人当たり
    1.30件
    刑法犯認知件数 782件
    人口1000人当たり
    7.81件
    ハザード・防災マップ あり

    医療

    一般病院総数 9ヶ所
    一般診療所総数 89ヶ所
    小児科医師数 3人
    小児人口10000人当たり
    2.71人
    産婦人科医師数 6人
    15~49歳女性人口1万人当たり
    2.98人
    介護保険料基準額(月額) 6990円

    ごみ

    家庭ごみ収集(可燃ごみ) 有料
    備考
    指定ごみ袋有料(可燃ごみ)。
    家庭ごみの分別方式 2分別10種〔可燃ごみ 資源ごみ(容器包装プラスチック、カン・ビン・ペットボトル本体、新聞紙、雑誌・パンフレット・教科書、紙パック、紙箱、紙袋、ダンボール、古着)〕
    家庭ごみの戸別収集 一部実施(【泉佐野市ふれ愛収集】一部地域のみ実施)
    粗大ごみ収集 あり
    備考
    有料。45リットル袋1点、3辺の長さが3m未満500円/点。3辺の長さが3m以上1,000円/点。
    生ごみ処理機助成金制度 あり
    上限金額
    30000円
    上限比率
    50.0%
    暮らしデータ提供元:生活ガイド.com
    ※行政機関により公表していない地域及びデータがございます。東京23区以外の政令指定都市は、市全体のデータとして表示しています。
    ※提供データには細心の注意を払っておりますが、調査後に変更がある場合があります。 最新の情報につきましては各市区役所までお問い合わせいただくか、自治体HPなどをご確認ください。
    OCN×ドコモ光新規お申込みで合計最大137,280円相当おトク!特典の内訳・適用条件など詳細はこちら

    泉佐野市内の各駅の住みやすさ

    他のエリアから探す

    泉佐野市の詳細地域から賃貸物件を探す

    葵町旭町泉ケ丘市場西市場東市場南上町大西大宮町貝田町笠松春日町上瓦屋上之郷栄町下瓦屋新町新安松高松北高松西高松東高松南俵屋鶴原中庄中町長滝西本町野出町羽倉崎羽倉崎上町東羽倉崎町日根野本町松原南泉ケ丘南中樫井南中安松元町若宮町

    近辺の市区から探す

    岸和田市貝塚市和泉市泉南市阪南市泉北郡忠岡町泉南郡熊取町泉南郡田尻町

    周辺の駅から探す

    関西空港線
    日根野りんくうタウン|関西空港
    南海電鉄南海本線
    貝塚二色浜鶴原井原里泉佐野羽倉崎吉見ノ里岡田浦樽井

    大阪府泉佐野市で他のジャンルから探す


    掲載情報の著作権は提供元企業等に帰属します。
    Copyright:(C) 2025 Recruit Co., Ltd.
    アプリで簡単 物件探し 大手不動産サイトの情報から一括検!プッシュ通知で物件を見逃さない
    App Storeからダウンロード Google Playで手に入れよう QRコード