
賃貸マンション
プレサンス松屋町ヴェルデス 松屋町駅 1K 賃貸(賃貸マンション・アパート)
| 賃料 |
7.8万円 (管理費等:7070円) |
| 礼金・敷金 |
10万円 / なし |
保証金/敷引・償却 |
なし / - |
| 交通 |
|
| 所在地 |
大阪府大阪市中央区神崎町周辺地図
|
| 間取り |
1K |
専有面積 |
21.75m2 |
| 築年月 |
2021年4月 |
築年数 |
築4年9ヶ月 |
- おすすめポイント
- こちらの物件は2沿線を利用できます ご来店者様全員に、クオカード2 000円プレゼント!※1グループ1名様、期限3月31日まで。
- お問い合わせ先
- (株)SumoSumo大阪心斎橋店
- お問い合わせ先
- (株)SumoSumo大阪心斎橋店
| 賃料 |
7.8万円 |
管理費等 |
7070円 |
| 敷金 |
なし |
礼金 |
10万円 |
| 保証金 |
なし |
敷引・償却 |
- |
| 更新料 |
- |
契約期間 |
|
| カード決済 |
- |
| 所在地 |
大阪府大阪市中央区神崎町周辺地図
|
| 交通 |
- 地下鉄長堀鶴見緑地線 松屋町駅 徒歩3分乗換案内
- 地下鉄長堀鶴見緑地線 谷町六丁目駅 徒歩5分乗換案内
- 地下鉄中央線 谷町四丁目駅 徒歩10分乗換案内
|
| 建物名 |
プレサンス松屋町ヴェルデス |
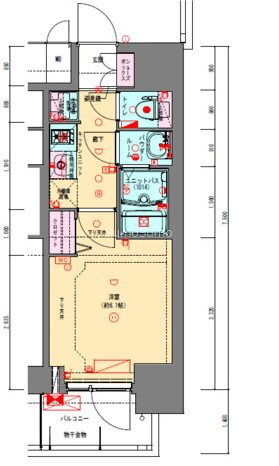
| 間取り |
1K(洋6.1) |
築年月(築年数) |
2021年4月(築4年9ヶ月)
|
| 専有面積 |
21.75㎡ |
所在階/階数 |
12階/13階建
|
| 建物構造 |
RC |
方位 |
南 |
| 現況 |
|
駐車場 |
近有 25,000円 |
| 入居可能時期 |
相談 |
住宅保険 |
あり 1年 11000円 |
| 情報提供元 |
SUUMO[060H100475472967] |
情報公開日 |
|
| 情報更新日 |
|
次回更新予定日 |
随時 |
設備など
| 2階以上 |
○ |
最上階 |
- |
角部屋 |
- |
| 駐車場(近隣含) |
○ |
エアコン付き |
○ |
バス・トイレ別 |
○ |
| 室内洗濯機置き場 |
○ |
追焚機能 |
- |
オートロック付き |
○ |
| モニタ付インターホン |
○ |
フローリング |
○ |
バルコニー |
○ |
| ガスコンロ可 |
○ |
浴室乾燥機 |
○ |
24時間セキュリティ |
- |
| 宅配ボックス |
○ |
ペット相談可 |
- |
二人入居可 |
- |
| 設備 |
冷房・暖房・エアコン・オートロック・バルコニー・バス・トイレ別・トイレ・収納スペース・洗濯機置場・洗面所・エレベーター・CATV・BS端子・フローリング・浴室乾燥機・ガスコンロ可・シャンプードレッサ・温水洗浄便座・システムキッチン・モニタ付インターホン・宅配BOX・駐輪場・風呂・クローゼット・CS・衣類乾燥機・都市ガス・浴トイレ別・防犯カメラ・洗面所独立・コンロ2口以上・シューズボックス・インターネット無料・リフォーム・インターネット対応・室内洗濯機置き場 |
| リフォーム履歴 |
- |
| リノベーション履歴 |
- |
| 備考 |
鍵交換費用2.97万円/室内清掃費用 35000円/保証会社利用必:初回50% 月1.5% 初回50% 月1.5%/普通借家01年0ヶ月/初期費用、入居審査の不安など、その他お困りごと是非SumoSumoにご相談下さい★女性スタッフ対応も可能☆/バストイレ別/バルコニー/エアコン/ガスコンロ対応/クロゼット/フローリング/シャワー付洗面台/TVインターホン/浴室乾燥機/オートロック/室内洗濯置/陽当り良好/シューズボックス/システムキッチン/南向き/温水洗浄便座/脱衣所/エレベーター/洗面所独立/洗面化粧台/2口コンロ/駐輪場/宅配ボックス/CATV/光ファイバー/閑静な住宅地/敷金不要/防犯カメラ/独立型キッチン/分譲賃貸/CATVインターネット/デザイナーズ/2沿線利用可/CS/ネット専用回線/ネット使用料不要/内装リフォーム済/眺望良好/バリアフリー/24時間換気システム/高温差湯式/外壁コンクリート/平坦地/南面リビング/学生相談/人感照明センサー/駅前/駅徒歩5分以内/高層階/24時間ゴミ出し可/敷地内ごみ置き場/セキュリティ会社加入済/都市ガス/洗面所にドア/南面バルコニー/玄関収納/BS/IT重説 対応物件/通風良好/巡回管理/ライフ空堀店(スーパー)まで393m/イズミヤ 法円坂店(スーパー)まで718m/業務スーパー 松屋町筋本町橋店(スーパー)まで738m/ドン・キホーテ法円坂店(その他)まで708m/セブンイレブン 大阪内久宝寺町4丁目店(コンビニ)まで215m/ローソン 安堂寺町二丁目店(コンビニ)まで221m |
| 特記事項 |
分譲タイプ・管理人巡回・日当り良好・閑静な住宅街・バリアフリー・デザイナーズ物件 |
大阪府大阪市中央区神崎町 周辺地図情報
※地図上に表示される物件の位置は付近住所に所在することを表すものであり、実際の物件所在地とは異なる場合がございます。
正確な物件所在地は、取扱い不動産会社にお問い合わせください。
- お問い合わせ先
- (株)SumoSumo大阪心斎橋店
不動産会社情報
| お問い合わせ先 |
商号:(株)SumoSumo大阪心斎橋店 免許番号:大阪府知事(1)第62697号 所在地:大阪府大阪市中央区南船場3-3-23-102 TEL:06-4400-6315 取引態様:仲介 管理コード:1845530 所属協会など:(公社)近畿地区不動産公正取引協議会加盟、(公社)全日本不動産協会大阪府本部会員
|
共有する |
|
- お問い合わせ先
- (株)SumoSumo大阪心斎橋店
人口などの統計情報
| 世帯数 |
1464615世帯 |
| 人口総数 |
2757642人 |
| 転入者数 |
225000人
- 転入率(人口1000人当たり)
- 81.59人
|
| 転出者数 |
188180人
- 転出率(人口1000人当たり)
- 68.24人
|
| 土地平均価格 |
- 住宅地
- 270839円/m2
- 商業地
- 1966607円/m2
|
結婚・育児の助成金
| 子育て関連の独自の取り組み |
(1)子ども・子育てプラザ(在宅での子育て家庭や地域での子育て活動を支援し、また乳幼児期の親子や子育て支援者、就学期の子どもが集い交流する機会を提供する等、地域福祉活動の推進を図る)。(2)習い事・塾代助成事業(学習塾や家庭教師、文化・スポーツ教室等学校外教育にかかる費用を、1人当たり月額1万円まで助成。所得制限あり)。 |
| 出産祝い |
なし |
| 公立保育所数 |
53所(うち0歳児保育を実施している保育所:52所) |
| 私立保育所数 |
395所(うち0歳児保育を実施している保育所:385所) |
| 保育所入所待機児童数 |
2人 |
| 認定こども園数 |
117園 |
預かり保育実施園数 |
公立:52園 私立:- |
| 学校給食 |
【小学校】完全給食【中学校】完全給食 |
| 公立中学校の学校選択制 |
実施 |
| 子ども・学生等医療費助成<通院>対象年齢 |
18歳3月末まで |
子ども・学生等医療費助成<入院>対象年齢 |
18歳3月末まで |
大阪市中央区の治安・ごみ収集情報
公共料金・インフラ
| ガス料金(22m3使用した場合の月額) |
大阪瓦斯株式会社4544円 |
| 水道料金(口径20mmで20m3の月額) |
大阪市2112円 |
| 下水道料金(20m3を使用した場合の月額) |
大阪市1276円 |
| 下水道普及率 |
100.0% |
安心・安全
| 建物火災出火件数 |
553件
- 人口10000人当たり
- 2.01件
|
| 刑法犯認知件数 |
39408件
- 人口1000人当たり
- 14.32件
|
| ハザード・防災マップ |
あり |
医療
| 一般病院総数 |
170ヶ所 |
| 一般診療所総数 |
3734ヶ所 |
| 小児科医師数 |
659人
- 小児人口10000人当たり
- 22.80人
|
| 産婦人科医師数 |
380人
- 15~49歳女性人口1万人当たり
- 6.15人
|
| 介護保険料基準額(月額) |
9249円 |
ごみ
| 家庭ごみ収集(可燃ごみ) |
無料
|
| 家庭ごみの分別方式 |
4分別11種〔普通ごみ(普通ごみ、危険ごみ[竹串、ガラス片、カミソリの刃]) 資源ごみ(空き缶・空きびん・金属製の生活用品・ペットボトル、スプレー缶・カセットボンベ) 容器包装プラスチック 古紙・衣類(新聞紙・折込チラシ、段ボール、紙パック、雑誌、衣類、その他の紙類)〕 |
| 家庭ごみの戸別収集 |
一部実施(【ふれあい収集】65歳以上の一人暮らしの高齢者または高齢者だけの世帯、障がいがある方が居住される家庭で、ごみ出しが困難な人が対象) |
| 粗大ごみ収集 |
あり
|
| 生ごみ処理機助成金制度 |
なし
- 上限金額
- -
- 上限比率
- -
|
※行政機関により公表していない地域及びデータがございます。東京23区以外の政令指定都市は、市全体のデータとして表示しています。
※提供データには細心の注意を払っておりますが、調査後に変更がある場合があります。 最新の情報につきましては各市区役所までお問い合わせいただくか、自治体HPなどをご確認ください。
大阪市中央区の暮らしデータをもっと見る