アプリで簡単 物件探し 通知 共有 アプリならではの機能を使ってみる
賃貸マンション

アストレア内淡路 天満橋駅 2LDK 賃貸(賃貸マンション・アパート)

情報提供元
SUUMO
アストレア内淡路
賃料 16.5万円  (管理費等:なし)
礼金・敷金 15万円 / 30万円 保証金/敷引・償却 なし / -
交通
所在地 大阪府大阪市中央区内淡路町2周辺地図
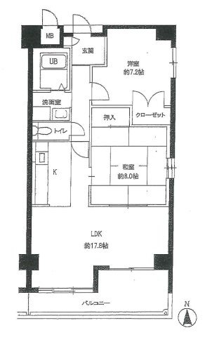
間取り 2LDK 専有面積 71.67m2
築年月 1988年12月 築年数 築37年1ヶ月
おすすめポイント
南向き天満橋 北浜 谷町4丁目 ★見学は現地待ち合わせ対応可能です。★その他、気になるお部屋は現地にてお調べしましてご案内させていただきます。
お問い合わせ先
(株)賃貸のギャラント宗右衛門町支店
お問い合わせ先
(株)賃貸のギャラント宗右衛門町支店

詳細情報

賃料 16.5万円 管理費等 なし
敷金 30万円 礼金 15万円
保証金 なし 敷引・償却 -
更新料 - 契約期間
カード決済 -
所在地 大阪府大阪市中央区内淡路町2周辺地図
交通
建物名 アストレア内淡路 
間取り 2LDK 築年月(築年数) 1988年12月(築37年1ヶ月)
専有面積 71.67㎡ 所在階/階数 3階/地上9階地下1階建
建物構造 RC  方位 南 
現況   駐車場 近有 25,000円
入居可能時期 即時 住宅保険 あり 2年 23000円
情報提供元 SUUMO[060H100455020163] 情報公開日
情報更新日 次回更新予定日 随時

設備など

2階以上 最上階 - 角部屋 -
駐車場(近隣含) エアコン付き - バス・トイレ別
室内洗濯機置き場 追焚機能 オートロック付き
モニタ付インターホン フローリング - バルコニー
ガスコンロ可 浴室乾燥機 - 24時間セキュリティ -
宅配ボックス - ペット相談可 - 二人入居可 -
設備 オートロック・バルコニー・バス・トイレ別・トイレ・収納スペース・洗濯機置場・洗面所・エレベーター・CATV・BS端子・追焚機能・ガスコンロ可・温水洗浄便座・システムキッチン・モニタ付インターホン・風呂・2面バルコニー・都市ガス・浴トイレ別・オートバス・洗面所独立・コンロ2口以上・シューズボックス・インターネット対応・室内洗濯機置き場 
リフォーム履歴 -
リノベーション履歴 -
備考 鍵交換代3.74万円/室内清掃費用 44000円/保証会社利用必:保証料はプランよって変動します詳細は担当まで 保証料はプランよって変動します詳細は担当まで/普通借家02年0ヶ月/バストイレ別/ガスコンロ対応/TVインターホン/オートロック/室内洗濯置/陽当り良好/シューズボックス/システムキッチン/南向き/追焚機能浴室/温水洗浄便座/エレベーター/洗面所独立/CATV/光ファイバー/即入居可/3口以上コンロ/オートバス/ガスレンジ付/2面バルコニー/2沿線利用可/眺望良好/2駅利用可/3駅以上利用可/駅徒歩10分以内/都市ガス/南面バルコニー/BS/IT重説 対応物件/通風良好/巡回管理/中大江公園(公園)まで235m/ライフ 天神橋店(スーパー)まで390m/KOHYO(コーヨー) 内本町店(スーパー)まで470m/ローソン 大手通二丁目店(コンビニ)まで82m/三菱UFJ銀行谷町支店(銀行)まで420m/大阪高麗橋郵便局(郵便局)まで133m 
特記事項 管理人巡回・日当り良好

省エネ性能

エネルギー消費性能 -
断熱性能 -
目安光熱費 -

大阪府大阪市中央区内淡路町2 周辺地図情報

地図
※地図上に表示される物件の位置は付近住所に所在することを表すものであり、実際の物件所在地とは異なる場合がございます。
   正確な物件所在地は、取扱い不動産会社にお問い合わせください。
お問い合わせ先
(株)賃貸のギャラント宗右衛門町支店

不動産会社情報

お問い合わせ先 商号:(株)賃貸のギャラント宗右衛門町支店
免許番号:大阪府知事(3)第56157号
所在地:大阪府大阪市中央区宗右衛門町 1-3
TEL:06-6211-2727
取引態様:仲介
管理コード:408619
所属協会など:(公社)近畿地区不動産公正取引協議会加盟、(一社)大阪府宅地建物取引業協会会員
共有する
QRコード
お問い合わせ先
(株)賃貸のギャラント宗右衛門町支店

    大阪市中央区の暮らしデータ

    人口などの統計情報

    世帯数 1464615世帯
    人口総数 2757642人
    転入者数 225000人
    転入率(人口1000人当たり)
    81.59人
    転出者数 188180人
    転出率(人口1000人当たり)
    68.24人
    土地平均価格
    住宅地
    270839円/m2
    商業地
    1966607円/m2

    結婚・育児の助成金

    子育て関連の独自の取り組み (1)子ども・子育てプラザ(在宅での子育て家庭や地域での子育て活動を支援し、また乳幼児期の親子や子育て支援者、就学期の子どもが集い交流する機会を提供する等、地域福祉活動の推進を図る)。(2)習い事・塾代助成事業(学習塾や家庭教師、文化・スポーツ教室等学校外教育にかかる費用を、1人当たり月額1万円まで助成。所得制限あり)。
    出産祝い なし
    公立保育所数 53所(うち0歳児保育を実施している保育所:52所)
    私立保育所数 395所(うち0歳児保育を実施している保育所:385所)
    保育所入所待機児童数 2人
    認定こども園数 117園 預かり保育実施園数 公立:52園 私立:-
    学校給食 【小学校】完全給食【中学校】完全給食
    公立中学校の学校選択制 実施
    子ども・学生等医療費助成<通院>対象年齢 18歳3月末まで 子ども・学生等医療費助成<入院>対象年齢 18歳3月末まで

    大阪市中央区の治安・ごみ収集情報

    公共料金・インフラ

    ガス料金(22m3使用した場合の月額) 大阪瓦斯株式会社4544円
    水道料金(口径20mmで20m3の月額) 大阪市2112円
    下水道料金(20m3を使用した場合の月額) 大阪市1276円
    下水道普及率 100.0%

    安心・安全

    建物火災出火件数 553件
    人口10000人当たり
    2.01件
    刑法犯認知件数 39408件
    人口1000人当たり
    14.32件
    ハザード・防災マップ あり

    医療

    一般病院総数 170ヶ所
    一般診療所総数 3734ヶ所
    小児科医師数 659人
    小児人口10000人当たり
    22.80人
    産婦人科医師数 380人
    15~49歳女性人口1万人当たり
    6.15人
    介護保険料基準額(月額) 9249円

    ごみ

    家庭ごみ収集(可燃ごみ) 無料
    備考
    -
    家庭ごみの分別方式 4分別11種〔普通ごみ(普通ごみ、危険ごみ[竹串、ガラス片、カミソリの刃]) 資源ごみ(空き缶・空きびん・金属製の生活用品・ペットボトル、スプレー缶・カセットボンベ) 容器包装プラスチック 古紙・衣類(新聞紙・折込チラシ、段ボール、紙パック、雑誌、衣類、その他の紙類)〕
    家庭ごみの戸別収集 一部実施(【ふれあい収集】65歳以上の一人暮らしの高齢者または高齢者だけの世帯、障がいがある方が居住される家庭で、ごみ出しが困難な人が対象)
    粗大ごみ収集 あり
    備考
    有料。戸別収集。事前申込制。申込時に収集日を決定。
    生ごみ処理機助成金制度 なし
    上限金額
    -
    上限比率
    -
    暮らしデータ提供元:生活ガイド.com
    ※行政機関により公表していない地域及びデータがございます。東京23区以外の政令指定都市は、市全体のデータとして表示しています。
    ※提供データには細心の注意を払っておりますが、調査後に変更がある場合があります。 最新の情報につきましては各市区役所までお問い合わせいただくか、自治体HPなどをご確認ください。
    OCN×ドコモ光新規お申込みで合計最大137,280円相当おトク!特典の内訳・適用条件など詳細はこちら

    大阪市中央区内の各駅の住みやすさ

    他のエリアから探す

    大阪市中央区の詳細地域から賃貸物件を探す

    安土町淡路町安堂寺町和泉町糸屋町今橋上汐上本町西上町内淡路町内久宝寺町内平野町内本町大手通大手前瓦町瓦屋町神崎町北久宝寺町北新町北浜北浜東久太郎町高津高麗橋粉川町石町材木町島之内島町十二軒町千日前谷町玉造釣鐘町東平常盤町徳井町道頓堀道修町中寺難波難波千日前西心斎橋日本橋農人橋博労町馬場町東高麗橋東心斎橋平野町備後町伏見町船越町法円坂本町本町橋松屋町松屋町住吉南久宝寺町南新町南船場南本町森ノ宮中央鎗屋町龍造寺町

    近辺の市区から探す

    大阪市都島区大阪市福島区大阪市此花区大阪市西区大阪市港区大阪市大正区大阪市天王寺区大阪市浪速区大阪市西淀川区大阪市東淀川区大阪市東成区大阪市生野区大阪市旭区大阪市城東区大阪市阿倍野区大阪市住吉区大阪市東住吉区大阪市西成区大阪市淀川区大阪市鶴見区大阪市住之江区大阪市平野区大阪市北区堺市堺区堺市北区吹田市守口市八尾市大東市摂津市

    周辺の駅から探す

    大阪市谷町線
    中崎町東梅田南森町天満橋谷町四丁目谷町六丁目谷町九丁目四天王寺前夕陽ヶ丘天王寺
    京阪電気鉄道京阪線
    森小路関目野江京橋天満橋北浜淀屋橋

    大阪府大阪市中央区で他のジャンルから探す


    掲載情報の著作権は提供元企業等に帰属します。
    Copyright:(C) 2025 Recruit Co., Ltd.
    アプリで簡単 物件探し 大手不動産サイトの情報から一括検!プッシュ通知で物件を見逃さない
    App Storeからダウンロード Google Playで手に入れよう QRコード