アプリで簡単 物件探し 通知 共有 アプリならではの機能を使ってみる
賃貸マンション

アネックス山野 あびこ駅 2DK 賃貸(賃貸マンション・アパート)

情報提供元
SUUMO
アネックス山野
賃料 6.8万円  (管理費等:12000円)
礼金・敷金 10万円 / なし 保証金/敷引・償却 なし / -
交通
所在地 大阪府大阪市住吉区苅田1周辺地図
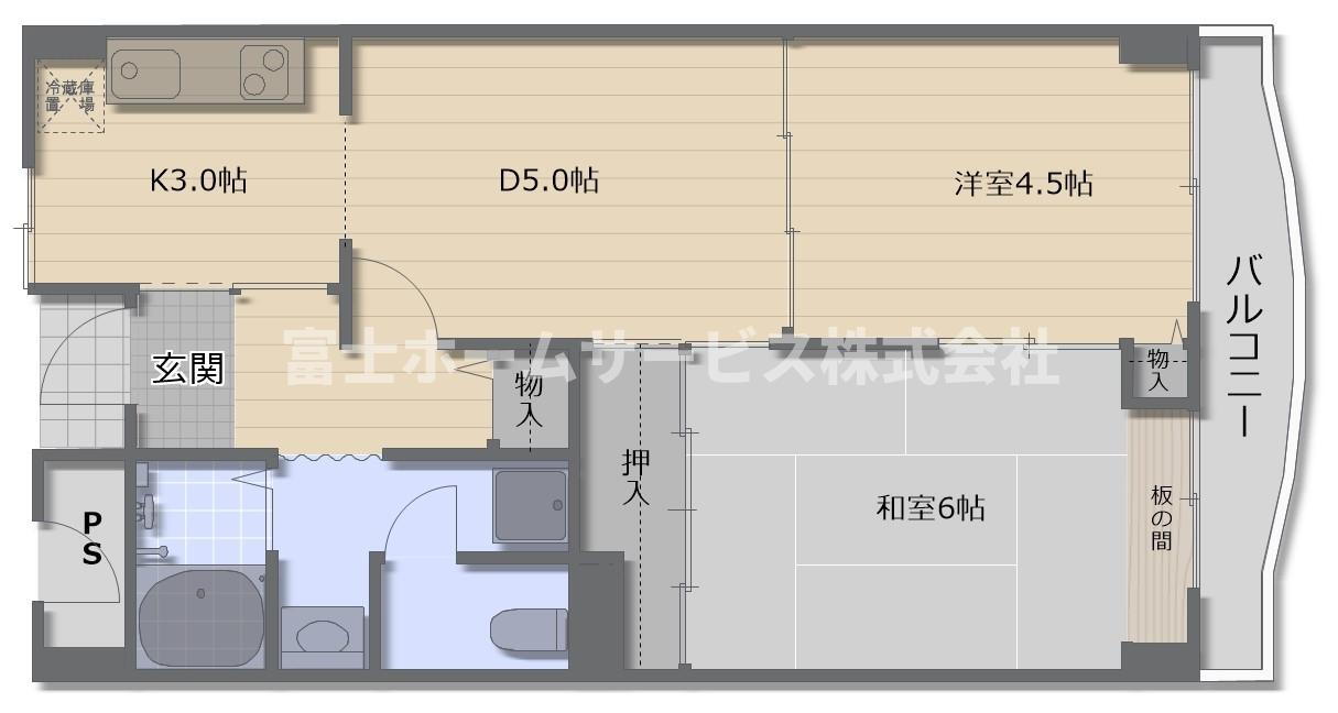
間取り 2DK 専有面積 51.75m2
築年月 1996年3月 築年数 築29年9ヶ月
おすすめポイント
耐震性など確かな信頼を得るのがRC構造の魅力です こちらは防犯カメラ付きの物件です。化粧品やスタイリング剤などをまとめて出して、サッと身支度を整えられる独立洗面台があります。RC構造を生かした耐火、耐震、防音の物件。
お問い合わせ先
富士ホームサービス(株)本店賃貸部
お問い合わせ先
富士ホームサービス(株)本店賃貸部

詳細情報

賃料 6.8万円 管理費等 12000円
敷金 なし 礼金 10万円
保証金 なし 敷引・償却 -
更新料 - 契約期間
カード決済 初期費用カード決済可
所在地 大阪府大阪市住吉区苅田1周辺地図
交通
建物名 アネックス山野 
間取り 2DK(和6.0 洋4.5 DK8.0) 築年月(築年数) 1996年3月(築29年9ヶ月)
専有面積 51.75㎡ 所在階/階数 3階/8階建
建物構造 RC  方位 南 
現況   駐車場 無    近くの駐車場を探す
入居可能時期 相談 住宅保険 あり 2年 19000円
情報提供元 SUUMO[060H100473823035] 情報公開日
情報更新日 次回更新予定日 随時

設備など

2階以上 最上階 - 角部屋 -
駐車場(近隣含) - エアコン付き - バス・トイレ別
室内洗濯機置き場 追焚機能 - オートロック付き
モニタ付インターホン フローリング バルコニー
ガスコンロ可 浴室乾燥機 - 24時間セキュリティ -
宅配ボックス ペット相談可 - 二人入居可
設備 オートロック・バルコニー・バス・トイレ別・トイレ・収納スペース・洗濯機置場・洗面所・エレベーター・CATV・管理人日勤・フローリング・ガスコンロ可・シャンプードレッサ・温水洗浄便座・モニタ付インターホン・宅配BOX・駐輪場・クローゼット・都市ガス・浴トイレ別・防犯カメラ・洗面所独立・バイク置き場・コンロ2口以上・インターネット無料・リノベーション・インターネット対応・室内洗濯機置き場 
リフォーム履歴 -
リノベーション履歴 -
備考 くらしーど241.65万円 鍵交換代2.2万円/保証会社利用可:たくっちサポート保証 初回総賃料30% 1年更新10 000円 引落手数料330円/普通借家02年0ヶ月/二人入居可/子供可/事務所利用不可/バストイレ別/バルコニー/ガスコンロ対応/クロゼット/フローリング/シャワー付洗面台/TVインターホン/オートロック/室内洗濯置/陽当り良好/南向き/温水洗浄便座/脱衣所/エレベーター/洗面所独立/洗面化粧台/2口コンロ/駐輪場/宅配ボックス/押入/CATV/礼金不要/閑静な住宅地/敷金不要/防犯カメラ/グリル付/バイク置場/ガスレンジ付/2沿線利用可/ネット使用料不要/平坦地/南面2室/南面リビング/学生相談/一部フローリング/2駅利用可/3駅以上利用可/敷地内ごみ置き場/平面駐車場/和室/都市ガス/南面バルコニー/リノベーション/敷金・礼金不要/IT重説 対応物件/LGBTフレンドリー/初期費用カード決済可/通風良好/通勤管理/大阪府教育センター附属高校(高校・高専)まで193m/大阪市立苅田北小学校(小学校)まで269m/万代 苅田店(スーパー)まで402m/ウエルシア住吉苅田店(ドラッグストア)まで164m/サンディ長居公園南店(スーパー)まで202m/ピザーラ 長居公園店(飲食店)まで276m/賃貸戸数:54戸 
特記事項 二人入居可・管理人日勤・日当り良好・閑静な住宅街・初期費用カード決済可

省エネ性能

エネルギー消費性能 -
断熱性能 -
目安光熱費 -

大阪府大阪市住吉区苅田1 周辺地図情報

地図
※地図上に表示される物件の位置は付近住所に所在することを表すものであり、実際の物件所在地とは異なる場合がございます。
   正確な物件所在地は、取扱い不動産会社にお問い合わせください。
お問い合わせ先
富士ホームサービス(株)本店賃貸部

不動産会社情報

お問い合わせ先 商号:富士ホームサービス(株)本店賃貸部
免許番号:国土交通大臣(8)第4288号
所在地:大阪府大阪市住吉区苅田5-18-12
TEL:0120-364105
取引態様:仲介
管理コード:467219
所属協会など:(公社)近畿地区不動産公正取引協議会加盟、(一社)大阪府宅地建物取引業協会会員
共有する
QRコード
お問い合わせ先
富士ホームサービス(株)本店賃貸部

    大阪市住吉区の暮らしデータ

    人口などの統計情報

    世帯数 1464615世帯
    人口総数 2757642人
    転入者数 225000人
    転入率(人口1000人当たり)
    81.59人
    転出者数 188180人
    転出率(人口1000人当たり)
    68.24人
    土地平均価格
    住宅地
    270839円/m2
    商業地
    1966607円/m2

    結婚・育児の助成金

    子育て関連の独自の取り組み (1)子ども・子育てプラザ(在宅での子育て家庭や地域での子育て活動を支援し、また乳幼児期の親子や子育て支援者、就学期の子どもが集い交流する機会を提供する等、地域福祉活動の推進を図る)。(2)習い事・塾代助成事業(学習塾や家庭教師、文化・スポーツ教室等学校外教育にかかる費用を、1人当たり月額1万円まで助成。所得制限あり)。
    出産祝い なし
    公立保育所数 53所(うち0歳児保育を実施している保育所:52所)
    私立保育所数 395所(うち0歳児保育を実施している保育所:385所)
    保育所入所待機児童数 2人
    認定こども園数 117園 預かり保育実施園数 公立:52園 私立:-
    学校給食 【小学校】完全給食【中学校】完全給食
    公立中学校の学校選択制 実施
    子ども・学生等医療費助成<通院>対象年齢 18歳3月末まで 子ども・学生等医療費助成<入院>対象年齢 18歳3月末まで

    大阪市住吉区の治安・ごみ収集情報

    公共料金・インフラ

    ガス料金(22m3使用した場合の月額) 大阪瓦斯株式会社4544円
    水道料金(口径20mmで20m3の月額) 大阪市2112円
    下水道料金(20m3を使用した場合の月額) 大阪市1276円
    下水道普及率 100.0%

    安心・安全

    建物火災出火件数 553件
    人口10000人当たり
    2.01件
    刑法犯認知件数 39408件
    人口1000人当たり
    14.32件
    ハザード・防災マップ あり

    医療

    一般病院総数 170ヶ所
    一般診療所総数 3734ヶ所
    小児科医師数 659人
    小児人口10000人当たり
    22.80人
    産婦人科医師数 380人
    15~49歳女性人口1万人当たり
    6.15人
    介護保険料基準額(月額) 9249円

    ごみ

    家庭ごみ収集(可燃ごみ) 無料
    備考
    -
    家庭ごみの分別方式 4分別11種〔普通ごみ(普通ごみ、危険ごみ[竹串、ガラス片、カミソリの刃]) 資源ごみ(空き缶・空きびん・金属製の生活用品・ペットボトル、スプレー缶・カセットボンベ) 容器包装プラスチック 古紙・衣類(新聞紙・折込チラシ、段ボール、紙パック、雑誌、衣類、その他の紙類)〕
    家庭ごみの戸別収集 一部実施(【ふれあい収集】65歳以上の一人暮らしの高齢者または高齢者だけの世帯、障がいがある方が居住される家庭で、ごみ出しが困難な人が対象)
    粗大ごみ収集 あり
    備考
    有料。戸別収集。事前申込制。申込時に収集日を決定。
    生ごみ処理機助成金制度 なし
    上限金額
    -
    上限比率
    -
    暮らしデータ提供元:生活ガイド.com
    ※行政機関により公表していない地域及びデータがございます。東京23区以外の政令指定都市は、市全体のデータとして表示しています。
    ※提供データには細心の注意を払っておりますが、調査後に変更がある場合があります。 最新の情報につきましては各市区役所までお問い合わせいただくか、自治体HPなどをご確認ください。
    OCN×ドコモ光新規お申込みで合計最大137,280円相当おトク!特典の内訳・適用条件など詳細はこちら

    大阪市住吉区内の各駅の住みやすさ

    他のエリアから探す

    大阪市住吉区の詳細地域から賃貸物件を探す

    我孫子我孫子西我孫子東上住吉遠里小野苅田沢之町清水丘杉本墨江住吉千躰大領帝塚山中帝塚山西帝塚山東殿辻長居長居西長居東長峡町庭井万代万代東東粉浜南住吉山之内山之内元町

    近辺の市区から探す

    大阪市都島区大阪市福島区大阪市此花区大阪市西区大阪市港区大阪市大正区大阪市天王寺区大阪市浪速区大阪市西淀川区大阪市東成区大阪市生野区大阪市城東区大阪市阿倍野区大阪市東住吉区大阪市西成区大阪市住之江区大阪市平野区大阪市北区大阪市中央区堺市堺区堺市中区堺市東区堺市西区堺市北区堺市美原区八尾市松原市柏原市東大阪市大阪狭山市

    周辺の駅から探す

    阪和線
    天王寺美章園南田辺鶴ケ丘長居我孫子町杉本町浅香堺市
    大阪市御堂筋線
    天王寺昭和町西田辺長居あびこ北花田新金岡なかもず
    近鉄南大阪線
    河堀口北田辺今川針中野矢田河内天美布忍高見ノ里河内松原

    大阪府大阪市住吉区で他のジャンルから探す


    掲載情報の著作権は提供元企業等に帰属します。
    Copyright:(C) 2025 Recruit Co., Ltd.
    アプリで簡単 物件探し 大手不動産サイトの情報から一括検!プッシュ通知で物件を見逃さない
    App Storeからダウンロード Google Playで手に入れよう QRコード