アプリで簡単 物件探し 通知 共有 アプリならではの機能を使ってみる
賃貸マンション

プレサンス DOMECITY コレー レ 九条駅 1LDK 賃貸(賃貸マンション・アパート)

情報提供元
SUUMO
プレサンス DOMECITY コレー レ
賃料 12.01万円  (管理費等:9920円)
礼金・敷金 15万円 / なし 保証金/敷引・償却 なし / -
交通
所在地 大阪府大阪市西区境川2周辺地図
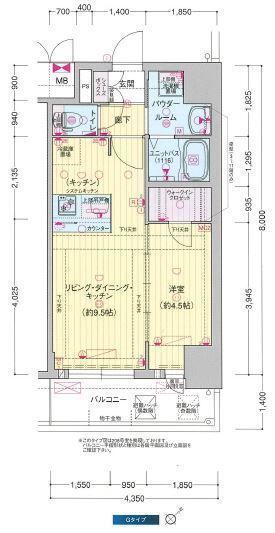
間取り 1LDK 専有面積 34.8m2
築年月 2023年7月 築年数 築2年6ヶ月
おすすめポイント
成約者特典BOOKOFF買取価格10%UP(景品限度額内) 収納はシューズボックス・ウォークインクロゼットなどが備え付けられているので、衣類や日用品の収納に重宝します。室内設備は洗面所独立・浴室乾燥機などが揃っているので、快適に過ごしやすいお部屋になります。
お問い合わせ先
ミニミニFC西中島南方店大阪ハウスコム(株)
お問い合わせ先
ミニミニFC西中島南方店大阪ハウスコム(株)

詳細情報

賃料 12.01万円 管理費等 9920円
敷金 なし 礼金 15万円
保証金 なし 敷引・償却 -
更新料 - 契約期間
カード決済 -
所在地 大阪府大阪市西区境川2周辺地図
交通
建物名 プレサンス DOMECITY コレー レ 
間取り 1LDK(洋4.5 LDK9.5) 築年月(築年数) 2023年7月(築2年6ヶ月)
専有面積 34.8㎡ 所在階/階数 4階/11階建
建物構造 RC  方位 南東 
現況   駐車場 無    近くの駐車場を探す
入居可能時期 相談 住宅保険 あり 1年 11000円
情報提供元 SUUMO[060H100472859459] 情報公開日
情報更新日 次回更新予定日 随時

設備など

2階以上 最上階 - 角部屋 -
駐車場(近隣含) - エアコン付き バス・トイレ別
室内洗濯機置き場 追焚機能 オートロック付き
モニタ付インターホン フローリング バルコニー
ガスコンロ可 浴室乾燥機 24時間セキュリティ -
宅配ボックス ペット相談可 - 二人入居可 -
設備 冷房・暖房・エアコン・オートロック・バルコニー・バス・トイレ別・トイレ・収納スペース・洗濯機置場・洗面所・エレベーター・CATV・BS端子・追焚機能・フローリング・浴室乾燥機・ウォークインクローゼット・ガスコンロ可・温水洗浄便座・システムキッチン・モニタ付インターホン・宅配BOX・風呂・クローゼット・衣類乾燥機・都市ガス・浴トイレ別・防犯カメラ・洗面所独立・コンロ2口以上・シューズボックス・インターネット無料・インターネット対応・室内洗濯機置き場 
リフォーム履歴 -
リノベーション履歴 -
備考 鍵交換代2.97万円/更新料 11000円 室内清掃費用 44000円 月額:プレサポ24 990円/保証会社利用必:ギャランティ 初回50% 月1.5%・セーフティー 初回50% 年10 000円/バストイレ別/バルコニー/エアコン/ガスコンロ対応/フローリング/TVインターホン/浴室乾燥機/オートロック/室内洗濯置/シューズボックス/システムキッチン/追焚機能浴室/温水洗浄便座/脱衣所/エレベーター/洗面所独立/洗面化粧台/2口コンロ/宅配ボックス/CATV/敷金不要/防犯カメラ/分譲賃貸/全居室洋室/ウォークインクロゼット/ネット使用料不要/24時間換気システム/築3年以内/人感照明センサー/全室東南向き/駅徒歩10分以内/敷地内ごみ置き場/築5年以内/東南向き/都市ガス/BS/年内入居可/年度内入居可/IT重説 対応物件/波除公園(公園)まで536m/フレック九条(スーパー)まで923m/グルメシティ九条店(スーパー)まで601m/ジャパン 港波除店(その他)まで584m/吉川病院(病院)まで443m/セブンイレブン 大阪弁天4丁目店(コンビニ)まで790m/賃貸戸数:80戸 
特記事項 分譲タイプ

省エネ性能

エネルギー消費性能 -
断熱性能 -
目安光熱費 -

大阪府大阪市西区境川2 周辺地図情報

地図
※地図上に表示される物件の位置は付近住所に所在することを表すものであり、実際の物件所在地とは異なる場合がございます。
   正確な物件所在地は、取扱い不動産会社にお問い合わせください。
お問い合わせ先
ミニミニFC西中島南方店大阪ハウスコム(株)

不動産会社情報

お問い合わせ先 商号:ミニミニFC西中島南方店大阪ハウスコム(株)
免許番号:国土交通大臣(3)第8685号
所在地:大阪府大阪市淀川区西中島3-18-9 新大阪日大ビル2階
TEL:0800-1237805
取引態様:仲介
管理コード:HC2-3785808-408-0246
所属協会など:(公社)首都圏不動産公正取引協議会加盟、(公財)日本賃貸住宅管理協会会員
共有する
QRコード
お問い合わせ先
ミニミニFC西中島南方店大阪ハウスコム(株)

    大阪市西区の暮らしデータ

    人口などの統計情報

    世帯数 1464615世帯
    人口総数 2757642人
    転入者数 225000人
    転入率(人口1000人当たり)
    81.59人
    転出者数 188180人
    転出率(人口1000人当たり)
    68.24人
    土地平均価格
    住宅地
    270839円/m2
    商業地
    1966607円/m2

    結婚・育児の助成金

    子育て関連の独自の取り組み (1)子ども・子育てプラザ(在宅での子育て家庭や地域での子育て活動を支援し、また乳幼児期の親子や子育て支援者、就学期の子どもが集い交流する機会を提供する等、地域福祉活動の推進を図る)。(2)習い事・塾代助成事業(学習塾や家庭教師、文化・スポーツ教室等学校外教育にかかる費用を、1人当たり月額1万円まで助成。所得制限あり)。
    出産祝い なし
    公立保育所数 53所(うち0歳児保育を実施している保育所:52所)
    私立保育所数 395所(うち0歳児保育を実施している保育所:385所)
    保育所入所待機児童数 2人
    認定こども園数 117園 預かり保育実施園数 公立:52園 私立:-
    学校給食 【小学校】完全給食【中学校】完全給食
    公立中学校の学校選択制 実施
    子ども・学生等医療費助成<通院>対象年齢 18歳3月末まで 子ども・学生等医療費助成<入院>対象年齢 18歳3月末まで

    大阪市西区の治安・ごみ収集情報

    公共料金・インフラ

    ガス料金(22m3使用した場合の月額) 大阪瓦斯株式会社4544円
    水道料金(口径20mmで20m3の月額) 大阪市2112円
    下水道料金(20m3を使用した場合の月額) 大阪市1276円
    下水道普及率 100.0%

    安心・安全

    建物火災出火件数 553件
    人口10000人当たり
    2.01件
    刑法犯認知件数 39408件
    人口1000人当たり
    14.32件
    ハザード・防災マップ あり

    医療

    一般病院総数 170ヶ所
    一般診療所総数 3734ヶ所
    小児科医師数 659人
    小児人口10000人当たり
    22.80人
    産婦人科医師数 380人
    15~49歳女性人口1万人当たり
    6.15人
    介護保険料基準額(月額) 9249円

    ごみ

    家庭ごみ収集(可燃ごみ) 無料
    備考
    -
    家庭ごみの分別方式 4分別11種〔普通ごみ(普通ごみ、危険ごみ[竹串、ガラス片、カミソリの刃]) 資源ごみ(空き缶・空きびん・金属製の生活用品・ペットボトル、スプレー缶・カセットボンベ) 容器包装プラスチック 古紙・衣類(新聞紙・折込チラシ、段ボール、紙パック、雑誌、衣類、その他の紙類)〕
    家庭ごみの戸別収集 一部実施(【ふれあい収集】65歳以上の一人暮らしの高齢者または高齢者だけの世帯、障がいがある方が居住される家庭で、ごみ出しが困難な人が対象)
    粗大ごみ収集 あり
    備考
    有料。戸別収集。事前申込制。申込時に収集日を決定。
    生ごみ処理機助成金制度 なし
    上限金額
    -
    上限比率
    -
    暮らしデータ提供元:生活ガイド.com
    ※行政機関により公表していない地域及びデータがございます。東京23区以外の政令指定都市は、市全体のデータとして表示しています。
    ※提供データには細心の注意を払っておりますが、調査後に変更がある場合があります。 最新の情報につきましては各市区役所までお問い合わせいただくか、自治体HPなどをご確認ください。
    OCN×ドコモ光新規お申込みで合計最大137,280円相当おトク!特典の内訳・適用条件など詳細はこちら

    大阪市西区内の各駅の住みやすさ

    他のエリアから探す

    大阪市西区の詳細地域から賃貸物件を探す

    安治川阿波座立売堀靱本町江戸堀江之子島川口北堀江京町堀九条九条南境川新町千代崎土佐堀西本町本田南堀江

    近辺の市区から探す

    大阪市都島区大阪市福島区大阪市此花区大阪市港区大阪市大正区大阪市天王寺区大阪市浪速区大阪市西淀川区大阪市東淀川区大阪市東成区大阪市生野区大阪市旭区大阪市城東区大阪市阿倍野区大阪市住吉区大阪市東住吉区大阪市西成区大阪市淀川区大阪市鶴見区大阪市住之江区大阪市平野区大阪市北区大阪市中央区堺市堺区堺市北区吹田市守口市八尾市松原市東大阪市

    周辺の駅から探す

    大阪環状線
    大阪福島野田西九条弁天町大正芦原橋今宮新今宮
    大阪市中央線
    コスモスクエア大阪港朝潮橋弁天町九条阿波座本町堺筋本町谷町四丁目

    大阪府大阪市西区で他のジャンルから探す


    掲載情報の著作権は提供元企業等に帰属します。
    Copyright:(C) 2025 Recruit Co., Ltd.
    アプリで簡単 物件探し 大手不動産サイトの情報から一括検!プッシュ通知で物件を見逃さない
    App Storeからダウンロード Google Playで手に入れよう QRコード