アプリで簡単 物件探し 通知 共有 アプリならではの機能を使ってみる
賃貸マンション

Alivis福島海老江(旧:フォーリアライズ福島ルノン) 海老江駅 1K 賃貸(賃貸マンション・アパート)

情報提供元
SUUMO
Alivis福島海老江(旧:フォーリアライズ福島ルノン)
賃料 7.5万円  (管理費等:10000円)
礼金・敷金 なし / なし 保証金/敷引・償却 なし / -
交通
所在地 大阪府大阪市福島区海老江6周辺地図
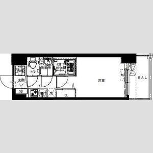
間取り 1K 専有面積 21.38m2
築年月 2025年6月 築年数 新築
おすすめポイント
成約者特典BOOKOFF買取価格10%UP(景品限度額内) 荷物を注文する時に時間を気にしなくてよくなる宅配ボックスを共用部に備え付けております。セキュリティ面は、TVインターホン・オートロックなど充実しているので、防犯対策もばっちりです。
お問い合わせ先
ミニミニFC天六店大阪ハウスコム(株)
お問い合わせ先
ミニミニFC天六店大阪ハウスコム(株)

詳細情報

賃料 7.5万円 管理費等 10000円
敷金 なし 礼金 なし
保証金 なし 敷引・償却 -
更新料 - 契約期間
カード決済 -
所在地 大阪府大阪市福島区海老江6周辺地図
交通
建物名 Alivis福島海老江(旧:フォーリアライズ福島ルノン) 
間取り 1K(洋6.7) 築年月(築年数) 2025年6月 新築
専有面積 21.38㎡ 所在階/階数 11階/12階建
建物構造 RC  方位 南東 
現況   駐車場 有 24,200円
入居可能時期 即時 住宅保険 あり 2年 18000円
情報提供元 SUUMO[060H100450185957] 情報公開日
情報更新日 次回更新予定日 随時

設備など

2階以上 最上階 - 角部屋 -
駐車場(近隣含) エアコン付き バス・トイレ別
室内洗濯機置き場 追焚機能 - オートロック付き
モニタ付インターホン フローリング バルコニー
ガスコンロ可 浴室乾燥機 24時間セキュリティ -
宅配ボックス ペット相談可 二人入居可 -
設備 冷房・暖房・エアコン・オートロック・バルコニー・バス・トイレ別・トイレ・収納スペース・洗濯機置場・洗面所・エレベーター・フローリング・浴室乾燥機・ガスコンロ可・シャンプードレッサ・温水洗浄便座・システムキッチン・モニタ付インターホン・宅配BOX・駐輪場・クローゼット・衣類乾燥機・都市ガス・ディンプルキー・浴トイレ別・防犯カメラ・洗面所独立・バイク置き場・コンロ2口以上・シューズボックス・インターネット無料・インターネット対応・室内洗濯機置き場 
リフォーム履歴 -
リノベーション履歴 -
備考 鍵交換代2.75万円/更新料 賃料1.00ヶ月分 室内清掃費用 33000円 バイク置場2200円/月/保証会社利用必:初回保証料30%・更新料1万円/年、口振手数料330円(税込)/ペット相談/事務所利用不可/ルームシェア不可/平置駐/【退去時費用】清掃代1K:3.3万円(税込)、鍵交換代2.75万円(税込)、AC清掃代1.65万円(税込)/台 【違約金】1年未満の解約は総賃料1ヶ月 【ペット】礼金1ヶ月必要 【法人契約】保証会社未加入の場合は敷金・礼金1ヶ月分必要 【更新料】あり(新賃料の1ヶ月分)/バストイレ別/バルコニー/エアコン/ガスコンロ対応/クロゼット/フローリング/シャワー付洗面台/TVインターホン/浴室乾燥機/オートロック/室内洗濯置/シューズボックス/システムキッチン/温水洗浄便座/脱衣所/エレベーター/洗面所独立/洗面化粧台/2口コンロ/駐輪場/宅配ボックス/即入居可/敷金不要/防犯カメラ/ペット相談/保証人不要/単身者相談/駐車2台可/バイク置場/2沿線利用可/ディンプルキー/ネット使用料不要/眺望良好/ダブルロックキー/築2年以内/24時間換気システム/築3年以内/人感照明センサー/浴室未使用/トイレ未使用/駐車3台可/未入居/駐車5台以上/駐車4台可/2駅利用可/3駅以上利用可/3沿線以上利用可/駅徒歩10分以内/敷地内ごみ置き場/築5年以内/平面駐車場/東南向き/防犯モデルマンション/キッチン未使用/都市ガス/洗面所にドア/年内入居可/年度内入居可/IT重説 対応物件/通風良好/巡回管理/食品館アプロ 海老江FESTA店(スーパー)まで505m/イオンスタイル海老江(スーパー)まで599m/スーパーマルハチ 大開店(スーパー)まで1028m/イオン 野田阪神店(スーパー)まで835m/KOHYO(コーヨー) 鷺洲店(スーパー)まで1077m/ファミリーマート 福島海老江店(コンビニ)まで709m 
特記事項 ペット相談可・駐車場3台分以上・管理人巡回・保証人不要/代行

省エネ性能

エネルギー消費性能 -
断熱性能 -
目安光熱費 -

大阪府大阪市福島区海老江6 周辺地図情報

地図
※地図上に表示される物件の位置は付近住所に所在することを表すものであり、実際の物件所在地とは異なる場合がございます。
   正確な物件所在地は、取扱い不動産会社にお問い合わせください。
お問い合わせ先
ミニミニFC天六店大阪ハウスコム(株)

不動産会社情報

お問い合わせ先 商号:ミニミニFC天六店大阪ハウスコム(株)
免許番号:国土交通大臣(3)第8685号
所在地:大阪府大阪市北区国分寺2-1-14 ACOM天六ビル1階
TEL:0800-1237810
取引態様:仲介
管理コード:HC2-5035900-1103-0248
所属協会など:(公社)首都圏不動産公正取引協議会加盟、(公財)日本賃貸住宅管理協会会員
共有する
QRコード
お問い合わせ先
ミニミニFC天六店大阪ハウスコム(株)

    大阪市福島区の暮らしデータ

    人口などの統計情報

    世帯数 1464615世帯
    人口総数 2757642人
    転入者数 225000人
    転入率(人口1000人当たり)
    81.59人
    転出者数 188180人
    転出率(人口1000人当たり)
    68.24人
    土地平均価格
    住宅地
    270839円/m2
    商業地
    1966607円/m2

    結婚・育児の助成金

    子育て関連の独自の取り組み (1)子ども・子育てプラザ(在宅での子育て家庭や地域での子育て活動を支援し、また乳幼児期の親子や子育て支援者、就学期の子どもが集い交流する機会を提供する等、地域福祉活動の推進を図る)。(2)習い事・塾代助成事業(学習塾や家庭教師、文化・スポーツ教室等学校外教育にかかる費用を、1人当たり月額1万円まで助成。所得制限あり)。
    出産祝い なし
    公立保育所数 53所(うち0歳児保育を実施している保育所:52所)
    私立保育所数 395所(うち0歳児保育を実施している保育所:385所)
    保育所入所待機児童数 2人
    認定こども園数 117園 預かり保育実施園数 公立:52園 私立:-
    学校給食 【小学校】完全給食【中学校】完全給食
    公立中学校の学校選択制 実施
    子ども・学生等医療費助成<通院>対象年齢 18歳3月末まで 子ども・学生等医療費助成<入院>対象年齢 18歳3月末まで

    大阪市福島区の治安・ごみ収集情報

    公共料金・インフラ

    ガス料金(22m3使用した場合の月額) 大阪瓦斯株式会社4544円
    水道料金(口径20mmで20m3の月額) 大阪市2112円
    下水道料金(20m3を使用した場合の月額) 大阪市1276円
    下水道普及率 100.0%

    安心・安全

    建物火災出火件数 553件
    人口10000人当たり
    2.01件
    刑法犯認知件数 39408件
    人口1000人当たり
    14.32件
    ハザード・防災マップ あり

    医療

    一般病院総数 170ヶ所
    一般診療所総数 3734ヶ所
    小児科医師数 659人
    小児人口10000人当たり
    22.80人
    産婦人科医師数 380人
    15~49歳女性人口1万人当たり
    6.15人
    介護保険料基準額(月額) 9249円

    ごみ

    家庭ごみ収集(可燃ごみ) 無料
    備考
    -
    家庭ごみの分別方式 4分別11種〔普通ごみ(普通ごみ、危険ごみ[竹串、ガラス片、カミソリの刃]) 資源ごみ(空き缶・空きびん・金属製の生活用品・ペットボトル、スプレー缶・カセットボンベ) 容器包装プラスチック 古紙・衣類(新聞紙・折込チラシ、段ボール、紙パック、雑誌、衣類、その他の紙類)〕
    家庭ごみの戸別収集 一部実施(【ふれあい収集】65歳以上の一人暮らしの高齢者または高齢者だけの世帯、障がいがある方が居住される家庭で、ごみ出しが困難な人が対象)
    粗大ごみ収集 あり
    備考
    有料。戸別収集。事前申込制。申込時に収集日を決定。
    生ごみ処理機助成金制度 なし
    上限金額
    -
    上限比率
    -
    暮らしデータ提供元:生活ガイド.com
    ※行政機関により公表していない地域及びデータがございます。東京23区以外の政令指定都市は、市全体のデータとして表示しています。
    ※提供データには細心の注意を払っておりますが、調査後に変更がある場合があります。 最新の情報につきましては各市区役所までお問い合わせいただくか、自治体HPなどをご確認ください。
    OCN×ドコモ光新規お申込みで合計最大137,280円相当おトク!特典の内訳・適用条件など詳細はこちら

    大阪市福島区内の各駅の住みやすさ

    他のエリアから探す

    大阪市福島区の詳細地域から賃貸物件を探す

    海老江大開鷺洲玉川野田福島吉野

    近辺の市区から探す

    大阪市都島区大阪市此花区大阪市西区大阪市港区大阪市大正区大阪市天王寺区大阪市浪速区大阪市西淀川区大阪市東淀川区大阪市東成区大阪市生野区大阪市旭区大阪市城東区大阪市阿倍野区大阪市住吉区大阪市東住吉区大阪市西成区大阪市淀川区大阪市鶴見区大阪市住之江区大阪市平野区大阪市北区大阪市中央区豊中市吹田市守口市門真市摂津市東大阪市伊丹市

    周辺の駅から探す

    JR東西線
    大阪城北詰大阪天満宮北新地新福島海老江御幣島加島尼崎
    大阪市千日前線
    野田阪神玉川阿波座西長堀桜川
    阪神電鉄本線
    大阪梅田福島野田淀川姫島千船杭瀬大物

    大阪府大阪市福島区で他のジャンルから探す


    掲載情報の著作権は提供元企業等に帰属します。
    Copyright:(C) 2025 Recruit Co., Ltd.
    アプリで簡単 物件探し 大手不動産サイトの情報から一括検!プッシュ通知で物件を見逃さない
    App Storeからダウンロード Google Playで手に入れよう QRコード