アプリで簡単 物件探し 通知 共有 アプリならではの機能を使ってみる
テラスハウス

南垣内貸家 東向日駅 4DK 賃貸(賃貸マンション・アパート)

情報提供元
SUUMO
南垣内貸家
賃料 6.8万円  (管理費等:なし)
礼金・敷金 なし / なし 保証金/敷引・償却 10万円 / -
交通
所在地 京都府向日市寺戸町南垣内周辺地図
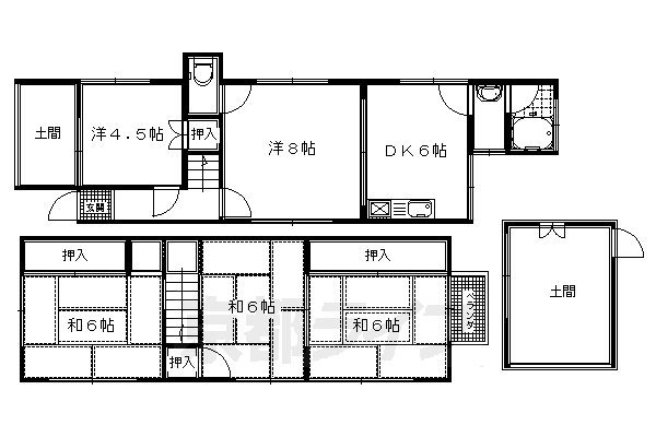
間取り 4DK 専有面積 82.5m2
築年月 1981年7月 築年数 築44年5ヶ月
おすすめポイント
ペット相談可能! 一戸建て、貸家、都市ガス、ペット相談可能 物件情報からエリア情報まで京都の賃貸物件紹介はお任せください!
お問い合わせ先
(株)京都ライフ四条烏丸店
お問い合わせ先
(株)京都ライフ四条烏丸店

詳細情報

賃料 6.8万円 管理費等 なし
敷金 なし 礼金 なし
保証金 10万円 敷引・償却 -
更新料 - 契約期間
カード決済 -
所在地 京都府向日市寺戸町南垣内周辺地図
交通
建物名 南垣内貸家 
間取り 4DK(和6 和6 和6 洋8 DK6) 築年月(築年数) 1981年7月(築44年5ヶ月)
専有面積 82.5㎡ 所在階/階数 1階/2階建
建物構造 木造  方位 東 
現況   駐車場 無    近くの駐車場を探す
入居可能時期 即時 住宅保険 あり 2年 23000円
情報提供元 SUUMO[060H100469834868] 情報公開日
情報更新日 次回更新予定日 随時

設備など

2階以上 - 最上階 - 角部屋 -
駐車場(近隣含) - エアコン付き - バス・トイレ別
室内洗濯機置き場 - 追焚機能 - オートロック付き -
モニタ付インターホン - フローリング - バルコニー
ガスコンロ可 浴室乾燥機 - 24時間セキュリティ -
宅配ボックス - ペット相談可 二人入居可
設備 バルコニー・バス・トイレ別・トイレ・収納スペース・洗面所・ガスコンロ可・駐輪場・都市ガス・浴トイレ別・洗面所独立 
リフォーム履歴 -
リノベーション履歴 -
備考 償却金10万円/書類代1.1万円/保証会社利用必:初回:月額賃料等の80%、更新時:1万円/1年/二人入居可/子供可/ペット相談/楽器相談/駐車場近隣確保:7000円 更新料:無 更新手数料:22000円/バストイレ別/バルコニー/ガスコンロ対応/脱衣所/洗面所独立/駐輪場/押入/即入居可/礼金不要/敷金不要/ペット相談/二人入居相談/楽器相談/3駅以上利用可/駅徒歩10分以内/和室/全居室6畳以上/都市ガス/IT重説 対応物件/向日市図書館(その他)まで200m/セブンイレブン向日梅ノ木店(コンビニ)まで400m/向日市役所(役所)まで450m/東向日駅(その他)まで650m/向日町駅(その他)まで1300m/洛西口駅(その他)まで1600m/JR東海道本線桂川駅徒歩29分/賃貸戸数:3戸 
特記事項 ペット相談可・楽器相談・二人入居可

省エネ性能

エネルギー消費性能 -
断熱性能 -
目安光熱費 -

京都府向日市寺戸町南垣内 周辺地図情報

地図
※地図上に表示される物件の位置は付近住所に所在することを表すものであり、実際の物件所在地とは異なる場合がございます。
   正確な物件所在地は、取扱い不動産会社にお問い合わせください。
お問い合わせ先
(株)京都ライフ四条烏丸店

不動産会社情報

お問い合わせ先 商号:(株)京都ライフ四条烏丸店
免許番号:京都府知事(11)第6353号
所在地:京都府京都市下京区四条通新町東入月鉾町 47-15
TEL:075-256-5115
取引態様:仲介
管理コード:K21500-xx
所属協会など:(公社)近畿地区不動産公正取引協議会加盟、(公社)京都府宅地建物取引業協会会員
共有する
QRコード
お問い合わせ先
(株)京都ライフ四条烏丸店

    向日市の暮らしデータ

    人口などの統計情報

    世帯数 23510世帯
    人口総数 56571人
    転入者数 2163人
    転入率(人口1000人当たり)
    38.24人
    転出者数 2204人
    転出率(人口1000人当たり)
    38.96人
    土地平均価格
    住宅地
    207000円/m2
    商業地
    427000円/m2

    結婚・育児の助成金

    子育て関連の独自の取り組み 向日市児童福祉手当支給制度。
    出産祝い なし
    公立保育所数 3所(うち0歳児保育を実施している保育所:3所)
    私立保育所数 5所(うち0歳児保育を実施している保育所:5所)
    保育所入所待機児童数 0人
    認定こども園数 2園 預かり保育実施園数 公立:- 私立:3園
    学校給食 【小学校】完全給食【中学校】完全給食
    公立中学校の学校選択制 実施(希望校制度。新入学時又は他市区町村からの転入時のみ)
    子ども・学生等医療費助成<通院>対象年齢 中学校卒業まで 子ども・学生等医療費助成<入院>対象年齢 18歳3月末まで

    向日市の治安・ごみ収集情報

    公共料金・インフラ

    ガス料金(22m3使用した場合の月額) 大阪瓦斯株式会社4544円
    水道料金(口径20mmで20m3の月額) 向日市3096円
    下水道料金(20m3を使用した場合の月額) 向日市2266円
    下水道普及率 100.0%

    安心・安全

    建物火災出火件数 4件
    人口10000人当たり
    0.70件
    刑法犯認知件数 242件
    人口1000人当たり
    4.26件
    ハザード・防災マップ あり

    医療

    一般病院総数 1ヶ所
    一般診療所総数 48ヶ所
    小児科医師数 8人
    小児人口10000人当たり
    10.62人
    産婦人科医師数 6人
    15~49歳女性人口1万人当たり
    5.42人
    介護保険料基準額(月額) 6125円

    ごみ

    家庭ごみ収集(可燃ごみ) 無料
    備考
    指定ごみ袋は有料だが、袋代にごみ収集・処理料金等を含まず。
    家庭ごみの分別方式 2分別11種〔もやすごみ 資源ごみ(空缶、スプレー缶、空ビン、ペットボトル、その他不燃物、その他プラスチック、有害ごみ)〕拠点回収:資源ごみ(空缶、空ビン、ペットボトル、紙類[新聞、雑紙、段ボール、布類])
    家庭ごみの戸別収集 実施(基本的に戸別回収を行っているが、塵芥車が入れない一部地域で集団回収を実施)
    粗大ごみ収集 あり
    備考
    有料。事前申込制。手数料処理券が必要(500円~3,000円/点)。
    生ごみ処理機助成金制度 あり
    上限金額
    10000円
    上限比率
    50.0%
    暮らしデータ提供元:生活ガイド.com
    ※行政機関により公表していない地域及びデータがございます。東京23区以外の政令指定都市は、市全体のデータとして表示しています。
    ※提供データには細心の注意を払っておりますが、調査後に変更がある場合があります。 最新の情報につきましては各市区役所までお問い合わせいただくか、自治体HPなどをご確認ください。
    OCN×ドコモ光新規お申込みで合計最大137,280円相当おトク!特典の内訳・適用条件など詳細はこちら

    向日市内の各駅の住みやすさ

    他のエリアから探す

    向日市の詳細地域から賃貸物件を探す

    鶏冠井町上植野町寺戸町向日町物集女町森本町

    近辺の市区から探す

    京都市北区京都市上京区京都市中京区京都市東山区京都市下京区京都市南区京都市右京区京都市伏見区京都市山科区京都市西京区宇治市城陽市長岡京市八幡市乙訓郡大山崎町久世郡久御山町三島郡島本町

    周辺の駅から探す

    東海道本線
    山科京都西大路桂川向日町長岡京山崎島本高槻
    阪急電鉄京都線
    西院西京極洛西口東向日西向日長岡天神西山天王山大山崎

    京都府向日市で他のジャンルから探す


    掲載情報の著作権は提供元企業等に帰属します。
    Copyright:(C) 2025 Recruit Co., Ltd.
    アプリで簡単 物件探し 大手不動産サイトの情報から一括検!プッシュ通知で物件を見逃さない
    App Storeからダウンロード Google Playで手に入れよう QRコード