アプリで簡単 物件探し 通知 共有 アプリならではの機能を使ってみる
賃貸マンション

京都府亀岡市大井町土田1 並河駅 3LDK 賃貸(賃貸マンション・アパート)

情報提供元
SUUMO
賃料 6.8万円  (管理費等:4000円)
礼金・敷金 10万円 / 15万円 保証金/敷引・償却 なし / -
交通
所在地 京都府亀岡市大井町土田1周辺地図
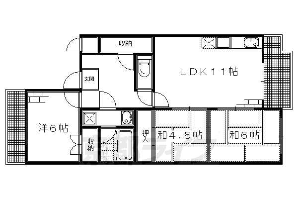
間取り 3LDK 専有面積 65.68m2
築年月 1993年3月 築年数 築32年10ヶ月
おすすめポイント
スーパー・コンビニ徒歩圏 生活施設が徒歩圏内にあり充実しております。 物件情報からエリア情報まで京都の賃貸物件紹介はお任せください!
お問い合わせ先
(株)京都ライフ三条烏丸店
お問い合わせ先
(株)京都ライフ三条烏丸店

詳細情報

賃料 6.8万円 管理費等 4000円
敷金 15万円 礼金 10万円
保証金 なし 敷引・償却 -
更新料 - 契約期間
カード決済 -
所在地 京都府亀岡市大井町土田1周辺地図
交通
建物名  
間取り 3LDK(和6 和4.5 洋6 LDK11) 築年月(築年数) 1993年3月(築32年10ヶ月)
専有面積 65.68㎡ 所在階/階数 2階/3階建
建物構造 RC  方位 東 
現況   駐車場 有 6,600円
入居可能時期 即時 住宅保険 あり 2年 26000円
情報提供元 SUUMO[060H100469835491] 情報公開日
情報更新日 次回更新予定日 随時

設備など

2階以上 最上階 - 角部屋 -
駐車場(近隣含) エアコン付き バス・トイレ別
室内洗濯機置き場 追焚機能 - オートロック付き -
モニタ付インターホン - フローリング バルコニー
ガスコンロ可 浴室乾燥機 - 24時間セキュリティ -
宅配ボックス - ペット相談可 - 二人入居可 -
設備 冷房・暖房・エアコン・バルコニー・バス・トイレ別・トイレ・収納スペース・洗濯機置場・洗面所・フローリング・ガスコンロ可・駐輪場・プロパンガス・浴トイレ別・洗面所独立・バイク置き場・インターネット対応・室内洗濯機置き場 
リフォーム履歴 -
リノベーション履歴 -
備考 更新料:無/バストイレ別/バルコニー/エアコン/ガスコンロ対応/フローリング/室内洗濯置/脱衣所/洗面所独立/駐輪場/押入/光ファイバー/即入居可/二人入居相談/バイク置場/3駅以上利用可/駅徒歩10分以内/和室/プロパンガス/IT重説 対応物件/ミニストップ亀岡大井町土田店(コンビニ)まで130m/来来亭 亀岡店(飲食店)まで170m/大成中学校(中学校)まで270m/京都銀行 大井支店(銀行)まで350m/スーパーマツモト 大井店(スーパー)まで450m/亀岡市立図書館 大井分館(その他)まで550m/賃貸戸数:12戸 
特記事項

省エネ性能

エネルギー消費性能 -
断熱性能 -
目安光熱費 -

京都府亀岡市大井町土田1 周辺地図情報

地図
※地図上に表示される物件の位置は付近住所に所在することを表すものであり、実際の物件所在地とは異なる場合がございます。
   正確な物件所在地は、取扱い不動産会社にお問い合わせください。
お問い合わせ先
(株)京都ライフ三条烏丸店

不動産会社情報

お問い合わせ先 商号:(株)京都ライフ三条烏丸店
免許番号:京都府知事(11)第6353号
所在地:京都府京都市中京区三条通烏丸東入梅忠町 24 三条COHJUBLDG1階
TEL:075-213-7200
取引態様:仲介
管理コード:K75238-205
所属協会など:(公社)近畿地区不動産公正取引協議会加盟、(公社)京都府宅地建物取引業協会会員
共有する
QRコード
お問い合わせ先
(株)京都ライフ三条烏丸店

    亀岡市の暮らしデータ

    人口などの統計情報

    世帯数 34370世帯
    人口総数 86765人
    転入者数 2841人
    転入率(人口1000人当たり)
    32.74人
    転出者数 2615人
    転出率(人口1000人当たり)
    30.14人
    土地平均価格
    住宅地
    73709円/m2
    商業地
    111100円/m2

    結婚・育児の助成金

    子育て関連の独自の取り組み (1)子どもと子育てを頑張る人を本気で応援する「子どもファースト」を宣言し、こども医療費18歳まで拡大と無償化、保育料第2子以降全て無償化、保育所(園)・幼稚園・こども園でおむつの提供・処理の無償化、放課後児童クラブの一家庭2人目以降無償化・平日午後7時まで延長・土日祝日の実施について、所得制限なく実施。(2)生涯学習施設ガレリアかめおか内に、室内あそびば「かめまるランド」と屋外あそびば「芝生ひろば」「あおぞらひろば」を備えた「ガレリアあそびの森」を、亀岡駅北のサンガスタジアムbyKYOCERA内に、木育ひろば「KIRInoKO」を開設するなど、多様な子どもファースト事業を展開。
    出産祝い あり
    公立保育所数 5所(うち0歳児保育を実施している保育所:4所)
    私立保育所数 6所(うち0歳児保育を実施している保育所:6所)
    保育所入所待機児童数 10人
    認定こども園数 6園 預かり保育実施園数 公立:1園 私立:4園
    学校給食 【小学校】完全給食【中学校】家庭弁当等との選択制/デリバリー形式[運搬:ランチボックス]
    公立中学校の学校選択制 未実施
    子ども・学生等医療費助成<通院>対象年齢 18歳3月末まで 子ども・学生等医療費助成<入院>対象年齢 18歳3月末まで

    亀岡市の治安・ごみ収集情報

    公共料金・インフラ

    ガス料金(22m3使用した場合の月額) 大阪瓦斯株式会社4544円
    水道料金(口径20mmで20m3の月額) 亀岡市2310円
    下水道料金(20m3を使用した場合の月額) 亀岡市2970円
    下水道普及率 86.8%

    安心・安全

    建物火災出火件数 10件
    人口10000人当たり
    1.16件
    刑法犯認知件数 222件
    人口1000人当たり
    2.58件
    ハザード・防災マップ あり

    医療

    一般病院総数 4ヶ所
    一般診療所総数 65ヶ所
    小児科医師数 16人
    小児人口10000人当たり
    15.49人
    産婦人科医師数 3人
    15~49歳女性人口1万人当たり
    1.91人
    介護保険料基準額(月額) 5800円

    ごみ

    家庭ごみ収集(可燃ごみ) 有料
    備考
    指定ごみ袋有料。
    家庭ごみの分別方式 3分別17種〔可燃ごみ 埋立てごみ 資源ごみ(プラスチック、ペットボトル、ライター、乾電池、空きカン・スプレー缶、空きビン[無色、茶色、その他の色]、紙類[新聞紙、雑誌、段ボール、雑紙、シュレッダー紙]、草・木類、小型金属類)〕 拠点回収:使用済小型家電 インクカートリッジ 水銀体温計 水銀血圧計 ステンレスボトル 蛍光灯 アルミ付紙パック
    家庭ごみの戸別収集 一部実施(亀岡市ふれあい収集事業[高齢者等向け事業]を実施)
    粗大ごみ収集 あり
    備考
    有料。事前申込制。粗大ごみ処理手数料納入済証(プリペイドシール)の事前購入と電話またはネットでの申し込みが必要。
    生ごみ処理機助成金制度 あり
    上限金額
    20000円
    上限比率
    50.0%
    暮らしデータ提供元:生活ガイド.com
    ※行政機関により公表していない地域及びデータがございます。東京23区以外の政令指定都市は、市全体のデータとして表示しています。
    ※提供データには細心の注意を払っておりますが、調査後に変更がある場合があります。 最新の情報につきましては各市区役所までお問い合わせいただくか、自治体HPなどをご確認ください。
    OCN×ドコモ光新規お申込みで合計最大137,280円相当おトク!特典の内訳・適用条件など詳細はこちら

    亀岡市内の各駅の住みやすさ

    他のエリアから探す

    亀岡市の詳細地域から賃貸物件を探す

    余部町荒塚町内丸町宇津根町追分町大井町かすみケ丘大井町小金岐大井町土田大井町並河亀岡駅北河原町北河原町北古世町北町京町古世町塩屋町篠町馬堀篠町馬堀駅前篠町王子篠町柏原篠町篠篠町浄法寺篠町野条篠町広田篠町見晴篠町森篠町山本下矢田町新町曽我部町重利曽我部町寺曽我部町南条千代川町明晴千代川町今津千代川町小川千代川町小林千代川町高野林千代川町千原千代川町湯井突抜町中矢田町南郷町西つつじケ丘雲仙台西つつじケ丘五月台西町畑野町千ケ畑畑野町広野稗田野町柿花東竪町東つつじケ丘曙台東つつじケ丘都台本町本梅町東加舎南つつじケ丘桜台三宅町安町柳町横町吉川町吉田

    近辺の市区から探す

    京都市右京区京都市西京区豊能郡豊能町

    周辺の駅から探す

    山陰本線
    嵯峨嵐山保津峡馬堀亀岡並河千代川八木吉富園部

    京都府亀岡市で他のジャンルから探す


    掲載情報の著作権は提供元企業等に帰属します。
    Copyright:(C) 2025 Recruit Co., Ltd.
    アプリで簡単 物件探し 大手不動産サイトの情報から一括検!プッシュ通知で物件を見逃さない
    App Storeからダウンロード Google Playで手に入れよう QRコード