アプリで簡単 物件探し 通知 共有 アプリならではの機能を使ってみる
賃貸マンション

パヴォーネ植物園 北山駅 3LDK 賃貸(賃貸マンション・アパート)

情報提供元
SUUMO
パヴォーネ植物園 建物外観です。
賃料 12.2万円  (管理費等:9000円)
礼金・敷金 2ヶ月 / 1ヶ月 保証金/敷引・償却 なし / -
交通
所在地 京都府京都市北区上賀茂岩ケ垣内町周辺地図
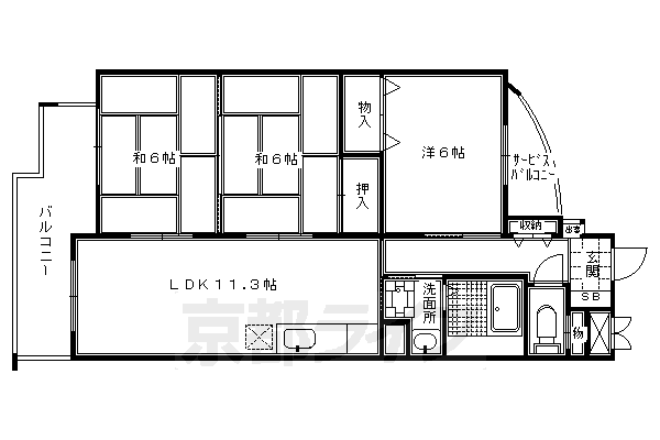
間取り 3LDK 専有面積 66.17m2
築年月 2000年2月 築年数 築25年10ヶ月
おすすめポイント
環境良好、北山 北山駅近。納充実、2面バルコニー。 物件情報からエリア情報まで京都の賃貸物件紹介はお任せください!

詳細情報

賃料 12.2万円 管理費等 9000円
敷金 1ヶ月 礼金 2ヶ月
保証金 なし 敷引・償却 -
更新料 - 契約期間
カード決済 -
所在地 京都府京都市北区上賀茂岩ケ垣内町周辺地図
交通
建物名 パヴォーネ植物園 
間取り 3LDK(和6 和6 洋6 LDK11.3) 築年月(築年数) 2000年2月(築25年10ヶ月)
専有面積 66.17㎡ 所在階/階数 1階/3階建
建物構造 RC  方位 南 
現況   駐車場 有 16,500円
入居可能時期 2025年11月下旬 住宅保険 あり 2年 11400円
情報提供元 SUUMO[060H100470823403] 情報公開日
情報更新日 次回更新予定日 随時

設備など

2階以上 - 最上階 - 角部屋 -
駐車場(近隣含) エアコン付き - バス・トイレ別
室内洗濯機置き場 追焚機能 - オートロック付き
モニタ付インターホン - フローリング - バルコニー
ガスコンロ可 浴室乾燥機 - 24時間セキュリティ -
宅配ボックス ペット相談可 - 二人入居可
設備 オートロック・バルコニー・バス・トイレ別・トイレ・収納スペース・洗濯機置場・洗面所・BS端子・ガスコンロ可・宅配BOX・駐輪場・都市ガス・浴トイレ別・洗面所独立・バイク置き場・室内洗濯機置き場 
リフォーム履歴 -
リノベーション履歴 -
備考 書類代1.1万円/保証会社利用必:初回:月額賃料等の40%、更新時:1.4万円/1年/二人入居可/子供可/楽器相談/更新料:新家賃1ヶ月/バストイレ別/バルコニー/ガスコンロ対応/オートロック/室内洗濯置/南向き/洗面所独立/駐輪場/宅配ボックス/押入/敷金1ヶ月/二人入居相談/バイク置場/楽器相談/3駅以上利用可/駅徒歩5分以内/和室/全居室6畳以上/都市ガス/BS/年内入居可/礼金2ヶ月/IT重説 対応物件/巡回管理/セブンイレブン 上賀茂榊田町店(コンビニ)まで244m/京都信用金庫 北山支店(銀行)まで278m/京都北山郵便局(郵便局)まで354m/生鮮館なかむら 上賀茂店(スーパー)まで518m/京都ノートルダム女子大学(大学・短大)まで676m/京都府立大学(大学・短大)まで867m/賃貸戸数:12戸 
特記事項 楽器相談・二人入居可・管理人巡回

省エネ性能

エネルギー消費性能 -
断熱性能 -
目安光熱費 -

京都府京都市北区上賀茂岩ケ垣内町 周辺地図情報

地図
※地図上に表示される物件の位置は付近住所に所在することを表すものであり、実際の物件所在地とは異なる場合がございます。
   正確な物件所在地は、取扱い不動産会社にお問い合わせください。

不動産会社情報

お問い合わせ先 商号:(株)京都ライフ小倉店
免許番号:京都府知事(11)第6353号
所在地:京都府宇治市小倉町 神楽田21-5 アーパネックス小倉ビル1階
TEL:0774-25-6500
取引態様:仲介
管理コード:K28991-101
所属協会など:(公社)近畿地区不動産公正取引協議会加盟、(公社)京都府宅地建物取引業協会会員
共有する
QRコード

京都市北区の暮らしデータ

人口などの統計情報

世帯数 728744世帯
人口総数 1379529人
転入者数 85315人
転入率(人口1000人当たり)
61.84人
転出者数 80567人
転出率(人口1000人当たり)
58.40人
土地平均価格
住宅地
220880円/m2
商業地
1290411円/m2

結婚・育児の助成金

子育て関連の独自の取り組み (1)乳幼児の子育て支援機能や学童クラブ機能等を有する児童館設置。(2)こんにちはプレママ事業。(3)児童虐待未然防止に係る医療機関と子どもはぐくみ室及び京北出張所の連携。(4)子ども保健医療相談・事故防止センター設置。(5)京都はぐくみアプリ配信。(6)子育て支援コンシェルジュ育成。(7)骨髄移植手術等により免疫を喪失した子どもへのワクチン再接種費用助成制度。(8)子どもを共に育む京都市民憲章の制定、憲章の実践・普及の促進。(9)【京都安心すまい応援金】未就学の子どもがいる世帯を対象に、自己居住用として既存住宅を購入し、リフォームを行う場合に、最大200万円の応援金を交付。
出産祝い あり
公立保育所数 14所(うち0歳児保育を実施している保育所:13所)
私立保育所数 196所(うち0歳児保育を実施している保育所:188所)
保育所入所待機児童数 0人
認定こども園数 83園 預かり保育実施園数 公立:15園 私立:81園
学校給食 【小学校】完全給食【中学校】完全給食 家庭弁当等との選択制/デリバリー形式[運搬:ランチボックス、内容:完全給食] 給食なし
公立中学校の学校選択制 未実施
子ども・学生等医療費助成<通院>対象年齢 中学校卒業まで 子ども・学生等医療費助成<入院>対象年齢 中学校卒業まで

京都市北区の治安・ごみ収集情報

公共料金・インフラ

ガス料金(22m3使用した場合の月額) 大阪瓦斯株式会社4544円
水道料金(口径20mmで20m3の月額) 京都市3014円
下水道料金(20m3を使用した場合の月額) 京都市2013円
下水道普及率 99.5%

安心・安全

建物火災出火件数 158件
人口10000人当たり
1.08件
刑法犯認知件数 8104件
人口1000人当たり
5.54件
ハザード・防災マップ あり

医療

一般病院総数 89ヶ所
一般診療所総数 1622ヶ所
小児科医師数 397人
小児人口10000人当たり
27.26人
産婦人科医師数 201人
15~49歳女性人口1万人当たり
7.16人
介護保険料基準額(月額) 7160円

ごみ

家庭ごみ収集(可燃ごみ) 有料
備考
指定ごみ袋有料。
家庭ごみの分別方式 5分別8種〔燃やすごみ 缶・びん・ペットボトル プラスチック類 小型金属類・スプレー缶 雑がみ〕 拠点回収:移動式拠点回収):古紙(新聞・ダンボール) 雑がみ 紙パック 使用済てんぷら油 古着類 乾電池 ボタン電池 充電式電池 蛍光管 水銀体温計・水銀血圧計 小型家電 磁気テープ類 インクカートリッジ リユースびん 刃物類 使い捨てライター 陶磁器製の食器 せん定枝木の枝 石油類 医薬品・農薬 化学薬品・塗料・ワックス・絵の具 洗浄剤
家庭ごみの戸別収集 一部実施(原則定点としているが、一部地域で狭路等やむを得ない事情がある場合のみ実施。また、ごみ出しが困難な高齢者や障害のある方などの生活支援の一つとして、御自宅の玄関先までごみの収集に伺う「ごみ収集福祉サービス[まごころ収集]」を実施)
粗大ごみ収集 あり
備考
有料。事前申込制。
生ごみ処理機助成金制度 なし
上限金額
-
上限比率
-
暮らしデータ提供元:生活ガイド.com
※行政機関により公表していない地域及びデータがございます。東京23区以外の政令指定都市は、市全体のデータとして表示しています。
※提供データには細心の注意を払っておりますが、調査後に変更がある場合があります。 最新の情報につきましては各市区役所までお問い合わせいただくか、自治体HPなどをご確認ください。
OCN×ドコモ光新規お申込みで合計最大137,280円相当おトク!特典の内訳・適用条件など詳細はこちら

京都市北区内の各駅の住みやすさ

他のエリアから探す

京都市北区の詳細地域から賃貸物件を探す

出雲路神楽町出雲路立テ本町出雲路俵町出雲路松ノ下町大北山鏡石町大北山長谷町大北山原谷乾町大北山鷲峯町大宮一ノ井町大宮上ノ岸町大宮北椿原町大宮北ノ岸町大宮北箱ノ井町大宮北林町大宮北山ノ前町大宮玄琢北東町大宮玄琢北町大宮玄琢南町大宮釈迦谷大宮田尻町大宮中総門口町大宮中ノ社町大宮中林町大宮西小野堀町大宮西総門口町大宮西野山町大宮西山ノ前町大宮西脇台町大宮東小野堀町大宮東総門口町大宮東脇台町大宮開町大宮南田尻町大宮南椿原町大宮南箱ノ井町大宮南林町大宮南山ノ前町大宮薬師山西町大宮薬師山東町上賀茂葵之森町上賀茂朝露ケ原町上賀茂畔勝町上賀茂荒草町上賀茂池端町上賀茂石計町上賀茂壱町口町上賀茂今井河原町上賀茂岩ケ垣内町上賀茂馬ノ目町上賀茂梅ケ辻町上賀茂大柳町上賀茂岡本口町上賀茂岡本町上賀茂北大路町上賀茂北ノ原町上賀茂神山上賀茂榊田町上賀茂坂口町上賀茂桜井町上賀茂菖蒲園町上賀茂蝉ケ垣内町上賀茂高縄手町上賀茂竹ケ鼻町上賀茂土門町上賀茂津ノ国町上賀茂豊田町上賀茂中大路町上賀茂中ノ坂町上賀茂中山町上賀茂二軒家町上賀茂西上之段町上賀茂西後藤町上賀茂狭間町上賀茂柊谷町上賀茂東上之段町上賀茂東後藤町上賀茂舟着町上賀茂前田町上賀茂松本町上賀茂御薗口町上賀茂南大路町上賀茂向縄手町上賀茂薮田町上賀茂山本町上賀茂六段田町上御霊上江町上清蔵口町北野上白梅町北野紅梅町北野下白梅町北野西白梅町北野東紅梅町衣笠赤阪町衣笠荒見町衣笠大祓町衣笠街道町衣笠北荒見町衣笠北高橋町衣笠北天神森町衣笠御所ノ内町衣笠総門町衣笠高橋町衣笠天神森町衣笠西御所ノ内町衣笠西馬場町衣笠西開キ町衣笠馬場町衣笠東御所ノ内町衣笠東尊上院町衣笠東開キ町衣笠氷室町衣笠開キ町鞍馬口町小松原北町小松原南町小山板倉町小山上内河原町小山上初音町小山上花ノ木町小山上総町小山北大野町小山北上総町小山北玄以町小山下内河原町小山下初音町小山下総町小山町小山中溝町小山西上総町小山西花池町小山西元町小山初音町小山花ノ木町小山東大野町小山東花池町小山東元町小山堀池町小山南上総町小山元町紫竹牛若町紫竹上梅ノ木町紫竹上園生町紫竹上竹殿町紫竹上ノ岸町紫竹上本町紫竹上緑町紫竹北栗栖町紫竹北大門町紫竹栗栖町紫竹下梅ノ木町紫竹下高才町紫竹下芝本町紫竹下竹殿町紫竹下本町紫竹下緑町紫竹西南町紫竹西北町紫竹高縄町紫竹竹殿町紫竹大門町紫竹西栗栖町紫竹西高縄町紫竹西大門町紫竹西野山町紫竹西野山東町紫竹西桃ノ本町紫竹東栗栖町紫竹東高縄町紫竹東大門町紫竹東桃ノ本町紫竹桃ノ本町新御霊口町大将軍一条町大将軍川端町大将軍坂田町大将軍西鷹司町大将軍西町大将軍東鷹司町大将軍南一条町鷹峯上ノ町鷹峯北鷹峯町鷹峯木ノ畑町鷹峯旧土居町鷹峯黒門町鷹峯光悦町鷹峯土天井町鷹峯藤林町鷹峯南鷹峯町長乗西町長乗東町天寧寺門前町等持院北町等持院中町等持院西町等持院東町等持院南町西賀茂井ノ口町西賀茂今原町西賀茂大栗町西賀茂大道口町西賀茂柿ノ木町西賀茂蟹ケ坂町西賀茂鹿ノ下町西賀茂川上町西賀茂北川上町西賀茂北山ノ森町西賀茂神光院町西賀茂角社町西賀茂鎮守菴町西賀茂中川上町西賀茂榿ノ木町西賀茂坊ノ後町西賀茂丸川町西賀茂水垣町西賀茂南今原町西賀茂南大栗町西賀茂南川上町西賀茂山ノ森町平野上八丁柳町平野上柳町平野桜木町平野鳥居前町平野八丁柳町平野東柳町平野宮北町平野宮西町平野宮本町紫野今宮町紫野上野町紫野雲林院町紫野上柏野町紫野上御所田町紫野上石龍町紫野上築山町紫野上御輿町紫野上門前町紫野上柳町紫野上若草町紫野北舟岡町紫野郷ノ上町紫野下柏野町紫野下石龍町紫野下築山町紫野下鳥田町紫野下御輿町紫野下門前町紫野下柳町紫野下若草町紫野十二坊町紫野石龍町紫野泉堂町紫野大徳寺町紫野中柏野町紫野西御所田町紫野西泉堂町紫野西土居町紫野西野町紫野西藤ノ森町紫野西舟岡町紫野西蓮台野町紫野花ノ坊町紫野東御所田町紫野東泉堂町紫野東野町紫野東藤ノ森町紫野東舟岡町紫野南花ノ坊町紫野南舟岡町紫野宮西町紫野宮東町紫野門前町

近辺の市区から探す

大津市京都市上京区京都市左京区京都市中京区京都市東山区京都市下京区京都市南区京都市右京区京都市伏見区京都市山科区京都市西京区向日市

周辺の駅から探す

京都市烏丸線
国際会館松ヶ崎北山北大路鞍馬口今出川丸太町

掲載情報の著作権は提供元企業等に帰属します。
Copyright:(C) 2025 Recruit Co., Ltd.
アプリで簡単 物件探し 大手不動産サイトの情報から一括検!プッシュ通知で物件を見逃さない
App Storeからダウンロード Google Playで手に入れよう QRコード