アプリで簡単 物件探し 通知 共有 アプリならではの機能を使ってみる
賃貸マンション

エステムコート名古屋グランツ 中村公園駅 1K 賃貸(賃貸マンション・アパート)

情報提供元
SUUMO
エステムコート名古屋グランツ 外観
賃料 6.5万円  (管理費等:6620円)
礼金・敷金 なし / なし 保証金/敷引・償却 なし / -
交通
所在地 愛知県名古屋市中村区中村町周辺地図
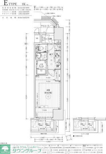
間取り 1K 専有面積 25.13m2
築年月 2024年3月 築年数 築1年10ヶ月
おすすめポイント
★タウンハウジング東海のお取り扱い物件です★ ★タウンハウジング東海のお取り扱い物件です★★最新の空室状況や物件の詳細などお気軽にタウンハウジング東海までお問い合わせください★
お問い合わせ先
(株)タウンハウジング東海名古屋駅前店
お問い合わせ先
(株)タウンハウジング東海名古屋駅前店

詳細情報

賃料 6.5万円 管理費等 6620円
敷金 なし 礼金 なし
保証金 なし 敷引・償却 -
更新料 - 契約期間
カード決済 初期費用カード決済可
所在地 愛知県名古屋市中村区中村町周辺地図
交通
建物名 エステムコート名古屋グランツ 
間取り 1K(洋8.0) 築年月(築年数) 2024年3月(築1年10ヶ月)
専有面積 25.13㎡ 所在階/階数 3階/15階建
建物構造 RC  方位 北東 
現況   駐車場 近有 16,500円
入居可能時期 2026年1月下旬 住宅保険 あり 2年 18000円
情報提供元 SUUMO[050H100475827642] 情報公開日
情報更新日 次回更新予定日 随時

設備など

2階以上 最上階 - 角部屋
駐車場(近隣含) エアコン付き バス・トイレ別
室内洗濯機置き場 追焚機能 - オートロック付き
モニタ付インターホン フローリング バルコニー
ガスコンロ可 浴室乾燥機 24時間セキュリティ -
宅配ボックス ペット相談可 二人入居可 -
設備 冷房・暖房・エアコン・オートロック・バルコニー・バス・トイレ別・トイレ・収納スペース・洗濯機置場・洗面所・エレベーター・CATV・BS端子・フローリング・浴室乾燥機・照明器具・ガスコンロ可・シャンプードレッサ・温水洗浄便座・システムキッチン・モニタ付インターホン・宅配BOX・駐輪場・クローゼット・CS・衣類乾燥機・都市ガス・浴トイレ別・防犯カメラ・洗面所独立・コンロ2口以上・シューズボックス・インターネット無料・インターネット対応・室内洗濯機置き場 
リフォーム履歴 -
リノベーション履歴 -
備考 鍵交換代:27500円/室内清掃費用:38500円/契約事務手数料 契約時:10000円/更新料金額(円):16500円/保証会社利用必:エステム保証サービス 初回保証料 総賃料の50% 月額保証料 総賃料の1.5%/普通借家01年00ヶ月/ペット相談/弊社は1都3県で直営店100店舗以上の広い情報網と地域密着型店舗の細かいエリア情報を活かして、お客様のニーズに合うお部屋のご提案をさせていただいております。東海エリアでもお客様皆様に理想のお部屋を理想の条件でお選び頂けますよう精一杯サポートさせて頂きます。スタッフ一同心よりお待ち申し上げます。オンライン接客・オンライン内見強化中です。/バストイレ別/バルコニー/エアコン/ガスコンロ対応/クロゼット/フローリング/シャワー付洗面台/TVインターホン/浴室乾燥機/オートロック/室内洗濯置/シューズボックス/システムキッチン/角住戸/温水洗浄便座/脱衣所/エレベーター/洗面所独立/2口コンロ/駐輪場/宅配ボックス/CATV/礼金不要/BS・CS/敷金不要/防犯カメラ/ペット相談/照明付/分譲賃貸/保証人不要/全居室フローリング/ネット専用回線/ネット使用料不要/エアコン全室/保証金不要/駅徒歩5分以内/敷地内ごみ置き場/都市ガス/敷金・礼金不要/IT重説 対応物件/初期費用カード決済可/巡回管理/アオキスーパー中村店(スーパー)まで320m/ピアゴ中村店(スーパー)まで970m/ファミリーマート太閤通八丁目店(コンビニ)まで200m/ファミリーマート豊国通店(コンビニ)まで300m/スギ薬局草薙店(ドラッグストア)まで950m/V・drug中村公園前店(ドラッグストア)まで1110m/賃貸戸数:70戸 
特記事項 ペット相談可・分譲タイプ・角部屋・管理人巡回・保証人不要/代行 ・初期費用カード決済可

省エネ性能

エネルギー消費性能 -
断熱性能 -
目安光熱費 -

愛知県名古屋市中村区中村町 周辺地図情報

地図
※地図上に表示される物件の位置は付近住所に所在することを表すものであり、実際の物件所在地とは異なる場合がございます。
   正確な物件所在地は、取扱い不動産会社にお問い合わせください。
お問い合わせ先
(株)タウンハウジング東海名古屋駅前店

不動産会社情報

お問い合わせ先 商号:(株)タウンハウジング東海名古屋駅前店
免許番号:愛知県知事(1)第24824号
所在地:愛知県名古屋市中村区名駅4-27-6 ミュークス MEIEKI 5階
TEL:052-589-9006
取引態様:仲介
管理コード:R01141-076112
共有する
QRコード
お問い合わせ先
(株)タウンハウジング東海名古屋駅前店

名古屋市中村区の暮らしデータ

人口などの統計情報

世帯数 1119847世帯
人口総数 2297745人
転入者数 168667人
転入率(人口1000人当たり)
73.41人
転出者数 154544人
転出率(人口1000人当たり)
67.26人
土地平均価格
住宅地
223115円/m2
商業地
1106619円/m2

結婚・育児の助成金

子育て関連の独自の取り組み (1)なごや子育てアプリ「NAGOMii(なごみー)」による子育て支援情報の提供。(2)子育て家庭優待カード「ぴよか」の交付。(3)子どもを出産、育児する家庭に5万ポイント(5万円相当)分のカタログギフトを進呈する、ナゴヤわくわくプレゼント事業の実施。
出産祝い あり
公立保育所数 84所(うち0歳児保育を実施している保育所:84所)
私立保育所数 367所(うち0歳児保育を実施している保育所:365所)
保育所入所待機児童数 0人
認定こども園数 107園 預かり保育実施園数 公立:20園 私立:-
学校給食 【小学校】完全給食【中学校】家庭弁当等との選択制/デリバリー形式[運搬:食缶等、内容:完全給食(献立選択制)]
公立中学校の学校選択制 未実施
子ども・学生等医療費助成<通院>対象年齢 18歳3月末まで 子ども・学生等医療費助成<入院>対象年齢 18歳3月末まで

名古屋市中村区の治安・ごみ収集情報

公共料金・インフラ

ガス料金(22m3使用した場合の月額) 東邦瓦斯株式会社5307円
水道料金(口径20mmで20m3の月額) 名古屋市2915円
下水道料金(20m3を使用した場合の月額) 名古屋市1804円
下水道普及率 99.4%

安心・安全

建物火災出火件数 355件
人口10000人当たり
1.52件
刑法犯認知件数 19857件
人口1000人当たり
8.51件
ハザード・防災マップ あり

医療

一般病院総数 110ヶ所
一般診療所総数 2272ヶ所
小児科医師数 770人
小児人口10000人当たり
28.40人
産婦人科医師数 319人
15~49歳女性人口1万人当たり
6.72人
介護保険料基準額(月額) 6951円

ごみ

家庭ごみ収集(可燃ごみ) 無料
備考
指定ごみ袋制だが、袋代にごみ収集・処理料金等を含まず。
家庭ごみの分別方式 5分別9種〔可燃ごみ 不燃ごみ 発火性危険物 電池類 資源(プラスチック資源、紙製容器包装・雑がみ、ペットボトル、空きびん、空き缶)〕 拠点回収:資源(ペットボトル 紙パック 食用油 小型家電 充電式家電 蛍光管・水銀体温計・水銀温度計)
家庭ごみの戸別収集 実施(可燃ごみ、不燃ごみ、発火性危険物、電池類、プラスチック資源のみ。紙製容器包装・雑がみ、ペットボトル、空きびん、空き缶はステーション収集)
粗大ごみ収集 あり
備考
有料。各戸収集。事前申込制。月1回収集で手数料(品目ごとに250円、500円、1,000円、1,500円)が必要。粗大ごみ受付センターにインターネットもしくは電話にて申し込み。
生ごみ処理機助成金制度 なし
上限金額
-
上限比率
-
暮らしデータ提供元:生活ガイド.com
※行政機関により公表していない地域及びデータがございます。東京23区以外の政令指定都市は、市全体のデータとして表示しています。
※提供データには細心の注意を払っておりますが、調査後に変更がある場合があります。 最新の情報につきましては各市区役所までお問い合わせいただくか、自治体HPなどをご確認ください。
OCN×ドコモ光新規お申込みで合計最大137,280円相当おトク!特典の内訳・適用条件など詳細はこちら

名古屋市中村区内の各駅の住みやすさ

他のエリアから探す

名古屋市中村区の詳細地域から賃貸物件を探す

稲上町稲西町稲葉地町稲葉地本通乾出町猪之越町井深町岩上町岩塚町岩塚本通牛田通大秋町大宮町沖田町押木田町角割町烏森町香取町上石川町上米野町上ノ宮町亀島鴨付町川前町菊水町北浦町北畑町京田町草薙町熊野町小鴨町黄金通寿町郷前町五反城町権現通栄生町佐古前町塩池町下米野町下中村町宿跡町白子町城屋敷町新富町十王町城主町砂田町諏訪町千成通太閤太閤通大正町高須賀町高道町竹橋町大日町大門町千原町椿町剣町豊国通鳥居通鳥居西通中島町中村町中村中町中村本町長筬町長草町長戸井町那古野並木賑町西米野町西栄町鈍池町野上町野田町則武則武本通羽衣町橋下町畑江通八社八田町東宿町日ノ宮町日比津町日吉町平池町深川町藤江町二瀬町二ツ橋町本陣通松重町松原町道下町宮塚町向島町名駅名駅南名西通名楽町元中村町森末町森田町靖国町横井横井町横前町若宮町

近辺の市区から探す

名古屋市千種区名古屋市東区名古屋市北区名古屋市西区名古屋市中区名古屋市昭和区名古屋市瑞穂区名古屋市熱田区名古屋市中川区名古屋市港区名古屋市南区名古屋市守山区名古屋市名東区名古屋市天白区春日井市津島市稲沢市岩倉市清須市北名古屋市あま市西春日井郡豊山町海部郡大治町海部郡蟹江町海部郡飛島村

周辺の駅から探す

名古屋市東山線
高畑八田岩塚中村公園中村日赤本陣亀島名古屋

掲載情報の著作権は提供元企業等に帰属します。
Copyright:(C) 2025 Recruit Co., Ltd.
アプリで簡単 物件探し 大手不動産サイトの情報から一括検!プッシュ通知で物件を見逃さない
App Storeからダウンロード Google Playで手に入れよう QRコード