
賃貸マンション
プレサンス ロジェ 名古屋浅間町ザ・レジデンス 浅間町駅 2LDK 賃貸(賃貸マンション・アパート)
| 賃料 |
13.19万円 (管理費等:11190円) |
| 礼金・敷金 |
14.3万円 / なし |
保証金/敷引・償却 |
なし / - |
| 交通 |
|
| 所在地 |
愛知県名古屋市西区新道1周辺地図
|
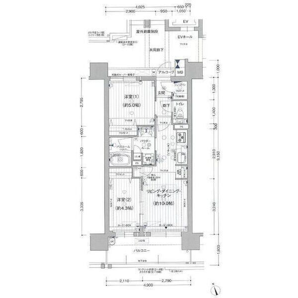
| 間取り |
2LDK |
専有面積 |
45.48m2 |
| 築年月 |
2024年9月 |
築年数 |
築1年4ヶ月 |
- おすすめポイント
- お部屋探しは、ピタットハウス名古屋駅北店で♪ コストを重視される方にご紹介したい、敷金(保証金)0円。防犯防災面で頼もしい味方になる24時間セキュリティー採用、更に防犯対策に心強い防犯カメラは、侵入者を躊躇させる効果があります。
- お問い合わせ先
- ピタットハウス名古屋駅北店(株)名岐不動産
- お問い合わせ先
- ピタットハウス名古屋駅北店(株)名岐不動産
| 賃料 |
13.19万円 |
管理費等 |
11190円 |
| 敷金 |
なし |
礼金 |
14.3万円 |
| 保証金 |
なし |
敷引・償却 |
- |
| 更新料 |
- |
契約期間 |
|
| カード決済 |
- |
| 所在地 |
愛知県名古屋市西区新道1周辺地図
|
| 交通 |
- 地下鉄鶴舞線 浅間町駅 徒歩3分乗換案内
- 地下鉄鶴舞線 浄心駅 徒歩14分乗換案内
- 地下鉄桜通線 国際センター駅 徒歩17分乗換案内
|
| 建物名 |
プレサンス ロジェ 名古屋浅間町ザ・レジデンス |
| 間取り |
2LDK |
築年月(築年数) |
2024年9月(築1年4ヶ月)
|
| 専有面積 |
45.48㎡ |
所在階/階数 |
15階/15階建
|
| 建物構造 |
RC |
方位 |
南 |
| 現況 |
|
駐車場 |
無 近くの駐車場を探す
|
| 入居可能時期 |
即時 |
住宅保険 |
あり 1年 11000円 |
| 情報提供元 |
SUUMO[050H100470011600] |
情報公開日 |
|
| 情報更新日 |
|
次回更新予定日 |
随時 |
設備など
| 2階以上 |
○ |
最上階 |
○ |
角部屋 |
- |
| 駐車場(近隣含) |
- |
エアコン付き |
○ |
バス・トイレ別 |
- |
| 室内洗濯機置き場 |
○ |
追焚機能 |
○ |
オートロック付き |
○ |
| モニタ付インターホン |
○ |
フローリング |
- |
バルコニー |
- |
| ガスコンロ可 |
- |
浴室乾燥機 |
○ |
24時間セキュリティ |
- |
| 宅配ボックス |
- |
ペット相談可 |
- |
二人入居可 |
- |
| 設備 |
冷房・暖房・エアコン・オートロック・トイレ・収納スペース・洗濯機置場・洗面所・エレベーター・CATV・BS端子・追焚機能・浴室乾燥機・シャンプードレッサ・温水洗浄便座・システムキッチン・モニタ付インターホン・風呂・クローゼット・床暖房・衣類乾燥機・都市ガス・防犯カメラ・シューズボックス・室内洗濯機置き場 |
| リフォーム履歴 |
- |
| リノベーション履歴 |
- |
| 備考 |
カギ交換代3.52万円/退去時ハウスクリーニング代4.5万円/プレサポ24990円/保証会社利用必:株式会社プレサンスギャランティ保証契約必要 要確認/コストを重視される方にご紹介したい、敷金(保証金)0円。防犯防災面で頼もしい味方になる24時間セキュリティー採用、更に防犯対策に心強い防犯カメラは、侵入者を躊躇させる効果があります。また前居住者の気配を感じさせない築2年以内の建物で、その上合理的なシステムキッチン仕様なので、すきまや段差がなくお掃除も簡単です。ちなみに洗面スペースが広く使い勝手が良いシャンプードレッサー付です。/エアコン/クロゼット/シャワー付洗面台/TVインターホン/浴室乾燥機/オートロック/室内洗濯置/シューズボックス/システムキッチン/南向き/追焚機能浴室/温水洗浄便座/エレベーター/CATV/即入居可/最上階/敷金不要/防犯カメラ/2沿線利用可/床暖房/保証金不要/築2年以内/24時間換気システム/駅徒歩5分以内/都市ガス/BS/巡回管理/名古屋市立なごや小学校(小学校)まで740m/名古屋市立菊井中学校(中学校)まで202m/エンゼルキッズ押切(幼稚園・保育園)まで583m/私立愛美学園啓明学館高校(高校・高専)まで327m/名古屋市西区役所(役所)まで858m/名古屋押切郵便局(郵便局)まで435m/賃貸戸数:84戸 |
| 特記事項 |
管理人巡回・最上階 |
愛知県名古屋市西区新道1 周辺地図情報
※地図上に表示される物件の位置は付近住所に所在することを表すものであり、実際の物件所在地とは異なる場合がございます。
正確な物件所在地は、取扱い不動産会社にお問い合わせください。
- お問い合わせ先
- ピタットハウス名古屋駅北店(株)名岐不動産
不動産会社情報
| お問い合わせ先 |
商号:ピタットハウス名古屋駅北店(株)名岐不動産 免許番号:愛知県知事(11)第12497号 所在地:愛知県名古屋市西区名駅3-11-2 サン・タウン名駅三丁目ビル 1階 TEL:052-526-7553 取引態様:仲介 管理コード:11754829-160 所属協会など: 東海不動産公正取引協議会加盟、(公社)愛知県宅地建物取引業協会会員
|
共有する |
|
- お問い合わせ先
- ピタットハウス名古屋駅北店(株)名岐不動産
人口などの統計情報
| 世帯数 |
1119847世帯 |
| 人口総数 |
2297745人 |
| 転入者数 |
168667人
- 転入率(人口1000人当たり)
- 73.41人
|
| 転出者数 |
154544人
- 転出率(人口1000人当たり)
- 67.26人
|
| 土地平均価格 |
- 住宅地
- 223115円/m2
- 商業地
- 1106619円/m2
|
結婚・育児の助成金
| 子育て関連の独自の取り組み |
(1)なごや子育てアプリ「NAGOMii(なごみー)」による子育て支援情報の提供。(2)子育て家庭優待カード「ぴよか」の交付。(3)子どもを出産、育児する家庭に5万ポイント(5万円相当)分のカタログギフトを進呈する、ナゴヤわくわくプレゼント事業の実施。 |
| 出産祝い |
あり |
| 公立保育所数 |
84所(うち0歳児保育を実施している保育所:84所) |
| 私立保育所数 |
367所(うち0歳児保育を実施している保育所:365所) |
| 保育所入所待機児童数 |
0人 |
| 認定こども園数 |
107園 |
預かり保育実施園数 |
公立:20園 私立:- |
| 学校給食 |
【小学校】完全給食【中学校】家庭弁当等との選択制/デリバリー形式[運搬:食缶等、内容:完全給食(献立選択制)] |
| 公立中学校の学校選択制 |
未実施 |
| 子ども・学生等医療費助成<通院>対象年齢 |
18歳3月末まで |
子ども・学生等医療費助成<入院>対象年齢 |
18歳3月末まで |
名古屋市西区の治安・ごみ収集情報
公共料金・インフラ
| ガス料金(22m3使用した場合の月額) |
東邦瓦斯株式会社5307円 |
| 水道料金(口径20mmで20m3の月額) |
名古屋市2915円 |
| 下水道料金(20m3を使用した場合の月額) |
名古屋市1804円 |
| 下水道普及率 |
99.4% |
安心・安全
| 建物火災出火件数 |
355件
- 人口10000人当たり
- 1.52件
|
| 刑法犯認知件数 |
19857件
- 人口1000人当たり
- 8.51件
|
| ハザード・防災マップ |
あり |
医療
| 一般病院総数 |
110ヶ所 |
| 一般診療所総数 |
2272ヶ所 |
| 小児科医師数 |
770人
- 小児人口10000人当たり
- 28.40人
|
| 産婦人科医師数 |
319人
- 15~49歳女性人口1万人当たり
- 6.72人
|
| 介護保険料基準額(月額) |
6951円 |
ごみ
| 家庭ごみ収集(可燃ごみ) |
無料
|
| 家庭ごみの分別方式 |
5分別9種〔可燃ごみ 不燃ごみ 発火性危険物 電池類 資源(プラスチック資源、紙製容器包装・雑がみ、ペットボトル、空きびん、空き缶)〕 拠点回収:資源(ペットボトル 紙パック 食用油 小型家電 充電式家電 蛍光管・水銀体温計・水銀温度計) |
| 家庭ごみの戸別収集 |
実施(可燃ごみ、不燃ごみ、発火性危険物、電池類、プラスチック資源のみ。紙製容器包装・雑がみ、ペットボトル、空きびん、空き缶はステーション収集) |
| 粗大ごみ収集 |
あり
|
| 生ごみ処理機助成金制度 |
なし
- 上限金額
- -
- 上限比率
- -
|
※行政機関により公表していない地域及びデータがございます。東京23区以外の政令指定都市は、市全体のデータとして表示しています。
※提供データには細心の注意を払っておりますが、調査後に変更がある場合があります。 最新の情報につきましては各市区役所までお問い合わせいただくか、自治体HPなどをご確認ください。
名古屋市西区の暮らしデータをもっと見る