アプリで簡単 物件探し 通知 共有 アプリならではの機能を使ってみる
賃貸マンション

神奈川県鎌倉市由比ガ浜3 由比ヶ浜駅 1LDK 賃貸(賃貸マンション・アパート)

情報提供元
SUUMO
賃料 13.5万円  (管理費等:7500円)
礼金・敷金 なし / 1ヶ月 保証金/敷引・償却 なし / -
交通
所在地 神奈川県鎌倉市由比ガ浜3周辺地図
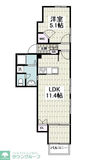
間取り 1LDK 専有面積 44.71m2
築年月 2023年7月 築年数 築2年6ヶ月
おすすめポイント
★ZEH-M対応へーベルメゾン★ペット共生マンション★ ★ZEH-M対応へーベルメゾン★オートロック★ペット共生マンション★3口コンロ★追い焚き★エアコン2基完備★浴室乾燥★温水洗浄便座★独立洗面台★
お問い合わせ先
(株)タウンハウジング神奈川茅ヶ崎店
お問い合わせ先
(株)タウンハウジング神奈川茅ヶ崎店

詳細情報

賃料 13.5万円 管理費等 7500円
敷金 1ヶ月 礼金 なし
保証金 なし 敷引・償却 -
更新料 - 契約期間
カード決済 -
所在地 神奈川県鎌倉市由比ガ浜3周辺地図
交通
建物名  
間取り 1LDK(洋5.1 LDK11.4) 築年月(築年数) 2023年7月(築2年6ヶ月)
専有面積 44.71㎡ 所在階/階数 3階/3階建
建物構造 ALC  方位 南 
現況   駐車場 近有 24,200円
入居可能時期 2026年1月中旬 住宅保険 あり 2年 18400円
情報提供元 SUUMO[030H100476046685] 情報公開日
情報更新日 次回更新予定日 随時

設備など

2階以上 最上階 角部屋
駐車場(近隣含) エアコン付き バス・トイレ別
室内洗濯機置き場 追焚機能 オートロック付き
モニタ付インターホン フローリング バルコニー
ガスコンロ可 浴室乾燥機 24時間セキュリティ -
宅配ボックス ペット相談可 二人入居可
設備 冷房・暖房・エアコン・オートロック・バルコニー・バス・トイレ別・トイレ・収納スペース・洗濯機置場・洗面所・BS端子・追焚機能・フローリング・浴室乾燥機・ウォークインクローゼット・ガスコンロ可・シャンプードレッサ・温水洗浄便座・システムキッチン・カウンターキッチン・モニタ付インターホン・宅配BOX・駐輪場・風呂・対面K・クローゼット・衣類乾燥機・都市ガス・ディンプルキー・浴トイレ別・オートバス・洗面所独立・コンロ2口以上・シューズボックス・インターネット無料・インターネット対応・室内洗濯機置き場 
リフォーム履歴 -
リノベーション履歴 -
備考 鍵交換代:25300円/室内清掃費用:71500円/My Concier Club:18000円/更新料新賃料(ヶ月):1.00ヶ月、バイク置場:近有:3300円/月/保証会社利用必:初回賃料総額の50%+2年毎に2万円/AfS/普通借家02年00ヶ月/単身者可/二人入居可/子供可/ペット相談/★ZEH-M対応へーベルメゾン★オートロック★ペット共生マンション★3口コンロ★追い焚き★エアコン2基完備★浴室乾燥★温水洗浄便座★独立洗面台★遠方のお客様やお忙しい方でもウェブ内見やIT重説を取り入れいるためテレビ電話などで、ご内見から契約まで可能!首都圏直営140店舗以上のネットワークで、ほとんどの物件の紹介可能★/バストイレ別/バルコニー/エアコン/ガスコンロ対応/クロゼット/フローリング/シャワー付洗面台/TVインターホン/浴室乾燥機/オートロック/室内洗濯置/シューズボックス/システムキッチン/南向き/追焚機能浴室/角住戸/温水洗浄便座/脱衣所/洗面所独立/洗面化粧台/駐輪場/宅配ボックス/礼金不要/2面採光/最上階/3口以上コンロ/対面式キッチン/ペット相談/全居室収納/オートバス/グリル付/全居室洋室/ウォークインクロゼット/保証人不要/単身者相談/敷金1ヶ月/二人入居相談/全居室フローリング/3面採光/2沿線利用可/エアコン2台/ディンプルキー/ネット専用回線/ネット使用料不要/エアコン全室/1フロア2住戸/学生相談/一部フローリング/始発駅/2駅利用可/敷地内ごみ置き場/都市ガス/洗面所にドア/南面バルコニー/シャッター/室内物干機/BS/IT重説 対応物件/LGBTフレンドリー/ローソン鎌倉由比ガ浜大通り店(コンビニ)まで230m/スリーエフ鎌倉由比ガ浜店(コンビニ)まで550m/クリエイトエス・ディー鎌倉材木座店(ドラッグストア)まで750m/やまか鎌倉店(スーパー)まで750m/紀ノ国屋鎌倉店(スーパー)まで1050m/魚屋路鎌倉由比ヶ浜店(飲食店)まで730m/賃貸戸数:6戸 
特記事項 ペット相談可・二人入居可・角部屋・最上階・保証人不要/代行

省エネ性能

エネルギー消費性能 -
断熱性能 -
目安光熱費 -

神奈川県鎌倉市由比ガ浜3 周辺地図情報

地図
※地図上に表示される物件の位置は付近住所に所在することを表すものであり、実際の物件所在地とは異なる場合がございます。
   正確な物件所在地は、取扱い不動産会社にお問い合わせください。
お問い合わせ先
(株)タウンハウジング神奈川茅ヶ崎店

不動産会社情報

お問い合わせ先 商号:(株)タウンハウジング神奈川茅ヶ崎店
免許番号:国土交通大臣(1)第9928号
所在地:神奈川県茅ヶ崎市幸町 22-6 ジョイ茅ヶ崎パートII 104
TEL:046-788-1115
取引態様:仲介
管理コード:R01062-066288
所属協会など:(公社)首都圏不動産公正取引協議会加盟、(公社)神奈川県宅地建物取引業協会会員
共有する
QRコード
お問い合わせ先
(株)タウンハウジング神奈川茅ヶ崎店

    鎌倉市の暮らしデータ

    人口などの統計情報

    世帯数 75607世帯
    人口総数 175625人
    転入者数 7562人
    転入率(人口1000人当たり)
    43.06人
    転出者数 6984人
    転出率(人口1000人当たり)
    39.77人
    土地平均価格
    住宅地
    214476円/m2
    商業地
    975500円/m2

    結婚・育児の助成金

    子育て関連の独自の取り組み (1)かまくらこども相談窓口きらきらの運営。(2)「かまくら子育てナビきらきら」の発行・配布。
    出産祝い なし
    公立保育所数 4所(うち0歳児保育を実施している保育所:4所)
    私立保育所数 24所(うち0歳児保育を実施している保育所:24所)
    保育所入所待機児童数 34人
    認定こども園数 6園 預かり保育実施園数 公立:- 私立:15園
    学校給食 【小学校】完全給食【中学校】家庭弁当等との選択制/デリバリー形式[運搬:ランチボックス、内容:完全給食]
    公立中学校の学校選択制 未実施
    子ども・学生等医療費助成<通院>対象年齢 18歳3月末まで 子ども・学生等医療費助成<入院>対象年齢 18歳3月末まで

    鎌倉市の治安・ごみ収集情報

    公共料金・インフラ

    ガス料金(22m3使用した場合の月額) 東京瓦斯株式会社(東京地区等)3926円
    水道料金(口径20mmで20m3の月額) 神奈川県営水道2988円
    下水道料金(20m3を使用した場合の月額) 鎌倉市2754円
    下水道普及率 97.8%

    安心・安全

    建物火災出火件数 28件
    人口10000人当たり
    1.62件
    刑法犯認知件数 645件
    人口1000人当たり
    3.73件
    ハザード・防災マップ あり

    医療

    一般病院総数 11ヶ所
    一般診療所総数 184ヶ所
    小児科医師数 29人
    小児人口10000人当たり
    15.35人
    産婦人科医師数 21人
    15~49歳女性人口1万人当たり
    6.66人
    介護保険料基準額(月額) 5500円

    ごみ

    家庭ごみ収集(可燃ごみ) 有料
    備考
    指定ごみ袋有料。
    家庭ごみの分別方式 4分別21種〔資源物(飲食用カン、飲食用ビン、植木剪定材、ミックスペーパー、新聞紙、雑誌・古本、ボール紙・クラフト紙、紙パック、ダンボール、布類、ペットボトル、容器包装プラスチック、使用済み食用油、製品プラスチック) 燃やすごみ 燃えないごみ 危険・有害ごみ(蛍光管、乾電池、体温計・温度計、スプレーカン・カセットボンベ、割れたガラス・陶磁器・鏡・刃物類・電球)〕
    家庭ごみの戸別収集 一部実施(【声かけふれあい収集】[1]介護保険の居宅サービスを日常的に利用している高齢者のみで構成されている世帯。[2]身体障害者手帳1級又は2級の交付を受けている障害者のみで構成されている世帯。[3]精神障害者保健福祉手帳1級又は2級の交付を受けており、居宅介護を日常的に利用している障害者のみで構成されている世帯。[4]前3号に規定する高齢者及び障害者で構成されている世帯。[5]前各号に規定する世帯と同等の状態にあると市長が認めた世帯)
    粗大ごみ収集 あり
    備考
    有料。事前申込制。
    生ごみ処理機助成金制度 あり
    上限金額
    30000円
    上限比率
    75.0%
    暮らしデータ提供元:生活ガイド.com
    ※行政機関により公表していない地域及びデータがございます。東京23区以外の政令指定都市は、市全体のデータとして表示しています。
    ※提供データには細心の注意を払っておりますが、調査後に変更がある場合があります。 最新の情報につきましては各市区役所までお問い合わせいただくか、自治体HPなどをご確認ください。
    OCN×ドコモ光新規お申込みで合計最大137,280円相当おトク!特典の内訳・適用条件など詳細はこちら

    鎌倉市内の各駅の住みやすさ

    他のエリアから探す

    鎌倉市の詳細地域から賃貸物件を探す

    稲村ガ崎今泉今泉台岩瀬植木扇ガ谷大船大町岡本御成町梶原鎌倉山上町屋腰越小袋谷小町極楽寺坂ノ下笹目町佐助材木座七里ガ浜七里ガ浜東城廻十二所浄明寺関谷高野玉縄津西手広寺分常盤二階堂西鎌倉西御門長谷笛田山崎山ノ内由比ガ浜雪ノ下

    近辺の市区から探す

    横浜市磯子区横浜市金沢区横浜市戸塚区横浜市港南区横浜市栄区横浜市泉区横須賀市藤沢市逗子市三浦郡葉山町

    周辺の駅から探す

    江ノ島電鉄
    七里ヶ浜稲村ヶ崎極楽寺長谷由比ヶ浜和田塚鎌倉

    神奈川県鎌倉市で他のジャンルから探す


    掲載情報の著作権は提供元企業等に帰属します。
    Copyright:(C) 2025 Recruit Co., Ltd.
    アプリで簡単 物件探し 大手不動産サイトの情報から一括検!プッシュ通知で物件を見逃さない
    App Storeからダウンロード Google Playで手に入れよう QRコード