賃貸マンション
神奈川県横浜市戸塚区平戸町 東戸塚駅 2LDK 賃貸(賃貸マンション・アパート)
| 賃料 |
8.9万円 (管理費等:5000円) |
| 礼金・敷金 |
1ヶ月 / 1ヶ月 |
保証金/敷引・償却 |
なし / - |
| 交通 |
|
| 所在地 |
神奈川県横浜市戸塚区平戸町周辺地図
|
| 間取り |
2LDK |
専有面積 |
76.9m2 |
| 築年月 |
1985年8月 |
築年数 |
築40年5ヶ月 |
- おすすめポイント
- インターネット無料!広駐車場!敷地内BBQ! マンション横には広い駐車場と専用中庭が広がります!インターネット使用料無料・都市ガスで経済的!
| 賃料 |
8.9万円 |
管理費等 |
5000円 |
| 敷金 |
1ヶ月 |
礼金 |
1ヶ月 |
| 保証金 |
なし |
敷引・償却 |
- |
| 更新料 |
- |
契約期間 |
定期借家 2年 |
| カード決済 |
- |
| 所在地 |
神奈川県横浜市戸塚区平戸町周辺地図
|
| 交通 |
- JR横須賀線 東戸塚駅 バス10分/「平戸団地」バス停 停歩1分乗換案内
|
| 建物名 |
|
| 間取り |
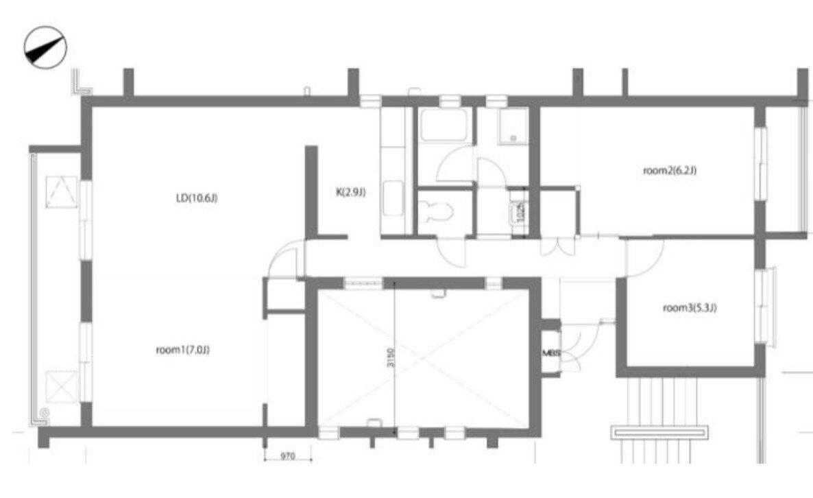
2LDK(和6.2 洋5.3 LD17.6K2.9) |
築年月(築年数) |
1985年8月(築40年5ヶ月)
|
| 専有面積 |
76.9㎡ |
所在階/階数 |
2階/4階建
|
| 建物構造 |
RC |
方位 |
南西 |
| 現況 |
|
駐車場 |
有 22,000円 |
| 入居可能時期 |
即時 |
住宅保険 |
あり 2年 20000円 |
| 情報提供元 |
SUUMO[030H100474922326] |
情報公開日 |
|
| 情報更新日 |
|
次回更新予定日 |
随時 |
設備など
| 2階以上 |
○ |
最上階 |
- |
角部屋 |
- |
| 駐車場(近隣含) |
○ |
エアコン付き |
○ |
バス・トイレ別 |
○ |
| 室内洗濯機置き場 |
○ |
追焚機能 |
- |
オートロック付き |
- |
| モニタ付インターホン |
- |
フローリング |
○ |
バルコニー |
- |
| ガスコンロ可 |
- |
浴室乾燥機 |
○ |
24時間セキュリティ |
- |
| 宅配ボックス |
- |
ペット相談可 |
- |
二人入居可 |
○ |
| 設備 |
冷房・暖房・エアコン・バス・トイレ別・トイレ・収納スペース・洗濯機置場・洗面所・フローリング・浴室乾燥機・システムキッチン・駐輪場・クローゼット・衣類乾燥機・都市ガス・浴トイレ別・洗面所独立・バイク置き場・シューズボックス・インターネット無料・リノベーション・インターネット対応・室内洗濯機置き場 |
| リフォーム履歴 |
- |
| リノベーション履歴 |
- |
| 備考 |
湘南新宿ライン宇須東戸塚駅バス10分平戸団地停歩1分/鍵交換26400円 24時間緊急サポート19800円/保証会社利用必:オリコフォレント/定期借家2年/単身者可/二人入居可/子供可/敷金はクリーニング費用として償却、再契約時に再契約料として新賃料1ヶ月、ペット飼養可のお部屋もあります(当室は不可)、駐車場有22000円/区画(空有洗車スペース・水道利用料無料)、バイク駐車場2200円区画 (満車)、第三者所有転貸、現況有姿/バストイレ別/エアコン/クロゼット/フローリング/浴室乾燥機/室内洗濯置/シューズボックス/システムキッチン/洗面所独立/駐輪場/2面採光/敷金1ヶ月/二人入居相談/バイク置場/全居室フローリング/ネット使用料不要/眺望良好/南面リビング/バス停徒歩3分以内/敷地内ごみ置き場/平面駐車場/LDK12畳以上/都市ガス/玄関収納/リノベーション/礼金1ヶ月/IT重説 対応物件/巡回管理/オーロラモール東戸塚(ショッピングセンター)まで1554m/業務スーパー芹が谷店(スーパー)まで1287m/デイリーヤマザキ戸塚平戸町店(コンビニ)まで484m/島忠ホームズ東戸塚店(ホームセンター)まで689m/横浜市立平戸台小学校(小学校)まで115m/神奈川県立こども医療センタ(病院)まで1551m |
| 特記事項 |
二人入居可・管理人巡回 |
神奈川県横浜市戸塚区平戸町 周辺地図情報
※地図上に表示される物件の位置は付近住所に所在することを表すものであり、実際の物件所在地とは異なる場合がございます。
正確な物件所在地は、取扱い不動産会社にお問い合わせください。
不動産会社情報
| お問い合わせ先 |
商号:(株)Rバンク 免許番号:東京都知事(4)第88663号 所在地:東京都目黒区上目黒2-6-11 TEL:03-5724-3512 取引態様:貸主 管理コード: 所属協会など:(公社)首都圏不動産公正取引協議会加盟、(公社)東京都宅地建物取引業協会会員
|
共有する |
|
人口などの統計情報
| 世帯数 |
1744208世帯 |
| 人口総数 |
3752969人 |
| 転入者数 |
217258人
- 転入率(人口1000人当たり)
- 57.89人
|
| 転出者数 |
201570人
- 転出率(人口1000人当たり)
- 53.71人
|
| 土地平均価格 |
- 住宅地
- 254434円/m2
- 商業地
- 1043863円/m2
|
結婚・育児の助成金
| 子育て関連の独自の取り組み |
横浜市私立幼稚園等預かり保育事業(横浜市が定めた基準(実施日、時間、職員配置等)を満たし、横浜市の認定を受けた幼稚園・認定こども園が実施する事業。市内在住の園児の保護者が就労や病気等で、園の正規教育時間の前後に家庭で保育ができない場合に、利用可能。3歳児~5歳児は無料、満3歳児は(a)私学助成を受ける幼稚園の場合、月額9,000円、(b)新制度に移行した園の場合、0円~9,000円)。 |
| 出産祝い |
あり |
| 公立保育所数 |
56所(うち0歳児保育を実施している保育所:41所) |
| 私立保育所数 |
813所(うち0歳児保育を実施している保育所:716所) |
| 保育所入所待機児童数 |
5人 |
| 認定こども園数 |
70園 |
預かり保育実施園数 |
公立:- 私立:213園 |
| 学校給食 |
【小学校】完全給食【中学校】家庭弁当等・業者弁当との選択制/デリバリー形式[運搬:ランチボックス、内容:完全給食] |
| 公立中学校の学校選択制 |
一部実施(特定地域選択制[特別調整通学区域]) |
| 子ども・学生等医療費助成<通院>対象年齢 |
中学校卒業まで |
子ども・学生等医療費助成<入院>対象年齢 |
中学校卒業まで |
横浜市戸塚区の治安・ごみ収集情報
公共料金・インフラ
| ガス料金(22m3使用した場合の月額) |
東京瓦斯株式会社(東京地区等)3926円 |
| 水道料金(口径20mmで20m3の月額) |
横浜市3017円 |
| 下水道料金(20m3を使用した場合の月額) |
横浜市2035円 |
| 下水道普及率 |
100.0% |
安心・安全
| 建物火災出火件数 |
438件
- 人口10000人当たり
- 1.16件
|
| 刑法犯認知件数 |
16059件
- 人口1000人当たり
- 4.25件
|
| ハザード・防災マップ |
あり |
医療
| 一般病院総数 |
113ヶ所 |
| 一般診療所総数 |
3201ヶ所 |
| 小児科医師数 |
682人
- 小児人口10000人当たり
- 15.98人
|
| 産婦人科医師数 |
346人
- 15~49歳女性人口1万人当たり
- 4.58人
|
| 介護保険料基準額(月額) |
6620円 |
ごみ
| 家庭ごみ収集(可燃ごみ) |
無料
|
| 家庭ごみの分別方式 |
7分別9種〔燃やすごみ 燃えないごみ スプレー缶 乾電池 プラスチック製容器包装 缶・びん・ペットボトル(缶、びん、ペットボトル) 小さな金属類〕 |
| 家庭ごみの戸別収集 |
一部実施(【ふれあい収集】家庭ごみ・粗大ごみを集積場所まで持ち出すことができない高齢者や障害のある方などを対象にごみ出しの支援を実施。【狭あい道路収集】道路が狭く収集車が通行することができないため、集積場所が自宅近くに設けられない地域において、軽四輪車でごみを収集) |
| 粗大ごみ収集 |
あり
|
| 生ごみ処理機助成金制度 |
なし
- 上限金額
- -
- 上限比率
- -
|
※行政機関により公表していない地域及びデータがございます。東京23区以外の政令指定都市は、市全体のデータとして表示しています。
※提供データには細心の注意を払っておりますが、調査後に変更がある場合があります。 最新の情報につきましては各市区役所までお問い合わせいただくか、自治体HPなどをご確認ください。
横浜市戸塚区の暮らしデータをもっと見る