賃貸アパート
東京都葛飾区西新小岩4 新小岩駅 ワンルーム 賃貸(賃貸マンション・アパート)
| 賃料 |
6.35万円 (管理費等:4000円) |
| 礼金・敷金 |
なし / なし |
保証金/敷引・償却 |
なし / - |
| 交通 |
|
| 所在地 |
東京都葛飾区西新小岩4周辺地図
|
| 間取り |
ワンルーム |
専有面積 |
12.37m2 |
| 築年月 |
2025年9月 |
築年数 |
新築 |
- おすすめポイント
- 【新築!敷金礼金0円!さらにインターネット使用料無料♪】 IoT機能搭載の人気デザイナーズシリーズ!便利な敷地内ゴミ置場・宅配BOX☆安心のTVインターホンなど設備充実!
- お問い合わせ先
- アキバ・エステート (株)OCEAN
- お問い合わせ先
- アキバ・エステート (株)OCEAN
| 賃料 |
6.35万円 |
管理費等 |
4000円 |
| 敷金 |
なし |
礼金 |
なし |
| 保証金 |
なし |
敷引・償却 |
- |
| 更新料 |
- |
契約期間 |
|
| カード決済 |
- |
| 所在地 |
東京都葛飾区西新小岩4周辺地図
|
| 交通 |
- JR総武線 新小岩駅 徒歩10分乗換案内
- JR総武線 平井駅 徒歩25分乗換案内
- 東武亀戸線 東あずま駅 徒歩38分乗換案内
|
| 建物名 |
|
| 間取り |
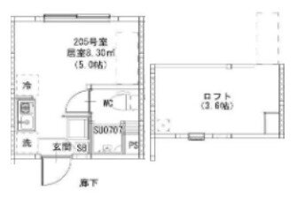
ワンルーム(洋5.0 ロフト 3.6) |
築年月(築年数) |
2025年9月
新築 |
| 専有面積 |
12.37㎡ |
所在階/階数 |
2階/2階建
|
| 建物構造 |
木造 |
方位 |
|
| 現況 |
|
駐車場 |
無 近くの駐車場を探す
|
| 入居可能時期 |
即時 |
住宅保険 |
あり 2年 20000円 |
| 情報提供元 |
SUUMO[030H100468406218] |
情報公開日 |
|
| 情報更新日 |
|
次回更新予定日 |
随時 |
設備など
| 2階以上 |
○ |
最上階 |
○ |
角部屋 |
- |
| 駐車場(近隣含) |
- |
エアコン付き |
○ |
バス・トイレ別 |
- |
| 室内洗濯機置き場 |
- |
追焚機能 |
- |
オートロック付き |
- |
| モニタ付インターホン |
○ |
フローリング |
○ |
バルコニー |
- |
| ガスコンロ可 |
○ |
浴室乾燥機 |
- |
24時間セキュリティ |
- |
| 宅配ボックス |
○ |
ペット相談可 |
- |
二人入居可 |
- |
| 設備 |
冷房・暖房・エアコン・ロフト・トイレ・収納スペース・洗濯機置場・洗面所・フローリング・照明器具・ガスコンロ可・シャンプードレッサ・温水洗浄便座・モニタ付インターホン・宅配BOX・カードキー・シャワー・防犯カメラ・洗面所独立・シューズボックス・インターネット無料 |
| リフォーム履歴 |
- |
| リノベーション履歴 |
- |
| 備考 |
インターネット開通費用1.65万円 IOT登録利用料1.65万円 24時間サポート1.98万円 除菌・消臭代1.98万円/更新料 新賃料1.50ヶ月分 室内清掃費用 38500円 町会費 月額300円/保証会社利用必:初回保証料:月額総賃料の30 50%/普通借家02年0ヶ月/契約金のクレジットカード決済が可能です☆諸条件なんでもご相談下さい♪/エアコン/ガスコンロ対応/フローリング/シャワー付洗面台/TVインターホン/室内洗濯置/シューズボックス/温水洗浄便座/洗面所独立/洗面化粧台/宅配ボックス/光ファイバー/即入居可/礼金不要/最上階/敷金不要/防犯カメラ/照明付/ロフト/全居室洋室/保証人不要/カードキー/全居室フローリング/デザイナーズ/2沿線利用可/クッションフロア/ネット専用回線/駅まで平坦/ネット使用料不要/エアコン全室/築2年以内/電子キー/電子ロック/トイレ未使用/吹抜け/耐震構造/階段下収納/準耐火構造/2駅利用可/駅徒歩10分以内/外壁サイディング/天井高2.5m以上/上階無し/敷地内ごみ置き場/ドアタッチキー/リビング吹抜け/キッチン未使用/シャワールーム/洗面所にドア/室内物干機/玄関収納/ダウンライト/年内入居可/年度内入居可/敷金・礼金不要/保証会社利用可/初期費用30万円以下/IT重説 対応物件/初期費用カード決済可/全室照明付/サミットストア新小岩駅北口店(スーパー)まで775m/文明堂(飲食店)まで1017m/葛飾区保健所 新小岩保健センター(その他)まで255m/どらっぐぱぱす 西新小岩店(ドラッグストア)まで229m/グリーンマート新小岩西店(スーパー)まで309m/セブンイレブン 西新小岩店(コンビニ)まで321m/賃貸戸数:14戸 |
| 特記事項 |
最上階・デザイナーズ物件・保証人不要/代行 |
東京都葛飾区西新小岩4 周辺地図情報
※地図上に表示される物件の位置は付近住所に所在することを表すものであり、実際の物件所在地とは異なる場合がございます。
正確な物件所在地は、取扱い不動産会社にお問い合わせください。
- お問い合わせ先
- アキバ・エステート (株)OCEAN
不動産会社情報
| お問い合わせ先 |
商号:アキバ・エステート (株)OCEAN 免許番号:東京都知事(2)第100085号 所在地:東京都千代田区神田佐久間町1-16-1 大橋ビル604 TEL:03-6262-9550 取引態様:仲介 管理コード:237660 所属協会など:(公社)首都圏不動産公正取引協議会加盟、(公社)全日本不動産協会東京都本部会員
|
共有する |
|
- お問い合わせ先
- アキバ・エステート (株)OCEAN
人口などの統計情報
| 世帯数 |
215709世帯 |
| 人口総数 |
467000人 |
| 転入者数 |
32236人
- 転入率(人口1000人当たり)
- 69.03人
|
| 転出者数 |
26047人
- 転出率(人口1000人当たり)
- 55.78人
|
| 土地平均価格 |
- 住宅地
- 345600円/m2
- 商業地
- 634125円/m2
|
結婚・育児の助成金
| 子育て関連の独自の取り組み |
(1)5歳児健康診査(発達・発育アンケートの結果をもとに対応が必要な児童に集団遊び観察と医療機関の5歳児診察を実施)。(2)かつしか出産応援給付金(2023年4月以降生まれ児童の養育者へ、対象児童一人当たり5万円給付)。(3)子ども二人乗せ自転車等購入費用一部助成(小学生未満1人以上養育世帯へ購入費用の一部助成。上限5万円)。(4)多胎児用ベビーカー購入等費用一部助成(3歳未満多胎児養育世帯へ購入等費用の一部助成。上限3万円)。(5)産後ケア(宿泊ケア、乳房ケア、デイケア)と産婦健康診査の費用補助。(6)家庭で保育をする保護者の一時保育利用料助成(児童1人につき125円/1時間、月額8,000円上限)。(7)従来型幼稚園に通う2歳児の保育料補助。 |
| 出産祝い |
あり |
| 公立保育所数 |
37所(うち0歳児保育を実施している保育所:31所) |
| 私立保育所数 |
87所(うち0歳児保育を実施している保育所:86所) |
| 保育所入所待機児童数 |
0人 |
| 認定こども園数 |
9園 |
預かり保育実施園数 |
公立:0園 私立:22園 |
| 学校給食 |
【小学校】完全給食【中学校】完全給食 |
| 公立中学校の学校選択制 |
実施(指定校変更制) |
| 子ども・学生等医療費助成<通院>対象年齢 |
18歳3月末まで |
子ども・学生等医療費助成<入院>対象年齢 |
18歳3月末まで |
葛飾区の治安・ごみ収集情報
公共料金・インフラ
| ガス料金(22m3使用した場合の月額) |
東京瓦斯株式会社(東京地区等)3926円 |
| 水道料金(口径20mmで20m3の月額) |
東京都水道局2816円 |
| 下水道料金(20m3を使用した場合の月額) |
東京都下水道局2068円 |
| 下水道普及率 |
100.0% |
安心・安全
| 建物火災出火件数 |
91件
- 人口10000人当たり
- 2.01件
|
| 刑法犯認知件数 |
2853件
- 人口1000人当たり
- 6.30件
|
| ハザード・防災マップ |
あり |
医療
| 一般病院総数 |
21ヶ所 |
| 一般診療所総数 |
368ヶ所 |
| 小児科医師数 |
100人
- 小児人口10000人当たり
- 19.69人
|
| 産婦人科医師数 |
36人
- 15~49歳女性人口1万人当たり
- 3.66人
|
| 介護保険料基準額(月額) |
6860円 |
ごみ
| 家庭ごみ収集(可燃ごみ) |
無料
|
| 家庭ごみの分別方式 |
4分別11種〔燃やすごみ 燃やさないごみ 資源(ペットボトル、飲食用のびん・缶、食品トレイ、新聞、ダンボール、本・雑誌、紙パック、その他の紙) プラスチック製容器包装(プラマークの日)〕 |
| 家庭ごみの戸別収集 |
一部実施(高齢者等要件に該当する方に実施、商店街や駅前など一部エリアで実施) |
| 粗大ごみ収集 |
あり
|
| 生ごみ処理機助成金制度 |
あり
- 上限金額
- 20000円
- 上限比率
- 50.0%
|
※行政機関により公表していない地域及びデータがございます。東京23区以外の政令指定都市は、市全体のデータとして表示しています。
※提供データには細心の注意を払っておりますが、調査後に変更がある場合があります。 最新の情報につきましては各市区役所までお問い合わせいただくか、自治体HPなどをご確認ください。
葛飾区の暮らしデータをもっと見る