アプリで簡単 物件探し 通知 共有 アプリならではの機能を使ってみる
賃貸マンション

東京都豊島区巣鴨3 巣鴨駅 1LDK 賃貸(賃貸マンション・アパート)

情報提供元
SUUMO
賃料 16.2万円  (管理費等:12000円)
礼金・敷金 1ヶ月 / 1ヶ月 保証金/敷引・償却 なし / -
交通
所在地 東京都豊島区巣鴨3周辺地図
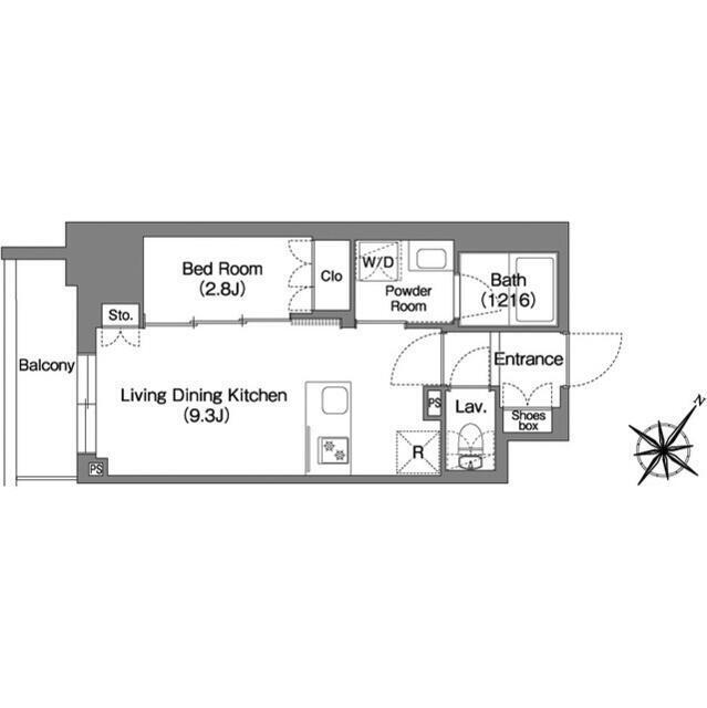
間取り 1LDK 専有面積 32.5m2
築年月 2023年5月 築年数 築2年8ヶ月
おすすめポイント
セキュリティ面は、TVインターホン・オートロックなどを備え付 セキュリティ面は、TVインターホン・オートロックなどを備え付けているので安心して暮らせます。化粧品やスタイリング剤などをまとめて出し入れして、サッと身支度を整えられる独立洗面台があります。お部屋の詳細

詳細情報

賃料 16.2万円 管理費等 12000円
敷金 1ヶ月 礼金 1ヶ月
保証金 なし 敷引・償却 -
更新料 - 契約期間
カード決済 -
所在地 東京都豊島区巣鴨3周辺地図
交通
建物名  
間取り 1LDK(洋2.8 LDK9.3) 築年月(築年数) 2023年5月(築2年8ヶ月)
専有面積 32.5㎡ 所在階/階数 7階/14階建
建物構造 RC  方位 南西 
現況   駐車場 無    近くの駐車場を探す
入居可能時期 2026年1月下旬 住宅保険 あり 2年 16550円
情報提供元 SUUMO[030H100476157054] 情報公開日
情報更新日 次回更新予定日 随時

設備など

2階以上 最上階 - 角部屋 -
駐車場(近隣含) - エアコン付き バス・トイレ別 -
室内洗濯機置き場 - 追焚機能 オートロック付き
モニタ付インターホン フローリング - バルコニー -
ガスコンロ可 - 浴室乾燥機 - 24時間セキュリティ -
宅配ボックス ペット相談可 二人入居可 -
設備 冷房・暖房・エアコン・オートロック・トイレ・洗面所・エレベーター・CATV・追焚機能・温水洗浄便座・モニタ付インターホン・宅配BOX・風呂・CS・ディンプルキー・防犯カメラ・洗面所独立・インターネット無料・インターネット対応 
リフォーム履歴 -
リノベーション履歴 -
備考 清掃費4.4万円 エアコン清掃費1.1万円 鍵交換代3.3万円/更新料 新賃料1.00ヶ月分/保証会社利用必:エポスカード(RP) 保証料:賃料等の50%(最低2万)、月額保証料:賃料等の1%(更新料無)/仲介手数料1.100ヶ月/普通借家02年0ヶ月/ペット相談/エアコン/TVインターホン/オートロック/追焚機能浴室/温水洗浄便座/エレベーター/洗面所独立/宅配ボックス/CATV/防犯カメラ/ペット相談/敷金1ヶ月/ディンプルキー/CS/ネット使用料不要/ダブルロックキー/保証金不要/築3年以内/24時間ゴミ出し可/築5年以内/南西向き/礼金1ヶ月/まいばすけっと 南大塚千川通り店(スーパー)まで944m 
特記事項 ペット相談可

省エネ性能

エネルギー消費性能 -
断熱性能 -
目安光熱費 -

東京都豊島区巣鴨3 周辺地図情報

地図
※地図上に表示される物件の位置は付近住所に所在することを表すものであり、実際の物件所在地とは異なる場合がございます。
   正確な物件所在地は、取扱い不動産会社にお問い合わせください。

不動産会社情報

お問い合わせ先 商号:(株)クレディフォルム
免許番号:東京都知事(3)第90149号
所在地:東京都中央区銀座6-12-15 いちご銀座612ビル4階
TEL:03-6228-5878
取引態様:仲介
管理コード:582658
所属協会など:(公社)首都圏不動産公正取引協議会加盟、(公社)東京都宅地建物取引業協会会員
共有する
QRコード

    豊島区の暮らしデータ

    人口などの統計情報

    世帯数 183687世帯
    人口総数 291650人
    転入者数 35939人
    転入率(人口1000人当たり)
    123.23人
    転出者数 30649人
    転出率(人口1000人当たり)
    105.09人
    土地平均価格
    住宅地
    783000円/m2
    商業地
    2992846円/m2

    結婚・育児の助成金

    子育て関連の独自の取り組み (1)としまもっと見る知る(アプリ)による出産子育て情報の提供。(2)ゆりかご・としま事業等実施。(3)生涯学習保育者登録制度(区民グループの学習活動中の保育者派遣)。(4)地域がつながるプロジェクト。(5)妊産婦歯科健診、1歳児歯科健診・総合相談の実施。(6)月齢4ヶ月から11ヶ月のお子さんを養育する世帯に訪問し状況を伺い育児支援品に引き換えできる電子クーポンを訪問1回につき3,000円相当を配付。(7)妊娠期からの男性育児支援。(8)一時保育事業において2回目以降の予約申し込みの際はWEB申し込み可。(9)東部・西部子ども家庭支援センターの幼児が使用したおむつを圧縮ラミネートにより無菌状態で回収。
    出産祝い あり
    公立保育所数 18所(うち0歳児保育を実施している保育所:18所)
    私立保育所数 75所(うち0歳児保育を実施している保育所:65所)
    保育所入所待機児童数 0人
    認定こども園数 1園 預かり保育実施園数 公立:3園 私立:14園
    学校給食 【小学校】完全給食【中学校】完全給食
    公立中学校の学校選択制 実施(新入学時のみ[隣接区域選択制])
    子ども・学生等医療費助成<通院>対象年齢 18歳3月末まで 子ども・学生等医療費助成<入院>対象年齢 18歳3月末まで

    豊島区の治安・ごみ収集情報

    公共料金・インフラ

    ガス料金(22m3使用した場合の月額) 東京瓦斯株式会社(東京地区等)3926円
    水道料金(口径20mmで20m3の月額) 東京都水道局2816円
    下水道料金(20m3を使用した場合の月額) 東京都下水道局2068円
    下水道普及率 100.0%

    安心・安全

    建物火災出火件数 78件
    人口10000人当たり
    2.59件
    刑法犯認知件数 3405件
    人口1000人当たり
    11.29件
    ハザード・防災マップ あり

    医療

    一般病院総数 14ヶ所
    一般診療所総数 509ヶ所
    小児科医師数 86人
    小児人口10000人当たり
    32.96人
    産婦人科医師数 35人
    15~49歳女性人口1万人当たり
    4.75人
    介護保険料基準額(月額) 6200円

    ごみ

    家庭ごみ収集(可燃ごみ) 無料
    備考
    一度に大量のごみを出す場合(45リットルの袋で4袋以上)は有料。
    家庭ごみの分別方式 3分別13種〔燃やすごみ 金属・陶器・ガラスごみ 資源1(紙布類[新聞、雑誌、段ボール、厚紙製の箱、包装紙、牛乳パック、古布]、びん・かん・ペットボトル、プラスチック)〕 拠点回収:小型家電 蛍光灯 乾電池 廃食油
    家庭ごみの戸別収集 一部実施(高齢者、障害者等の世帯で、自力でごみを集積所まで出すことが困難であり、身近な人の協力を得ることができない世帯に訪問収集を実施)
    粗大ごみ収集 あり
    備考
    有料。事前申込制。
    生ごみ処理機助成金制度 あり
    上限金額
    20000円
    上限比率
    50.0%
    暮らしデータ提供元:生活ガイド.com
    ※行政機関により公表していない地域及びデータがございます。東京23区以外の政令指定都市は、市全体のデータとして表示しています。
    ※提供データには細心の注意を払っておりますが、調査後に変更がある場合があります。 最新の情報につきましては各市区役所までお問い合わせいただくか、自治体HPなどをご確認ください。
    OCN×ドコモ光新規お申込みで合計最大137,280円相当おトク!特典の内訳・適用条件など詳細はこちら

    豊島区内の各駅の住みやすさ

    他のエリアから探す

    豊島区の詳細地域から賃貸物件を探す

    池袋池袋本町要町上池袋北大塚駒込巣鴨千川雑司が谷高田高松千早長崎西池袋西巣鴨東池袋南池袋南大塚南長崎目白

    近辺の市区から探す

    川口市蕨市戸田市和光市千代田区中央区港区新宿区文京区台東区墨田区江東区目黒区世田谷区渋谷区中野区杉並区北区荒川区板橋区練馬区足立区葛飾区

    周辺の駅から探す

    山手線
    高田馬場目白池袋大塚巣鴨駒込田端西日暮里日暮里
    都営地下鉄三田線
    板橋本町板橋区役所前新板橋西巣鴨巣鴨千石白山春日水道橋

    東京都豊島区で他のジャンルから探す


    掲載情報の著作権は提供元企業等に帰属します。
    Copyright:(C) 2025 Recruit Co., Ltd.
    アプリで簡単 物件探し 大手不動産サイトの情報から一括検!プッシュ通知で物件を見逃さない
    App Storeからダウンロード Google Playで手に入れよう QRコード