アプリで簡単 物件探し 通知 共有 アプリならではの機能を使ってみる
賃貸マンション

グランドパレス37 浦安駅 3LDK 賃貸(賃貸マンション・アパート)

情報提供元
SUUMO
グランドパレス37 外観
賃料 14万円  (管理費等:10000円)
礼金・敷金 1ヶ月 / 1ヶ月 保証金/敷引・償却 なし / -
交通
所在地 千葉県浦安市北栄4周辺地図
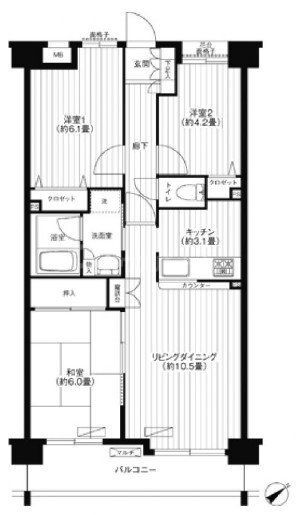
間取り 3LDK 専有面積 65.22m2
築年月 2002年3月 築年数 築23年9ヶ月
おすすめポイント
☆ハウスパートナー葛西店のおすすめ物件です☆ ☆当店で掲載している物件以外もお気軽にお問い合わせください☆お部屋探しに重要な、物件の「比較」が効率よく簡単にできますので、良いお部屋探しができます。
お問い合わせ先
(株)ハウスパートナー葛西店
お問い合わせ先
(株)ハウスパートナー葛西店

詳細情報

賃料 14万円 管理費等 10000円
敷金 1ヶ月 礼金 1ヶ月
保証金 なし 敷引・償却 -
更新料 - 契約期間
カード決済 初期費用カード決済可
所在地 千葉県浦安市北栄4周辺地図
交通
  • 東京メトロ東西線 浦安駅 徒歩15分乗換案内
  • 東京メトロ東西線 南行徳駅 徒歩23分乗換案内
  • JR京葉線 新浦安駅 徒歩24分乗換案内
建物名 グランドパレス37 
間取り 3LDK(和6.0 洋6.1 洋4.2 LDK13.6) 築年月(築年数) 2002年3月(築23年9ヶ月)
専有面積 65.22㎡ 所在階/階数 4階/5階建
建物構造 RC  方位 南東 
現況   駐車場 無    近くの駐車場を探す
入居可能時期 即時 住宅保険 あり
情報提供元 SUUMO[030H100469938028] 情報公開日
情報更新日 次回更新予定日 随時

設備など

2階以上 最上階 - 角部屋 -
駐車場(近隣含) - エアコン付き バス・トイレ別
室内洗濯機置き場 追焚機能 オートロック付き
モニタ付インターホン フローリング バルコニー
ガスコンロ可 浴室乾燥機 - 24時間セキュリティ -
宅配ボックス ペット相談可 - 二人入居可
設備 冷房・暖房・エアコン・オートロック・バルコニー・バス・トイレ別・トイレ・収納スペース・洗濯機置場・洗面所・エレベーター・CATV・BS端子・追焚機能・フローリング・ガスコンロ可・システムキッチン・カウンターキッチン・モニタ付インターホン・宅配BOX・駐輪場・風呂・対面K・クローゼット・都市ガス・浴トイレ別・防犯カメラ・洗面所独立・コンロ2口以上・シューズボックス・インターネット対応・室内洗濯機置き場 
リフォーム履歴 -
リノベーション履歴 -
備考 損保要/更新料新賃料(ヶ月):1.00ヶ月/保証会社利用必:初回総賃料の40%。月々総賃料の1%。2年毎に更新料月額1%。/普通借家02年00ヶ月/二人入居可/要火災保険。鍵交換代:22000円。/バストイレ別/バルコニー/エアコン/ガスコンロ対応/クロゼット/フローリング/TVインターホン/オートロック/室内洗濯置/陽当り良好/シューズボックス/システムキッチン/追焚機能浴室/エレベーター/洗面所独立/駐輪場/宅配ボックス/押入/CATV/光ファイバー/即入居可/3口以上コンロ/対面式キッチン/防犯カメラ/グリル付/保証人不要/敷金1ヶ月/二人入居相談/2沿線利用可/保証金不要/敷地内ごみ置き場/東南向き/LDK12畳以上/都市ガス/BS/高速ネット対応/礼金1ヶ月/IT重説 対応物件/初期費用カード決済可/ファミリーマート浦安北栄四丁目店(コンビニ)まで130m/ダイエー浦安駅前店(スーパー)まで940m/浦安市立東小学校(小学校)まで670m/東京ベイ・浦安市川医療センター(病院)まで1880m/浦安市立ふたば保育園(幼稚園・保育園)まで150m/浦安警察署(警察署・交番)まで1740m 
特記事項 二人入居可・日当り良好・保証人不要/代行 ・初期費用カード決済可

省エネ性能

エネルギー消費性能 -
断熱性能 -
目安光熱費 -

千葉県浦安市北栄4 周辺地図情報

地図
※地図上に表示される物件の位置は付近住所に所在することを表すものであり、実際の物件所在地とは異なる場合がございます。
   正確な物件所在地は、取扱い不動産会社にお問い合わせください。
お問い合わせ先
(株)ハウスパートナー葛西店

不動産会社情報

お問い合わせ先 商号:(株)ハウスパートナー葛西店
免許番号:国土交通大臣(2)第9556号
所在地:東京都江戸川区中葛西3-35-1
TEL:03-5676-7770
取引態様:仲介
管理コード:R00201-029579
所属協会など:(公社)首都圏不動産公正取引協議会加盟、(公社)全日本不動産協会東京都本部会員
共有する
QRコード
お問い合わせ先
(株)ハウスパートナー葛西店

浦安市の暮らしデータ

人口などの統計情報

世帯数 80250世帯
人口総数 170671人
転入者数 11257人
転入率(人口1000人当たり)
65.96人
転出者数 10130人
転出率(人口1000人当たり)
59.35人
土地平均価格
住宅地
379000円/m2
商業地
1130000円/m2

結婚・育児の助成金

子育て関連の独自の取り組み (1)地域子育て支援員による「子育てケアプラン」の作成。(2)保育カウンセラーの配置。(3)第3子以降学校給食費減免制度。(4)病児・病後児保育。(5)子どもインフルエンザ予防接種費用の一部助成。(6)ファミリーサポートセンター多胎児利用補助金。
出産祝い あり
公立保育所数 7所(うち0歳児保育を実施している保育所:7所)
私立保育所数 35所(うち0歳児保育を実施している保育所:35所)
保育所入所待機児童数 0人
認定こども園数 12園 預かり保育実施園数 公立:0園 私立:5園
学校給食 【小学校】完全給食【中学校】完全給食
公立中学校の学校選択制 一部実施(小規模学校選択制度)
子ども・学生等医療費助成<通院>対象年齢 18歳3月末まで 子ども・学生等医療費助成<入院>対象年齢 18歳3月末まで

浦安市の治安・ごみ収集情報

公共料金・インフラ

ガス料金(22m3使用した場合の月額) 京葉瓦斯株式会社4515円
水道料金(口径20mmで20m3の月額) 千葉県営水道3250円
下水道料金(20m3を使用した場合の月額) 浦安市1848円
下水道普及率 99.8%

安心・安全

建物火災出火件数 25件
人口10000人当たり
1.46件
刑法犯認知件数 1083件
人口1000人当たり
6.32件
ハザード・防災マップ あり

医療

一般病院総数 6ヶ所
一般診療所総数 105ヶ所
小児科医師数 46人
小児人口10000人当たり
23.05人
産婦人科医師数 34人
15~49歳女性人口1万人当たり
8.04人
介護保険料基準額(月額) 4980円

ごみ

家庭ごみ収集(可燃ごみ) 無料
備考
家庭用指定ごみ袋は市から認定を受けた製造販売事業者が小売店を通じて販売している。家庭用指定ごみ袋にごみ収集費・処理料金等の処理費用は含まず。
家庭ごみの分別方式 4分別14種〔可燃ごみ 不燃ごみ 資源物(紙類[新聞、雑誌・紙製容器包装、段ボール、紙パック]、ビン、カン、ペットボトル) 有害ごみ(蛍光管、水銀体温計、乾電池、コイン電池、発火性危険物)〕 拠点回収:古着・古布、廃食油、使用済小型家電 集団回収:新聞、雑誌、段ボール、紙パック、紙製容器包装、布類 ※新聞、雑誌、段ボール、紙パック、紙製容器包装は、収集車による回収でも集団回収でも可。
家庭ごみの戸別収集 実施(ほとんどの地域で戸別収集。ごく一部に地域集積所の箇所あり)
粗大ごみ収集 あり
備考
有料。事前申込制。粗大ごみ受付センターに電話申請、又は電子申請(ちば電子申請サービス)。
生ごみ処理機助成金制度 なし
上限金額
-
上限比率
-
暮らしデータ提供元:生活ガイド.com
※行政機関により公表していない地域及びデータがございます。東京23区以外の政令指定都市は、市全体のデータとして表示しています。
※提供データには細心の注意を払っておりますが、調査後に変更がある場合があります。 最新の情報につきましては各市区役所までお問い合わせいただくか、自治体HPなどをご確認ください。
OCN×ドコモ光新規お申込みで合計最大137,280円相当おトク!特典の内訳・適用条件など詳細はこちら

掲載情報の著作権は提供元企業等に帰属します。
Copyright:(C) 2025 Recruit Co., Ltd.
アプリで簡単 物件探し 大手不動産サイトの情報から一括検!プッシュ通知で物件を見逃さない
App Storeからダウンロード Google Playで手に入れよう QRコード