アプリで簡単 物件探し 通知 共有 アプリならではの機能を使ってみる
賃貸アパート

レオパレスシェソワIII 我孫子駅 1K 賃貸(賃貸マンション・アパート)

情報提供元
SUUMO
レオパレスシェソワIII
賃料 6.3万円  (管理費等:5000円)
礼金・敷金 1ヶ月 / なし 保証金/敷引・償却 なし / -
交通
所在地 千葉県我孫子市我孫子1周辺地図
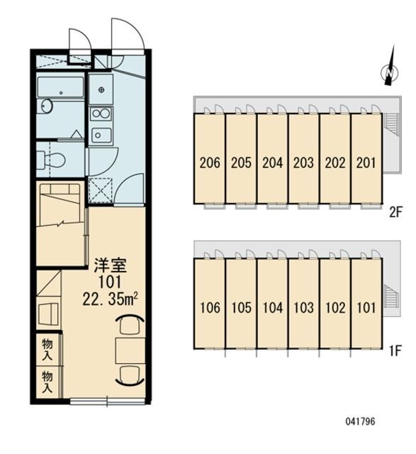
間取り 1K 専有面積 22.35m2
築年月 2009年4月 築年数 築16年9ヶ月
おすすめポイント
★オンライン内見・現地お待ち合わせ承ります★ ★遠方の方ご来店が難しい方もオンライン対応可能ですので是非一度ご相談くださいませ!お部屋探しはタウンハウジングにお任せ下さい★
お問い合わせ先
(株)タウンハウジング千葉新鎌ヶ谷店
お問い合わせ先
(株)タウンハウジング千葉新鎌ヶ谷店

詳細情報

賃料 6.3万円 管理費等 5000円
敷金 なし 礼金 1ヶ月
保証金 なし 敷引・償却 -
更新料 - 契約期間
カード決済 -
所在地 千葉県我孫子市我孫子1周辺地図
交通
建物名 レオパレスシェソワIII 
間取り 1K(洋6.1 K1.5) 築年月(築年数) 2009年4月(築16年9ヶ月)
専有面積 22.35㎡ 所在階/階数 2階/2階建
建物構造 軽量鉄骨  方位 南 
現況   駐車場 無    近くの駐車場を探す
入居可能時期 即時 住宅保険 あり 2年 19900円
情報提供元 SUUMO[030H100475715973] 情報公開日
情報更新日 次回更新予定日 随時

設備など

2階以上 最上階 角部屋 -
駐車場(近隣含) - エアコン付き バス・トイレ別
室内洗濯機置き場 追焚機能 - オートロック付き -
モニタ付インターホン フローリング バルコニー -
ガスコンロ可 - 浴室乾燥機 24時間セキュリティ -
宅配ボックス - ペット相談可 - 二人入居可 -
設備 冷房・暖房・エアコン・バス・トイレ別・トイレ・収納スペース・洗濯機置場・CATV・冷蔵庫・フローリング・浴室乾燥機・照明器具・温水洗浄便座・システムキッチン・モニタ付インターホン・衣類乾燥機・IHクッキングヒータ・浴トイレ別・家具付き・シューズボックス・室内洗濯機置き場 
リフォーム履歴 -
リノベーション履歴 -
備考 つくばエクスプレス柏の葉キャンパス駅車20分8.1Km/鍵交換代:16500円/室内清掃費用:41800円/更新料金額(円):16500円、環境維持費:550円/月/保証会社利用必:保証人代行会社 プラザ賃貸管理保証賃貸保証料 100%保証人代行詳細 初回保証料月額総支払額の100%or120%年間保証料1万円/普通借家02年00ヶ月/学生希望/単身者可/★オンライン内見・対応・申込可能ですので是非一度タウンハウジングにお問い合わせください。先行申込受付中★/バストイレ別/エアコン/フローリング/TVインターホン/浴室乾燥機/室内洗濯置/陽当り良好/シューズボックス/システムキッチン/南向き/温水洗浄便座/CATV/即入居可/閑静な住宅地/最上階/敷金不要/IHクッキングヒーター/照明付/保証人不要/単身者相談/冷蔵庫/駅まで平坦/洗濯機/保証金不要/電子レンジ/家電付/家具付/上階無し/敷地内ごみ置き場/礼金1ヶ月/テレビ/くすりの福太郎(ドラッグストア)まで370m/デイリーヤマザキ(コンビニ)まで390m/東葛辻仲病院(病院)まで1300m/東武ストア(スーパー)まで390m/中央学院大学(その他)まで1000m/モスバーガー(その他)まで350m/賃貸戸数:12戸 
特記事項 最上階・日当り良好・閑静な住宅街・保証人不要/代行

省エネ性能

エネルギー消費性能 -
断熱性能 -
目安光熱費 -

千葉県我孫子市我孫子1 周辺地図情報

地図
※地図上に表示される物件の位置は付近住所に所在することを表すものであり、実際の物件所在地とは異なる場合がございます。
   正確な物件所在地は、取扱い不動産会社にお問い合わせください。
お問い合わせ先
(株)タウンハウジング千葉新鎌ヶ谷店

不動産会社情報

お問い合わせ先 商号:(株)タウンハウジング千葉新鎌ヶ谷店
免許番号:国土交通大臣(1)第9927号
所在地:千葉県鎌ケ谷市新鎌ケ谷1-16-1 Mois Tour1階
TEL:047-446-7811
取引態様:仲介
管理コード:R01118-110110
所属協会など:(公社)首都圏不動産公正取引協議会加盟、(一社)千葉県宅地建物取引業協会会員
共有する
QRコード
お問い合わせ先
(株)タウンハウジング千葉新鎌ヶ谷店

    我孫子市の暮らしデータ

    人口などの統計情報

    世帯数 56242世帯
    人口総数 131286人
    転入者数 6469人
    転入率(人口1000人当たり)
    49.27人
    転出者数 5222人
    転出率(人口1000人当たり)
    39.78人
    土地平均価格
    住宅地
    99831円/m2
    商業地
    221750円/m2

    結婚・育児の助成金

    子育て関連の独自の取り組み (1)子育てに関するイベントや講習会を企業や歯科医師会等と共催したり短時間託児サービスを市民団体と共催する等の子育て支援策。(2)産婦健康診査、産後ケア事業、幼稚園・保育園でのフッ素洗口事業、小児インフルエンザ・ロタウイルス感染症予防接種費用一部助成、4ヶ月児相談、2歳8ヶ月児歯科健康診査、離乳食教室、後期離乳食教室、5歳児健康診査、親っこ歯科健康診査、ホールボディカウンタ助成、甲状腺検査費用の一部助成。(3)ひとり親家庭等医療費等助成、ひとり親家庭等支援事業。
    出産祝い なし
    公立保育所数 3所(うち0歳児保育を実施している保育所:3所)
    私立保育所数 17所(うち0歳児保育を実施している保育所:17所)
    保育所入所待機児童数 0人
    認定こども園数 9園 預かり保育実施園数 公立:- 私立:3園
    学校給食 【小学校】完全給食【中学校】完全給食
    公立中学校の学校選択制 未実施
    子ども・学生等医療費助成<通院>対象年齢 18歳3月末まで 子ども・学生等医療費助成<入院>対象年齢 18歳3月末まで

    我孫子市の治安・ごみ収集情報

    公共料金・インフラ

    ガス料金(22m3使用した場合の月額) 京葉瓦斯株式会社4515円
    東日本ガス株式会社(我孫子・取手地区)5271円
    日本瓦斯株式会社(我孫子地区)4644円
    水道料金(口径20mmで20m3の月額) 我孫子市2882円
    下水道料金(20m3を使用した場合の月額) 我孫子市2453円
    下水道普及率 85.2%

    安心・安全

    建物火災出火件数 7件
    人口10000人当たり
    0.54件
    刑法犯認知件数 607件
    人口1000人当たり
    4.65件
    ハザード・防災マップ あり

    医療

    一般病院総数 7ヶ所
    一般診療所総数 69ヶ所
    小児科医師数 5人
    小児人口10000人当たり
    3.73人
    産婦人科医師数 7人
    15~49歳女性人口1万人当たり
    2.93人
    介護保険料基準額(月額) 5500円

    ごみ

    家庭ごみ収集(可燃ごみ) 無料
    備考
    -
    家庭ごみの分別方式 4分別18種〔可燃ごみ 不燃ごみ 資源(古紙類[新聞、ダンボール、雑誌・雑がみ、紙パック]、古繊維類、空きびん[無色びん、茶色びん、その他色びん]、空き缶、金属類、容器包装その他プラスチック、ペットボトル、廃食用油、乾電池・ボタン電池・コイン型リチウムイオン電池、蛍光管有害再生物) 燃やせないごみ(剪定枝木)〕 拠点回収:使用済小型家電
    家庭ごみの戸別収集 一部実施(我孫子市ひとり暮らし高齢者等ごみ出し支援ふれあい収集)
    粗大ごみ収集 あり
    備考
    有料。戸別収集。事前申込制。
    生ごみ処理機助成金制度 あり
    上限金額
    5000円
    上限比率
    66.7%
    暮らしデータ提供元:生活ガイド.com
    ※行政機関により公表していない地域及びデータがございます。東京23区以外の政令指定都市は、市全体のデータとして表示しています。
    ※提供データには細心の注意を払っておりますが、調査後に変更がある場合があります。 最新の情報につきましては各市区役所までお問い合わせいただくか、自治体HPなどをご確認ください。

    我孫子市内の各駅の住みやすさ

    他のエリアから探す

    我孫子市の詳細地域から賃貸物件を探す

    青山青山台我孫子新木新木野都部久寺家高野山寿湖北台下ケ戸柴崎柴崎台新々田台田つくし野天王台中里中峠中峠台並木根戸白山東我孫子日秀布佐布佐酉町船戸古戸本町南青山南新木若松

    近辺の市区から探す

    取手市守谷市つくばみらい市北相馬郡利根町柏市流山市鎌ケ谷市印西市白井市

    周辺の駅から探す

    常磐線
    南千住北千住松戸我孫子天王台取手藤代龍ケ崎市
    成田線
    我孫子東我孫子湖北新木布佐

    千葉県我孫子市で他のジャンルから探す


    掲載情報の著作権は提供元企業等に帰属します。
    Copyright:(C) 2025 Recruit Co., Ltd.
    アプリで簡単 物件探し 大手不動産サイトの情報から一括検!プッシュ通知で物件を見逃さない
    App Storeからダウンロード Google Playで手に入れよう QRコード