アプリで簡単 物件探し 通知 共有 アプリならではの機能を使ってみる
賃貸マンション

パークアクシス市川 市川駅 2LDK 賃貸(賃貸マンション・アパート)

情報提供元
SUUMO
パークアクシス市川
賃料 16.4万円  (管理費等:15000円)
礼金・敷金 2ヶ月 / 1ヶ月 保証金/敷引・償却 なし / -
交通
所在地 千葉県市川市市川1周辺地図
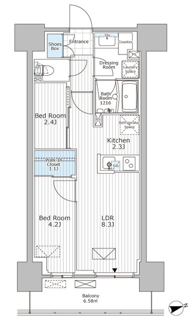
間取り 2LDK 専有面積 41.8m2
築年月 2024年7月 築年数 築1年6ヶ月
お問い合わせ先
ピタットハウス本八幡店スターツピタットハウス(株)
お問い合わせ先
ピタットハウス本八幡店スターツピタットハウス(株)

詳細情報

賃料 16.4万円 管理費等 15000円
敷金 1ヶ月 礼金 2ヶ月
保証金 なし 敷引・償却 -
更新料 - 契約期間 定期借家 24ヶ月
カード決済 -
所在地 千葉県市川市市川1周辺地図
交通
建物名 パークアクシス市川 
間取り 2LDK 築年月(築年数) 2024年7月(築1年6ヶ月)
専有面積 41.8㎡ 所在階/階数 12階/13階建
建物構造 RC  方位 東 
現況   駐車場 無    近くの駐車場を探す
入居可能時期 2026年1月下旬 住宅保険 あり
情報提供元 SUUMO[030H100472976532] 情報公開日
情報更新日 次回更新予定日 随時

設備など

2階以上 最上階 - 角部屋 -
駐車場(近隣含) - エアコン付き バス・トイレ別
室内洗濯機置き場 追焚機能 オートロック付き
モニタ付インターホン - フローリング バルコニー
ガスコンロ可 - 浴室乾燥機 24時間セキュリティ -
宅配ボックス ペット相談可 二人入居可 -
設備 冷房・暖房・エアコン・オートロック・バルコニー・バス・トイレ別・トイレ・収納スペース・洗濯機置場・洗面所・エレベーター・BS端子・追焚機能・フローリング・浴室乾燥機・ウォークインクローゼット・システムキッチン・宅配BOX・風呂・クローゼット・衣類乾燥機・浴トイレ別・洗面所独立・室内洗濯機置き場 
リフォーム履歴 -
リノベーション履歴 -
備考 損保要/カギ交換費用33000円/室内清掃費用78166円/口座振替事務手数料110円/保証会社利用必:初回保証委託料(最低20,000円):月額賃料等の50%、 2年目以降:9,600円/年/定期借家24ヶ月/ペット相談/事務所利用不可/バストイレ別/バルコニー/エアコン/フローリング/浴室乾燥機/オートロック/室内洗濯置/システムキッチン/追焚機能浴室/エレベーター/洗面所独立/宅配ボックス/ペット相談/グリル付/ウォークインクロゼット/敷金1ヶ月/保証金不要/築2年以内/駅徒歩5分以内/高層階/BS/礼金2ヶ月/巡回管理 
特記事項 ペット相談可・管理人巡回

省エネ性能

エネルギー消費性能 -
断熱性能 -
目安光熱費 -

千葉県市川市市川1 周辺地図情報

地図
※地図上に表示される物件の位置は付近住所に所在することを表すものであり、実際の物件所在地とは異なる場合がございます。
   正確な物件所在地は、取扱い不動産会社にお問い合わせください。
お問い合わせ先
ピタットハウス本八幡店スターツピタットハウス(株)

不動産会社情報

お問い合わせ先 商号:ピタットハウス本八幡店スターツピタットハウス(株)
免許番号:国土交通大臣(4)第7129号
所在地:千葉県市川市南八幡4-7-14シャトー夕月ビル1F
TEL:047-377-9111
取引態様:仲介
管理コード:
所属協会など:(公社)首都圏不動産公正取引協議会加盟、(一社)全国住宅産業協会会員
共有する
QRコード
お問い合わせ先
ピタットハウス本八幡店スターツピタットハウス(株)

    市川市の暮らしデータ

    人口などの統計情報

    世帯数 242637世帯
    人口総数 492895人
    転入者数 30850人
    転入率(人口1000人当たり)
    62.59人
    転出者数 28100人
    転出率(人口1000人当たり)
    57.01人
    土地平均価格
    住宅地
    296711円/m2
    商業地
    1488000円/m2

    結婚・育児の助成金

    子育て関連の独自の取り組み (1)保育料第2子以降無償化。(2)私立幼稚園の預かり保育利用料補助。(3)市立小中学校の学校給食費無償化。(4)子どもの成長応援臨時給付金(申請期間は2024年2月29日まで)。(5)市川市内在住の高校生以下の方の駐輪場使用料金の減免。
    出産祝い なし
    公立保育所数 20所(うち0歳児保育を実施している保育所:20所)
    私立保育所数 132所(うち0歳児保育を実施している保育所:122所)
    保育所入所待機児童数 0人
    認定こども園数 10園 預かり保育実施園数 公立:0園 私立:25園
    学校給食 【小学校】完全給食【中学校】完全給食
    公立中学校の学校選択制 未実施
    子ども・学生等医療費助成<通院>対象年齢 18歳3月末まで 子ども・学生等医療費助成<入院>対象年齢 18歳3月末まで

    市川市の治安・ごみ収集情報

    公共料金・インフラ

    ガス料金(22m3使用した場合の月額) 京葉瓦斯株式会社4515円
    水道料金(口径20mmで20m3の月額) 千葉県営水道3250円
    下水道料金(20m3を使用した場合の月額) 市川市2634円
    下水道普及率 79.0%

    安心・安全

    建物火災出火件数 44件
    人口10000人当たり
    0.89件
    刑法犯認知件数 2719件
    人口1000人当たり
    5.47件
    ハザード・防災マップ あり

    医療

    一般病院総数 10ヶ所
    一般診療所総数 321ヶ所
    小児科医師数 55人
    小児人口10000人当たり
    9.82人
    産婦人科医師数 31人
    15~49歳女性人口1万人当たり
    2.88人
    介護保険料基準額(月額) 6200円

    ごみ

    家庭ごみ収集(可燃ごみ) 無料
    備考
    指定ごみ袋は有料だが、袋代にごみ収集・処理料金等を含まず。
    家庭ごみの分別方式 6分別12種〔燃やすごみ 燃やさないごみ 有害ごみ プラスチック製容器包装類 紙類・布類(新聞、雑誌、ダンボール、紙パック、布類) ビン カン 剪定枝〕
    家庭ごみの戸別収集 未実施
    粗大ごみ収集 あり
    備考
    有料。戸別収集。事前申込制。大型ごみ専用電話に申し込み。処理券を貼付。
    生ごみ処理機助成金制度 なし
    上限金額
    -
    上限比率
    -
    暮らしデータ提供元:生活ガイド.com
    ※行政機関により公表していない地域及びデータがございます。東京23区以外の政令指定都市は、市全体のデータとして表示しています。
    ※提供データには細心の注意を払っておりますが、調査後に変更がある場合があります。 最新の情報につきましては各市区役所までお問い合わせいただくか、自治体HPなどをご確認ください。
    OCN×ドコモ光新規お申込みで合計最大137,280円相当おトク!特典の内訳・適用条件など詳細はこちら

    市川市内の各駅の住みやすさ

    他のエリアから探す

    市川市の詳細地域から賃貸物件を探す

    相之川新井伊勢宿市川市川南稲越入船大洲大野町大町大和田押切鬼越鬼高欠真間柏井町河原香取北方北国分行徳駅前国府台高谷国分塩浜塩焼島尻下貝塚下新宿新田末広菅野須和田関ケ島曽谷高石神田尻稲荷木富浜中国分中山新浜原木東大和田東国分東菅野日之出平田広尾福栄二俣奉免町堀之内本行徳本塩北方町真間湊新田南大野南行徳南八幡宮久保妙典本北方八幡若宮

    近辺の市区から探す

    船橋市松戸市習志野市鎌ケ谷市浦安市墨田区江東区葛飾区江戸川区

    周辺の駅から探す

    総武本線
    新日本橋馬喰町錦糸町新小岩市川船橋津田沼稲毛千葉
    京成電鉄本線
    京成高砂京成小岩江戸川国府台市川真間菅野京成八幡鬼越京成中山

    千葉県市川市で他のジャンルから探す


    掲載情報の著作権は提供元企業等に帰属します。
    Copyright:(C) 2025 Recruit Co., Ltd.
    アプリで簡単 物件探し 大手不動産サイトの情報から一括検!プッシュ通知で物件を見逃さない
    App Storeからダウンロード Google Playで手に入れよう QRコード