アプリで簡単 物件探し 通知 共有 アプリならではの機能を使ってみる
賃貸アパート

フェニックス神立 神立駅 1LDK 賃貸(賃貸マンション・アパート)

情報提供元
SUUMO
フェニックス神立
賃料 7万円  (管理費等:4000円)
礼金・敷金 なし / なし 保証金/敷引・償却 なし / -
交通
所在地 茨城県土浦市神立町周辺地図
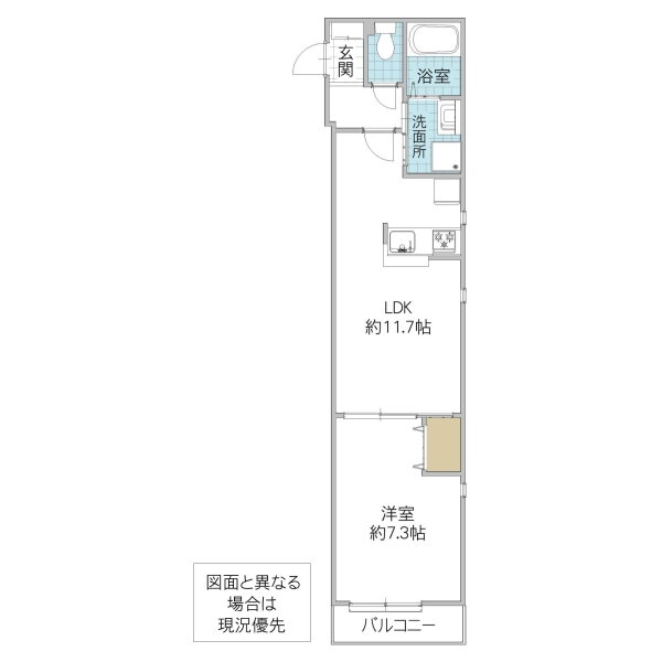
間取り 1LDK 専有面積 42.42m2
築年月 2025年12月 築年数 新築
おすすめポイント
インターネット無料!宅配ボックス付き♪ お問い合わせは香陵住販土浦支店まで♪

詳細情報

賃料 7万円 管理費等 4000円
敷金 なし 礼金 なし
保証金 なし 敷引・償却 -
更新料 - 契約期間
カード決済 -
所在地 茨城県土浦市神立町周辺地図
交通
建物名 フェニックス神立 
間取り 1LDK(洋7.30 LDK11.7) 築年月(築年数) 2025年12月 新築
専有面積 42.42㎡ 所在階/階数 2階/2階建
建物構造 軽量鉄骨  方位 南 
現況   駐車場 有 無料
入居可能時期 即時 住宅保険 あり 2年 17900円
情報提供元 SUUMO[030H100477113446] 情報公開日
情報更新日 次回更新予定日 随時

設備など

2階以上 最上階 角部屋
駐車場(近隣含) エアコン付き バス・トイレ別
室内洗濯機置き場 追焚機能 オートロック付き
モニタ付インターホン フローリング - バルコニー
ガスコンロ可 浴室乾燥機 24時間セキュリティ -
宅配ボックス ペット相談可 - 二人入居可 -
設備 冷房・暖房・エアコン・オートロック・バルコニー・バス・トイレ別・トイレ・収納スペース・洗濯機置場・洗面所・追焚機能・浴室乾燥機・ガスコンロ可・シャンプードレッサ・温水洗浄便座・システムキッチン・カウンターキッチン・モニタ付インターホン・宅配BOX・風呂・対面K・衣類乾燥機・プロパンガス・浴トイレ別・洗面所独立・コンロ2口以上・シューズボックス・インターネット無料・インターネット対応・室内洗濯機置き場 
リフォーム履歴 -
リノベーション履歴 -
備考 クリーニング費用:6.82万円/室内消毒費:1.1万円/町内会費:450円/安心入居サポート:1,100円/仲介手数料7.7000万円/事務所利用不可/安心入居サポート:1,100円/月額 鍵交換代:有 契約時定額クリーニング代有:68,200円 除菌消臭費:11,000円/契約時 火災保険要加入(1年or2年プラン有) 保証会社契約要(ジャックス):保証委託料として月支払総額の50%(初回預かり)・月額事務手数料:賃料合計の2%(税込) 法人契約時:礼金2ヶ月 楽器・石油ストーブ:不可 単身者可 二人入居可 事務所利用不可 入居者売電有(売電の/バストイレ別/バルコニー/エアコン/ガスコンロ対応/シャワー付洗面台/TVインターホン/浴室乾燥機/オートロック/室内洗濯置/シューズボックス/システムキッチン/南向き/追焚機能浴室/角住戸/温水洗浄便座/洗面所独立/洗面化粧台/宅配ボックス/外壁タイル張り/即入居可/最上階/3口以上コンロ/対面式キッチン/駐車場1台無料/ネット使用料不要/築2年以内/2階LDK/プロパンガス/シャッター/敷金・礼金不要/神立小(小学校)まで1430m/賃貸戸数:8戸 
特記事項 角部屋・外観タイル張り・最上階

省エネ性能

エネルギー消費性能 -
断熱性能 -
目安光熱費 -

茨城県土浦市神立町 周辺地図情報

地図
※地図上に表示される物件の位置は付近住所に所在することを表すものであり、実際の物件所在地とは異なる場合がございます。
   正確な物件所在地は、取扱い不動産会社にお問い合わせください。

不動産会社情報

お問い合わせ先 商号:香陵住販(株)土浦支店
免許番号:国土交通大臣(4)第7026号
所在地:茨城県土浦市港町1-8-32
TEL:029-823-6621
取引態様:仲介
管理コード:AG20178-0-205
共有する
QRコード

    土浦市の暮らしデータ

    人口などの統計情報

    世帯数 62961世帯
    人口総数 141613人
    転入者数 8210人
    転入率(人口1000人当たり)
    57.97人
    転出者数 6853人
    転出率(人口1000人当たり)
    48.39人
    土地平均価格
    住宅地
    32660円/m2
    商業地
    61825円/m2

    結婚・育児の助成金

    子育て関連の独自の取り組み (1)子育て交流サロン「わらべ」「のぞみ」(子育て世代の交流の場であり、子育てに関する悩みや相談を経験豊かなスタッフが応じている。月~土曜日9時~17時。妊婦や母だけでも利用可)。(2)育児応援サイト「ママフレ」(市の子育てに関する行政サービスを総合的に「分かり易く」「探しやすい」情報専用サイト)。(3)おたふくかぜ(1回目接種のみ、一部助成)、インフルエンザ(中学校3年生まで、一部助成)の予防接種費用の助成。(4)子育て支援アプリ「つちまるKids」(スマートフォンに指定のアプリをダウンロードすることで、市からの子育て情報や予防接種の管理等ができる)。
    出産祝い なし
    公立保育所数 4所(うち0歳児保育を実施している保育所:2所)
    私立保育所数 16所(うち0歳児保育を実施している保育所:15所)
    保育所入所待機児童数 0人
    認定こども園数 13園 預かり保育実施園数 公立:- 私立:3園
    学校給食 【小学校】完全給食【中学校】完全給食
    公立中学校の学校選択制 未実施
    子ども・学生等医療費助成<通院>対象年齢 18歳3月末まで 子ども・学生等医療費助成<入院>対象年齢 18歳3月末まで

    土浦市の治安・ごみ収集情報

    公共料金・インフラ

    ガス料金(22m3使用した場合の月額) 東部瓦斯株式会社(郡山・いわき・水戸・土浦・守谷地区)5491円
    水道料金(口径20mmで20m3の月額) 土浦市4119円
    下水道料金(20m3を使用した場合の月額) 土浦市2750円
    下水道普及率 88.3%

    安心・安全

    建物火災出火件数 32件
    人口10000人当たり
    2.25件
    刑法犯認知件数 1284件
    人口1000人当たり
    9.04件
    ハザード・防災マップ あり

    医療

    一般病院総数 6ヶ所
    一般診療所総数 108ヶ所
    小児科医師数 50人
    小児人口10000人当たり
    34.08人
    産婦人科医師数 23人
    15~49歳女性人口1万人当たり
    8.76人
    介護保険料基準額(月額) 6150円

    ごみ

    家庭ごみ収集(可燃ごみ) 有料
    備考
    2018年10月1日より有料。排出量単純比例制。排出するごみ袋の数に応じて排出者が料金を負担する。
    家庭ごみの分別方式 3分別15種〔燃やせるごみ 燃やせないごみ 資源物(生ごみ、容器包装プラスチック、ペットボトル、古布、缶、ビン[白・透明、茶、緑、その他]、乾電池・充電池、新聞、ダンボール、ざつ紙)〕 拠点回収:充電池 蛍光管 廃食用油 使用済み小型家電 ペットボトル
    家庭ごみの戸別収集 一部実施(重度視覚障害者を対象とした戸別収集を実施)
    粗大ごみ収集 あり
    備考
    有料。戸別収集。事前申込制。
    生ごみ処理機助成金制度 あり
    上限金額
    20000円
    上限比率
    50.0%
    暮らしデータ提供元:生活ガイド.com
    ※行政機関により公表していない地域及びデータがございます。東京23区以外の政令指定都市は、市全体のデータとして表示しています。
    ※提供データには細心の注意を払っておりますが、調査後に変更がある場合があります。 最新の情報につきましては各市区役所までお問い合わせいただくか、自治体HPなどをご確認ください。

    土浦市内の各駅の住みやすさ

    他のエリアから探す

    土浦市の詳細地域から賃貸物件を探す

    天川荒川沖荒川沖西荒川沖東荒川本郷粟野町生田町板谷大岩田おおつ野大手町大町沖新田沖宿町乙戸乙戸南小山田卸町霞ケ岡町上高津上高津新町烏山川口神立中央神立東神立町北荒川沖町木田余木田余西台木田余東台小岩田小岩田西国分町湖北小松小松ケ丘町桜ケ丘町桜町宍塚下坂田下高津白鳥町城北町千束町高岡滝田立田町田中田中町中央都和東崎町殿里中荒川沖町中神立町中高津中都町中貫中村西根中村東中村南永井永国永国東町並木西根西西根南西真鍋町蓮河原新町東都和東並木町東真鍋町東若松町富士崎藤沢文京町真鍋真鍋新町摩利山新田右籾港町虫掛大和町若松町

    近辺の市区から探す

    牛久市つくば市かすみがうら市稲敷郡美浦村稲敷郡阿見町

    周辺の駅から探す

    常磐線
    牛久ひたち野うしく荒川沖土浦神立高浜石岡羽鳥岩間

    茨城県土浦市で他のジャンルから探す


    掲載情報の著作権は提供元企業等に帰属します。
    Copyright:(C) 2025 Recruit Co., Ltd.
    アプリで簡単 物件探し 大手不動産サイトの情報から一括検!プッシュ通知で物件を見逃さない
    App Storeからダウンロード Google Playで手に入れよう QRコード