賃貸一戸建て
土浦市真鍋6丁目戸建て 土浦駅 5SDK 賃貸(賃貸マンション・アパート)
| 賃料 |
6.5万円 (管理費等:なし) |
| 礼金・敷金 |
なし / 2ヶ月 |
保証金/敷引・償却 |
なし / - |
| 交通 |
|
| 所在地 |
茨城県土浦市真鍋6周辺地図
|
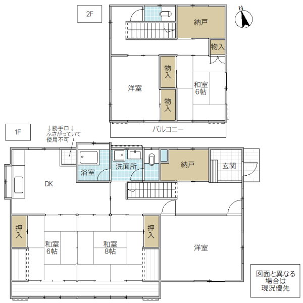
| 間取り |
5SDK |
専有面積 |
140.77m2 |
| 築年月 |
1976年10月 |
築年数 |
築49年3ヶ月 |
- おすすめポイント
- 大きな2階建ての賃貸住宅です。ゆったり使えるのでおすすめです 犬猫ペット飼育、ピアノなどの楽器応相談。駐車場付きの戸建て賃貸です。
| 賃料 |
6.5万円 |
管理費等 |
なし |
| 敷金 |
2ヶ月 |
礼金 |
なし |
| 保証金 |
なし |
敷引・償却 |
- |
| 更新料 |
- |
契約期間 |
|
| カード決済 |
- |
| 所在地 |
茨城県土浦市真鍋6周辺地図
|
| 交通 |
|
| 建物名 |
土浦市真鍋6丁目戸建て |
| 間取り |
5SDK |
築年月(築年数) |
1976年10月(築49年3ヶ月)
|
| 専有面積 |
140.77㎡ |
所在階/階数 |
2階/2階建
|
| 建物構造 |
木造 |
方位 |
南西 |
| 現況 |
|
駐車場 |
有 無料 |
| 入居可能時期 |
相談 |
住宅保険 |
あり 2年 22000円 |
| 情報提供元 |
SUUMO[030H100470543059] |
情報公開日 |
|
| 情報更新日 |
|
次回更新予定日 |
随時 |
設備など
| 2階以上 |
○ |
最上階 |
- |
角部屋 |
- |
| 駐車場(近隣含) |
○ |
エアコン付き |
○ |
バス・トイレ別 |
○ |
| 室内洗濯機置き場 |
○ |
追焚機能 |
○ |
オートロック付き |
- |
| モニタ付インターホン |
- |
フローリング |
- |
バルコニー |
○ |
| ガスコンロ可 |
- |
浴室乾燥機 |
- |
24時間セキュリティ |
- |
| 宅配ボックス |
- |
ペット相談可 |
○ |
二人入居可 |
- |
| 設備 |
冷房・暖房・エアコン・バルコニー・バス・トイレ別・トイレ・洗濯機置場・洗面所・追焚機能・シャンプードレッサ・風呂・トイレ2ヶ所・駐車場2台分・プロパンガス・浴トイレ別・洗面所独立・室内洗濯機置き場 |
| リフォーム履歴 |
- |
| リノベーション履歴 |
- |
| 備考 |
安心入居サポート:1,100円/町内会費:1,000円/仲介手数料7.1500万円/ペット相談/楽器相談/事務所利用不可/安心入居サポート:1,100円/月 契約時鍵交換代:要確認 町内会費:1,000円/月額 消火剤:5,500円 保証会社加入必須(初回保証料:賃料総額の50%(下限20,000円)・年間保証料:10,000円/年・月額保証料:賃料総額の1%(下限330円)) ペット:敷金1ヶ月分増 楽器相談:1F/洋室 残置物有 外国人相談可 退去時畳表替え・襖・障子の貼り替えは入居者負担/バストイレ別/バルコニー/シャワー付洗面台/室内洗濯置/追焚機能浴室/洗面所独立/洗面化粧台/礼金不要/ペット相談/エアコン2台/駐車場2台無料/楽器相談/トイレ2ヶ所/駐車5台以上/専有面積30坪以上/南西向き/当社管理物件/プロパンガス/真鍋小(小学校)まで1000m/賃貸戸数:1戸 |
| 特記事項 |
ペット相談可・楽器相談・駐車場2台分 |
茨城県土浦市真鍋6 周辺地図情報
※地図上に表示される物件の位置は付近住所に所在することを表すものであり、実際の物件所在地とは異なる場合がございます。
正確な物件所在地は、取扱い不動産会社にお問い合わせください。
不動産会社情報
| お問い合わせ先 |
商号:香陵住販(株)土浦支店 免許番号:国土交通大臣(4)第7026号 所在地:茨城県土浦市港町1-8-32 TEL:029-823-6621 取引態様:仲介 管理コード:KK13922-0-001
|
共有する |
|
人口などの統計情報
| 世帯数 |
62961世帯 |
| 人口総数 |
141613人 |
| 転入者数 |
8210人
- 転入率(人口1000人当たり)
- 57.97人
|
| 転出者数 |
6853人
- 転出率(人口1000人当たり)
- 48.39人
|
| 土地平均価格 |
- 住宅地
- 32660円/m2
- 商業地
- 61825円/m2
|
結婚・育児の助成金
| 子育て関連の独自の取り組み |
(1)子育て交流サロン「わらべ」「のぞみ」(子育て世代の交流の場であり、子育てに関する悩みや相談を経験豊かなスタッフが応じている。月~土曜日9時~17時。妊婦や母だけでも利用可)。(2)育児応援サイト「ママフレ」(市の子育てに関する行政サービスを総合的に「分かり易く」「探しやすい」情報専用サイト)。(3)おたふくかぜ(1回目接種のみ、一部助成)、インフルエンザ(中学校3年生まで、一部助成)の予防接種費用の助成。(4)子育て支援アプリ「つちまるKids」(スマートフォンに指定のアプリをダウンロードすることで、市からの子育て情報や予防接種の管理等ができる)。 |
| 出産祝い |
なし |
| 公立保育所数 |
4所(うち0歳児保育を実施している保育所:2所) |
| 私立保育所数 |
16所(うち0歳児保育を実施している保育所:15所) |
| 保育所入所待機児童数 |
0人 |
| 認定こども園数 |
13園 |
預かり保育実施園数 |
公立:- 私立:3園 |
| 学校給食 |
【小学校】完全給食【中学校】完全給食 |
| 公立中学校の学校選択制 |
未実施 |
| 子ども・学生等医療費助成<通院>対象年齢 |
18歳3月末まで |
子ども・学生等医療費助成<入院>対象年齢 |
18歳3月末まで |
土浦市の治安・ごみ収集情報
公共料金・インフラ
| ガス料金(22m3使用した場合の月額) |
東部瓦斯株式会社(郡山・いわき・水戸・土浦・守谷地区)5491円 |
| 水道料金(口径20mmで20m3の月額) |
土浦市4119円 |
| 下水道料金(20m3を使用した場合の月額) |
土浦市2750円 |
| 下水道普及率 |
88.3% |
安心・安全
| 建物火災出火件数 |
32件
- 人口10000人当たり
- 2.25件
|
| 刑法犯認知件数 |
1284件
- 人口1000人当たり
- 9.04件
|
| ハザード・防災マップ |
あり |
医療
| 一般病院総数 |
6ヶ所 |
| 一般診療所総数 |
108ヶ所 |
| 小児科医師数 |
50人
- 小児人口10000人当たり
- 34.08人
|
| 産婦人科医師数 |
23人
- 15~49歳女性人口1万人当たり
- 8.76人
|
| 介護保険料基準額(月額) |
6150円 |
ごみ
| 家庭ごみ収集(可燃ごみ) |
有料
|
| 家庭ごみの分別方式 |
3分別15種〔燃やせるごみ 燃やせないごみ 資源物(生ごみ、容器包装プラスチック、ペットボトル、古布、缶、ビン[白・透明、茶、緑、その他]、乾電池・充電池、新聞、ダンボール、ざつ紙)〕 拠点回収:充電池 蛍光管 廃食用油 使用済み小型家電 ペットボトル |
| 家庭ごみの戸別収集 |
一部実施(重度視覚障害者を対象とした戸別収集を実施) |
| 粗大ごみ収集 |
あり
|
| 生ごみ処理機助成金制度 |
あり
- 上限金額
- 20000円
- 上限比率
- 50.0%
|
※行政機関により公表していない地域及びデータがございます。東京23区以外の政令指定都市は、市全体のデータとして表示しています。
※提供データには細心の注意を払っておりますが、調査後に変更がある場合があります。 最新の情報につきましては各市区役所までお問い合わせいただくか、自治体HPなどをご確認ください。
土浦市の暮らしデータをもっと見る