アプリで簡単 物件探し 通知 共有 アプリならではの機能を使ってみる
賃貸一戸建て

アリアB 鴨島駅 2SLDK 賃貸(賃貸マンション・アパート)

情報提供元
アットホーム
アリアB
賃料 8.5万円  (管理費等:なし)
礼金・敷金 1ヶ月 / なし 保証金/敷引・償却 なし / -
交通
所在地 徳島県吉野川市鴨島町鴨島周辺地図
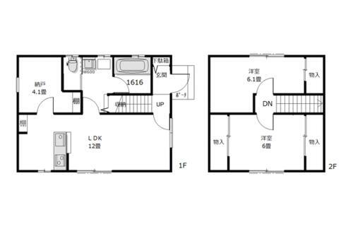
間取り 2SLDK 専有面積 69.55m2
築年月 2026年3月 築年数 新築
おすすめポイント
駐車場2台分

詳細情報

賃料 8.5万円 管理費等 なし
敷金 なし 礼金 1ヶ月
保証金 なし 敷引・償却 -
更新料 - 契約期間 2年
カード決済 -
所在地 徳島県吉野川市鴨島町鴨島周辺地図
交通
建物名 アリアB 
間取り 2SLDK(洋 6・6.1 LDK 12 S 4.1) 築年月(築年数) 2026年3月 新築
専有面積 69.55㎡ 所在階/階数 2階建
建物構造 木造  方位 南西 
現況 未完成  駐車場 有 無料
入居可能時期 2026年4月上旬 住宅保険 あり 2年 18000円
情報提供元 アットホーム[6988267527] 情報公開日
情報更新日 - 次回更新予定日 随時

設備など

2階以上 - 最上階 - 角部屋 -
駐車場(近隣含) エアコン付き バス・トイレ別
室内洗濯機置き場 追焚機能 オートロック付き -
モニタ付インターホン フローリング - バルコニー -
ガスコンロ可 - 浴室乾燥機 24時間セキュリティ -
宅配ボックス - ペット相談可 - 二人入居可 -
設備 エアコン・給湯・バス・トイレ別・洗濯機置場・室内洗濯機置き場・シャワー・CATV・追焚機能・洗面台・浴室乾燥機・温水洗浄便座・モニタ付インターホン・複層ガラス・ディンプルキー・コンロ2口以上・浴室に窓あり 
リフォーム履歴 -
リノベーション履歴 -
備考 賃貸保証等:加入要(初回保証料:家賃の40%~  更新料:10000円/年)・敷金(保証金)0円。広々とした延床面積69.55㎡で居住スペースにゆとり充分。・バイク置場:なし・駐輪場:なし/退去時清掃費 66000円 
特記事項 駐車場2台分

省エネ性能

エネルギー消費性能 -
断熱性能 -
目安光熱費 -

徳島県吉野川市鴨島町鴨島 周辺地図情報

地図
※地図上に表示される物件の位置は付近住所に所在することを表すものであり、実際の物件所在地とは異なる場合がございます。
   正確な物件所在地は、取扱い不動産会社にお問い合わせください。
アピールポイント
徳島で不動産のご相談ならアイケア不動産まで。売買・賃貸・管理・リフォームまで、経験豊富なスタッフが丁寧に対応させて頂きます。お気軽にご相談くださいませ。TEL 088-660-6688

不動産会社情報

お問い合わせ先 商号:アイケア不動産
免許番号:徳島県知事免許(2)第3094号
所在地:名西郡石井町高川原字高川原2433-32
TEL:088-660-6688
取引態様:仲介
管理コード:
所属協会など:(公社)全日本不動産協会会員、四国地区不動産公正取引協議会加盟
共有する
QRコード

    吉野川市の暮らしデータ

    人口などの統計情報

    世帯数 15444世帯
    人口総数 38265人
    転入者数 1086人
    転入率(人口1000人当たり)
    28.38人
    転出者数 1102人
    転出率(人口1000人当たり)
    28.80人
    土地平均価格
    住宅地
    16903円/m2
    商業地
    36033円/m2

    結婚・育児の助成金

    子育て関連の独自の取り組み 育児用品購入費助成(市内の販売店で購入した育児用品代金の一部を助成。1歳の誕生日の前日までに2.5万円を上限として助成)。
    出産祝い あり
    公立保育所数 0所(うち0歳児保育を実施している保育所:-)
    私立保育所数 1所(うち0歳児保育を実施している保育所:1所)
    保育所入所待機児童数 0人
    認定こども園数 7園 預かり保育実施園数 公立:- 私立:-
    学校給食 【小学校】完全給食【中学校】完全給食
    公立中学校の学校選択制 未実施
    子ども・学生等医療費助成<通院>対象年齢 18歳3月末まで 子ども・学生等医療費助成<入院>対象年齢 18歳3月末まで

    吉野川市の治安・ごみ収集情報

    公共料金・インフラ

    ガス料金(22m3使用した場合の月額) -
    水道料金(口径20mmで20m3の月額) 吉野川市2540円
    下水道料金(20m3を使用した場合の月額) 吉野川市1980円
    吉野川市(川田・川島処理区)2750円
    下水道普及率 52.8%

    安心・安全

    建物火災出火件数 2件
    人口10000人当たり
    0.52件
    刑法犯認知件数 107件
    人口1000人当たり
    2.76件
    ハザード・防災マップ あり

    医療

    一般病院総数 4ヶ所
    一般診療所総数 47ヶ所
    小児科医師数 14人
    小児人口10000人当たり
    38.14人
    産婦人科医師数 3人
    15~49歳女性人口1万人当たり
    4.87人
    介護保険料基準額(月額) 6700円

    ごみ

    家庭ごみ収集(可燃ごみ) 有料
    備考
    指定ごみ袋有料。指定ごみ袋にごみ処理手数料を含む。
    家庭ごみの分別方式 12分別15種〔可燃ごみ 不燃ごみ(埋立・危険なごみ、複合ごみ) ふとん・毛布類 カン・金属類 ビン(無色透明びん、茶色びん、その他色付きびん) ペットボトル 乾電池 蛍光管 衣類 雑誌・雑がみ ダンボール 新聞紙〕
    家庭ごみの戸別収集 一部実施
    粗大ごみ収集 あり
    備考
    無料。事前申込制。70歳以上の方のみの世帯・介護保険の要介護認定(要支援を除く)を受けた65歳以上の方のみの世帯・身体障害者手帳所持者のうち、その種別等級が肢体不自由または視覚障がい1級・2級の方のみの世帯。
    生ごみ処理機助成金制度 あり
    上限金額
    30000円
    上限比率
    50.0%
    暮らしデータ提供元:生活ガイド.com
    ※行政機関により公表していない地域及びデータがございます。東京23区以外の政令指定都市は、市全体のデータとして表示しています。
    ※提供データには細心の注意を払っておりますが、調査後に変更がある場合があります。 最新の情報につきましては各市区役所までお問い合わせいただくか、自治体HPなどをご確認ください。
    OCN×ドコモ光新規お申込みで合計最大137,280円相当おトク!特典の内訳・適用条件など詳細はこちら

    吉野川市内の各駅の住みやすさ

    他のエリアから探す

    吉野川市の詳細地域から賃貸物件を探す

    鴨島町飯尾鴨島町牛島鴨島町麻植塚鴨島町上浦鴨島町鴨島鴨島町喜来鴨島町上下島鴨島町知恵島鴨島町中島鴨島町西麻植川島町川島川島町学川島町桑村川島町児島川島町三ツ島川島町宮島川島町山田山川町青木山川町川田山川町諏訪山川町中須賀山川町八幡山川町前川山川町町山川町湯立

    近辺の市区から探す

    阿波市名東郡佐那河内村名西郡石井町名西郡神山町板野郡板野町板野郡上板町

    周辺の駅から探す

    徳島線
    山瀬阿波川島西麻植鴨島麻植塚牛島下浦石井

    徳島県吉野川市で他のジャンルから探す


    掲載情報の著作権は提供元企業等に帰属します。
    Copyright:(C) 2025 At Home Co.,Ltd
    アプリで簡単 物件探し 大手不動産サイトの情報から一括検!プッシュ通知で物件を見逃さない
    App Storeからダウンロード Google Playで手に入れよう QRコード