アプリで簡単 物件探し 通知 共有 アプリならではの機能を使ってみる
賃貸マンション

ビレッジハウス津田1号棟 下地駅 3DK 賃貸(賃貸マンション・アパート)

情報提供元
アットホーム
ビレッジハウス津田1号棟
賃料 5.12万円  (管理費等:なし)
礼金・敷金 なし / なし 保証金/敷引・償却 なし / -
交通
所在地 愛知県豊橋市横須賀町林周辺地図
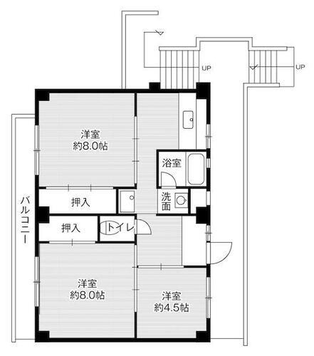
間取り 3DK 専有面積 57.96m2
築年月 1966年6月 築年数 築59年6ヶ月
おすすめポイント
二人入居可・高齢者相談
お問い合わせ先
ビレッジハウス・マネジメント(株) 東海エリア
お問い合わせ先
ビレッジハウス・マネジメント(株) 東海エリア

詳細情報

賃料 5.12万円 管理費等 なし
敷金 なし 礼金 なし
保証金 なし 敷引・償却 -
更新料 更新料なし 契約期間 2年
カード決済 -
所在地 愛知県豊橋市横須賀町林周辺地図
交通
建物名 ビレッジハウス津田1号棟 
間取り 3DK 築年月(築年数) 1966年6月(築59年6ヶ月)
専有面積 57.96㎡ 所在階/階数 1階/4階建
建物構造 RC  方位 南 
現況 空  駐車場 有 3,300円
入居可能時期 即時 住宅保険 あり 2年 10000円
情報提供元 アットホーム[1057105775] 情報公開日
情報更新日 - 次回更新予定日 随時

設備など

2階以上 - 最上階 - 角部屋 -
駐車場(近隣含) エアコン付き バス・トイレ別
室内洗濯機置き場 追焚機能 オートロック付き -
モニタ付インターホン - フローリング - バルコニー
ガスコンロ可 浴室乾燥機 - 24時間セキュリティ -
宅配ボックス - ペット相談可 - 二人入居可
設備 エアコン・給湯・バルコニー・バス・トイレ別・洗濯機置場・室内洗濯機置き場・追焚機能・都市ガス・ガスコンロ可・温水洗浄便座・洗面所独立・インターネット対応 
リフォーム履歴 -
リノベーション履歴 -
備考 ●短期解約違約金あり⇒1年未満解約は賃料等の3ヵ月分、2年未満は2ヵ月分●法人契約の場合、賃料等の契約条件が異なる場合あり●審査結果により敷金や連帯保証人を必要とする場合あり●賃料に+1,000円でオプション設備追加可能※お部屋の仕様により設置できない場合あり退去時クリーニング費用: 70,131円(税込)・新規入居限定!最大3万円引越サポートあり! 礼金・更新料無し。鍵交換代無料!/退去時クリーニング費用 70131円 
特記事項 二人入居可・高齢者相談

省エネ性能

エネルギー消費性能 -
断熱性能 -
目安光熱費 -

愛知県豊橋市横須賀町林 周辺地図情報

地図
※地図上に表示される物件の位置は付近住所に所在することを表すものであり、実際の物件所在地とは異なる場合がございます。
   正確な物件所在地は、取扱い不動産会社にお問い合わせください。
お問い合わせ先
ビレッジハウス・マネジメント(株) 東海エリア
アピールポイント
新規入居限定!最大3万円引越サポートあり!礼金・更新料無し。鍵交換代無料!敷金・礼金・更新料・鍵交換など手数料0円!※契約内容や審査の結果、敷金をお預かりする場合がございます。全室南向きの陽光溢れる住環境!

不動産会社情報

お問い合わせ先 商号:ビレッジハウス・マネジメント(株) 東海エリア
免許番号:東京都知事免許(2)第100758号
所在地:港区虎ノ門4丁目3-13ヒューリック神谷町ビル4階
TEL:0120-987-104
取引態様:貸主
管理コード:177582
所属協会など:(公財)日本賃貸住宅管理協会会員、(公社)東京都宅地建物取引業協会会員、(公社)首都圏不動産公正取引協議会加盟
共有する
QRコード
お問い合わせ先
ビレッジハウス・マネジメント(株) 東海エリア

豊橋市の暮らしデータ

人口などの統計情報

世帯数 151163世帯
人口総数 368686人
転入者数 13467人
転入率(人口1000人当たり)
36.53人
転出者数 13480人
転出率(人口1000人当たり)
36.56人
土地平均価格
住宅地
78922円/m2
商業地
205727円/m2

結婚・育児の助成金

子育て関連の独自の取り組み 豊橋市母子父子福祉手当(ひとり親家庭等の母・父または養育者へ、支給要件にあてはまる18歳以下[18歳に達した年度末まで]の児童を養育されている方に支給する。ただし所得制限あり。また受給期間制限あり[一定の要件に該当する場合は期間延長する場合あり])。
出産祝い なし
公立保育所数 4所(うち0歳児保育を実施している保育所:4所)
私立保育所数 37所(うち0歳児保育を実施している保育所:37所)
保育所入所待機児童数 0人
認定こども園数 25園 預かり保育実施園数 公立:- 私立:16園
学校給食 【小学校】完全給食【中学校】完全給食
公立中学校の学校選択制 未実施
子ども・学生等医療費助成<通院>対象年齢 18歳3月末まで 子ども・学生等医療費助成<入院>対象年齢 18歳3月末まで

豊橋市の治安・ごみ収集情報

公共料金・インフラ

ガス料金(22m3使用した場合の月額) サーラエナジー株式会社5880円
水道料金(口径20mmで20m3の月額) 豊橋市2519円
下水道料金(20m3を使用した場合の月額) 豊橋市2277円
豊橋市(特定環境保全公共下水道)2640円
下水道普及率 75.6%

安心・安全

建物火災出火件数 54件
人口10000人当たり
1.45件
刑法犯認知件数 1887件
人口1000人当たり
5.07件
ハザード・防災マップ あり

医療

一般病院総数 17ヶ所
一般診療所総数 252ヶ所
小児科医師数 79人
小児人口10000人当たり
17.21人
産婦人科医師数 36人
15~49歳女性人口1万人当たり
5.11人
介護保険料基準額(月額) 4930円

ごみ

家庭ごみ収集(可燃ごみ) 無料
備考
指定ごみ袋は有料だが、袋代にごみ収集・処理料金等を含まず。
家庭ごみの分別方式 9分別10種〔もやすごみ 生ごみ びん・カン プラマークごみ ペットボトル 危険ごみ(蛍光管・水銀含有物、スプレー缶類) こわすごみ 布類 うめるごみ〕 拠点回収:古紙
家庭ごみの戸別収集 一部実施(【ふれあい収集】所定の場所まで持ち出すことが困難な人が対象)
粗大ごみ収集 あり
備考
有料。事前申込制。収集希望の1週間前までに戸別収集受付センターへ。
生ごみ処理機助成金制度 なし
上限金額
-
上限比率
-
暮らしデータ提供元:生活ガイド.com
※行政機関により公表していない地域及びデータがございます。東京23区以外の政令指定都市は、市全体のデータとして表示しています。
※提供データには細心の注意を払っておりますが、調査後に変更がある場合があります。 最新の情報につきましては各市区役所までお問い合わせいただくか、自治体HPなどをご確認ください。
OCN×ドコモ光新規お申込みで合計最大137,280円相当おトク!特典の内訳・適用条件など詳細はこちら

豊橋市内の各駅の住みやすさ

他のエリアから探す

豊橋市の詳細地域から賃貸物件を探す

曙町朝丘町旭町芦原町東田町東田町東田中郷町東田仲の町吾妻町池見町伊古部町石巻町石巻本町一色町井原町飯村北飯村町飯村南入船町岩田町岩屋町上地町植田町上野町牛川町牛川通牛川薬師町内張町雲谷町瓜郷町駅前大通江島町老津町老松町往完町大井町大岩町大崎町大清水町大手町大橋通大村町大山町大脇町王ケ崎町鍵田町鍛冶町春日町曲尺手町上伝馬町神ノ輪町鴨田町萱町川崎町瓦町瓦町通北岩田北島町北山町絹田町清須町草間町下条東町小池町小畷町小浜町駒形町小松町小向町菰口町栄町佐藤佐藤町三本木町潮崎町東雲町下五井町下地町白河町新川町新栄町新本町神明町神野新田町杉山町住吉町関屋町高師石塚町高師町高師本郷町高洲町忠興立花町多米町多米中町多米西町多米東町大国町談合町つつじが丘寺沢町天伯町伝馬町東光町東郷町富本町豊岡町堂坂町中岩田中郷町中柴町中野町仲ノ町中橋良町中浜町中松山町浪ノ上町西岩田西小鷹野西小田原町錦町西口町西小池町西新町西高師町西橋良町西羽田町西浜町西松山町西幸町仁連木町野黒町野田町野依台野依町柱一番町柱九番町柱五番町柱三番町橋良町柱七番町柱二番町柱八番町柱四番町柱六番町羽田町八町通花園町花田一番町花田三番町花田町花田二番町花中町羽根井町羽根井西町羽根井本町浜道町原町東岩田東小鷹野東小田原町東小池町東小浜町東新町東高田町東橋良町東細谷町東幸町東森岡東脇日色野町平川本町平川南町広小路藤沢町富士見台二川町札木町船渡町舟原町船町豊栄町細谷町前芝町前田町前田中町前田南町牧野町町畑町松井町松葉町松村町馬見塚町御園町三ツ相町三弥町緑ケ丘湊町南牛川南大清水町南瓦町南小池町南栄町南島町南松山町三ノ輪町宮下町向山大池町向山台町向山町向山西町向山東町向草間町牟呂市場町牟呂大西町牟呂公文町牟呂水神町牟呂町牟呂外神町牟呂中村町森岡町柳生町八通町山田一番町山田三番町山田町山田二番町弥生町有楽町横須賀町吉川町若松町

近辺の市区から探す

豊川市

周辺の駅から探す

飯田線
豊橋船町下地小坂井牛久保豊川三河一宮

掲載情報の著作権は提供元企業等に帰属します。
Copyright:(C) 2025 At Home Co.,Ltd
アプリで簡単 物件探し 大手不動産サイトの情報から一括検!プッシュ通知で物件を見逃さない
App Storeからダウンロード Google Playで手に入れよう QRコード