アプリで簡単 物件探し 通知 共有 アプリならではの機能を使ってみる
賃貸一戸建て

レーヴハウスE 新居町駅 3LDK 賃貸(賃貸マンション・アパート)

情報提供元
アットホーム
レーヴハウスE
賃料 11.5万円  (管理費等:-)
礼金・敷金 なし / 1ヶ月 保証金/敷引・償却 なし / -
交通
所在地 静岡県湖西市新居町中之郷周辺地図
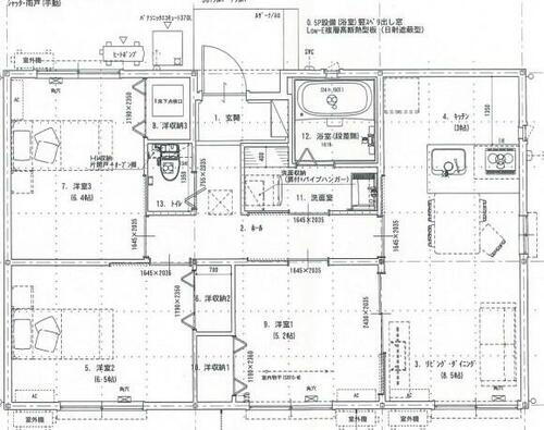
間取り 3LDK 専有面積 67.5m2
築年月 2026年1月 築年数 新築
おすすめポイント
駐車場2台分・外観タイル張り・オール電化・保証人不要/代行
お問い合わせ先
(株)パナホーム静岡西部営業部
お問い合わせ先
(株)パナホーム静岡西部営業部

詳細情報

賃料 11.5万円 管理費等 -
敷金 1ヶ月 礼金 なし
保証金 なし 敷引・償却 -
更新料 - 契約期間 2年
カード決済 -
所在地 静岡県湖西市新居町中之郷周辺地図
交通
建物名 レーヴハウスE 
間取り 3LDK(洋 6.5・6.4・5.2 LDK 11.5) 築年月(築年数) 2026年1月 新築
専有面積 67.5㎡ 所在階/階数 平屋建て
建物構造 軽量鉄骨  方位  
現況 未完成  駐車場 有 無料
入居可能時期 2026年2月中旬 住宅保険 あり火災 2年 21500円
情報提供元 アットホーム[6988490813] 情報公開日
情報更新日 - 次回更新予定日 随時

設備など

2階以上 - 最上階 - 角部屋 -
駐車場(近隣含) エアコン付き バス・トイレ別
室内洗濯機置き場 追焚機能 オートロック付き -
モニタ付インターホン フローリング - バルコニー -
ガスコンロ可 - 浴室乾燥機 24時間セキュリティ -
宅配ボックス - ペット相談可 - 二人入居可 -
設備 エアコン・バス・トイレ別・収納スペース・洗濯機置場・室内洗濯機置き場・BS端子・追焚機能・浴室乾燥機・照明器具・シャンプードレッサ・温水洗浄便座・システムキッチン・モニタ付インターホン・IHクッキングヒータ・ディンプルキー・シューズボックス・浴室に窓あり 
リフォーム履歴 -
リノベーション履歴 -
備考 賃貸保証等:加入要(保証会社オリコ初回利用料金34,500円 毎月月額賃料の1%) 
特記事項 駐車場2台分・外観タイル張り・オール電化・保証人不要/代行

省エネ性能

エネルギー消費性能 -
断熱性能 -
目安光熱費 -

静岡県湖西市新居町中之郷 周辺地図情報

地図
※地図上に表示される物件の位置は付近住所に所在することを表すものであり、実際の物件所在地とは異なる場合がございます。
   正確な物件所在地は、取扱い不動産会社にお問い合わせください。
お問い合わせ先
(株)パナホーム静岡西部営業部

不動産会社情報

お問い合わせ先 商号:(株)パナホーム静岡西部営業部
免許番号:静岡県知事免許(12)第4331号
所在地:浜松市中央区市野町2448
TEL:053-422-3603
取引態様:貸主
管理コード:
所属協会など:(公社)静岡県宅地建物取引業協会会員、東海不動産公正取引協議会加盟
共有する
QRコード
お問い合わせ先
(株)パナホーム静岡西部営業部

湖西市の暮らしデータ

人口などの統計情報

世帯数 22984世帯
人口総数 58079人
転入者数 2991人
転入率(人口1000人当たり)
51.50人
転出者数 2863人
転出率(人口1000人当たり)
49.29人
土地平均価格
住宅地
45833円/m2
商業地
81000円/m2

結婚・育児の助成金

子育て関連の独自の取り組み (1)豊田佐吉翁記念奨学金(給付型)。(2)村田光雄奨学金(給付型)。(3)交通遺児等福祉手当。(4)こども医療費助成(18歳に達する日以後最初の3月31日までの間にある者を対象。入院・外来・調剤で自己負担なし)。(5)湖西市育英奨学資金(貸付型)。(6)市立中学校給食費の保護者負担軽減(10月以降の学校給食費を無償化)。(7)多子世帯修学費用支援金(第3子以降の中学・高校入学時)。
出産祝い なし
公立保育所数 0所(うち0歳児保育を実施している保育所:-)
私立保育所数 3所(うち0歳児保育を実施している保育所:2所)
保育所入所待機児童数 0人
認定こども園数 7園 預かり保育実施園数 公立:1園 私立:-
学校給食 【小学校】完全給食【中学校】完全給食
公立中学校の学校選択制 未実施
子ども・学生等医療費助成<通院>対象年齢 18歳3月末まで 子ども・学生等医療費助成<入院>対象年齢 18歳3月末まで

湖西市の治安・ごみ収集情報

公共料金・インフラ

ガス料金(22m3使用した場合の月額) サーラエナジー株式会社5880円
水道料金(口径20mmで20m3の月額) 湖西市3740円
下水道料金(20m3を使用した場合の月額) 湖西市2872円
下水道普及率 44.4%

安心・安全

建物火災出火件数 11件
人口10000人当たり
1.90件
刑法犯認知件数 257件
人口1000人当たり
4.44件
ハザード・防災マップ あり

医療

一般病院総数 2ヶ所
一般診療所総数 40ヶ所
小児科医師数 12人
小児人口10000人当たり
18.90人
産婦人科医師数 1人
15~49歳女性人口1万人当たり
0.96人
介護保険料基準額(月額) 5000円

ごみ

家庭ごみ収集(可燃ごみ) 有料
備考
指定ごみ袋有料。
家庭ごみの分別方式 4分別12種〔可燃 不燃 資源物(ペットボトル、飲料水缶、ガラスびん[無色透明びん、茶色びん、その他の色びん]) 危険物(スプレー缶・ライター・カセットボンベ、乾電池・充電式電池)〕拠点回収:布類 紙類 廃食油 パソコン・携帯電話
家庭ごみの戸別収集 一部実施(身体障害者手帳、療育手帳又は精神障害者保健福祉手帳の交付を受けている者、介護保険制度の要介護認定を受けている者、要支援認定を受けている65歳以上の者のみで構成された世帯のうち、ごみ集積所へごみを持ち出すことが困難な世帯が対象)
粗大ごみ収集 あり
備考
有料。事前申込制。
生ごみ処理機助成金制度 あり
上限金額
20000円
上限比率
50.0%
暮らしデータ提供元:生活ガイド.com
※行政機関により公表していない地域及びデータがございます。東京23区以外の政令指定都市は、市全体のデータとして表示しています。
※提供データには細心の注意を払っておりますが、調査後に変更がある場合があります。 最新の情報につきましては各市区役所までお問い合わせいただくか、自治体HPなどをご確認ください。
OCN×ドコモ光新規お申込みで合計最大137,280円相当おトク!特典の内訳・適用条件など詳細はこちら

湖西市内の各駅の住みやすさ

他のエリアから探す

湖西市の詳細地域から賃貸物件を探す

新居町新居新居町内山新居町中之郷新居町浜名入出梅田駅南太田大知波吉美古見境宿白須賀新所新所・岡崎・梅田入会地新所原新所原東ときわ坊瀬南台山口鷲津

周辺の駅から探す

東海道本線
浜松高塚舞阪弁天島新居町鷲津新所原二川豊橋

掲載情報の著作権は提供元企業等に帰属します。
Copyright:(C) 2025 At Home Co.,Ltd
アプリで簡単 物件探し 大手不動産サイトの情報から一括検!プッシュ通知で物件を見逃さない
App Storeからダウンロード Google Playで手に入れよう QRコード