アプリで簡単 物件探し 通知 共有 アプリならではの機能を使ってみる
賃貸マンション

静岡県浜松市中央区青屋町 天竜川駅 1LDK 賃貸(賃貸マンション・アパート)

情報提供元
アットホーム
賃料 8.1万円  (管理費等:4000円)
礼金・敷金 1ヶ月 / なし 保証金/敷引・償却 なし / -
交通
所在地 静岡県浜松市中央区青屋町
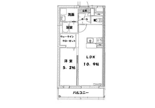
間取り 1LDK 専有面積 40.37m2
築年月 2026年3月 築年数 新築
おすすめポイント
ペット相談可

詳細情報

賃料 8.1万円 管理費等 4000円
敷金 なし 礼金 1ヶ月
保証金 なし 敷引・償却 -
更新料 - 契約期間 2年
カード決済 -
所在地 静岡県浜松市中央区青屋町
交通
建物名  
間取り 1LDK(洋 5.2 LDK 10.9) 築年月(築年数) 2026年3月 新築
専有面積 40.37㎡ 所在階/階数 2階/4階建
建物構造 RC  方位 南 
現況 未完成  駐車場 有 4,400円
入居可能時期 2026年3月中旬 住宅保険 なし
情報提供元 アットホーム[6988407467] 情報公開日
情報更新日 - 次回更新予定日 随時

設備など

2階以上 最上階 - 角部屋 -
駐車場(近隣含) エアコン付き バス・トイレ別
室内洗濯機置き場 追焚機能 オートロック付き
モニタ付インターホン フローリング バルコニー
ガスコンロ可 - 浴室乾燥機 - 24時間セキュリティ -
宅配ボックス ペット相談可 二人入居可 -
設備 エアコン・オートロック・バルコニー・バス・トイレ別・洗濯機置場・室内洗濯機置き場・追焚機能・フローリング・ウォークインクローゼット・シャンプードレッサ・温水洗浄便座・カウンターキッチン・モニタ付インターホン・宅配BOX・駐輪場・防犯カメラ・コンロ2口以上・シューズボックス・インターネット無料 
リフォーム履歴 -
リノベーション履歴 -
備考 賃貸保証等:加入要(お問い合わせください。)・鍵交換代:あり27,500円~・維持費等:友の会(火災保険とかけつけサービス・単身)2,530円/月・自治会費400円/月・ペット条件:小型犬可/猫可/敷金1ヶ月プラス・バルコニー:5.7平米・2026年3月完成!JR天竜川駅徒歩1分!ペット飼育可能!スーパー・ドラッグストア・100円ショップ・コンビニ・マック徒歩圏内!車なら国1バイパスにもすぐ出れます!・駐輪場:有(無料)・仲介手数料:1ヶ月/ルームクリーニング費用 66000円 
特記事項 ペット相談可

省エネ性能

エネルギー消費性能 -
断熱性能 -
目安光熱費 -
アピールポイント
2026年3月完成!JR天竜川駅徒歩1分!ペット飼育可能!スーパー・ドラッグストア・100円ショップ・コンビニ・マック徒歩圏内!車なら国1バイパスにもすぐ出れます!

不動産会社情報

お問い合わせ先 商号:浜松不動産(株)
免許番号:静岡県知事免許(15)第1966号
所在地:浜松市中央区中央3丁目7-1ハーモニア新町1F
TEL:053-458-0555
取引態様:仲介
管理コード:
所属協会など:(公社)静岡県宅地建物取引業協会会員、東海不動産公正取引協議会加盟
共有する
QRコード

    浜松市中央区の暮らしデータ

    人口などの統計情報

    世帯数 320221世帯
    人口総数 788985人
    転入者数 37342人
    転入率(人口1000人当たり)
    47.33人
    転出者数 35976人
    転出率(人口1000人当たり)
    45.60人
    土地平均価格
    住宅地
    61514円/m2
    商業地
    139852円/m2

    結婚・育児の助成金

    子育て関連の独自の取り組み (1)遺児等福祉手当(児童の父母等が交通事故、病気により死亡し、又は障害の状態となった場合に市独自の手当を支給。支給対象年齢は18歳に達する日以後の最初の3月31日までの間にある者)。(2)発達支援広場事業(発達障害の疑いのある子どもとその親に交流の場を提供することで、育児方法の指導や早期療育の必要性を啓発し、就園や専門機関へつなげる支援を実施)。
    出産祝い なし
    公立保育所数 20所(うち0歳児保育を実施している保育所:20所)
    私立保育所数 37所(うち0歳児保育を実施している保育所:37所)
    保育所入所待機児童数 0人
    認定こども園数 81園 預かり保育実施園数 公立:21園 私立:37園
    学校給食 【小学校】完全給食【中学校】完全給食
    公立中学校の学校選択制 実施(「指定校の通学区域と境界を接する中学校」が対象。新入学時または転居による転校時のみ)
    子ども・学生等医療費助成<通院>対象年齢 18歳3月末まで 子ども・学生等医療費助成<入院>対象年齢 18歳3月末まで

    浜松市中央区の治安・ごみ収集情報

    公共料金・インフラ

    ガス料金(22m3使用した場合の月額) サーラエナジー株式会社5880円
    水道料金(口径20mmで20m3の月額) 浜松市2200円
    下水道料金(20m3を使用した場合の月額) 浜松市2948円
    下水道普及率 81.7%

    安心・安全

    建物火災出火件数 100件
    人口10000人当たり
    1.26件
    刑法犯認知件数 3572件
    人口1000人当たり
    4.52件
    ハザード・防災マップ あり

    医療

    一般病院総数 25ヶ所
    一般診療所総数 650ヶ所
    小児科医師数 189人
    小児人口10000人当たり
    19.84人
    産婦人科医師数 96人
    15~49歳女性人口1万人当たり
    6.56人
    介護保険料基準額(月額) 5900円

    ごみ

    家庭ごみ収集(可燃ごみ) 無料
    備考
    -
    家庭ごみの分別方式 5分別10種〔もえるごみ もえないごみ プラスチック製容器包装 資源ごみ(無色びん、茶色びん、その他の色のビン、かん、ペットボトル) 特定品目(蛍光管、ライター・スプレー缶・電池類・水銀体温計・水銀血圧計・加熱式たばこ・電子たばこ)〕 拠点回収:使用済小型家電 古紙 古着 使用済食用油 草木類 インクカートリッジ 羽毛ふとん
    家庭ごみの戸別収集 未実施
    粗大ごみ収集 あり
    備考
    有料。事前申込制。名称は「連絡ごみ」。申し込みの際は連絡ごみ受付センターへ連絡。搬出物により決められた金額の連絡ごみ処理手数料納付済証をコンビニ等の指定販売所で購入し、連絡ごみに貼り自宅等前に搬出。
    生ごみ処理機助成金制度 あり
    上限金額
    10000円
    上限比率
    50.0%
    暮らしデータ提供元:生活ガイド.com
    ※行政機関により公表していない地域及びデータがございます。東京23区以外の政令指定都市は、市全体のデータとして表示しています。
    ※提供データには細心の注意を払っておりますが、調査後に変更がある場合があります。 最新の情報につきましては各市区役所までお問い合わせいただくか、自治体HPなどをご確認ください。
    OCN×ドコモ光新規お申込みで合計最大137,280円相当おトク!特典の内訳・適用条件など詳細はこちら

    浜松市中央区内の各駅の住みやすさ

    他のエリアから探す

    浜松市中央区の詳細地域から賃貸物件を探す

    相生町葵西葵東青屋町浅田町旭町小豆餅有玉北町有玉台有玉西町有玉南町安新町安間町飯田町池町伊左地町石原町泉町板屋町市野町入野町植松町瓜内町海老塚海老塚町遠州浜大蒲町大島町大瀬町大原町大人見町大平台大柳町大山町尾張町恩地町笠井上町笠井新田町笠井町鍛冶町春日町金折町上浅田上新屋町上石田町神ケ谷町上島神田町上西町神原町鴨江鴨江町河輪町舘山寺町北島町北田町北寺島町木戸町貴平町国吉町倉松町元目町小池町神立町紺屋町小沢渡町湖東町古人見町子安町御給町栄町肴町桜台篠ケ瀬町佐藤佐鳴台佐浜町参野町三和町塩町鹿谷町蜆塚志都呂志都呂町篠原町四本松町下飯田町下池川町下石田町下江町将監町白鳥町白羽町新津町十軒町城北菅原町助信町砂山町住吉頭陀寺町西伝寺町西都台町積志町早出町増楽町高丘北高丘西高丘東高塚町高林高町田尻町立野町田町大工町千歳町中央恒武町坪井町都盛町寺島町寺脇町天神町天王町伝馬町天龍川町常盤町利町富塚町富屋町富吉町豊岡町中郡町中里町中沢町中島中島町中田島町中田町中野町中山町長鶴町茄子町名塚町平田町成子町西浅田西伊場町西丘町西鴨江町西ケ崎町西塚町西町西山町新橋町布橋根洗町鼡野町野口町法枝町萩丘旅籠町八幡町初生町花川町半田町半田山原島町東伊場東町東三方町東若林町曳馬曳馬町広沢福塚町船越町文丘町古川町芳川町細島町本郷町舞阪町長十新田舞阪町浜田舞阪町弁天島舞阪町舞阪馬郡町松小池町松城町丸塚町三方原町三組町三島町南浅田宮竹町三幸町向宿村櫛町元魚町元城町元浜町森田町薬師町薬新町安松町山下町山手町雄踏雄踏町宇布見雄踏町山崎豊町楊子町米津町龍光町龍禅寺町流通元町領家連尺町若林町和光町和合北和合町渡瀬町和田町和地山

    近辺の市区から探す

    浜松市浜名区磐田市

    周辺の駅から探す

    東海道本線
    袋井御厨磐田豊田町天竜川浜松高塚舞阪弁天島

    静岡県浜松市中央区で他のジャンルから探す


    掲載情報の著作権は提供元企業等に帰属します。
    Copyright:(C) 2025 At Home Co.,Ltd
    アプリで簡単 物件探し 大手不動産サイトの情報から一括検!プッシュ通知で物件を見逃さない
    App Storeからダウンロード Google Playで手に入れよう QRコード