アプリで簡単 物件探し 通知 共有 アプリならではの機能を使ってみる
賃貸アパート

プログレス 阪東橋駅 ワンルーム 賃貸(賃貸マンション・アパート)

情報提供元
アットホーム
プログレス
賃料 6万円  (管理費等:4000円)
礼金・敷金 なし / なし 保証金/敷引・償却 なし / -
交通
所在地 神奈川県横浜市南区高根町4丁目周辺地図
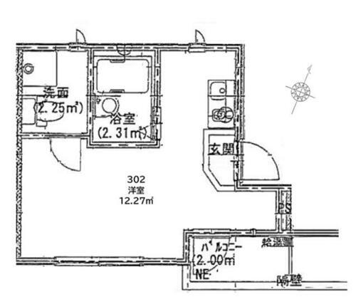
間取り ワンルーム 専有面積 18.84m2
築年月 2015年6月 築年数 築10年7ヶ月
おすすめポイント
管理人巡回・最上階・保証人不要/代行

詳細情報

賃料 6万円 管理費等 4000円
敷金 なし 礼金 なし
保証金 なし 敷引・償却 -
更新料 新賃料の1ヶ月分 契約期間 2年
カード決済 -
所在地 神奈川県横浜市南区高根町4丁目周辺地図
交通
  • 横浜市ブルーライン 阪東橋駅 徒歩3分乗換案内
  • 京急本線 黄金町駅 徒歩7分乗換案内
  • 横浜市ブルーライン 吉野町駅 徒歩7分乗換案内
建物名 プログレス 
間取り ワンルーム(洋室7.5) 築年月(築年数) 2015年6月(築10年7ヶ月)
専有面積 18.84㎡ 所在階/階数 3階/3階建
建物構造 木造  方位 南東 
現況 空  駐車場 無    近くの駐車場を探す
入居可能時期 即時 住宅保険 あり 2年 20000円
情報提供元 アットホーム[6988408827] 情報公開日
情報更新日 - 次回更新予定日 随時

設備など

2階以上 最上階 角部屋 -
駐車場(近隣含) - エアコン付き バス・トイレ別
室内洗濯機置き場 追焚機能 - オートロック付き -
モニタ付インターホン フローリング バルコニー
ガスコンロ可 - 浴室乾燥機 - 24時間セキュリティ -
宅配ボックス - ペット相談可 - 二人入居可 -
設備 エアコン・バルコニー・バス・トイレ別・トイレ・洗濯機置場・室内洗濯機置き場・シャワー・プロパンガス・洗面台・フローリング・温水洗浄便座・モニタ付インターホン・IHクッキングヒータ・シューズボックス・インターネット無料 
リフォーム履歴 -
リノベーション履歴 -
備考 解約予告2ヶ月前、1年未満解約違約金(賃料+管理費1ヶ月分)、更新事務手数料(個人2万円+税/法人0.5ヶ月+税)、退去時:室内清掃費・原状回復費・ACクリーニング代、鍵交換代は1シリンダー交換の場合の料金、鍵渡しは1本のみの場合あり海外審査不可、エンド向け掲載可(確認不要)、駐車場・バイク置場・駐輪場はございません、内見予約・お申込み・物件詳細はITANDIにてご確認をお願い致します・賃貸保証等:加入要(初回契約時:50%、月額:1.2%、外国籍の方(ジェイリースの場合):初回保証料100%・月額保証料1.2%)・鍵交換代:あり33,000円~・維持費等:町内会費300円/月・管理形態/管理員の勤務形態:巡回・バイク置場:なし・駐輪場:なし/契約事務手数料 11000円/アクト安心ライフ24(2年毎更新必須) 16500円 
特記事項 管理人巡回・最上階・保証人不要/代行

省エネ性能

エネルギー消費性能 -
断熱性能 -
目安光熱費 -

神奈川県横浜市南区高根町4丁目 周辺地図情報

地図
※地図上に表示される物件の位置は付近住所に所在することを表すものであり、実際の物件所在地とは異なる場合がございます。
   正確な物件所在地は、取扱い不動産会社にお問い合わせください。

不動産会社情報

お問い合わせ先 商号:ハイツリー(株) 本店
免許番号:神奈川県知事免許(1)第31402号
所在地:横浜市中区野毛町3丁目155-1
TEL:045-334-8291
取引態様:仲介
管理コード:
所属協会など:(公社)全日本不動産協会会員、(公社)首都圏不動産公正取引協議会加盟
共有する
QRコード

    横浜市南区の暮らしデータ

    人口などの統計情報

    世帯数 1744208世帯
    人口総数 3752969人
    転入者数 217258人
    転入率(人口1000人当たり)
    57.89人
    転出者数 201570人
    転出率(人口1000人当たり)
    53.71人
    土地平均価格
    住宅地
    254434円/m2
    商業地
    1043863円/m2

    結婚・育児の助成金

    子育て関連の独自の取り組み 横浜市私立幼稚園等預かり保育事業(横浜市が定めた基準(実施日、時間、職員配置等)を満たし、横浜市の認定を受けた幼稚園・認定こども園が実施する事業。市内在住の園児の保護者が就労や病気等で、園の正規教育時間の前後に家庭で保育ができない場合に、利用可能。3歳児~5歳児は無料、満3歳児は(a)私学助成を受ける幼稚園の場合、月額9,000円、(b)新制度に移行した園の場合、0円~9,000円)。
    出産祝い あり
    公立保育所数 56所(うち0歳児保育を実施している保育所:41所)
    私立保育所数 813所(うち0歳児保育を実施している保育所:716所)
    保育所入所待機児童数 5人
    認定こども園数 70園 預かり保育実施園数 公立:- 私立:213園
    学校給食 【小学校】完全給食【中学校】家庭弁当等・業者弁当との選択制/デリバリー形式[運搬:ランチボックス、内容:完全給食]
    公立中学校の学校選択制 一部実施(特定地域選択制[特別調整通学区域])
    子ども・学生等医療費助成<通院>対象年齢 中学校卒業まで 子ども・学生等医療費助成<入院>対象年齢 中学校卒業まで

    横浜市南区の治安・ごみ収集情報

    公共料金・インフラ

    ガス料金(22m3使用した場合の月額) 東京瓦斯株式会社(東京地区等)3926円
    水道料金(口径20mmで20m3の月額) 横浜市3017円
    下水道料金(20m3を使用した場合の月額) 横浜市2035円
    下水道普及率 100.0%

    安心・安全

    建物火災出火件数 438件
    人口10000人当たり
    1.16件
    刑法犯認知件数 16059件
    人口1000人当たり
    4.25件
    ハザード・防災マップ あり

    医療

    一般病院総数 113ヶ所
    一般診療所総数 3201ヶ所
    小児科医師数 682人
    小児人口10000人当たり
    15.98人
    産婦人科医師数 346人
    15~49歳女性人口1万人当たり
    4.58人
    介護保険料基準額(月額) 6620円

    ごみ

    家庭ごみ収集(可燃ごみ) 無料
    備考
    -
    家庭ごみの分別方式 7分別9種〔燃やすごみ 燃えないごみ スプレー缶 乾電池 プラスチック製容器包装 缶・びん・ペットボトル(缶、びん、ペットボトル) 小さな金属類〕
    家庭ごみの戸別収集 一部実施(【ふれあい収集】家庭ごみ・粗大ごみを集積場所まで持ち出すことができない高齢者や障害のある方などを対象にごみ出しの支援を実施。【狭あい道路収集】道路が狭く収集車が通行することができないため、集積場所が自宅近くに設けられない地域において、軽四輪車でごみを収集)
    粗大ごみ収集 あり
    備考
    有料。事前申込制。自宅近くまでもしくは市内4ヶ所に設置されている自己搬入ヤードへ持ち込み。申し込みは電話、またはインターネット。
    生ごみ処理機助成金制度 なし
    上限金額
    -
    上限比率
    -
    暮らしデータ提供元:生活ガイド.com
    ※行政機関により公表していない地域及びデータがございます。東京23区以外の政令指定都市は、市全体のデータとして表示しています。
    ※提供データには細心の注意を払っておりますが、調査後に変更がある場合があります。 最新の情報につきましては各市区役所までお問い合わせいただくか、自治体HPなどをご確認ください。
    OCN×ドコモ光新規お申込みで合計最大137,280円相当おトク!特典の内訳・適用条件など詳細はこちら

    横浜市南区内の各駅の住みやすさ

    他のエリアから探す

    横浜市南区の詳細地域から賃貸物件を探す

    井土ケ谷上町井土ケ谷下町井土ケ谷中町浦舟町永楽町榎町大岡大橋町庚台唐沢共進町弘明寺町山王町山谷清水ケ丘宿町白金町白妙町新川町高砂町高根町通町中里中里町中島町中村町永田北永田山王台永田台永田東永田南永田みなみ台西中町八幡町花之木町日枝町東蒔田町伏見町二葉町平楽別所別所中里台堀ノ内町蒔田町前里町真金町万世町南太田南吉田町三春台宮元町六ツ川睦町吉野町若宮町

    近辺の市区から探す

    横浜市鶴見区横浜市神奈川区横浜市西区横浜市中区横浜市保土ケ谷区横浜市磯子区横浜市金沢区横浜市港北区横浜市戸塚区横浜市港南区横浜市旭区横浜市緑区横浜市瀬谷区横浜市栄区横浜市泉区川崎市川崎区

    周辺の駅から探す

    横浜市ブルーライン
    高島町桜木町関内伊勢佐木長者町阪東橋吉野町蒔田弘明寺上大岡
    京浜急行電鉄本線
    神奈川横浜戸部日ノ出町黄金町南太田井土ヶ谷弘明寺上大岡

    神奈川県横浜市南区で他のジャンルから探す


    掲載情報の著作権は提供元企業等に帰属します。
    Copyright:(C) 2025 At Home Co.,Ltd
    アプリで簡単 物件探し 大手不動産サイトの情報から一括検!プッシュ通知で物件を見逃さない
    App Storeからダウンロード Google Playで手に入れよう QRコード