アプリで簡単 物件探し 通知 共有 アプリならではの機能を使ってみる
賃貸マンション

ライオンズタワー柏 柏駅 3LDK 賃貸(賃貸マンション・アパート)

情報提供元
アットホーム
ライオンズタワー柏
賃料 39万円  (管理費等:なし)
礼金・敷金 1ヶ月 / 2ヶ月 保証金/敷引・償却 なし / -
交通
所在地 千葉県柏市柏1丁目周辺地図
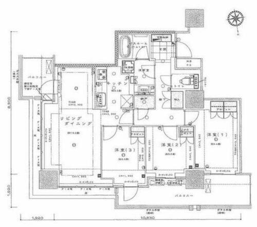
間取り 3LDK 専有面積 78.95m2
築年月 2016年3月 築年数 築9年8ヶ月
おすすめポイント
ペット相談可・最上階

詳細情報

賃料 39万円 管理費等 なし
敷金 2ヶ月 礼金 1ヶ月
保証金 なし 敷引・償却 -
更新料 - 契約期間 定期借家 3年
カード決済 -
所在地 千葉県柏市柏1丁目周辺地図
交通
  • JR千代田・常磐緩行線 柏駅 徒歩3分乗換案内
建物名 ライオンズタワー柏 
間取り 3LDK 築年月(築年数) 2016年3月(築9年8ヶ月)
専有面積 78.95㎡ 所在階/階数 27階/27階建
建物構造 RC  方位  
現況 居住中  駐車場 -   近くの駐車場を探す
入居可能時期 相談 住宅保険 あり
情報提供元 アットホーム[1177332813] 情報公開日
情報更新日 - 次回更新予定日 随時

設備など

2階以上 最上階 角部屋 -
駐車場(近隣含) - エアコン付き - バス・トイレ別
室内洗濯機置き場 追焚機能 - オートロック付き
モニタ付インターホン - フローリング - バルコニー -
ガスコンロ可 - 浴室乾燥機 24時間セキュリティ -
宅配ボックス ペット相談可 二人入居可 -
設備 オートロック・バス・トイレ別・トイレ・洗濯機置場・室内洗濯機置き場・エレベーター・都市ガス・浴室乾燥機・シャンプードレッサ・温水洗浄便座・システムキッチン・宅配BOX・食器洗浄乾燥機 
リフォーム履歴 -
リノベーション履歴 -
備考 室内設備は洗面化粧台・浴室乾燥機・食器洗乾燥機など充実した設備を備え付けています。留守中に注文した商品が届くので、配送時間を気にせず注文ができる宅配ボックスが共用部に付いています。オートロック機能が付いているのでドアの前まで知らない人が入って来づらくなります。エレベーター付きの物件です。ペット相談可能です。お気軽にご相談ください。高層マンションの最上階にあるお部屋です。設備条件が充実した月々39万円台のお部屋です。広さも78.95㎡ありゆったりとした空間があります。バストイレ別の物件です。築9年の物件で充実した毎日を過ごしませんか。・共用部には宅配ボックスを設置しているため、家で何時間も待機する必要がありません。室内設備は洗面化粧台・浴室乾燥機・食器洗乾燥機など大変充実しております。こちらの物件はエレベーター付きです。 
特記事項 ペット相談可・最上階

省エネ性能

エネルギー消費性能 -
断熱性能 -
目安光熱費 -

千葉県柏市柏1丁目 周辺地図情報

地図
※地図上に表示される物件の位置は付近住所に所在することを表すものであり、実際の物件所在地とは異なる場合がございます。
   正確な物件所在地は、取扱い不動産会社にお問い合わせください。
アピールポイント
共用部には宅配ボックスが備え付けられているため、家で何時間も待機する必要がありません。エントランスにはオートロック機能が付いているのでドアの前まで来訪者が入りづらくなります。室内設備は浴室乾燥機・洗面化粧台・食器洗乾燥機など大変充実しております。高層マンションの最上階にあるお部屋です。2016年築の物件です。建築面積78.95㎡の物件です。こちらはエレベーター付きの物件です。生活を快適にする設備も充実のこの物件は月39万円です。バスルームとトイレが分かれています。外装もおしゃれで快適な生活をおくることができるマンションです。

不動産会社情報

お問い合わせ先 商号:桂不動産(株) 柏支店
免許番号:国土交通大臣免許(2)第9087号
所在地:柏市末広町4-1神崎ビル4階
TEL:04-7138-6510
取引態様:仲介
管理コード:153230000164698
所属協会など:(公社)茨城県宅地建物取引業協会会員、(公社)首都圏不動産公正取引協議会加盟
共有する
QRコード

柏市の暮らしデータ

人口などの統計情報

世帯数 187782世帯
人口総数 435529人
転入者数 23008人
転入率(人口1000人当たり)
52.83人
転出者数 19422人
転出率(人口1000人当たり)
44.59人
土地平均価格
住宅地
126272円/m2
商業地
540429円/m2

結婚・育児の助成金

子育て関連の独自の取り組み (1)初めて子育てをするお母さん同士が話し合い知識や学びを深めるBPプログラムや子育てに悩む保護者と一緒にお子さんのほめるポイントを見つけるペアレント・プログラムの実施。(2)子育てネットワーク事業(子育てフォーラム等)の実施。(3)LINE公式アカウントやInstagramアカウントの活用による子育て情報の提供。(4)乳幼児と保護者を主な対象としたこども図書館。
出産祝い なし
公立保育所数 22所(うち0歳児保育を実施している保育所:19所)
私立保育所数 55所(うち0歳児保育を実施している保育所:54所)
保育所入所待機児童数 0人
認定こども園数 20園 預かり保育実施園数 公立:- 私立:20園
学校給食 【小学校】完全給食【中学校】完全給食
公立中学校の学校選択制 未実施
子ども・学生等医療費助成<通院>対象年齢 18歳3月末まで 子ども・学生等医療費助成<入院>対象年齢 18歳3月末まで

柏市の治安・ごみ収集情報

公共料金・インフラ

ガス料金(22m3使用した場合の月額) 京葉瓦斯株式会社4515円
東日本ガス株式会社(我孫子・取手地区)5271円
京和ガス株式会社4162円
水道料金(口径20mmで20m3の月額) 柏市3124円
下水道料金(20m3を使用した場合の月額) 柏市2357円
下水道普及率 90.9%

安心・安全

建物火災出火件数 51件
人口10000人当たり
1.20件
刑法犯認知件数 2492件
人口1000人当たり
5.84件
ハザード・防災マップ あり

医療

一般病院総数 16ヶ所
一般診療所総数 270ヶ所
小児科医師数 69人
小児人口10000人当たり
12.67人
産婦人科医師数 36人
15~49歳女性人口1万人当たり
4.06人
介護保険料基準額(月額) 5800円

ごみ

家庭ごみ収集(可燃ごみ) 無料
備考
指定ごみ袋は有料だが、袋代にごみ収集・処理料金等を含まず。
家庭ごみの分別方式 5分別17種〔資源品(古紙類[新聞紙、ダンボール、雑誌・ざつ紙、紙パック]、PETボトル、古着・古布類など、空カン類、空ビン類、金属類) 容器包装プラスチック類 可燃ごみ 不燃ごみ 有害ごみ(乾電池、バッテリー、蛍光灯、使い切ったライター、水銀含有物など)〕 拠点回収:小型家電
家庭ごみの戸別収集 一部実施(【ごみ出し困難者支援収集】一部地域のみ実施)
粗大ごみ収集 あり
備考
有料(柏地域1,100円/点、沼南地域880円/点)。事前申込制。戸別収集。
生ごみ処理機助成金制度 あり
上限金額
10000円
上限比率
33.3%
暮らしデータ提供元:生活ガイド.com
※行政機関により公表していない地域及びデータがございます。東京23区以外の政令指定都市は、市全体のデータとして表示しています。
※提供データには細心の注意を払っておりますが、調査後に変更がある場合があります。 最新の情報につきましては各市区役所までお問い合わせいただくか、自治体HPなどをご確認ください。
OCN×ドコモ光新規お申込みで合計最大137,280円相当おトク!特典の内訳・適用条件など詳細はこちら

柏市内の各駅の住みやすさ

他のエリアから探す

柏市の詳細地域から賃貸物件を探す

青葉台あかね町明原あけぼの旭町東上町東台本町泉町伊勢原今谷上町今谷南町岩井永楽台大青田大井大島田大塚町大津ケ丘大室加賀柏の葉柏堀之内新田かやの町北柏北柏台亀甲台町小青田高南台五條谷酒井根逆井逆井藤ノ台桜台しいの木台篠籠田宿連寺正連寺新柏新逆井新富町末広町関場町高田高柳高柳新田中央中央町千代田塚崎つくしが丘手賀の杜常盤台戸張富里豊上町豊四季豊四季台豊住豊平町十余二中新宿中十余二中原名戸ケ谷西柏台西町西原根戸花野井光ケ丘光ケ丘団地東柏東逆井東中新宿東山ひばりが丘藤ケ谷藤心布施布施新町船戸増尾増尾台松ケ崎松葉町緑ケ丘みどり台緑台南柏南柏中央南逆井南高柳南増尾向原町弥生町豊町若柴若葉町鷲野谷

近辺の市区から探す

取手市守谷市つくばみらい市三郷市吉川市松戸市流山市我孫子市鎌ケ谷市白井市

周辺の駅から探す

千代田・常磐緩行線
馬橋新松戸北小金南柏北柏我孫子天王台取手

マンションライブラリーを見る

ライオンズタワー柏


掲載情報の著作権は提供元企業等に帰属します。
Copyright:(C) 2025 At Home Co.,Ltd
アプリで簡単 物件探し 大手不動産サイトの情報から一括検!プッシュ通知で物件を見逃さない
App Storeからダウンロード Google Playで手に入れよう QRコード