アプリで簡単 物件探し 通知 共有 アプリならではの機能を使ってみる
賃貸アパート

シティハイツ 花巻駅 1DK 賃貸(賃貸マンション・アパート)

情報提供元
アットホーム
シティハイツ
賃料 3.8万円  (管理費等:-)
礼金・敷金 なし / 1ヶ月 保証金/敷引・償却 なし / -
交通
所在地 岩手県花巻市下根子周辺地図
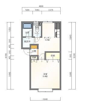
間取り 1DK 専有面積 32.29m2
築年月 1996年2月 築年数 築29年11ヶ月

詳細情報

賃料 3.8万円 管理費等 -
敷金 1ヶ月 礼金 なし
保証金 なし 敷引・償却 -
更新料 - 契約期間 2年
カード決済 -
所在地 岩手県花巻市下根子周辺地図
交通
建物名 シティハイツ 
間取り 1DK(洋 8) 築年月(築年数) 1996年2月(築29年11ヶ月)
専有面積 32.29㎡ 所在階/階数 1階/2階建
建物構造 木造  方位 南 
現況 空  駐車場 有 無料
入居可能時期 2026年3月下旬 住宅保険 あり
情報提供元 アットホーム[6988564933] 情報公開日
情報更新日 - 次回更新予定日 随時

設備など

2階以上 - 最上階 - 角部屋 -
駐車場(近隣含) エアコン付き バス・トイレ別
室内洗濯機置き場 - 追焚機能 - オートロック付き -
モニタ付インターホン - フローリング バルコニー -
ガスコンロ可 - 浴室乾燥機 - 24時間セキュリティ -
宅配ボックス - ペット相談可 - 二人入居可 -
設備 エアコン・バス・トイレ別・トイレ・収納スペース・洗濯機置場・プロパンガス・フローリング・シューズボックス・インターネット対応・インターネット無料・リフォーム 
リフォーム履歴 ■水回り
2026年01月実施予定
トイレ
水洗化工事
■内装
2026年03月実施予定
全室クロス張替え/床(フローリング等)
■外装
2026年01月実施予定
外壁
※実施年月は、施工箇所の中で最も古いものを表示しています
リノベーション履歴 -
備考 賃貸保証等:加入要(アーク賃貸保証 初期費用:賃料50% 毎月保証料:1800円)・令和8年3月末より入居予定。富士大学に徒歩3分。現在リフォーム中のため、来年3月完成予定。富士大学生限定特典があります。詳しくはお問合せください。・仲介手数料:1ヶ月 
特記事項

省エネ性能

エネルギー消費性能 -
断熱性能 -
目安光熱費 -

岩手県花巻市下根子 周辺地図情報

地図
※地図上に表示される物件の位置は付近住所に所在することを表すものであり、実際の物件所在地とは異なる場合がございます。
   正確な物件所在地は、取扱い不動産会社にお問い合わせください。
アピールポイント
令和8年3月末より入居予定。富士大学に徒歩3分。現在リフォーム中のため、来年3月完成予定。富士大学生限定特典があります。詳しくはお問合せください。

不動産会社情報

お問い合わせ先 商号:(株)リノスタイル
免許番号:岩手県知事免許(4)第2346号
所在地:花巻市矢沢第10地割1-1
TEL:0198-32-1004
取引態様:仲介
管理コード:
所属協会など:(一社)岩手県宅地建物取引業協会会員、東北地区不動産公正取引協議会加盟
共有する
QRコード

    花巻市の暮らしデータ

    人口などの統計情報

    世帯数 34604世帯
    人口総数 91094人
    転入者数 2423人
    転入率(人口1000人当たり)
    26.60人
    転出者数 2536人
    転出率(人口1000人当たり)
    27.84人
    土地平均価格
    住宅地
    15668円/m2
    商業地
    26683円/m2

    結婚・育児の助成金

    子育て関連の独自の取り組み (1)インフルエンザ予防接種費用の一部を助成(中学校3年生まで及び妊婦)。(2)第2子以降保育料無償化(世帯が監護するお子さんを第1子とする)。(3)未就学児の所得制限撤廃と医療費無料化。(4)小学生から高校生等までの所得制限撤廃と医療費一部助成。(5)花巻市病後児保育室を開設。(6)保育士の復職を支援。(7)妊娠・出産、子育て期までの継続的な相談支援や、産前産後サポート(無料)、出産間もない母子への産後ケア(有料)。(8)妊産婦の通院・入院に要する交通費等の支援。(9)副食費の助成(世帯が監護するお子さんを第1子として、第1子月額300円、第2子以降月額上限4,800円を施設へ交付し保護者の負担軽減)。(10)おたふくかぜ予防接種費用の一部を助成(1歳児・小学校就学前の年長児)。
    出産祝い なし
    公立保育所数 8所(うち0歳児保育を実施している保育所:8所)
    私立保育所数 14所(うち0歳児保育を実施している保育所:14所)
    保育所入所待機児童数 9人
    認定こども園数 12園 預かり保育実施園数 公立:1園 私立:5園
    学校給食 【小学校】完全給食【中学校】完全給食
    公立中学校の学校選択制 未実施
    子ども・学生等医療費助成<通院>対象年齢 18歳3月末まで 子ども・学生等医療費助成<入院>対象年齢 18歳3月末まで

    花巻市の治安・ごみ収集情報

    公共料金・インフラ

    ガス料金(22m3使用した場合の月額) 花巻ガス株式会社5420円
    水道料金(口径20mmで20m3の月額) 岩手中部水道企業団4345円
    下水道料金(20m3を使用した場合の月額) 花巻市2860円
    下水道普及率 66.3%

    安心・安全

    建物火災出火件数 22件
    人口10000人当たり
    2.36件
    刑法犯認知件数 214件
    人口1000人当たり
    2.30件
    ハザード・防災マップ あり

    医療

    一般病院総数 5ヶ所
    一般診療所総数 68ヶ所
    小児科医師数 4人
    小児人口10000人当たり
    4.29人
    産婦人科医師数 2人
    15~49歳女性人口1万人当たり
    1.32人
    介護保険料基準額(月額) 5748円

    ごみ

    家庭ごみ収集(可燃ごみ) 無料
    備考
    市推奨ごみ袋有料。中身の見える袋で出すことも可能。
    家庭ごみの分別方式 2分別10種〔一般ごみ(燃やせるごみ、燃やせないごみ) 資源ごみ(プラ製容器包装、ペットボトル、ガラスびん[無色透明、茶色、その他の色]、衣類、廃食用油、小型電子機器等)〕
    家庭ごみの戸別収集 未実施
    粗大ごみ収集 なし
    備考
    自己搬入。もしくは、許可業者へ申し込み。
    生ごみ処理機助成金制度 なし
    上限金額
    -
    上限比率
    -
    暮らしデータ提供元:生活ガイド.com
    ※行政機関により公表していない地域及びデータがございます。東京23区以外の政令指定都市は、市全体のデータとして表示しています。
    ※提供データには細心の注意を払っておりますが、調査後に変更がある場合があります。 最新の情報につきましては各市区役所までお問い合わせいただくか、自治体HPなどをご確認ください。
    OCN×ドコモ光新規お申込みで合計最大137,280円相当おトク!特典の内訳・適用条件など詳細はこちら

    花巻市内の各駅の住みやすさ

    他のエリアから探す

    花巻市の詳細地域から賃貸物件を探す

    浅沢東町愛宕町石神町石鳥谷町北寺林石鳥谷町好地石鳥谷町中寺林石鳥谷町八幡石鳥谷町南寺林大通り大迫町大迫大谷地御田屋町鍛治町花城町上小舟渡上諏訪上町坂本町桜木町桜台桜町里川口町材木町下幅下北万丁目下似内下根子実相寺城内末広町諏訪諏訪町高木高田天下田豊沢町中根子仲町成田南城西大通り西宮野目二枚橋二枚橋町大通り二枚橋町北二枚橋町南東宮野目藤沢町双葉町不動不動町星が丘松園町南川原町南新田南諏訪町南万丁目本館矢沢山の神湯口四日町若葉町

    近辺の市区から探す

    北上市

    周辺の駅から探す

    東北本線
    金ケ崎六原北上村崎野花巻花巻空港石鳥谷日詰紫波中央

    岩手県花巻市で他のジャンルから探す


    掲載情報の著作権は提供元企業等に帰属します。
    Copyright:(C) 2025 At Home Co.,Ltd
    アプリで簡単 物件探し 大手不動産サイトの情報から一括検!プッシュ通知で物件を見逃さない
    App Storeからダウンロード Google Playで手に入れよう QRコード