アプリで簡単 物件探し 通知 共有 アプリならではの機能を使ってみる
賃貸マンション

ダイアパレス白石 白石駅 ワンルーム 賃貸(賃貸マンション・アパート)

情報提供元
アットホーム
ダイアパレス白石 外観
賃料 2.9万円  (管理費等:6500円)
礼金・敷金 なし / 1ヶ月 保証金/敷引・償却 なし / -
交通
所在地 北海道札幌市白石区南郷通1丁目北周辺地図
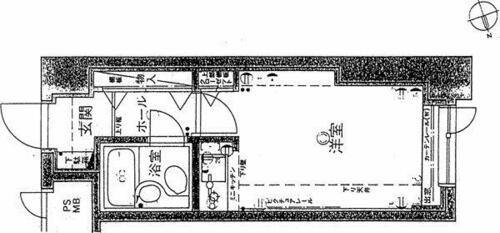
間取り ワンルーム 専有面積 19.32m2
築年月 1990年6月 築年数 築35年7ヶ月
おすすめポイント
分譲タイプ・外観タイル張り・管理人日勤・保証人不要/代行

詳細情報

賃料 2.9万円 管理費等 6500円
敷金 1ヶ月 礼金 なし
保証金 なし 敷引・償却 -
更新料 - 契約期間 2年
カード決済 -
所在地 北海道札幌市白石区南郷通1丁目北周辺地図
交通
建物名 ダイアパレス白石 
間取り ワンルーム 築年月(築年数) 1990年6月(築35年7ヶ月)
専有面積 19.32㎡ 所在階/階数 8階/10階建
建物構造 SRC  方位 西 
現況 空  駐車場 空無    近くの駐車場を探す
入居可能時期 即時 住宅保険 あり 2年 19000円
情報提供元 アットホーム[1073681292] 情報公開日
情報更新日 - 次回更新予定日 随時

設備など

2階以上 最上階 - 角部屋 -
駐車場(近隣含) エアコン付き - バス・トイレ別 -
室内洗濯機置き場 追焚機能 - オートロック付き -
モニタ付インターホン - フローリング - バルコニー -
ガスコンロ可 - 浴室乾燥機 - 24時間セキュリティ -
宅配ボックス - ペット相談可 - 二人入居可 -
設備 暖房・給湯・B・T同室・トイレ・収納スペース・洗濯機置場・室内洗濯機置き場・シャワー・エレベーター・BS端子・冷蔵庫・都市ガス・洗面台・照明器具・出窓・システムキッチン・駐輪場・ベッド・コインランドリ−・FF暖房・クローゼット・IHクッキングヒータ・洗濯乾燥機・防犯カメラ・家具付き・シューズボックス・光ファイバー(ブロードバンド)・インターネット対応・家電付き 
リフォーム履歴 -
リノベーション履歴 -
備考 家具家電付き、即入居可能・ワンルーム・面積19.32㎡・都市ガス給湯器・暖房機・ビルトインIHコンロ・オートロックモニター付インターホン・出窓・家具家電付・地下鉄白石駅徒歩1分・賃貸保証等:利用可(日本セーフティー 契約時に賃料等の50%(最低 2万円)。 1年経過時に1万円。保証人がいない場合に保証会社利用。)・管理形態/管理員の勤務形態:日勤・ダイアパレス白石は、地下鉄東西線「白石」駅まで徒歩1分の好立地にあります。  マンション周辺には、白石区役所が移転し複合商業施設が隣接、コンビニ、スーパーが徒歩1分、郵便局、北洋銀行が徒歩2分の所に・バイク置場:なし・駐輪場:空なし/水回り消毒料 税込 28600円/事務手数料 税込 8800円 
特記事項 分譲タイプ・外観タイル張り・管理人日勤・保証人不要/代行

省エネ性能

エネルギー消費性能 -
断熱性能 -
目安光熱費 -

北海道札幌市白石区南郷通1丁目北 周辺地図情報

地図
※地図上に表示される物件の位置は付近住所に所在することを表すものであり、実際の物件所在地とは異なる場合がございます。
   正確な物件所在地は、取扱い不動産会社にお問い合わせください。

不動産会社情報

お問い合わせ先 商号:(株)アパマンプラザ
免許番号:北海道知事免許 石狩(10)第3992号
所在地:札幌市中央区南九条西4丁目1-12
TEL:011-513-0007
取引態様:仲介
管理コード:137150000274665
所属協会など:(公社)北海道宅地建物取引業協会会員、(一社)北海道不動産公正取引協議会加盟
共有する
QRコード

    札幌市白石区の暮らしデータ

    人口などの統計情報

    世帯数 967372世帯
    人口総数 1956928人
    転入者数 121035人
    転入率(人口1000人当たり)
    61.85人
    転出者数 109861人
    転出率(人口1000人当たり)
    56.14人
    土地平均価格
    住宅地
    107466円/m2
    商業地
    594868円/m2

    結婚・育児の助成金

    子育て関連の独自の取り組み (1)交通事故・労働災害およびその他不慮の災害により、父、または母等を失った(重度障がいとなった場合を含む)義務教育終了前の遺児を扶養する方に遺児1人につき月額4,000円を支給するとともに、手当の対象となる遺児が小・中学校および高等学校等に入学する際または中学校卒業後、就職する際に遺児1人につき2万円を支給。(2)認可保育所等における第2子以降の保育料について、世帯年収や兄弟姉妹の年齢差に関わらず無償化。
    出産祝い なし
    公立保育所数 20所(うち0歳児保育を実施している保育所:14所)
    私立保育所数 182所(うち0歳児保育を実施している保育所:182所)
    保育所入所待機児童数 0人
    認定こども園数 238園 預かり保育実施園数 公立:9園 私立:49園
    学校給食 【小学校】完全給食【中学校】完全給食
    公立中学校の学校選択制 一部実施(小規模特認校)
    子ども・学生等医療費助成<通院>対象年齢 中学校卒業まで 子ども・学生等医療費助成<入院>対象年齢 中学校卒業まで

    札幌市白石区の治安・ごみ収集情報

    公共料金・インフラ

    ガス料金(22m3使用した場合の月額) 北海道瓦斯株式会社5118円
    水道料金(口径20mmで20m3の月額) 札幌市3652円
    下水道料金(20m3を使用した場合の月額) 札幌市1397円
    下水道普及率 99.9%

    安心・安全

    建物火災出火件数 286件
    人口10000人当たり
    1.45件
    刑法犯認知件数 11263件
    人口1000人当たり
    5.71件
    ハザード・防災マップ あり

    医療

    一般病院総数 172ヶ所
    一般診療所総数 1433ヶ所
    小児科医師数 371人
    小児人口10000人当たり
    17.99人
    産婦人科医師数 203人
    15~49歳女性人口1万人当たり
    5.12人
    介護保険料基準額(月額) 5773円

    ごみ

    家庭ごみ収集(可燃ごみ) 有料
    備考
    燃やせるごみ・燃やせないごみは有料収集。
    家庭ごみの分別方式 9分別〔燃やせるごみ 燃やせないごみ スプレー缶・カセットボンベ 筒型乾電池 加熱式たばこ・電子たばこ・ライター 容器包装プラスチック びん・缶・ペットボトル 枝・葉・草 雑がみ〕 拠点回収:新聞 雑誌 ダンボール 紙パック 雑がみ びん・缶・ペットボトル 一升びん・ビールびん 容器包装プラスチック 古着 古布 毛布 小物金属類 小型家電 蛍光管 水銀体温計・水銀血圧計・水銀温度計 筒型乾電池 小型充電式電池 廃食油 生ごみ堆肥 枝・葉・草 使用済みインクカートリッジ スプレー缶・カセットボンベ ライター
    家庭ごみの戸別収集 一部実施(【さわやか収集】一定の要件に該当する要介護者や障がい者に対し、玄関先からのごみの収集や大型ごみの家屋内からの運び出しの支援を実施)
    粗大ごみ収集 あり
    備考
    有料。戸別収集。事前申込制(大型ごみ収集センター)。
    生ごみ処理機助成金制度 あり
    上限金額
    10000円
    上限比率
    50.0%
    暮らしデータ提供元:生活ガイド.com
    ※行政機関により公表していない地域及びデータがございます。東京23区以外の政令指定都市は、市全体のデータとして表示しています。
    ※提供データには細心の注意を払っておりますが、調査後に変更がある場合があります。 最新の情報につきましては各市区役所までお問い合わせいただくか、自治体HPなどをご確認ください。

    札幌市白石区内の各駅の住みやすさ

    他のエリアから探す

    札幌市白石区の詳細地域から賃貸物件を探す

    川北一条川北二条川北三条川北五条川下川下一条川下二条川下四条菊水一条菊水二条菊水三条菊水四条菊水五条菊水六条菊水七条菊水八条菊水九条菊水上町一条菊水上町二条菊水上町三条菊水上町四条菊水元町十条菊水元町一条菊水元町二条菊水元町三条菊水元町四条菊水元町五条菊水元町六条菊水元町七条菊水元町八条菊水元町九条北郷北郷一条北郷二条北郷三条北郷四条北郷五条北郷六条北郷七条北郷八条北郷九条栄通中央一条中央二条中央三条南郷通南郷通東札幌一条東札幌二条東札幌三条東札幌四条東札幌五条東札幌六条平和通平和通本郷通本郷通本通本通米里一条米里三条米里四条米里五条

    近辺の市区から探す

    札幌市中央区札幌市北区札幌市東区札幌市豊平区札幌市南区札幌市西区札幌市厚別区札幌市清田区

    周辺の駅から探す

    札幌市東西線
    大通バスセンター前菊水東札幌白石南郷7丁目南郷13丁目南郷18丁目大谷地

    マンションライブラリーを見る

    ダイアパレス白石

    北海道札幌市白石区で他のジャンルから探す


    掲載情報の著作権は提供元企業等に帰属します。
    Copyright:(C) 2025 At Home Co.,Ltd
    アプリで簡単 物件探し 大手不動産サイトの情報から一括検!プッシュ通知で物件を見逃さない
    App Storeからダウンロード Google Playで手に入れよう QRコード