アプリで簡単 物件探し 通知 共有 アプリならではの機能を使ってみる
賃貸一戸建て

あいの里1条3丁目戸建 あいの里教育大駅 4SLDK 賃貸(賃貸マンション・アパート)

情報提供元
アットホーム
あいの里1条3丁目戸建
賃料 13.8万円  (管理費等:なし)
礼金・敷金 1ヶ月 / 1ヶ月 保証金/敷引・償却 なし / -
交通
所在地 北海道札幌市北区あいの里一条3丁目周辺地図
間取り 4SLDK 専有面積 124m2
築年月 1990年6月 築年数 築35年7ヶ月
おすすめポイント
ペット相談可・二人入居可

詳細情報

賃料 13.8万円 管理費等 なし
敷金 1ヶ月 礼金 1ヶ月
保証金 なし 敷引・償却 -
更新料 - 契約期間 2年
カード決済 -
所在地 北海道札幌市北区あいの里一条3丁目周辺地図
交通
  • JR札沼線 あいの里教育大駅 徒歩8分乗換案内
  • JR札沼線 拓北駅 徒歩12分乗換案内
  • JR札沼線 あいの里公園駅 徒歩29分乗換案内
建物名 あいの里1条3丁目戸建 
間取り 4SLDK(LDK20・和室6・洋室8・洋室6・洋室5.7) 築年月(築年数) 1990年6月(築35年7ヶ月)
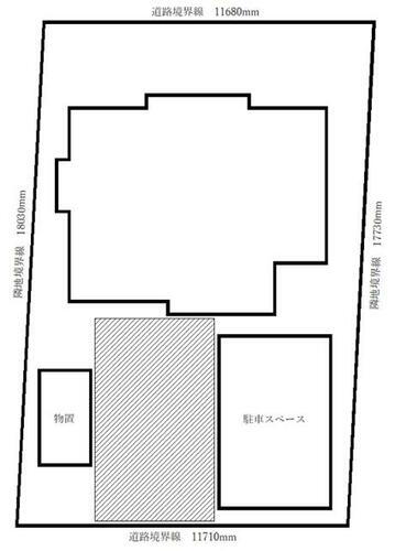
専有面積 124㎡ 所在階/階数 2階建
建物構造 木造  方位 南 
現況 空  駐車場 有 無料
入居可能時期 即時 住宅保険 なし
情報提供元 アットホーム[1181830914] 情報公開日
情報更新日 - 次回更新予定日 随時

設備など

2階以上 - 最上階 - 角部屋 -
駐車場(近隣含) エアコン付き - バス・トイレ別
室内洗濯機置き場 追焚機能 - オートロック付き -
モニタ付インターホン - フローリング バルコニー -
ガスコンロ可 - 浴室乾燥機 - 24時間セキュリティ -
宅配ボックス - ペット相談可 二人入居可
設備 暖房・給湯・バス・トイレ別・トイレ・収納スペース・洗濯機置場・室内洗濯機置き場・シャワー・都市ガス・洗面台・フローリング・シャンプードレッサ・温水洗浄便座・システムキッチン・庭・FF暖房・クローゼット・専用庭・3口以上コンロ 
リフォーム履歴 -
リノベーション履歴 -
備考 ペット条件:小型犬可・札沼線「あいの里教育大」徒歩8分!文教エリアの賃貸戸建!ペット相談(小型犬のみ)! 経済的な灯油給湯・暖房!ガスコンロ(3口以上)・システムキッチン・トイレ2カ所 ・床下収納・トランクルーム・バイク置場:なし・駐輪場:なし 
特記事項 ペット相談可・二人入居可

省エネ性能

エネルギー消費性能 -
断熱性能 -
目安光熱費 -

北海道札幌市北区あいの里一条3丁目 周辺地図情報

地図
※地図上に表示される物件の位置は付近住所に所在することを表すものであり、実際の物件所在地とは異なる場合がございます。
   正確な物件所在地は、取扱い不動産会社にお問い合わせください。
アピールポイント
札沼線「あいの里教育大」徒歩8分!文教エリアの賃貸戸建!ペット相談(小型犬のみ)!2人入居可能! 経済的な灯油給湯・暖房!ガスコンロ(3口以上)・システムキッチン・トイレ2カ所 ・床下収納・トランクルーム・シューズボックス

不動産会社情報

お問い合わせ先 商号:札幌宅商(株)北支店
免許番号:北海道知事免許 石狩(15)第1122号
所在地:札幌市北区北二十三条西4丁目2-1ターミナルビル2階
TEL:011-757-2321
取引態様:仲介
管理コード:00012896753_165
所属協会など:(公社)北海道宅地建物取引業協会会員、(一社)北海道不動産公正取引協議会加盟
共有する
QRコード

    札幌市北区の暮らしデータ

    人口などの統計情報

    世帯数 967372世帯
    人口総数 1956928人
    転入者数 121035人
    転入率(人口1000人当たり)
    61.85人
    転出者数 109861人
    転出率(人口1000人当たり)
    56.14人
    土地平均価格
    住宅地
    107466円/m2
    商業地
    594868円/m2

    結婚・育児の助成金

    子育て関連の独自の取り組み (1)交通事故・労働災害およびその他不慮の災害により、父、または母等を失った(重度障がいとなった場合を含む)義務教育終了前の遺児を扶養する方に遺児1人につき月額4,000円を支給するとともに、手当の対象となる遺児が小・中学校および高等学校等に入学する際または中学校卒業後、就職する際に遺児1人につき2万円を支給。(2)認可保育所等における第2子以降の保育料について、世帯年収や兄弟姉妹の年齢差に関わらず無償化。
    出産祝い なし
    公立保育所数 20所(うち0歳児保育を実施している保育所:14所)
    私立保育所数 182所(うち0歳児保育を実施している保育所:182所)
    保育所入所待機児童数 0人
    認定こども園数 238園 預かり保育実施園数 公立:9園 私立:49園
    学校給食 【小学校】完全給食【中学校】完全給食
    公立中学校の学校選択制 一部実施(小規模特認校)
    子ども・学生等医療費助成<通院>対象年齢 中学校卒業まで 子ども・学生等医療費助成<入院>対象年齢 中学校卒業まで

    札幌市北区の治安・ごみ収集情報

    公共料金・インフラ

    ガス料金(22m3使用した場合の月額) 北海道瓦斯株式会社5118円
    水道料金(口径20mmで20m3の月額) 札幌市3652円
    下水道料金(20m3を使用した場合の月額) 札幌市1397円
    下水道普及率 99.9%

    安心・安全

    建物火災出火件数 286件
    人口10000人当たり
    1.45件
    刑法犯認知件数 11263件
    人口1000人当たり
    5.71件
    ハザード・防災マップ あり

    医療

    一般病院総数 172ヶ所
    一般診療所総数 1433ヶ所
    小児科医師数 371人
    小児人口10000人当たり
    17.99人
    産婦人科医師数 203人
    15~49歳女性人口1万人当たり
    5.12人
    介護保険料基準額(月額) 5773円

    ごみ

    家庭ごみ収集(可燃ごみ) 有料
    備考
    燃やせるごみ・燃やせないごみは有料収集。
    家庭ごみの分別方式 9分別〔燃やせるごみ 燃やせないごみ スプレー缶・カセットボンベ 筒型乾電池 加熱式たばこ・電子たばこ・ライター 容器包装プラスチック びん・缶・ペットボトル 枝・葉・草 雑がみ〕 拠点回収:新聞 雑誌 ダンボール 紙パック 雑がみ びん・缶・ペットボトル 一升びん・ビールびん 容器包装プラスチック 古着 古布 毛布 小物金属類 小型家電 蛍光管 水銀体温計・水銀血圧計・水銀温度計 筒型乾電池 小型充電式電池 廃食油 生ごみ堆肥 枝・葉・草 使用済みインクカートリッジ スプレー缶・カセットボンベ ライター
    家庭ごみの戸別収集 一部実施(【さわやか収集】一定の要件に該当する要介護者や障がい者に対し、玄関先からのごみの収集や大型ごみの家屋内からの運び出しの支援を実施)
    粗大ごみ収集 あり
    備考
    有料。戸別収集。事前申込制(大型ごみ収集センター)。
    生ごみ処理機助成金制度 あり
    上限金額
    10000円
    上限比率
    50.0%
    暮らしデータ提供元:生活ガイド.com
    ※行政機関により公表していない地域及びデータがございます。東京23区以外の政令指定都市は、市全体のデータとして表示しています。
    ※提供データには細心の注意を払っておりますが、調査後に変更がある場合があります。 最新の情報につきましては各市区役所までお問い合わせいただくか、自治体HPなどをご確認ください。
    OCN×ドコモ光新規お申込みで合計最大137,280円相当おトク!特典の内訳・適用条件など詳細はこちら

    札幌市北区内の各駅の住みやすさ

    他のエリアから探す

    札幌市北区の詳細地域から賃貸物件を探す

    あいの里一条あいの里二条あいの里三条あいの里四条麻生町北十条西北十一条西北十二条西北十三条西北十四条西北十五条西北十六条西北十七条西北十八条西北十九条西北二十条西北二十一条西北二十二条西北二十三条西北二十四条西北二十五条西北二十六条西北二十七条西北二十八条西北二十九条西北三十条西北三十一条西北三十二条西北三十三条西北三十四条西北三十五条西北三十六条西北三十七条西北三十八条西北三十九条西北四十条西北六条西北七条西北八条西北九条西篠路十条篠路一条篠路二条篠路三条篠路四条篠路五条篠路六条篠路七条篠路八条篠路九条篠路町上篠路篠路町篠路新川一条新川二条新川三条新川四条新川五条新川六条新川西一条新川西二条新川西三条新川西四条新川西五条新琴似十条新琴似十一条新琴似十二条新琴似一条新琴似二条新琴似三条新琴似四条新琴似五条新琴似六条新琴似七条新琴似八条新琴似九条太平十条太平十一条太平十二条太平一条太平二条太平三条太平四条太平五条太平六条太平七条太平八条太平九条拓北二条拓北四条拓北五条拓北六条拓北七条拓北八条屯田十条屯田十一条屯田一条屯田二条屯田三条屯田四条屯田五条屯田六条屯田七条屯田八条屯田九条西茨戸一条東茨戸一条東茨戸二条南あいの里百合が原

    近辺の市区から探す

    札幌市中央区札幌市東区札幌市白石区札幌市豊平区札幌市南区札幌市西区札幌市厚別区札幌市手稲区石狩市

    周辺の駅から探す

    札沼線
    太平百合が原篠路拓北あいの里教育大あいの里公園ロイズタウン太美当別

    北海道札幌市北区で他のジャンルから探す


    掲載情報の著作権は提供元企業等に帰属します。
    Copyright:(C) 2025 At Home Co.,Ltd
    アプリで簡単 物件探し 大手不動産サイトの情報から一括検!プッシュ通知で物件を見逃さない
    App Storeからダウンロード Google Playで手に入れよう QRコード