アプリで簡単 物件探し 通知 共有 アプリならではの機能を使ってみる
中古マンション

ダイアパレス河辺第2 1階 2LDK

情報提供元
LIFULL HOME'S
ダイアパレス河辺第2
価格 1580万円  (管理費等:15,840円)
修繕積立金 10,080円
交通
所在地 東京都青梅市野上町4丁目周辺地図
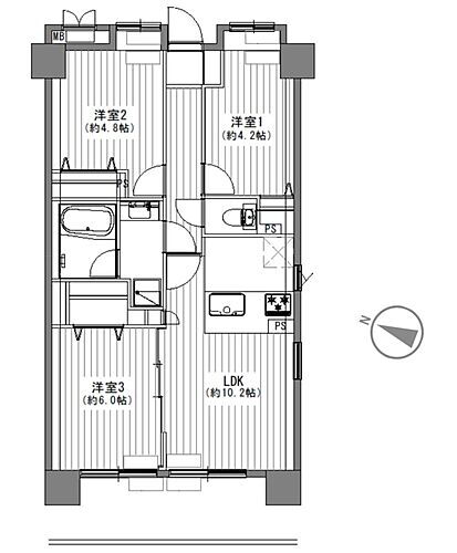
間取り 2LDK 専有面積 52.87m2(壁芯)
所在階/階数 1階/6階建 方位 南西
築年月 1987年2月 築年数 築38年9ヶ月
おすすめポイント
JR青梅線河辺駅徒歩11分!リフォーム済で室内キレイです!南西向きにつき、陽当たり良好です!便利な食洗
角部屋・バリアフリー
物件を見たい、物件や住環境の詳しい情報やローン相談など、
お問い合わせ先
高野商事株式会社

詳細情報

価格 1580万円 管理費等 15,840円
駐車場 修繕積立金 10,080円
所在地 東京都青梅市野上町4丁目周辺地図
交通
物件名 ダイアパレス河辺第2
築年月(築年数) 1987年2月(築38年9ヶ月) 間取り 2LDK
総戸数 39戸 専有面積 52.87m2(壁芯)
所在階/階数 1階/6階建 バルコニー面積 7.2m2
方位 南西 建物構造 RC
管理形態 全部委託 管理員の勤務形態 日勤
維持費等 土地権利 所有権
用途地域 2種中高 借地期間・地代
現況 空室 引渡可能年月 即時
情報提供元 LIFULL HOME'S [1520290000641] 情報公開日
情報更新日 次回更新予定日 2025年11月7日

設備など

ペット相談可 - 即入居可 南向き -
角部屋 駐車場空き有り - トランクルーム -
オートロック - 宅配ボックス - 浴室乾燥機 -
床暖房 - ウォークインクローゼット - 管理人常駐 -
最上階 - 2階以上 - タワーマンション -
設備 都市ガス・給湯・室内洗濯機置き場・エレベーター・バルコニー・温水洗浄便座・食器洗浄乾燥機
リフォーム履歴 -
リノベーション履歴 -
備考 施工会社:大和建設(株)
 【設備・特記事項備考】ペット不可
国土法届出:不要
法令等制限:高度
特記事項 角部屋・バリアフリー

省エネ性能

エネルギー消費性能 -
断熱性能 -
目安光熱費 -

東京都青梅市野上町4丁目 周辺地図情報

地図
※地図上に表示される物件の位置は付近住所に所在することを表すものであり、実際の物件所在地とは異なる場合がございます。
   正確な物件所在地は、取扱い不動産会社にお問い合わせください。
物件を見たい、物件や住環境の詳しい情報やローン相談など、
お問い合わせ先
高野商事株式会社

不動産会社情報

お問い合わせ先 商号:高野商事株式会社
免許番号:東京都知事(06)第078659号
所在地:東京都青梅市河辺町10丁目13-14
取引態様:媒介
管理コード:641
所属協会など:(公財)東日本不動産流通機構、(公社)首都圏不動産公正取引協議会、(公社)東京都宅地建物取引業協会
共有する
QRコード

お電話でのお問い合わせ

電話をかける(携帯・PHS可)
お問い合わせダイヤル
通話無料0037-619-06425
営業時間 09:30~18:30 (定休日:毎週水曜日  )
音声案内に従って数字を入力
お問い合わせ番号
56245-2977
不動産会社につながります
不動産会社のスタッフと
直接電話で話せます。
※不動産会社がお電話に出られなかった場合、株式会社LIFULLは電話会社が提供するサービスを介してお客様の発信者番号を受領後、折り返し専用の電話番号を発番してお問合せの不動産会社に通知します(お客様の発信者番号がお問合せの不動産会社に通知されることはございません)
※光IP電話、及びIP電話からはご利用になれません
※0037で始まる電話番号に携帯電話からお問合せいただいた方には、ショートメッセージ(SMS)によるお問合せ完了通知をお届けする場合があります
物件を見たい、物件や住環境の詳しい情報やローン相談など、
お問い合わせ先
高野商事株式会社

青梅市の暮らしデータ

人口などの統計情報

世帯数 56354世帯
人口総数 129468人
転入者数 5229人
転入率(人口1000人当たり)
40.39人
転出者数 4677人
転出率(人口1000人当たり)
36.12人
土地平均価格
住宅地
90181円/m2
商業地
175750円/m2

結婚・育児の助成金

子育て関連の独自の取り組み -
出産祝い あり
公立保育所数 0所(うち0歳児保育を実施している保育所:-)
私立保育所数 31所(うち0歳児保育を実施している保育所:31所)
保育所入所待機児童数 2人
認定こども園数 3園 預かり保育実施園数 公立:- 私立:-
学校給食 【小学校】完全給食(15校) 給食なし(1校)【中学校】完全給食
公立中学校の学校選択制 一部実施(小規模特別認定校制1校)
子ども・学生等医療費助成<通院>対象年齢 18歳3月末まで 子ども・学生等医療費助成<入院>対象年齢 18歳3月末まで

青梅市の治安・ごみ収集情報

公共料金・インフラ

ガス料金(22m3使用した場合の月額) 青梅ガス株式会社4327円
水道料金(口径20mmで20m3の月額) 東京都水道局2816円
下水道料金(20m3を使用した場合の月額) 青梅市2126円
下水道普及率 98.2%

安心・安全

建物火災出火件数 32件
人口10000人当たり
2.40件
刑法犯認知件数 620件
人口1000人当たり
4.64件
ハザード・防災マップ あり

医療

一般病院総数 8ヶ所
一般診療所総数 91ヶ所
小児科医師数 23人
小児人口10000人当たり
18.64人
産婦人科医師数 12人
15~49歳女性人口1万人当たり
5.49人
介護保険料基準額(月額) 5800円

ごみ

家庭ごみ収集(可燃ごみ) 有料
備考
指定ごみ袋有料。
家庭ごみの分別方式 5分別14種〔燃やすごみ 燃やさないごみ 容器包装プラスチックごみ 有害ごみ 資源ごみ(新聞・折込チラシ、雑誌・雑紙、段ボール、紙パック、繊維類、ビン、カン、ペットボトル、ガラス、陶磁器)〕
家庭ごみの戸別収集 実施
粗大ごみ収集 あり
備考
有料。戸別収集。事前申込制。持ち込み受付も可(祝日、年末年始を除く月曜~金曜と日曜)。
生ごみ処理機助成金制度 なし
上限金額
-
上限比率
-

青梅市の住まいの給付金

中古購入

利子補給制度 なし
補助/助成金制度 なし

増築・改築・改修

利子補給制度 なし
補助/助成金制度 あり
上限金額
100万円
備考
【木造住宅耐震改修補助】1981年5月以前の耐震基準で建築された戸建て木造住宅の耐震改修について費用の1/2を補助。
暮らしデータ提供元:生活ガイド.com
※行政機関により公表していない地域及びデータがございます。東京23区以外の政令指定都市は、市全体のデータとして表示しています。
※提供データには細心の注意を払っておりますが、調査後に変更がある場合があります。 最新の情報につきましては各市区役所までお問い合わせいただくか、自治体HPなどをご確認ください。

この物件を見た人はこんな物件も見ています

OCN×ドコモ光新規お申込みで合計最大137,280円相当おトク!特典の内訳・適用条件など詳細はこちら

青梅市内の各駅の住みやすさ

他のエリアから探す

青梅市の詳細地域から中古マンション物件を探す

天ヶ瀬町大柳町河辺町新町末広町住江町千ヶ瀬町友田町仲町長淵根ヶ布野上町東青梅本町師岡町

近辺の市区から探す

飯能市入間市昭島市福生市武蔵村山市羽村市あきる野市西多摩郡瑞穂町西多摩郡日の出町

周辺の駅から探す

青梅線
牛浜福生羽村小作河辺東青梅青梅宮ノ平日向和田

マンションライブラリーを見る

ダイアパレス河辺第2

住宅ローンの返済額一覧

物件価格 1580万円に対して、年率 で、頭金 の場合
↓ボーナス 35年間 30年間 25年間 20年間 15年間 10年間
0万円 28,035円/月 32,312円/月 38,304円/月 47,296円/月 62,290円/月 92,287円/月
5万円 18,949円/月 23,336円/月 29,437円/月 38,538円/月 53,639円/月 83,742円/月
10万円 ローン不可 ローン不可 20,570円/月 29,779円/月 44,987円/月 75,197円/月
15万円 ローン不可 ローン不可 ローン不可 ローン不可 36,336円/月 66,652円/月
20万円 ローン不可 ローン不可 ローン不可 ローン不可 ローン不可 58,106円/月
25万円 ローン不可 ローン不可 ローン不可 ローン不可 ローン不可 49,561円/月
30万円 ローン不可 ローン不可 ローン不可 ローン不可 ローン不可 ローン不可
支払い利息合計 978,060円~ 835,320円~ 696,200円~ 555,280円~ 416,940円~ 279,600円~
※元利均等返済方式で試算しています。 「円」の単位以下の端数金額は「切り捨て」として計算しております。
※金利は、固定金利として計算しております。
※上記の住宅ローン返済額一覧は、あくまで試算であり、将来の金利動向により、実際のご返済額とは異なります。
※ボーナス支払総額が総支払額の50%を超えている場合、上記の表では「ローン不可」となります。
※住宅ローン返済額一覧の数値は、住宅ローンのお申し込みやご融資をお約束するものではございません。
物件を見たい、物件や住環境の詳しい情報やローン相談など、
お問い合わせ先
高野商事株式会社

掲載情報の著作権は提供元企業等に帰属します。
Copyright:(C) 2025 LIFULL Co.,Ltd.
アプリで簡単 物件探し 大手不動産サイトの情報から一括検!プッシュ通知で物件を見逃さない
App Storeからダウンロード Google Playで手に入れよう QRコード