アプリで簡単 物件探し 通知 共有 アプリならではの機能を使ってみる
中古マンション

サンライフ東浦和 4階 3LDK

情報提供元
LIFULL HOME'S
サンライフ東浦和 新規リノベーション工事が完成いたしました。
価格 3190万円  (管理費等:11,350円)
修繕積立金 14,340円
交通
所在地 埼玉県さいたま市緑区東浦和1丁目周辺地図
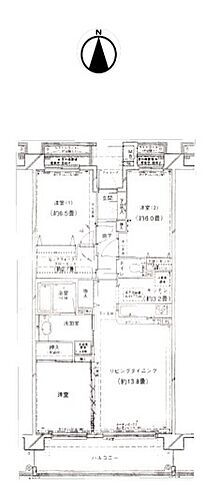
間取り 3LDK 専有面積 65.19m2(壁芯)
所在階/階数 4階/8階建 方位 南西
築年月 1988年2月 築年数 築37年11ヶ月
おすすめポイント
新規リノベーション物件でございます! 南西向きで、陽当り良好! 大規模修繕工事実施済み! 東浦和駅から徒歩5分で、通勤・通学にも便利でございます!周辺施設も充実しております!
出窓・角部屋
お問い合わせ先
株式会社エステート白馬 越谷店
物件を見たい、物件や住環境の詳しい情報やローン相談など、
お問い合わせ先
株式会社エステート白馬 越谷店

詳細情報

価格 3190万円 管理費等 11,350円
駐車場 有 10,000円 修繕積立金 14,340円
所在地 埼玉県さいたま市緑区東浦和1丁目周辺地図
交通
物件名 サンライフ東浦和
築年月(築年数) 1988年2月(築37年11ヶ月) 間取り 3LDK
総戸数 65戸 専有面積 65.19m2(壁芯)
所在階/階数 4階/8階建 バルコニー面積 11.99m2
方位 南西 建物構造 RC
管理形態 全部委託 管理員の勤務形態 巡回
維持費等 土地権利 所有権
用途地域 借地期間・地代
現況 空室 引渡可能年月 即時
情報提供元 LIFULL HOME'S [1363750023218] 情報公開日
情報更新日 次回更新予定日 2025年12月26日

設備など

ペット相談可 - 即入居可 南向き -
角部屋 駐車場空き有り トランクルーム -
オートロック - 宅配ボックス - 浴室乾燥機
床暖房 - ウォークインクローゼット - 管理人常駐 -
最上階 - 2階以上 タワーマンション -
設備 リフォーム・リノベーション・ガスコンロ可・コンロ2口以上・システムキッチン・追焚機能・洗濯機置場・エレベーター・出窓・バルコニー・駐輪場・モニタ付インターホン・カウンターキッチン・浴室乾燥機・防犯カメラ・シューズインクローク
リフォーム履歴 ■水回り
2025年11月実施
キッチン/浴室/トイレ/洗面所
■内装
2025年11月実施
全室クロス張替え/床(フローリング等)/建具(室内ドア等)
ハウスクリーニング等
・備考
2021年12月 大規模修繕工事実施済み
※実施年月は、施工箇所の中で最も古いものを表示しています
リノベーション履歴 2025年11月実施
リノベーション済
※実施年月は最も古いものを表示しています
備考 【物件周辺の生活情報】
・学校
さいたま市立尾間木小学校(680m)、さいたま市立尾間木中学校(680m)
施工会社:(株)鴻池組
管理番号:100136118159 その他こだわり:浴室暖房 【駐車場備考】敷地内にあり 【設備・特記事項備考】ペット不可・全居室収納
国土法届出:不要
販売戸数:1戸
法令等制限:※駐車場の空き状況は管理会社へ要確認
組合協力金:1,000円
特記事項 出窓・角部屋

省エネ性能

エネルギー消費性能 -
断熱性能 -
目安光熱費 -

埼玉県さいたま市緑区東浦和1丁目 周辺地図情報

地図
※地図上に表示される物件の位置は付近住所に所在することを表すものであり、実際の物件所在地とは異なる場合がございます。
   正確な物件所在地は、取扱い不動産会社にお問い合わせください。
物件を見たい、物件や住環境の詳しい情報やローン相談など、
お問い合わせ先
株式会社エステート白馬 越谷店

不動産会社情報

お問い合わせ先 商号:株式会社エステート白馬 越谷店
免許番号:国土交通大臣(06)第005817号
所在地:埼玉県越谷市大字袋山1321-7
取引態様:媒介
管理コード:23218
所属協会など:(公財)東日本不動産流通機構、(公社)首都圏不動産公正取引協議会、(公社)全日本不動産協会埼玉県本部
共有する
QRコード

お電話でのお問い合わせ

電話をかける(携帯・PHS可)
お問い合わせダイヤル
通話無料0037-634-38916
営業時間 09:30~19:00 (定休日:年末年始)
音声案内に従って数字を入力
お問い合わせ番号
99610-2970
不動産会社につながります
不動産会社のスタッフと
直接電話で話せます。
※不動産会社がお電話に出られなかった場合、株式会社LIFULLは電話会社が提供するサービスを介してお客様の発信者番号を受領後、折り返し専用の電話番号を発番してお問合せの不動産会社に通知します(お客様の発信者番号がお問合せの不動産会社に通知されることはございません)
※光IP電話、及びIP電話からはご利用になれません
※0037で始まる電話番号に携帯電話からお問合せいただいた方には、ショートメッセージ(SMS)によるお問合せ完了通知をお届けする場合があります
物件を見たい、物件や住環境の詳しい情報やローン相談など、
お問い合わせ先
株式会社エステート白馬 越谷店

さいたま市緑区の暮らしデータ

人口などの統計情報

世帯数 581501世帯
人口総数 1345012人
転入者数 83362人
転入率(人口1000人当たり)
61.98人
転出者数 73089人
転出率(人口1000人当たり)
54.34人
土地平均価格
住宅地
205305円/m2
商業地
715276円/m2

結婚・育児の助成金

子育て関連の独自の取り組み (1)父親の子育て参加の推進(父親等の1日保育士・幼稚園教諭体験の実施、父親向け子育て応援冊子「父子手帖」の配布)。(2)のびのびルーム事業(3歳未満の子どもと保護者の集い・遊びの場として、放課後児童クラブの空き時間を開放)。(3)三世代子育て応援事業(「孫育て講座」の実施、祖父母と子育て世代の関係をより円滑にするため「祖父母手帳」の配布)。(4)子どもの社会参画推進事業(「子どもがつくるまち」の実施)。(5)のびのび赤ちゃん応援金、多子世帯子育て応援金の給付。
出産祝い あり
公立保育所数 59所(うち0歳児保育を実施している保育所:36所)
私立保育所数 268所(うち0歳児保育を実施している保育所:253所)
保育所入所待機児童数 0人
認定こども園数 17園 預かり保育実施園数 公立:- 私立:85園
学校給食 【小学校】完全給食【中学校】完全給食
公立中学校の学校選択制 一部実施(特定地域選択制)
子ども・学生等医療費助成<通院>対象年齢 18歳3月末まで 子ども・学生等医療費助成<入院>対象年齢 18歳3月末まで

さいたま市緑区の治安・ごみ収集情報

公共料金・インフラ

ガス料金(22m3使用した場合の月額) 東京瓦斯株式会社(東京地区等)3926円
東彩ガス株式会社(越谷・春日部地区)4893円
水道料金(口径20mmで20m3の月額) さいたま市3498円
下水道料金(20m3を使用した場合の月額) さいたま市2459円
下水道普及率 95.1%

安心・安全

建物火災出火件数 176件
人口10000人当たり
1.33件
刑法犯認知件数 8745件
人口1000人当たり
6.60件
ハザード・防災マップ あり

医療

一般病院総数 35ヶ所
一般診療所総数 1028ヶ所
小児科医師数 318人
小児人口10000人当たり
18.64人
産婦人科医師数 80人
15~49歳女性人口1万人当たり
2.82人
介護保険料基準額(月額) 6406円

ごみ

家庭ごみ収集(可燃ごみ) 無料
備考
-
家庭ごみの分別方式 5分別17種〔資源物1類(びん、かん、ペットボトル、容器包装プラスチック) 資源物2類(新聞、ダンボール、牛乳パック、雑誌類、その他の紙、繊維) 有害危険ごみ(蛍光管、乾電池、スプレーかん・カートリッジ式ボンベ、水銀体温計、ライター) もえないごみ もえるごみ〕 拠点回収:使用済小型家電
家庭ごみの戸別収集 一部実施(ふれあい収集)
粗大ごみ収集 あり
備考
有料。戸別収集。事前申込制。納付券払。
生ごみ処理機助成金制度 あり
上限金額
20000円
上限比率
50.0%

さいたま市緑区の住まいの給付金

中古購入

利子補給制度 なし
補助/助成金制度 なし

増築・改築・改修

利子補給制度 なし
補助/助成金制度 あり
上限金額
126.6万円
備考
【さいたま市既存建築物耐震補強等助成事業】耐震診断費用、上限6.6万円。耐震補強設計費用の2/3、上限20万円。耐震補強工事費用の1/2、上限120万円から耐震補強設計に係る助成金の額を減じた額。
暮らしデータ提供元:生活ガイド.com
※行政機関により公表していない地域及びデータがございます。東京23区以外の政令指定都市は、市全体のデータとして表示しています。
※提供データには細心の注意を払っておりますが、調査後に変更がある場合があります。 最新の情報につきましては各市区役所までお問い合わせいただくか、自治体HPなどをご確認ください。
OCN×ドコモ光新規お申込みで合計最大137,280円相当おトク!特典の内訳・適用条件など詳細はこちら

さいたま市緑区内の各駅の住みやすさ

住宅ローンの返済額一覧

物件価格 3190万円に対して、年率 で、頭金 の場合
↓ボーナス 35年間 30年間 25年間 20年間 15年間 10年間
0万円 69,828円/月 80,481円/月 95,406円/月 117,804円/月 155,149円/月 229,864円/月
5万円 60,742円/月 71,506円/月 86,539円/月 109,045円/月 146,498円/月 221,319円/月
10万円 51,657円/月 62,530円/月 77,672円/月 100,286円/月 137,846円/月 212,773円/月
15万円 42,572円/月 53,554円/月 68,805円/月 91,528円/月 129,195円/月 204,228円/月
20万円 ローン不可 44,579円/月 59,939円/月 82,769円/月 120,543円/月 195,683円/月
25万円 ローン不可 ローン不可 51,072円/月 74,010円/月 111,892円/月 187,138円/月
30万円 ローン不可 ローン不可 ローン不可 65,252円/月 103,240円/月 178,593円/月
支払い利息合計 2,438,820円~ 2,085,880円~ 1,734,700円~ 1,385,440円~ 1,036,150円~ 689,900円~
※元利均等返済方式で試算しています。 「円」の単位以下の端数金額は「切り捨て」として計算しております。
※金利は、固定金利として計算しております。
※上記の住宅ローン返済額一覧は、あくまで試算であり、将来の金利動向により、実際のご返済額とは異なります。
※ボーナス支払総額が総支払額の50%を超えている場合、上記の表では「ローン不可」となります。
※住宅ローン返済額一覧の数値は、住宅ローンのお申し込みやご融資をお約束するものではございません。
物件を見たい、物件や住環境の詳しい情報やローン相談など、
お問い合わせ先
株式会社エステート白馬 越谷店

掲載情報の著作権は提供元企業等に帰属します。
Copyright:(C) 2025 LIFULL Co.,Ltd.
アプリで簡単 物件探し 大手不動産サイトの情報から一括検!プッシュ通知で物件を見逃さない
App Storeからダウンロード Google Playで手に入れよう QRコード