アプリで簡単 物件探し 通知 共有 アプリならではの機能を使ってみる
中古マンション

フローレンス中広城南通り 2階 4LDK

情報提供元
SUUMO
フローレンス中広城南通り 中心街に近く、バス停も徒歩約1分の好立地。徒歩圏で買い物も済ませられ、自転車や電車での通勤・通学にも便利な住環境です。
価格 3980万円  (管理費等:8000円/月(委託(通勤)))
修繕積立金 10,120円
交通
所在地 広島県広島市西区中広町1周辺地図
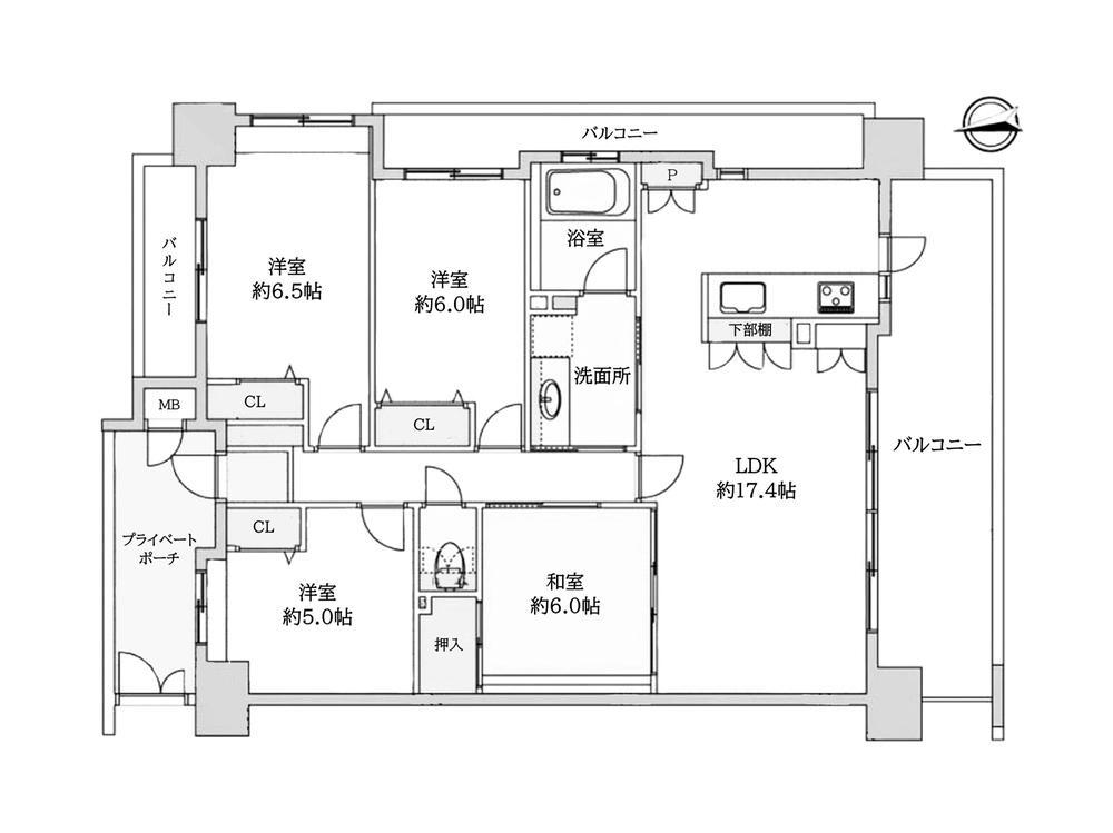
間取り 4LDK 専有面積 84.32m2(25.50坪)(壁芯)
所在階/階数 2階/11階建 方位
築年月 2008年2月 築年数 築17年11ヶ月
おすすめポイント
「そろそろ個室が欲しいね」そんな会話から始まった住み替え探し。中心街に近い中広町は、通勤も通学もアクセス◎。電停・バス停が近く、自転車でも動きやすい平坦地。4LDKの室内は一部リフレッシュ済みで、やさしい色味の内装が家族の毎日にちょうどいい。ペット飼育可だから、夢だった“猫との暮らし”も視野に入れて◎。今の賃貸から一歩進めたい子育て世帯にぴったりの物件です。
ペット相談可・角部屋・管理人日勤
物件を見たい、物件や住環境の詳しい情報やローン相談など、
お問い合わせ先
ietoki(株)

詳細情報

価格 3980万円 管理費等 8000円/月(委託(通勤))
駐車場   修繕積立金 10,120円
所在地 広島県広島市西区中広町1周辺地図
交通
  • 広島電鉄横川線 寺町駅 徒歩8分乗換案内
  • 広島電鉄本線 十日市町駅 徒歩13分乗換案内
  • 広島電鉄横川線 別院前駅 徒歩11分乗換案内
物件名 フローレンス中広城南通り
築年月(築年数) 2008年2月(築17年11ヶ月) 間取り 4LDK
総戸数 30戸 専有面積 84.32m2(25.50坪)(壁芯)
所在階/階数 2階/11階建 バルコニー面積 27.01m2
方位 建物構造 RC
管理形態 委託管理
維持費等 土地権利 所有権
用途地域 近隣商業 借地期間・地代
現況 引渡可能年月 相談
情報提供元 SUUMO [080Z78816607] 情報公開日
情報更新日 次回更新予定日 随時

設備など

ペット相談可 即入居可 - 南向き
角部屋 駐車場空き有り - トランクルーム -
オートロック - 宅配ボックス - 浴室乾燥機
床暖房 - ウォークインクローゼット - 管理人常駐 -
最上階 - 2階以上 タワーマンション -
設備 バルコニー・トイレ・エレベーター・管理人日勤・浴室乾燥機・温水洗浄便座・システムキッチン・モニタ付インターホン・風呂・対面K・2面バルコニー・衣類乾燥機・食器洗浄乾燥機・リフォーム
リフォーム履歴 2025年4月完了
 水回り設備交換:トイレ
 内装リフォーム:壁・床
 その他:コンロ、食洗器交換
※年月は一番古いリフォーム箇所を表します
リノベーション履歴 -
備考 <物件名>フローレンス中広城南通り/委託(日勤)/<土地権利>所有権/<間取り>4LDK/<リフォーム>●リフォーム:2025年4月完了(水回り設備交換:トイレ、内装リフォーム:壁・床、その他:コンロ、食洗器交換)※年月は一番古いリフォーム箇所を表します/<特徴>中広ではじめる、街チカファミリーライフ。、スーパー 徒歩10分以内・市街地が近い・内装リフォーム・南向き・システムキッチン
販売戸数:1戸/管理費等帯:8000円/修繕積立金帯:10120円
特記事項 ペット相談可・角部屋・管理人日勤

省エネ性能

エネルギー消費性能 -
断熱性能 -
目安光熱費 -

広島県広島市西区中広町1 周辺地図情報

地図
※地図上に表示される物件の位置は付近住所に所在することを表すものであり、実際の物件所在地とは異なる場合がございます。
   正確な物件所在地は、取扱い不動産会社にお問い合わせください。
物件を見たい、物件や住環境の詳しい情報やローン相談など、
お問い合わせ先
ietoki(株)

不動産会社情報

お問い合わせ先 商号:ietoki(株)
免許番号:広島県知事(1)第011341号
所在地:広島県広島市中区西十日市町2-26
TEL:082-234-1118
取引態様:一般媒介
共有する
QRコード
物件を見たい、物件や住環境の詳しい情報やローン相談など、
お問い合わせ先
ietoki(株)

広島市西区の暮らしデータ

人口などの統計情報

世帯数 554462世帯
人口総数 1178773人
転入者数 61028人
転入率(人口1000人当たり)
51.77人
転出者数 62233人
転出率(人口1000人当たり)
52.79人
土地平均価格
住宅地
115999円/m2
商業地
556537円/m2

結婚・育児の助成金

子育て関連の独自の取り組み 地域の身近な場所でおむつ替え・授乳等が出来る赤ちゃん安心おでかけ事業「にこにこベビールーム」を実施。
出産祝い なし
公立保育所数 87所(うち0歳児保育を実施している保育所:69所)
私立保育所数 95所(うち0歳児保育を実施している保育所:94所)
保育所入所待機児童数 0人
認定こども園数 70園 預かり保育実施園数 公立:- 私立:50園
学校給食 【小学校】完全給食【中学校】完全給食 家庭弁当等との選択制/デリバリー形式[運搬:ランチボックス、内容:完全給食]
公立中学校の学校選択制 一部実施
子ども・学生等医療費助成<通院>対象年齢 小学校卒業まで 子ども・学生等医療費助成<入院>対象年齢 中学校卒業まで

広島市西区の治安・ごみ収集情報

公共料金・インフラ

ガス料金(22m3使用した場合の月額) 広島ガス株式会社5505円
水道料金(口径20mmで20m3の月額) 広島市2453円
下水道料金(20m3を使用した場合の月額) 広島市2260円
下水道普及率 96.5%

安心・安全

建物火災出火件数 147件
人口10000人当たり
1.22件
刑法犯認知件数 7080件
人口1000人当たり
5.90件
ハザード・防災マップ あり

医療

一般病院総数 73ヶ所
一般診療所総数 1206ヶ所
小児科医師数 261人
小児人口10000人当たり
17.38人
産婦人科医師数 126人
15~49歳女性人口1万人当たり
5.32人
介護保険料基準額(月額) 6400円

ごみ

家庭ごみ収集(可燃ごみ) 無料
備考
-
家庭ごみの分別方式 7分別12種〔可燃ごみ ペットボトル リサイクルプラ その他プラ 不燃ごみ(ライター、陶磁器・その他不燃ごみ) 資源ごみ(紙類[新聞紙、ダンボール、雑誌・チラシ・菓子箱等]、ガラス類、金属類、布類) 有害ごみ〕
家庭ごみの戸別収集 未実施
粗大ごみ収集 あり
備考
有料。事前申込制。大型ごみ受付センターへの予約が必要。納付券を貼り付けたものを収集。大型ごみあんしんサポート(住宅内からの搬出を支援)あり。
生ごみ処理機助成金制度 なし
上限金額
-
上限比率
-

広島市西区の住まいの給付金

中古購入

利子補給制度 なし
補助/助成金制度 あり
上限金額
(1)10万円(2)50万円
備考
(1)【三世代同居・近居支援事業】子育て世帯が親世帯と同居・近居をするために住宅を取得する際の不動産登記費用等の1/2、上限10万円を助成。(2)【子育て世帯住替え促進リフォーム費補助】小学生以下の子がいる子育て世帯が空き家を改修する費用の1/2、上限50万円を助成。

増築・改築・改修

利子補給制度 なし
補助/助成金制度 あり
上限金額
(1)4万円(2)100万円(3)12.5万円
備考
(1)【住宅耐震診断補助事業】1981年5月31日以前に着工された木造住宅の耐震診断費用の2/3、上限4万円を助成。(2)【住事業宅耐震改修等補助】耐震改修費用の80%を助成。上限100万円。(3)【耐震シェルター等設置補助】耐震シェルターもしくは防災ベッドの設置費用の1/2、12.5万円を助成。感震ブレーカーを設置する場合は費用の1/2、上限4万円を助成。
暮らしデータ提供元:生活ガイド.com
※行政機関により公表していない地域及びデータがございます。東京23区以外の政令指定都市は、市全体のデータとして表示しています。
※提供データには細心の注意を払っておりますが、調査後に変更がある場合があります。 最新の情報につきましては各市区役所までお問い合わせいただくか、自治体HPなどをご確認ください。
OCN×ドコモ光新規お申込みで合計最大137,280円相当おトク!特典の内訳・適用条件など詳細はこちら

広島市西区内の各駅の住みやすさ

住宅ローンの返済額一覧

物件価格 3980万円に対して、年率 で、頭金 の場合
↓ボーナス 35年間 30年間 25年間 20年間 15年間 10年間
0万円 90,335円/月 104,117円/月 123,425円/月 152,400円/月 200,714円/月 297,370円/月
5万円 81,250円/月 95,142円/月 114,558円/月 143,642円/月 192,062円/月 288,825円/月
10万円 72,164円/月 86,166円/月 105,691円/月 134,883円/月 183,411円/月 280,280円/月
15万円 63,079円/月 77,190円/月 96,824円/月 126,124円/月 174,759円/月 271,735円/月
20万円 53,993円/月 68,215円/月 87,958円/月 117,366円/月 166,108円/月 263,190円/月
25万円 ローン不可 59,239円/月 79,091円/月 108,607円/月 157,456円/月 254,645円/月
30万円 ローン不可 ローン不可 70,224円/月 99,848円/月 148,805円/月 246,099円/月
支払い利息合計 3,155,190円~ 2,697,840円~ 2,242,900円~ 1,788,480円~ 1,337,850円~ 890,620円~
※元利均等返済方式で試算しています。 「円」の単位以下の端数金額は「切り捨て」として計算しております。
※金利は、固定金利として計算しております。
※上記の住宅ローン返済額一覧は、あくまで試算であり、将来の金利動向により、実際のご返済額とは異なります。
※ボーナス支払総額が総支払額の50%を超えている場合、上記の表では「ローン不可」となります。
※住宅ローン返済額一覧の数値は、住宅ローンのお申し込みやご融資をお約束するものではございません。
物件を見たい、物件や住環境の詳しい情報やローン相談など、
お問い合わせ先
ietoki(株)

掲載情報の著作権は提供元企業等に帰属します。
Copyright:(C) 2025 Recruit Co., Ltd.
アプリで簡単 物件探し 大手不動産サイトの情報から一括検!プッシュ通知で物件を見逃さない
App Storeからダウンロード Google Playで手に入れよう QRコード