アプリで簡単 物件探し 通知 共有 アプリならではの機能を使ってみる
中古マンション

ライオンズマンション上賀茂 3階 3LDK

情報提供元
SUUMO
ライオンズマンション上賀茂 外観
価格 5980万円  (管理費等:4万700円/月(委託(巡回)))
修繕積立金 12,030円
交通
所在地 京都府京都市北区上賀茂朝露ケ原町周辺地図
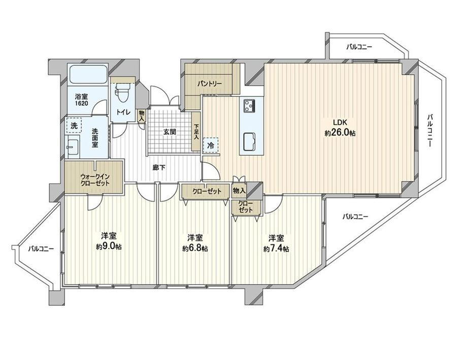
間取り 3LDK 専有面積 113.51m2(34.33坪)(壁芯)
所在階/階数 3階/地上6階地下1階建 方位
築年月 1989年9月 築年数 築36年4ヶ月
おすすめポイント
-物件のおすすめポイント-▼特徴・通風良好・全居室6帖以上の広さ・3方がバルコニーに面するLDKは約26帖・会話が弾む対面式キッチン、食洗機搭載・WICやパントリーなど、全居室に収納スペースを設置・浴室は1620サイズ、換気乾燥機有・ペット飼育可能(制限有)▼2025年8月室内リフォーム済【交換】キッチン、浴室、トイレ、洗面所 他▼周辺環境・スーパー「フレスコ御園橋店」徒歩7分(約550m)・セブンイレブン京都上賀茂朝露ケ原町店 徒歩4分(約260m)■ ご希望の住まい探しをお手伝いします ━━━━━・・・物件の詳細・ご相談はお気軽にお問い合わせください。
ペット相談可・日当り良好・角部屋・管理人巡回・浴室1坪以上
お問い合わせ先
三井のリハウス京都北センター三井不動産リアルティ(株)
物件を見たい、物件や住環境の詳しい情報やローン相談など、
お問い合わせ先
三井のリハウス京都北センター三井不動産リアルティ(株)

詳細情報

価格 5980万円 管理費等 4万700円/月(委託(巡回))
駐車場 空無 修繕積立金 12,030円
所在地 京都府京都市北区上賀茂朝露ケ原町周辺地図
交通
  • 地下鉄烏丸線 北大路駅 バス12分/「朝露ヶ原町」バス停 停歩1分乗換案内
物件名 ライオンズマンション上賀茂
築年月(築年数) 1989年9月(築36年4ヶ月) 間取り 3LDK
総戸数 12戸 専有面積 113.51m2(34.33坪)(壁芯)
所在階/階数 3階/地上6階地下1階建 バルコニー面積 16.66m2
方位 建物構造 RC
管理形態 委託管理
維持費等 土地権利 所有権
用途地域 1種住居 借地期間・地代
現況 引渡可能年月 相談
情報提供元 SUUMO [060Z78428768] 情報公開日
情報更新日 次回更新予定日 随時

設備など

ペット相談可 即入居可 - 南向き -
角部屋 駐車場空き有り - トランクルーム -
オートロック - 宅配ボックス - 浴室乾燥機
床暖房 - ウォークインクローゼット 管理人常駐 -
最上階 - 2階以上 タワーマンション -
設備 トイレ・収納スペース・エレベーター・浴室乾燥機・ウォークインクローゼット・温水洗浄便座・システムキッチン・風呂・対面K・衣類乾燥機・食器洗浄乾燥機・リフォーム
リフォーム履歴 2025年8月完了
 水回り設備交換:キッチン・浴室・トイレ
 内装リフォーム:壁・床・全室
 その他:洗面所
※年月は一番古いリフォーム箇所を表します
リノベーション履歴 -
備考 <物件名>ライオンズマンション上賀茂/<駐車場>空無/委託(巡回)/<土地権利>所有権/<間取り>3LDK/<リフォーム>●リフォーム:2025年8月完了(水回り設備交換:キッチン・浴室・トイレ、内装リフォーム:壁・床・全室、その他:洗面所)※年月は一番古いリフォーム箇所を表します/<特徴>■三井のリハウス■4面バルコニー、陽当り良好2025年8月リフォーム済、LDK20畳以上・スーパー 徒歩10分以内・内装リフォーム・システムキッチン・浴室乾燥機
販売戸数:1戸/管理費等帯:40700円/修繕積立金帯:12030円
特記事項 ペット相談可・日当り良好・角部屋・管理人巡回・浴室1坪以上

省エネ性能

エネルギー消費性能 -
断熱性能 -
目安光熱費 -

京都府京都市北区上賀茂朝露ケ原町 周辺地図情報

地図
※地図上に表示される物件の位置は付近住所に所在することを表すものであり、実際の物件所在地とは異なる場合がございます。
   正確な物件所在地は、取扱い不動産会社にお問い合わせください。
物件を見たい、物件や住環境の詳しい情報やローン相談など、
お問い合わせ先
三井のリハウス京都北センター三井不動産リアルティ(株)

不動産会社情報

お問い合わせ先 商号:三井のリハウス京都北センター三井不動産リアルティ(株)
免許番号:国土交通大臣(15)第000777号
所在地:京都府京都市左京区下鴨本町11-5 LANDSCAPE下鴨1階・2階
TEL:00786-01794176
取引態様:専任媒介
管理コード:FYHARA05
共有する
QRコード
物件を見たい、物件や住環境の詳しい情報やローン相談など、
お問い合わせ先
三井のリハウス京都北センター三井不動産リアルティ(株)

京都市北区の暮らしデータ

人口などの統計情報

世帯数 728744世帯
人口総数 1379529人
転入者数 85315人
転入率(人口1000人当たり)
61.84人
転出者数 80567人
転出率(人口1000人当たり)
58.40人
土地平均価格
住宅地
220880円/m2
商業地
1290411円/m2

結婚・育児の助成金

子育て関連の独自の取り組み (1)乳幼児の子育て支援機能や学童クラブ機能等を有する児童館設置。(2)こんにちはプレママ事業。(3)児童虐待未然防止に係る医療機関と子どもはぐくみ室及び京北出張所の連携。(4)子ども保健医療相談・事故防止センター設置。(5)京都はぐくみアプリ配信。(6)子育て支援コンシェルジュ育成。(7)骨髄移植手術等により免疫を喪失した子どもへのワクチン再接種費用助成制度。(8)子どもを共に育む京都市民憲章の制定、憲章の実践・普及の促進。(9)【京都安心すまい応援金】未就学の子どもがいる世帯を対象に、自己居住用として既存住宅を購入し、リフォームを行う場合に、最大200万円の応援金を交付。
出産祝い あり
公立保育所数 14所(うち0歳児保育を実施している保育所:13所)
私立保育所数 196所(うち0歳児保育を実施している保育所:188所)
保育所入所待機児童数 0人
認定こども園数 83園 預かり保育実施園数 公立:15園 私立:81園
学校給食 【小学校】完全給食【中学校】完全給食 家庭弁当等との選択制/デリバリー形式[運搬:ランチボックス、内容:完全給食] 給食なし
公立中学校の学校選択制 未実施
子ども・学生等医療費助成<通院>対象年齢 中学校卒業まで 子ども・学生等医療費助成<入院>対象年齢 中学校卒業まで

京都市北区の治安・ごみ収集情報

公共料金・インフラ

ガス料金(22m3使用した場合の月額) 大阪瓦斯株式会社4544円
水道料金(口径20mmで20m3の月額) 京都市3014円
下水道料金(20m3を使用した場合の月額) 京都市2013円
下水道普及率 99.5%

安心・安全

建物火災出火件数 158件
人口10000人当たり
1.08件
刑法犯認知件数 8104件
人口1000人当たり
5.54件
ハザード・防災マップ あり

医療

一般病院総数 89ヶ所
一般診療所総数 1622ヶ所
小児科医師数 397人
小児人口10000人当たり
27.26人
産婦人科医師数 201人
15~49歳女性人口1万人当たり
7.16人
介護保険料基準額(月額) 7160円

ごみ

家庭ごみ収集(可燃ごみ) 有料
備考
指定ごみ袋有料。
家庭ごみの分別方式 5分別8種〔燃やすごみ 缶・びん・ペットボトル プラスチック類 小型金属類・スプレー缶 雑がみ〕 拠点回収:移動式拠点回収):古紙(新聞・ダンボール) 雑がみ 紙パック 使用済てんぷら油 古着類 乾電池 ボタン電池 充電式電池 蛍光管 水銀体温計・水銀血圧計 小型家電 磁気テープ類 インクカートリッジ リユースびん 刃物類 使い捨てライター 陶磁器製の食器 せん定枝木の枝 石油類 医薬品・農薬 化学薬品・塗料・ワックス・絵の具 洗浄剤
家庭ごみの戸別収集 一部実施(原則定点としているが、一部地域で狭路等やむを得ない事情がある場合のみ実施。また、ごみ出しが困難な高齢者や障害のある方などの生活支援の一つとして、御自宅の玄関先までごみの収集に伺う「ごみ収集福祉サービス[まごころ収集]」を実施)
粗大ごみ収集 あり
備考
有料。事前申込制。
生ごみ処理機助成金制度 なし
上限金額
-
上限比率
-

京都市北区の住まいの給付金

中古購入

利子補給制度 なし
補助/助成金制度 あり
上限金額
200万円
備考
【京都安心すまい応援金】未就学の子どもがいる世帯を対象に、自己居住用として既存住宅を購入し、リフォームを行う場合に、最大200万円の応援金を交付。

増築・改築・改修

利子補給制度 なし
補助/助成金制度 あり
上限金額
(1)250万円(2)20万円(3)300万円
備考
(1)【指定京町家改修補助金】保全・継承に必要な修理工事等に係る費用の一部を助成。指定地区内の京町家の場合、補助対象費用の1/2(上限100万円)。個別指定の京町家の場合、補助対象費用の1/2(上限250万円)。(2)【個別指定京町家維持修繕補助金】個別指定の京町家のうち、日常的な維持修繕に係る費用の一部を助成。補助対象費用の1/2(上限20万円)。(3)【「まちの匠・ぷらす」京町家・木造住宅 耐震・防火改修支援事業】耐震改修工事や防火改修工事に要する費用の80%を補助(補助メニューごとに上限あり)。その他耐震診断士派遣(無料)等あり。
暮らしデータ提供元:生活ガイド.com
※行政機関により公表していない地域及びデータがございます。東京23区以外の政令指定都市は、市全体のデータとして表示しています。
※提供データには細心の注意を払っておりますが、調査後に変更がある場合があります。 最新の情報につきましては各市区役所までお問い合わせいただくか、自治体HPなどをご確認ください。
OCN×ドコモ光新規お申込みで合計最大137,280円相当おトク!特典の内訳・適用条件など詳細はこちら

京都市北区内の各駅の住みやすさ

住宅ローンの返済額一覧

物件価格 5980万円に対して、年率 で、頭金 の場合
↓ボーナス 35年間 30年間 25年間 20年間 15年間 10年間
0万円 142,252円/月 163,955円/月 194,359円/月 239,987円/月 316,067円/月 468,273円/月
5万円 133,167円/月 154,980円/月 185,492円/月 231,229円/月 307,415円/月 459,728円/月
10万円 124,081円/月 146,004円/月 176,625円/月 222,470円/月 298,764円/月 451,183円/月
15万円 114,996円/月 137,028円/月 167,758円/月 213,711円/月 290,112円/月 442,638円/月
20万円 105,910円/月 128,053円/月 158,892円/月 204,953円/月 281,461円/月 434,093円/月
25万円 96,825円/月 119,077円/月 150,025円/月 196,194円/月 272,809円/月 425,547円/月
30万円 87,739円/月 110,101円/月 141,158円/月 187,435円/月 264,158円/月 417,002円/月
支払い利息合計 4,967,610円~ 4,242,520円~ 3,523,100円~ 2,809,360円~ 2,101,390円~ 1,398,980円~
※元利均等返済方式で試算しています。 「円」の単位以下の端数金額は「切り捨て」として計算しております。
※金利は、固定金利として計算しております。
※上記の住宅ローン返済額一覧は、あくまで試算であり、将来の金利動向により、実際のご返済額とは異なります。
※ボーナス支払総額が総支払額の50%を超えている場合、上記の表では「ローン不可」となります。
※住宅ローン返済額一覧の数値は、住宅ローンのお申し込みやご融資をお約束するものではございません。
物件を見たい、物件や住環境の詳しい情報やローン相談など、
お問い合わせ先
三井のリハウス京都北センター三井不動産リアルティ(株)

掲載情報の著作権は提供元企業等に帰属します。
Copyright:(C) 2025 Recruit Co., Ltd.
アプリで簡単 物件探し 大手不動産サイトの情報から一括検!プッシュ通知で物件を見逃さない
App Storeからダウンロード Google Playで手に入れよう QRコード