アプリで簡単 物件探し 通知 共有 アプリならではの機能を使ってみる
中古マンション

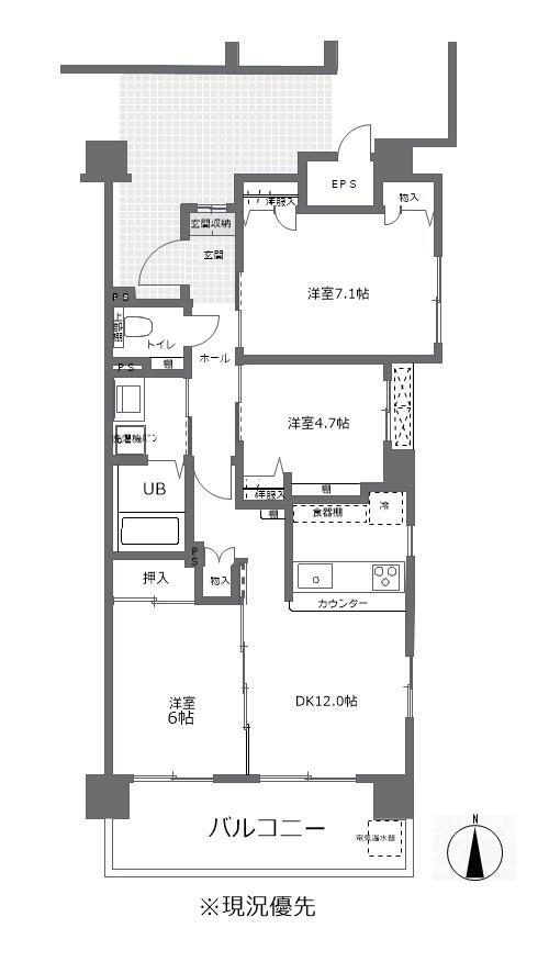
グランシティ青木島エステージ 2階 3LDK

情報提供元
SUUMO
グランシティ青木島エステージ
価格 2070万円  (管理費等:1万300円/月(委託(巡回)))
修繕積立金 5,600円
交通
  • バス/「丹波島橋南」バス停 停歩2分
所在地 長野県長野市青木島町青木島乙
間取り 3LDK 専有面積 67.24m2(壁芯)
所在階/階数 2階/8階建 方位
築年月 2001年8月 築年数 築24年5ヶ月
おすすめポイント
バス停徒歩2分・幹線道路近くの好立地。徒歩圏内に商業施設も揃い、オール電化・二重サッシなど設備充実のリフォーム住戸。
管理人巡回
物件を見たい、物件や住環境の詳しい情報やローン相談など、
お問い合わせ先
大成産業(株)

詳細情報

価格 2070万円 管理費等 1万300円/月(委託(巡回))
駐車場 敷地内(3500円/月) 修繕積立金 5,600円
所在地 長野県長野市青木島町青木島乙
交通
  • バス/「丹波島橋南」バス停 停歩2分
物件名 グランシティ青木島エステージ
築年月(築年数) 2001年8月(築24年5ヶ月) 間取り 3LDK
総戸数 専有面積 67.24m2(壁芯)
所在階/階数 2階/8階建 バルコニー面積 10.8m2
方位 建物構造 RC
管理形態 委託管理
維持費等 土地権利 所有権
用途地域 2種中高 借地期間・地代
現況 引渡可能年月 即時
情報提供元 SUUMO [040Z78583402] 情報公開日
情報更新日 次回更新予定日 随時

設備など

ペット相談可 - 即入居可 南向き
角部屋 - 駐車場空き有り トランクルーム -
オートロック - 宅配ボックス - 浴室乾燥機 -
床暖房 - ウォークインクローゼット - 管理人常駐 -
最上階 - 2階以上 タワーマンション -
設備 リフォーム
リフォーム履歴 2025年9月完了
 水回り設備交換:トイレ
 その他:洗面台
※年月は一番古いリフォーム箇所を表します
リノベーション履歴 -
備考 <物件名>グランシティ青木島エステージ/<駐車場>敷地内/委託(巡回)/<土地権利>所有権/<間取り>3LDK/<リフォーム>●リフォーム:2025年9月完了(水回り設備交換:トイレ、その他:洗面台)※年月は一番古いリフォーム箇所を表します/<特徴>生活利便と住み心地を両立した快適オール電化住まい。
販売戸数:1戸/管理費等帯:10300円/修繕積立金帯:5600円
特記事項 管理人巡回

省エネ性能

エネルギー消費性能 -
断熱性能 -
目安光熱費 -
物件を見たい、物件や住環境の詳しい情報やローン相談など、
お問い合わせ先
大成産業(株)

不動産会社情報

お問い合わせ先 商号:大成産業(株)
免許番号:長野県知事(16)第000024号
所在地:長野県長野市大字栗田2009
TEL:026-224-0311
取引態様:専任媒介
共有する
QRコード
物件を見たい、物件や住環境の詳しい情報やローン相談など、
お問い合わせ先
大成産業(株)

長野市の暮らしデータ

人口などの統計情報

世帯数 156645世帯
人口総数 365572人
転入者数 10932人
転入率(人口1000人当たり)
29.90人
転出者数 11383人
転出率(人口1000人当たり)
31.14人
土地平均価格
住宅地
43034円/m2
商業地
97788円/m2

結婚・育児の助成金

子育て関連の独自の取り組み (1)公私立保育園と私立幼稚園が「おひさま広場」という名称で、未就園児とその保護者に園開放や育児相談、子育て情報の提供等の支援を実施。(2)妊産婦とそのパートナー、6歳までの子育て世帯を対象に、妊娠・出産から子育てに関する基礎知識や長野市からの子育て支援情報をLINEで配信。(3)妊娠・出産・乳幼児期の子育て情報や予防接種の予定等をスマートフォンで確認・管理ができるアプリを配信。(4)1歳以上2歳未満の人を対象に、おたふくかぜ予防接種費の一部を助成。
出産祝い なし
公立保育所数 32所(うち0歳児保育を実施している保育所:32所)
私立保育所数 30所(うち0歳児保育を実施している保育所:30所)
保育所入所待機児童数 2人
認定こども園数 26園 預かり保育実施園数 公立:- 私立:19園
学校給食 【小学校】完全給食【中学校】完全給食
公立中学校の学校選択制 一部実施(長野市鬼無里地区小規模特認校制度:被災した長野市立鬼無里中学校を小規模特認校とし、特認校の通学区域外からの就学が可能。特定地域学校選択制度:特定地域に住所を有する者は選択可能学校への就学が可能)
子ども・学生等医療費助成<通院>対象年齢 18歳3月末まで 子ども・学生等医療費助成<入院>対象年齢 18歳3月末まで

長野市の治安・ごみ収集情報

公共料金・インフラ

ガス料金(22m3使用した場合の月額) 長野都市ガス株式会社3928円
水道料金(口径20mmで20m3の月額) 長野市4081円
長野県企業局3313円
下水道料金(20m3を使用した場合の月額) 長野市3534円
下水道普及率 94.7%

安心・安全

建物火災出火件数 64件
人口10000人当たり
1.72件
刑法犯認知件数 1693件
人口1000人当たり
4.54件
ハザード・防災マップ あり

医療

一般病院総数 22ヶ所
一般診療所総数 297ヶ所
小児科医師数 69人
小児人口10000人当たり
16.40人
産婦人科医師数 30人
15~49歳女性人口1万人当たり
4.53人
介護保険料基準額(月額) 5670円

ごみ

家庭ごみ収集(可燃ごみ) 有料
備考
指定ごみ袋有料。
家庭ごみの分別方式 8分別14種〔可燃ごみ 不燃ごみ プラスチック製容器包装 紙(新聞・折込ちらし、ダンボール、紙パック、雑誌・その他古紙) カン ビン(無色透明、茶色、その他の色、乾電池) ペットボトル 剪定枝葉等〕 拠点回収:蛍光灯 廃食用油 使用済小型家電 携帯電話・スマートフォン
家庭ごみの戸別収集 未実施
粗大ごみ収集 あり
備考
有料。指定のシール(有料)を貼り、ごみ収集カレンダーで定められた日に地区で決められたごみ集積所へ。ただし、可燃ごみ、不燃ごみとも大きさ1m×50cm×50cm以内のものに限る。
生ごみ処理機助成金制度 あり
上限金額
30000円
上限比率
50.0%

長野市の住まいの給付金

中古購入

利子補給制度 あり
上限金額
421万円
備考
【災害危険住宅移転事業補助金】危険住宅に代わる住宅の建設又は購入(必要な土地の取得を含む)をするために要する資金を金融機関等から借り入れた場合、当該借入金利子に相当する額を補助。年利率8.5%を限度とし、対象経費に10/10を乗じて得た額。上限421万円(建物325万円、土地96万円)。
補助/助成金制度 あり
上限金額
160万円
備考
【移住者空き家改修等補助金】長野市空き家バンク又は市内の地区で運営する空き家バンク登録物件を県外からの移住者及び所有者(賃貸に限る)が改修する際の費用を助成。最大160万円。市街化区域50万円、その他区域100万円。※15歳以下の人または妊婦がいる場合、1人(妊婦の場合は胎児1人)につき20万円を上限額に加算(最大60万円)。家財道具処分等は最大30万円。

増築・改築・改修

利子補給制度 なし
補助/助成金制度 あり
上限金額
(1)全額(2)120万円
備考
(1)【耐震診断士派遣】無料で耐震診断士を派遣(要件あり)。(2)【耐震改修工事助成】改修工事費用の4/5以内、上限100万円(低所得者は費用の1/10以内、上限20万円の上乗せあり)。要件あり。
暮らしデータ提供元:生活ガイド.com
※行政機関により公表していない地域及びデータがございます。東京23区以外の政令指定都市は、市全体のデータとして表示しています。
※提供データには細心の注意を払っておりますが、調査後に変更がある場合があります。 最新の情報につきましては各市区役所までお問い合わせいただくか、自治体HPなどをご確認ください。
OCN×ドコモ光新規お申込みで合計最大137,280円相当おトク!特典の内訳・適用条件など詳細はこちら

長野市内の各駅の住みやすさ

他のエリアから探す

長野市の詳細地域から中古マンション物件を探す

青木島町青木島稲田上松大字安茂里大字栗田大字高田大字鶴賀大字中御所大字長野大字南長野大字三輪大字若里川中島町今井原桜新町早苗町中御所七瀬南千歳三輪吉田若里

近辺の市区から探す

須坂市上高井郡小布施町上水内郡飯綱町

マンションライブラリーを見る

グランシティ青木島エステージ

住宅ローンの返済額一覧

物件価格 2070万円に対して、年率 で、頭金 の場合
↓ボーナス 35年間 30年間 25年間 20年間 15年間 10年間
0万円 40,754円/月 46,972円/月 55,683円/月 68,755円/月 90,552円/月 134,158円/月
5万円 31,669円/月 37,997円/月 46,816円/月 59,996円/月 81,900円/月 125,613円/月
10万円 22,583円/月 29,021円/月 37,949円/月 51,238円/月 73,249円/月 117,068円/月
15万円 ローン不可 ローン不可 29,082円/月 42,479円/月 64,597円/月 108,523円/月
20万円 ローン不可 ローン不可 ローン不可 ローン不可 55,946円/月 99,978円/月
25万円 ローン不可 ローン不可 ローン不可 ローン不可 47,294円/月 91,432円/月
30万円 ローン不可 ローン不可 ローン不可 ローン不可 ローン不可 82,887円/月
支払い利息合計 1,423,890円~ 1,216,280円~ 1,012,450円~ 807,440円~ 607,040円~ 405,180円~
※元利均等返済方式で試算しています。 「円」の単位以下の端数金額は「切り捨て」として計算しております。
※金利は、固定金利として計算しております。
※上記の住宅ローン返済額一覧は、あくまで試算であり、将来の金利動向により、実際のご返済額とは異なります。
※ボーナス支払総額が総支払額の50%を超えている場合、上記の表では「ローン不可」となります。
※住宅ローン返済額一覧の数値は、住宅ローンのお申し込みやご融資をお約束するものではございません。
物件を見たい、物件や住環境の詳しい情報やローン相談など、
お問い合わせ先
大成産業(株)

掲載情報の著作権は提供元企業等に帰属します。
Copyright:(C) 2025 Recruit Co., Ltd.
アプリで簡単 物件探し 大手不動産サイトの情報から一括検!プッシュ通知で物件を見逃さない
App Storeからダウンロード Google Playで手に入れよう QRコード