アプリで簡単 物件探し 通知 共有 アプリならではの機能を使ってみる
中古マンション

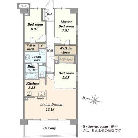
グレーシア湘南平塚海岸 4階 3LDK

情報提供元
SUUMO
グレーシア湘南平塚海岸 外観
価格 4290万円  (管理費等:2万110円/月(委託(通勤)))
修繕積立金 4,840円
交通
所在地 神奈川県平塚市龍城ケ丘周辺地図
間取り 3LDK 専有面積 80.6m2(壁芯)
所在階/階数 4階/5階建 方位 西
築年月 2023年1月 築年数 築2年11ヶ月
おすすめポイント
◇相鉄不動産(株)旧分譲「グレーシア」シリーズ◇専有面積80.07m2&収納豊富なゆったり設計・主寝室&約6帖の洋室にウォークインクローゼット・廊下部分に約0.4帖の納戸・約5帖の洋室に押入れサイズのクローゼット◇広がり&開放感ある横型リビングダイニング・窓の中央部に柱が無い、開放感を高める設計◇海・緑・空の全てが視界に入る4階部分・バルコニーから波の状態も確認できます◇独立性・通気性の高い、西・南の角住戸仕様◇相模湾を望める屋上ビューテラス~売主様はセカンドハウス利用につき、室内状況良好です!~
ペット相談可・バリアフリー・角部屋・管理人日勤・24時間ゴミ出し可
お問い合わせ先
野村の仲介+藤沢センター野村不動産ソリューションズ(株)
物件を見たい、物件や住環境の詳しい情報やローン相談など、
お問い合わせ先
野村の仲介+藤沢センター野村不動産ソリューションズ(株)

詳細情報

価格 4290万円 管理費等 2万110円/月(委託(通勤))
駐車場 空無 修繕積立金 4,840円
所在地 神奈川県平塚市龍城ケ丘周辺地図
交通
物件名 グレーシア湘南平塚海岸
築年月(築年数) 2023年1月(築2年11ヶ月) 間取り 3LDK
総戸数 100戸 専有面積 80.6m2(壁芯)
所在階/階数 4階/5階建 バルコニー面積 11.76m2
方位 西 建物構造 RC
管理形態 委託管理
維持費等 土地権利 所有権
用途地域 1種中高 借地期間・地代
現況 引渡可能年月 相談
情報提供元 SUUMO [030Z78803973] 情報公開日
情報更新日 次回更新予定日 随時

設備など

ペット相談可 即入居可 - 南向き -
角部屋 駐車場空き有り - トランクルーム -
オートロック - 宅配ボックス 浴室乾燥機
床暖房 - ウォークインクローゼット 管理人常駐 -
最上階 - 2階以上 タワーマンション -
設備 トイレ・収納スペース・洗面所・エレベーター・管理人日勤・浴室乾燥機・ウォークインクローゼット・シャンプードレッサ・温水洗浄便座・システムキッチン・モニタ付インターホン・風呂・対面K・浄水器・衣類乾燥機・複層ガラス・バイク置き場・駐輪場・宅配BOX
リフォーム履歴 -
リノベーション履歴 -
備考 <物件名>グレーシア湘南平塚海岸/<駐車場>空無/委託(日勤)/<土地権利>所有権/<間取り>3LDK/<特徴>平塚海岸&ひらつかシーテラスまで徒歩2分の海近・パークサイドレジデンス!、システムキッチン・浴室乾燥機・角住戸・全居室収納・シャワー付洗面化粧台
販売戸数:1戸/管理費等帯:20110円/修繕積立金帯:4840円
法令等制限:インターネット使用料:825円/月 ガス給湯器リース料:2310円/月 駐車場使用料:月額9000円~25000円/台、駐輪場使用料:月額200円~400円/台
特記事項 ペット相談可・バリアフリー・角部屋・管理人日勤・24時間ゴミ出し可

省エネ性能

エネルギー消費性能 -
断熱性能 -
目安光熱費 -

神奈川県平塚市龍城ケ丘 周辺地図情報

地図
※地図上に表示される物件の位置は付近住所に所在することを表すものであり、実際の物件所在地とは異なる場合がございます。
   正確な物件所在地は、取扱い不動産会社にお問い合わせください。
物件を見たい、物件や住環境の詳しい情報やローン相談など、
お問い合わせ先
野村の仲介+藤沢センター野村不動産ソリューションズ(株)

不動産会社情報

お問い合わせ先 商号:野村の仲介+藤沢センター野村不動産ソリューションズ(株)
免許番号:国土交通大臣(5)第006101号
所在地:神奈川県藤沢市鵠沼東1-1-102 玉半ビル1階
TEL:0120-182-238
取引態様:専任媒介
管理コード:F60BY007
共有する
QRコード
物件を見たい、物件や住環境の詳しい情報やローン相談など、
お問い合わせ先
野村の仲介+藤沢センター野村不動産ソリューションズ(株)

平塚市の暮らしデータ

人口などの統計情報

世帯数 112002世帯
人口総数 256856人
転入者数 10995人
転入率(人口1000人当たり)
42.81人
転出者数 8204人
転出率(人口1000人当たり)
31.94人
土地平均価格
住宅地
123063円/m2
商業地
343143円/m2

結婚・育児の助成金

子育て関連の独自の取り組み 保育園に通っていない地域の親子を対象に公立保育園が年に4回、公民館等で「ミニミニ運動会」を実施。親子で楽しめる運動遊びや製作遊びを行う。
出産祝い なし
公立保育所数 7所(うち0歳児保育を実施している保育所:7所)
私立保育所数 30所(うち0歳児保育を実施している保育所:30所)
保育所入所待機児童数 4人
認定こども園数 10園 預かり保育実施園数 公立:0園 私立:12園
学校給食 【小学校】完全給食【中学校】完全給食
公立中学校の学校選択制 未実施
子ども・学生等医療費助成<通院>対象年齢 18歳3月末まで 子ども・学生等医療費助成<入院>対象年齢 18歳3月末まで

平塚市の治安・ごみ収集情報

公共料金・インフラ

ガス料金(22m3使用した場合の月額) 東京瓦斯株式会社(東京地区等)3926円
秦野瓦斯株式会社 5791円
厚木瓦斯株式会社4552円
水道料金(口径20mmで20m3の月額) 神奈川県営水道2988円
下水道料金(20m3を使用した場合の月額) 平塚市2035円
下水道普及率 97.8%

安心・安全

建物火災出火件数 35件
人口10000人当たり
1.35件
刑法犯認知件数 1546件
人口1000人当たり
5.98件
ハザード・防災マップ あり

医療

一般病院総数 7ヶ所
一般診療所総数 189ヶ所
小児科医師数 32人
小児人口10000人当たり
11.49人
産婦人科医師数 13人
15~49歳女性人口1万人当たり
2.74人
介護保険料基準額(月額) 5836円

ごみ

家庭ごみ収集(可燃ごみ) 無料
備考
-
家庭ごみの分別方式 4分別16種〔可燃ごみ 不燃ごみ(蛍光管、その他不燃ごみ) 資源再生物(古紙類[新聞・チラシ、ダンボール、牛乳パック、その他の紙類]、空き缶類、金属、ビン、布類、廃食用油、ペットボトル、容器包装プラスチック) 有害ごみ(乾電池・ライター、体温計)〕 拠点回収:小型家電 電話予約による戸別収集:剪定枝
家庭ごみの戸別収集 一部実施(一部地域のみ。剪定枝は地域問わず、予約制無料各戸収集)
粗大ごみ収集 あり
備考
有料。戸別収集。事前申込制。手数料納付券貼付/シール500円/枚。
生ごみ処理機助成金制度 なし
上限金額
-
上限比率
-

平塚市の住まいの給付金

中古購入

利子補給制度 なし
補助/助成金制度 なし

増築・改築・改修

利子補給制度 なし
補助/助成金制度 あり
上限金額
154.1万円
備考
【木造住宅耐震化促進事業】1981年以前の旧建築基準法で建てられた木造住宅の耐震化を促進のための補助。木造住宅の耐震診断補助金として、最大10.1万円(延べ面積が150m2を超える場合)。木造住宅の耐震補強設計費の1/2、上限7万円。木造住宅の耐震補強工事補助金として耐震改修工事・現場監理費用の4/5で最大124万円。立野町、桃浜町等の一部地域において、耐震改修工事と併せて、防火改修を行う場合、144万円の加算あり。
暮らしデータ提供元:生活ガイド.com
※行政機関により公表していない地域及びデータがございます。東京23区以外の政令指定都市は、市全体のデータとして表示しています。
※提供データには細心の注意を払っておりますが、調査後に変更がある場合があります。 最新の情報につきましては各市区役所までお問い合わせいただくか、自治体HPなどをご確認ください。
OCN×ドコモ光新規お申込みで合計最大137,280円相当おトク!特典の内訳・適用条件など詳細はこちら

平塚市内の各駅の住みやすさ

他のエリアから探す

平塚市の詳細地域から中古マンション物件を探す

明石町天沼入野老松町大原岡崎上平塚黒部丘御殿幸町四之宮菫平浅間町千石河岸袖ケ浜高根高浜台高村宝町立野町田村代官町唐ケ原中原錦町西真土西八幡虹ケ浜根坂間花水台馬入本町東八幡日向岡紅谷町松風町万田見附町宮の前宮松町桃浜町八重咲町八千代町山下龍城ケ丘

近辺の市区から探す

藤沢市茅ヶ崎市秦野市厚木市伊勢原市海老名市高座郡寒川町中郡大磯町中郡二宮町足柄上郡中井町

周辺の駅から探す

東海道本線
大船藤沢辻堂茅ケ崎平塚大磯二宮国府津鴨宮

マンションライブラリーを見る

グレーシア湘南平塚海岸

住宅ローンの返済額一覧

物件価格 4290万円に対して、年率 で、頭金 の場合
↓ボーナス 35年間 30年間 25年間 20年間 15年間 10年間
0万円 98,382円/月 113,392円/月 134,419円/月 165,976円/月 218,593円/月 323,860円/月
5万円 89,297円/月 104,417円/月 125,553円/月 157,218円/月 209,942円/月 315,315円/月
10万円 80,211円/月 95,441円/月 116,686円/月 148,459円/月 201,290円/月 306,770円/月
15万円 71,126円/月 86,465円/月 107,819円/月 139,700円/月 192,639円/月 298,225円/月
20万円 62,040円/月 77,490円/月 98,952円/月 130,942円/月 183,988円/月 289,680円/月
25万円 52,955円/月 68,514円/月 90,086円/月 122,183円/月 175,336円/月 281,135円/月
30万円 ローン不可 59,538円/月 81,219円/月 113,424円/月 166,685円/月 272,589円/月
支払い利息合計 3,438,780円~ 2,939,840円~ 2,441,400円~ 1,946,720円~ 1,456,250円~ 969,420円~
※元利均等返済方式で試算しています。 「円」の単位以下の端数金額は「切り捨て」として計算しております。
※金利は、固定金利として計算しております。
※上記の住宅ローン返済額一覧は、あくまで試算であり、将来の金利動向により、実際のご返済額とは異なります。
※ボーナス支払総額が総支払額の50%を超えている場合、上記の表では「ローン不可」となります。
※住宅ローン返済額一覧の数値は、住宅ローンのお申し込みやご融資をお約束するものではございません。
物件を見たい、物件や住環境の詳しい情報やローン相談など、
お問い合わせ先
野村の仲介+藤沢センター野村不動産ソリューションズ(株)

掲載情報の著作権は提供元企業等に帰属します。
Copyright:(C) 2025 Recruit Co., Ltd.
アプリで簡単 物件探し 大手不動産サイトの情報から一括検!プッシュ通知で物件を見逃さない
App Storeからダウンロード Google Playで手に入れよう QRコード