アプリで簡単 物件探し 通知 共有 アプリならではの機能を使ってみる
中古マンション

新多摩川ハイム2号棟 6階 3SLDK

情報提供元
SUUMO
新多摩川ハイム2号棟 JR南武線「中野島」駅 徒歩2分
価格 5690万円  (管理費等:1万5150円/月(委託(通勤)))
修繕積立金 16,360円
交通
所在地 神奈川県川崎市多摩区中野島6周辺地図
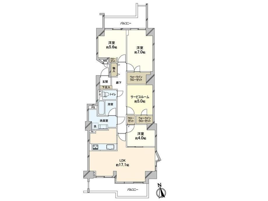
間取り 3SLDK 専有面積 89.41m2(27.04坪)(壁芯)
所在階/階数 6階/15階建 方位 南西
築年月 1988年3月 築年数 築37年8ヶ月
おすすめポイント
-物件のおすすめポイント-▼立地・JR南武線「中野島」駅 徒歩2分・駅までフラットアクセス可能▼特徴・住友商事(株)旧分譲マンション・ご家族と会話が弾む対面式キッチン・お手入れしやすい全居室フローリング・約5.0帖サービススペースは収納付・2箇所のWIC等、各洋室・廊下に収納有▼設備・浴室乾燥機・食器洗乾燥機▼2025年12月リフォーム内容【交換】キッチン、浴室、洗面台、トイレ 等【張替】クロス、フローリング【その他】ハウスクリーニング 他■ ご希望の住まい探しをお手伝いします ━━━━━・・・物件の詳細・ご相談はお気軽にお問い合わせください。
ペット相談可・日当り良好・管理人日勤
お問い合わせ先
三井のリハウス登戸センター三井不動産リアルティ(株)
物件を見たい、物件や住環境の詳しい情報やローン相談など、
お問い合わせ先
三井のリハウス登戸センター三井不動産リアルティ(株)

詳細情報

価格 5690万円 管理費等 1万5150円/月(委託(通勤))
駐車場 敷地内(7000円~1万4000円/月) 修繕積立金 16,360円
所在地 神奈川県川崎市多摩区中野島6周辺地図
交通
物件名 新多摩川ハイム2号棟
築年月(築年数) 1988年3月(築37年8ヶ月) 間取り 3SLDK
総戸数 180戸 専有面積 89.41m2(27.04坪)(壁芯)
所在階/階数 6階/15階建 バルコニー面積 14.85m2
方位 南西 建物構造 RC
管理形態 委託管理
維持費等 自治会費(月額)300円 土地権利 所有権
用途地域 2種住居 借地期間・地代
現況 引渡可能年月 相談
情報提供元 SUUMO [030Z78584028] 情報公開日
情報更新日 次回更新予定日 随時

設備など

ペット相談可 即入居可 - 南向き -
角部屋 - 駐車場空き有り トランクルーム -
オートロック - 宅配ボックス - 浴室乾燥機
床暖房 - ウォークインクローゼット 管理人常駐 -
最上階 - 2階以上 タワーマンション -
設備 バルコニー・トイレ・収納スペース・洗面所・エレベーター・管理人日勤・浴室乾燥機・ウォークインクローゼット・シャンプードレッサ・温水洗浄便座・システムキッチン・モニタ付インターホン・風呂・対面K・浄水器・2面バルコニー・衣類乾燥機・食器洗浄乾燥機・リフォーム・バイク置き場・駐輪場
リフォーム履歴 2025年12月完了予定
 水回り設備交換:キッチン・浴室・トイレ
 内装リフォーム:壁・床・全室
 その他:洗面所/給湯器
※年月は一番古いリフォーム箇所を表します
リノベーション履歴 -
備考 <物件名>新多摩川ハイム2号棟/<駐車場>敷地内/委託(日勤)/<土地権利>所有権/<間取り>3LDK+S(納戸)/<リフォーム>●リフォーム:2025年12月完了予定(水回り設備交換:キッチン・浴室・トイレ、内装リフォーム:壁・床・全室、その他:洗面所/給湯器)※年月は一番古いリフォーム箇所を表します/<特徴>■三井のリハウス■通風良好な南西向き住戸ペット飼育可能(細則あり)、年度内引渡可・リバーサイド・スーパー 徒歩10分以内・内装リフォーム・システムキッチン
販売戸数:1戸/管理費等帯:15150円/修繕積立金帯:16360円
特記事項 ペット相談可・日当り良好・管理人日勤

省エネ性能

エネルギー消費性能 -
断熱性能 -
目安光熱費 -

神奈川県川崎市多摩区中野島6 周辺地図情報

地図
※地図上に表示される物件の位置は付近住所に所在することを表すものであり、実際の物件所在地とは異なる場合がございます。
   正確な物件所在地は、取扱い不動産会社にお問い合わせください。
物件を見たい、物件や住環境の詳しい情報やローン相談など、
お問い合わせ先
三井のリハウス登戸センター三井不動産リアルティ(株)

不動産会社情報

お問い合わせ先 商号:三井のリハウス登戸センター三井不動産リアルティ(株)
免許番号:国土交通大臣(15)第000777号
所在地:神奈川県川崎市多摩区登戸2423-1 maruei7 2階
TEL:00786-01793891
取引態様:専任媒介
管理コード:F39ASA03
共有する
QRコード
物件を見たい、物件や住環境の詳しい情報やローン相談など、
お問い合わせ先
三井のリハウス登戸センター三井不動産リアルティ(株)

川崎市多摩区の暮らしデータ

人口などの統計情報

世帯数 745988世帯
人口総数 1529136人
転入者数 105162人
転入率(人口1000人当たり)
68.77人
転出者数 96761人
転出率(人口1000人当たり)
63.28人
土地平均価格
住宅地
302136円/m2
商業地
894684円/m2

結婚・育児の助成金

子育て関連の独自の取り組み (1)産後ケアや妊娠期サポート事業、妊娠・出産SOS電話相談事業等(妊娠・出産包括支援事業として実施)。(2)産前・産後家庭支援ヘルパー派遣事業(妊娠中または産後6ヶ月[多胎の方は1年]までで、母親が体調不良等により育児や家事が困難かつ、日中ほかに育児や家事を行う者がいない家庭に、20回[多胎の方は60回]までヘルパーを派遣し、育児や家事のお手伝いを行う)。
出産祝い なし
公立保育所数 21所(うち0歳児保育を実施している保育所:20所)
私立保育所数 429所(うち0歳児保育を実施している保育所:320所)
保育所入所待機児童数 0人
認定こども園数 24園 預かり保育実施園数 公立:- 私立:56園
学校給食 【小学校】完全給食【中学校】完全給食
公立中学校の学校選択制 未実施
子ども・学生等医療費助成<通院>対象年齢 中学校卒業まで 子ども・学生等医療費助成<入院>対象年齢 中学校卒業まで

川崎市多摩区の治安・ごみ収集情報

公共料金・インフラ

ガス料金(22m3使用した場合の月額) 東京瓦斯株式会社(東京地区等)3926円
水道料金(口径20mmで20m3の月額) 川崎市2321円
下水道料金(20m3を使用した場合の月額) 川崎市2156円
下水道普及率 99.6%

安心・安全

建物火災出火件数 270件
人口10000人当たり
1.76件
刑法犯認知件数 7645件
人口1000人当たり
4.97件
ハザード・防災マップ あり

医療

一般病院総数 33ヶ所
一般診療所総数 1060ヶ所
小児科医師数 310人
小児人口10000人当たり
16.99人
産婦人科医師数 139人
15~49歳女性人口1万人当たり
4.04人
介護保険料基準額(月額) 6591円

ごみ

家庭ごみ収集(可燃ごみ) 無料
備考
許可業者による一時多量ごみの収集制度(有料)を実施。
家庭ごみの分別方式 7分別〔普通ごみ 空きびん 使用済み乾電池 ミックスペーパー プラスチック製容器包装 空き缶・ペットボトル 小物金属〕※プラスチック製容器包装については一部地域(川崎区)でプラスチック資源を実施
家庭ごみの戸別収集 一部実施(ふれあい収集[一部地域のみ実施])
粗大ごみ収集 あり
備考
有料。事前申込制。
生ごみ処理機助成金制度 あり
上限金額
10000円
上限比率
50.0%

川崎市多摩区の住まいの給付金

中古購入

利子補給制度 なし
補助/助成金制度 なし

増築・改築・改修

利子補給制度 なし
補助/助成金制度 あり
上限金額
(1)全額(2)150万円
備考
(1)【木造住宅耐震診断士派遣制度】耐震診断士を派遣し、無料で耐震診断を実施。(2)【木造住宅耐震改修助成制度】木造住宅の所有者等が耐震改修工事を実施する際、市が費用の一部を助成。一般世帯は補助率4/5、上限金額100万円。非課税世帯は補助率4/5、上限金額150万円。
暮らしデータ提供元:生活ガイド.com
※行政機関により公表していない地域及びデータがございます。東京23区以外の政令指定都市は、市全体のデータとして表示しています。
※提供データには細心の注意を払っておりますが、調査後に変更がある場合があります。 最新の情報につきましては各市区役所までお問い合わせいただくか、自治体HPなどをご確認ください。

この物件を見た人はこんな物件も見ています

OCN×ドコモ光新規お申込みで合計最大137,280円相当おトク!特典の内訳・適用条件など詳細はこちら

川崎市多摩区内の各駅の住みやすさ

住宅ローンの返済額一覧

物件価格 5690万円に対して、年率 で、頭金 の場合
↓ボーナス 35年間 30年間 25年間 20年間 15年間 10年間
0万円 134,724円/月 155,279円/月 184,073円/月 227,287円/月 299,341円/月 443,492円/月
5万円 125,639円/月 146,303円/月 175,206円/月 218,529円/月 290,689円/月 434,947円/月
10万円 116,553円/月 137,327円/月 166,340円/月 209,770円/月 282,038円/月 426,402円/月
15万円 107,468円/月 128,352円/月 157,473円/月 201,011円/月 273,386円/月 417,857円/月
20万円 98,382円/月 119,376円/月 148,606円/月 192,252円/月 264,735円/月 409,312円/月
25万円 89,297円/月 110,400円/月 139,739円/月 183,494円/月 256,083円/月 400,766円/月
30万円 80,211円/月 101,425円/月 130,873円/月 174,735円/月 247,432円/月 392,221円/月
支払い利息合計 4,705,850円~ 4,019,160円~ 3,337,600円~ 2,661,360円~ 1,990,710円~ 1,325,260円~
※元利均等返済方式で試算しています。 「円」の単位以下の端数金額は「切り捨て」として計算しております。
※金利は、固定金利として計算しております。
※上記の住宅ローン返済額一覧は、あくまで試算であり、将来の金利動向により、実際のご返済額とは異なります。
※ボーナス支払総額が総支払額の50%を超えている場合、上記の表では「ローン不可」となります。
※住宅ローン返済額一覧の数値は、住宅ローンのお申し込みやご融資をお約束するものではございません。
物件を見たい、物件や住環境の詳しい情報やローン相談など、
お問い合わせ先
三井のリハウス登戸センター三井不動産リアルティ(株)

掲載情報の著作権は提供元企業等に帰属します。
Copyright:(C) 2025 Recruit Co., Ltd.
アプリで簡単 物件探し 大手不動産サイトの情報から一括検!プッシュ通知で物件を見逃さない
App Storeからダウンロード Google Playで手に入れよう QRコード