アプリで簡単 物件探し 通知 共有 アプリならではの機能を使ってみる
中古マンション

グランドメゾン西船橋 6階 3LDK

情報提供元
SUUMO
グランドメゾン西船橋 外観/1995年築の新耐震基準適合マンション。総戸数53戸のマンションで、スタイリッシュな外観。
価格 4480万円  (管理費等:1万5600円/月(委託(通勤)))
修繕積立金 20,900円
交通
所在地 千葉県船橋市二子町周辺地図
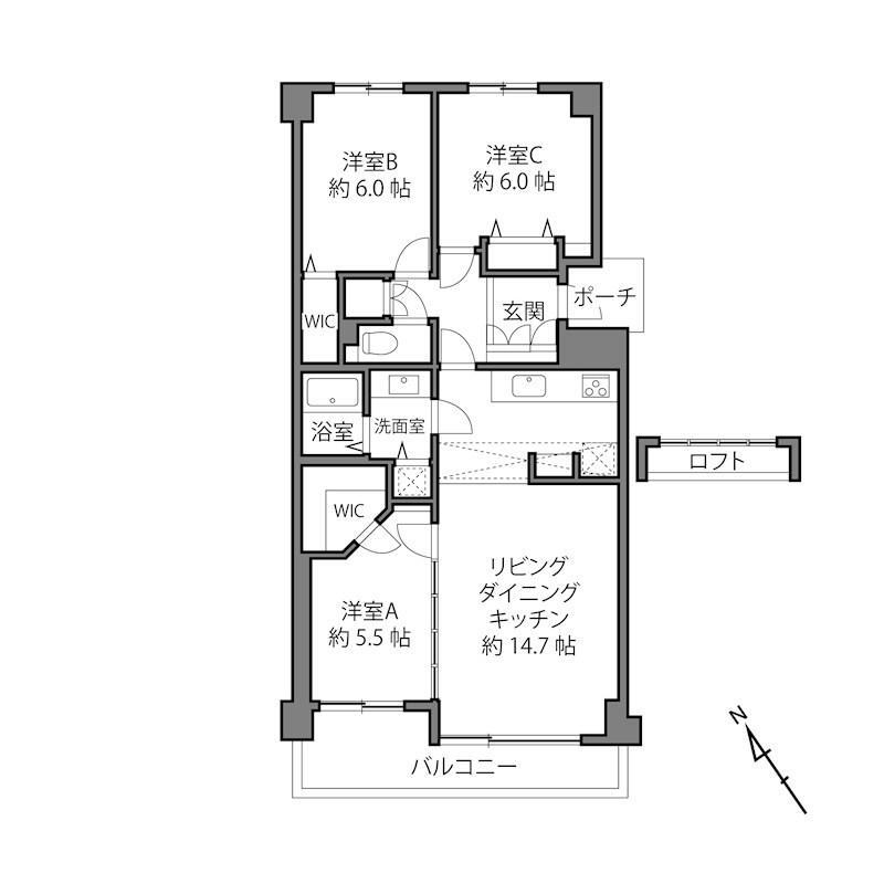
間取り 3LDK 専有面積 74.72m2(壁芯)
所在階/階数 6階/6階建 方位 南西
築年月 1995年6月 築年数 築30年5ヶ月
おすすめポイント
□なんといっても、天井高約4.6mのリビングが特徴的な住戸です。窓が上部にも付いていて、とっても開放的な空間です。ロフトもあり 「秘密基地感」 があって面白い!□オーク材の無垢のフローリングをはじめに、各所にこだわりの素材が光ります。例えば、キッチンを隠す壁の木製パネルや、リビングと洋室のガラス入りの間仕切り壁、白塗装が施された建具など、随所に「キュン」とするポイントがたくさんあります。□6路線4駅が利用できます。「東京」駅、「新宿」駅までは直通でアクセスが可能です。マンション周辺には、スーパー、ドラッグストア、コンビニ、公園が揃っているので、徒歩圏内で生活を完結することも十分可能。
ペット相談可・管理人日勤・最上階
物件を見たい、物件や住環境の詳しい情報やローン相談など、
お問い合わせ先
(株)ツクルバ

詳細情報

価格 4480万円 管理費等 1万5600円/月(委託(通勤))
駐車場 敷地内(7000円~1万2000円/月) 修繕積立金 20,900円
所在地 千葉県船橋市二子町周辺地図
交通
物件名 グランドメゾン西船橋
築年月(築年数) 1995年6月(築30年5ヶ月) 間取り 3LDK
総戸数 52戸 専有面積 74.72m2(壁芯)
所在階/階数 6階/6階建 バルコニー面積 9.24m2
方位 南西 建物構造 RC
管理形態 委託管理
維持費等 セコム警備費料(月額)700円 土地権利 所有権
用途地域 1種住居 借地期間・地代
現況 引渡可能年月 相談
情報提供元 SUUMO [030Z78669150] 情報公開日
情報更新日 次回更新予定日 随時

設備など

ペット相談可 即入居可 - 南向き -
角部屋 - 駐車場空き有り トランクルーム -
オートロック - 宅配ボックス - 浴室乾燥機 -
床暖房 - ウォークインクローゼット - 管理人常駐 -
最上階 2階以上 タワーマンション -
設備 トイレ・エレベーター・管理人日勤・温水洗浄便座・システムキッチン・モニタ付インターホン・風呂・対面K・リフォーム・バイク置き場・駐輪場・リノベーション
リフォーム履歴 2024年2月完了
 水回り設備交換:キッチン・浴室・トイレ
 内装リフォーム:壁・床・全室
 その他:壁紙
2019年3月完了
 共用部の大規模修繕工事
※年月は一番古いリフォーム箇所を表します
リノベーション履歴 -
備考 <物件名>グランドメゾン西船橋/<駐車場>敷地内/委託(日勤)/<土地権利>所有権/<間取り>3LDK/<リフォーム>●リフォーム:2024年2月完了(水回り設備交換:キッチン・浴室・トイレ、内装リフォーム:壁・床・全室、その他:壁紙)、2019年3月完了(共用部の大規模修繕工事)※年月は一番古いリフォーム箇所を表します/<特徴>最上階6階所在の南西向き住戸◎2024年2月にフルリノベーション済み!、2沿線以上利用可・内外装リフォーム・内装リフォーム・システムキッチン・最上階・上階なし
販売戸数:1戸/管理費等帯:15600円/修繕積立金帯:20900円
特記事項 ペット相談可・管理人日勤・最上階

省エネ性能

エネルギー消費性能 -
断熱性能 -
目安光熱費 -

千葉県船橋市二子町 周辺地図情報

地図
※地図上に表示される物件の位置は付近住所に所在することを表すものであり、実際の物件所在地とは異なる場合がございます。
   正確な物件所在地は、取扱い不動産会社にお問い合わせください。
物件を見たい、物件や住環境の詳しい情報やローン相談など、
お問い合わせ先
(株)ツクルバ

不動産会社情報

お問い合わせ先 商号:(株)ツクルバ
免許番号:東京都知事(3)第097398号
所在地:東京都渋谷区恵比寿4-3-14 恵比寿SSビル7階
TEL:050-5526-2929
取引態様:専任媒介
管理コード:cs00124
共有する
QRコード
物件を見たい、物件や住環境の詳しい情報やローン相談など、
お問い合わせ先
(株)ツクルバ

船橋市の暮らしデータ

人口などの統計情報

世帯数 289591世帯
人口総数 648331人
転入者数 34405人
転入率(人口1000人当たり)
53.07人
転出者数 30333人
転出率(人口1000人当たり)
46.79人
土地平均価格
住宅地
177853円/m2
商業地
700875円/m2

結婚・育児の助成金

子育て関連の独自の取り組み (1)児童ホーム・子育て支援センター。(2)産後ケア事業。(3)送迎サービス付き病児保育事業。(4)保育士(市内私立園)の給与上乗せに対する助成。(5)産後2週間頃、1ヶ月頃の産後間もない時期の産婦に対する健康診査。(6)安心して妊娠・出産・子育てができるよう保健師等が相談に応じる窓口「子育て世代包括支援センター(ふなここ)」の設置。(7)産前・産後サポート事業(多胎マタニティクラス・多胎おやこクラス)。(8)ヤングケアラー支援事業(LINE相談、配食サービス、家事援助、ファミリー・サポート・センター利用料補助)。(9)妊婦一般健康診査受診票14回分を超えて妊婦健康診査を受ける場合の費用を2回分まで助成(対象者条件あり)。
出産祝い なし
公立保育所数 27所(うち0歳児保育を実施している保育所:27所)
私立保育所数 98所(うち0歳児保育を実施している保育所:96所)
保育所入所待機児童数 24人
認定こども園数 11園 預かり保育実施園数 公立:- 私立:38園
学校給食 【小学校】完全給食【中学校】家庭弁当等との選択制[内容:完全給食(献立選択制)]
公立中学校の学校選択制 一部実施(一部選択地域のみ[新入学時又は他市町村からの転入学時のみ])
子ども・学生等医療費助成<通院>対象年齢 18歳3月末まで 子ども・学生等医療費助成<入院>対象年齢 18歳3月末まで

船橋市の治安・ごみ収集情報

公共料金・インフラ

ガス料金(22m3使用した場合の月額) 京葉瓦斯株式会社4515円
習志野市3432円
水道料金(口径20mmで20m3の月額) 千葉県営水道3250円
習志野市2629円
下水道料金(20m3を使用した場合の月額) 船橋市2211円
下水道普及率 91.8%

安心・安全

建物火災出火件数 86件
人口10000人当たり
1.34件
刑法犯認知件数 3253件
人口1000人当たり
5.06件
ハザード・防災マップ あり

医療

一般病院総数 19ヶ所
一般診療所総数 380ヶ所
小児科医師数 78人
小児人口10000人当たり
10.05人
産婦人科医師数 38人
15~49歳女性人口1万人当たり
2.81人
介護保険料基準額(月額) 6600円

ごみ

家庭ごみ収集(可燃ごみ) 無料
備考
一時多量ごみは収集不可。ごみ処理施設に自己搬入するか、ごみ処理許可業者に収集を依頼。指定ごみ袋に、ごみ処理費用は加算されない。
家庭ごみの分別方式 4分別16種〔可燃ごみ 不燃ごみ(不燃ごみ、乾電池、水銀含有物、蛍光管等) 資源ごみ(空きびん、空き缶、金属類、ペットボトル) 有価物(新聞、雑誌、雑がみ、段ボール、牛乳パック、古着、毛布)〕
家庭ごみの戸別収集 一部実施(ふれあい収集に限る)
粗大ごみ収集 あり
備考
有料。戸別収集。事前申込制。
生ごみ処理機助成金制度 あり
上限金額
10000円
上限比率
33.3%

船橋市の住まいの給付金

中古購入

利子補給制度 なし
補助/助成金制度 あり
上限金額
10万円
備考
【親世帯・子育て世帯近居同居支援事業】離れて暮らす親世帯・子育て世帯が住宅を建築・購入し、近居(※)または同居した場合に助成(10万円)を行う。※同一の小学校区、又は直線距離で1.2km以内の範囲に居住すること。他要件あり。

増築・改築・改修

利子補給制度 なし
補助/助成金制度 あり
上限金額
(1)8万円(2)100万円(3)8万円
備考
(1)【木造住宅耐震診断助成制度】2000年5月31日以前に新築工事に着手した戸建及び併用住宅が対象。耐震診断費の2/3を助成し、上限8万円。他要件あり。(2)【木造住宅耐震改修助成制度】2000年5月31日以前に建築工事に着手した戸建及び併用住宅が対象。耐震改修工事費及び工事監理費の4/5を助成し、上限100万円。他要件あり。(3)【住宅バリアフリー・断熱改修支援事業】住宅のバリアフリー化等にかかる費用の3/10(上限8万円)。他要件あり。
暮らしデータ提供元:生活ガイド.com
※行政機関により公表していない地域及びデータがございます。東京23区以外の政令指定都市は、市全体のデータとして表示しています。
※提供データには細心の注意を払っておりますが、調査後に変更がある場合があります。 最新の情報につきましては各市区役所までお問い合わせいただくか、自治体HPなどをご確認ください。

この物件を見た人はこんな物件も見ています

OCN×ドコモ光新規お申込みで合計最大137,280円相当おトク!特典の内訳・適用条件など詳細はこちら

住宅ローンの返済額一覧

物件価格 4480万円に対して、年率 で、頭金 の場合
↓ボーナス 35年間 30年間 25年間 20年間 15年間 10年間
0万円 103,314円/月 119,077円/月 141,158円/月 174,297円/月 229,552円/月 340,096円/月
5万円 94,229円/月 110,101円/月 132,291円/月 165,539円/月 220,900円/月 331,551円/月
10万円 85,144円/月 101,126円/月 123,425円/月 156,780円/月 212,249円/月 323,006円/月
15万円 76,058円/月 92,150円/月 114,558円/月 148,021円/月 203,598円/月 314,461円/月
20万円 66,973円/月 83,174円/月 105,691円/月 139,262円/月 194,946円/月 305,915円/月
25万円 57,887円/月 74,198円/月 96,824円/月 130,504円/月 186,295円/月 297,370円/月
30万円 ローン不可 65,223円/月 87,958円/月 121,745円/月 177,643円/月 288,825円/月
支払い利息合計 3,610,220円~ 3,086,440円~ 2,563,100円~ 2,043,760円~ 1,528,690円~ 1,017,740円~
※元利均等返済方式で試算しています。 「円」の単位以下の端数金額は「切り捨て」として計算しております。
※金利は、固定金利として計算しております。
※上記の住宅ローン返済額一覧は、あくまで試算であり、将来の金利動向により、実際のご返済額とは異なります。
※ボーナス支払総額が総支払額の50%を超えている場合、上記の表では「ローン不可」となります。
※住宅ローン返済額一覧の数値は、住宅ローンのお申し込みやご融資をお約束するものではございません。
物件を見たい、物件や住環境の詳しい情報やローン相談など、
お問い合わせ先
(株)ツクルバ

掲載情報の著作権は提供元企業等に帰属します。
Copyright:(C) 2025 Recruit Co., Ltd.
アプリで簡単 物件探し 大手不動産サイトの情報から一括検!プッシュ通知で物件を見逃さない
App Storeからダウンロード Google Playで手に入れよう QRコード