

 
| 価格 | 2180万円 | ||
|---|---|---|---|
| 交通 | |||
| 所在地 | 兵庫県加古川市上荘町小野周辺地図 | ||
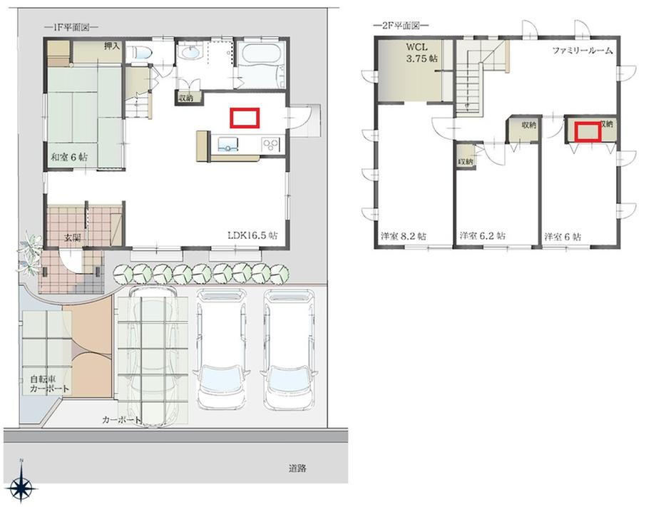
| 間取り | 4LDK | ||
| 建物面積 | 123.16m2(37.25坪)(登記) | 土地面積 | 164.45m2(49.74坪)(登記) | 
| 築年月 | 2007年10月 | 築年数 | 築18年1ヶ月 | 
| 価格 | 2180万円 | ||
|---|---|---|---|
| 所在地 | 兵庫県加古川市上荘町小野周辺地図 | ||
| 交通 | 
 | ||
| 間取り | 4LDK | 築年月(築年数) | 2007年10月(築18年1ヶ月) | 
| 建物面積 | 123.16m2(37.25坪)(登記) | 建物構造・規模 | 木造2階建 | 
| 土地面積 | 164.45m2(49.74坪)(登記) | 土地権利 | 所有権 | 
| 私道面積 | 借地期間・地代 | ||
| 接道状況 | 南5m接面11m | 駐車場 | 有 | 
| 用途地域 | 無指定 | 都市計画 | 調整区域 | 
| 建ぺい率/容積率 | -/- | 現況 | |
| 地目 | 引渡可能時期 | 即時 | |
| 情報提供元 | SUUMO [060Z78494002] | 情報公開日 | |
| 情報更新日 | 次回更新予定日 | 随時 | |

| 1種低層地域 | - | 即入居可 | ○ | 売主・代理 | ○ | 
|---|---|---|---|---|---|
| 駐車2台以上 | ○ | 平屋 | - | 本下水 | ○ | 
| 都市ガス | - | カウンターキッチン | - | 床暖房 | - | 
| ウォークインクローゼット | ○ | バリアフリー | ○ | ||
| 設備 | トイレ・収納スペース・洗面所・ウォークインクローゼット・シャンプードレッサ・温水洗浄便座・システムキッチン・モニタ付インターホン・風呂・対面K・床下収納・IHクッキングヒータ・浄水器・食器洗浄乾燥機・複層ガラス・上水道・本下水・リフォーム・省エネ給湯器 | ||||
| リフォーム履歴 | 2025年10月完了 水回り設備交換:キッチン・浴室・トイレ 内装リフォーム:壁・床・全室 その他:玄関ドア・インターホ 2025年10月完了 その他リフォーム:外壁・屋根 ※年月は一番古いリフォーム箇所を表します | ||||
| リノベーション履歴 | - | ||||
| 備考 | <物件名>上荘町小野 2180万円/<駐車場>カーポート/<土地権利>所有権/<間取り>4LDK/<リフォーム>●リフォーム:2025年10月完了(水回り設備交換:キッチン・浴室・トイレ、内装リフォーム:壁・床・全室、その他:玄関ドア・インターホ)、2025年10月完了(その他リフォーム:外壁・屋根)※年月は一番古いリフォーム箇所を表します/<特徴>◆内外装リフォーム済即入居可!◆お車並列3台駐車できます♪、耐震基準適合証明書・建築確認完了検査済証・建築士等の建物検査報告書・駐車3台以上可・即引渡可 販売戸数:1戸 | ||||
| 特記事項 | 日当り良好・閑静な住宅街・バリアフリー・駐車場3台分以上・オール電化・整形地・浴室1坪以上・インスペクション済 | ||||
| エネルギー消費性能 | - | 
|---|---|
| 断熱性能 | - | 
| 目安光熱費 | - | 
| お問い合わせ先 | 商号:(株)アールエステート 免許番号:兵庫県知事(1)第401679号 所在地:兵庫県加古川市平岡町新在家471-1 TEL:079-490-4122 取引態様:売主 管理コード:42711 | 共有する | 
 | 
|---|
| 世帯数 | 107075世帯 | 
|---|---|
| 人口総数 | 258691人 | 
| 転入者数 | 8245人 
 | 
| 転出者数 | 7948人 
 | 
| 土地平均価格 | 
 | 
| 子育て関連の独自の取り組み | (1)子育て支援予防接種助成事業(任意の予防接種のうち、おたふく風邪・三種混合ワクチンの接種料金の一部[2,000円・各1回限り]を助成)。(2)不妊不育症治療費助成事業(不妊・不育症の検査・治療を受けた夫婦に費用の一部を助成。一般不妊治療3万円/年、特定不妊治療5万円/回、不育症治療10万円/年を上限。所得制限なし)。(3)無料託児サービス(主に在宅で子育てをする家庭を対象に、市内2ヶ所の子育てプラザ内で加古川市在住の6ヶ月から就学前の子どもを無料で預かるサービスを実施している)。(4)育児休業からの復職に伴う利用申し込み(育児休業からの復職を予定している保護者を対象に、早期から年度途中の入園予約を受付)。 | ||
|---|---|---|---|
| 出産祝い | あり | ||
| 公立保育所数 | 3所(うち0歳児保育を実施している保育所:3所) | ||
| 私立保育所数 | 13所(うち0歳児保育を実施している保育所:13所) | ||
| 保育所入所待機児童数 | 12人 | ||
| 認定こども園数 | 31園 | 預かり保育実施園数 | 公立:16園 私立:2園 | 
| 学校給食 | 【小学校】完全給食【中学校】完全給食 | ||
| 公立中学校の学校選択制 | 未実施 | ||
| 子ども・学生等医療費助成<通院>対象年齢 | 18歳3月末まで | 子ども・学生等医療費助成<入院>対象年齢 | 18歳3月末まで | 
| ガス料金(22m3使用した場合の月額) | 大阪瓦斯株式会社4544円 | 
|---|---|
| 水道料金(口径20mmで20m3の月額) | 加古川市2596円 | 
| 下水道料金(20m3を使用した場合の月額) | 加古川市2530円 | 
| 下水道普及率 | 92.4% | 
| 建物火災出火件数 | 36件 
 | 
|---|---|
| 刑法犯認知件数 | 1752件 
 | 
| ハザード・防災マップ | あり | 
| 一般病院総数 | 12ヶ所 | 
|---|---|
| 一般診療所総数 | 179ヶ所 | 
| 小児科医師数 | 50人 
 | 
| 産婦人科医師数 | 18人 
 | 
| 介護保険料基準額(月額) | 5600円 | 
| 家庭ごみ収集(可燃ごみ) | 無料 
 | 
|---|---|
| 家庭ごみの分別方式 | 3分別17種〔燃やすごみ 燃やさないごみ 資源物(カン[飲食料用カン、スプレー缶・カセットボンベ]、ビン[無色びん、茶色びん、その他の色びん]、ペットボトル、紙[新聞紙・折込チラシ、段ボール、雑誌・雑がみ、紙パック]、衣類、蛍光灯、乾電池、ライター、剪定枝)〕 拠点回収:使用済小型家電 ライター インクカートリッジ 水銀使用製品 | 
| 家庭ごみの戸別収集 | 一部実施(【加古川市さわやか収集】実施要綱に該当する高齢者、心身障がい者等を対象に家庭ごみ戸別収集を実施) | 
| 粗大ごみ収集 | あり 
 | 
| 生ごみ処理機助成金制度 | あり 
 | 
| 利子補給制度 | なし | 
|---|---|
| 補助/助成金制度 | あり 
 
 | 
| 利子補給制度 | なし | 
|---|---|
| 補助/助成金制度 | あり 
 
 | 
 
 
 
 
 
 
 
 
 
 
 
 
 
 
 
 
 
 
 
 
 
 
 
 
 
 
 
 
 
 
 
 
 
 
 
 
 
 
 
 
尾上町池田|尾上町今福|尾上町口里|尾上町長田|尾上町安田|尾上町養田|加古川町粟津|加古川町稲屋|加古川町大野|加古川町河原|加古川町北在家|加古川町木村|加古川町友沢|加古川町中津|加古川町西河原|加古川町平野|加古川町備後|加古川町南備後|加古川町美乃利|上荘町小野|上荘町都染|上荘町都台|神野町石守|神野町西条|神野町福留|西条山手|志方町上冨木|志方町細工所|志方町西中|志方町西牧|志方町横大路|新神野|西神吉町大国|西神吉町鼎|西神吉町岸|西神吉町中西|野口町北野|野口町坂井|野口町長砂|野口町野口|野口町二屋|野口町古大内|野口町水足|野口町良野|東神吉町天下原|東神吉町砂部|東神吉町神吉|東神吉町出河原|東神吉町西井ノ口|東神吉町升田|平岡町一色|平岡町一色西|平岡町新在家|平岡町高畑|平岡町土山|平岡町つつじ野|平岡町中野|平岡町八反田|平岡町二俣|平荘町池尻|平荘町一本松|平荘町里|平荘町山角|別府町新野辺|別府町新野辺北町|別府町西脇|別府町別府|別府町本町|別府町元町|八幡町下村|八幡町船町|山手|米田町平津
