アプリで簡単 物件探し 通知 共有 アプリならではの機能を使ってみる
中古住宅

大阪府枚方市翠香園町 光善寺駅 中古一戸建て・中古住宅

情報提供元
SUUMO
大阪府枚方市翠香園町 光善寺駅 中古一戸建て・中古住宅
価格 3980万円
交通
所在地 大阪府枚方市翠香園町周辺地図
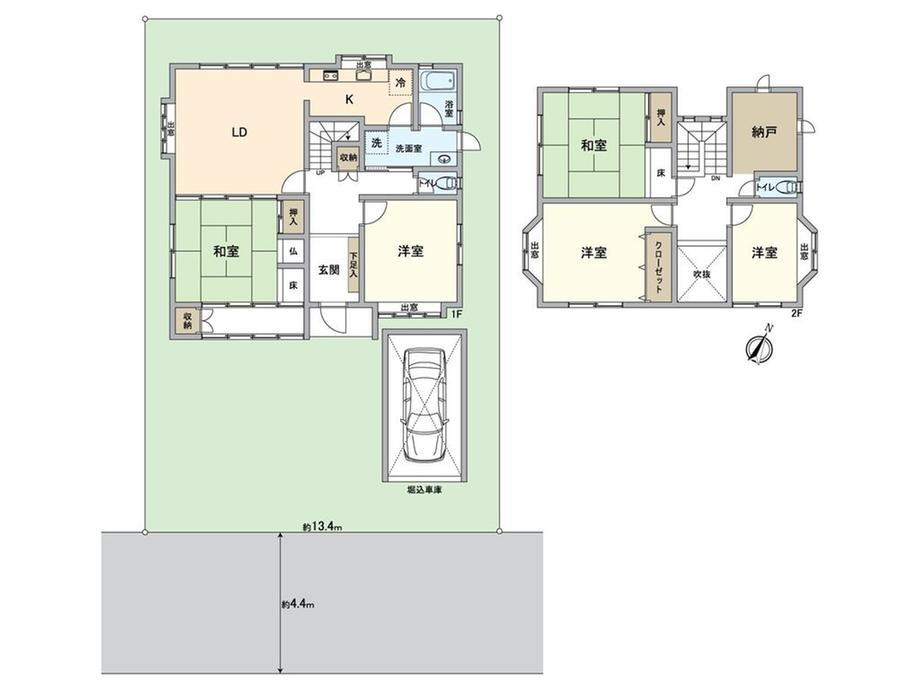
間取り 5SLDK
建物面積 163.91m2(49.58坪)(登記) 土地面積 225.8m2(68.30坪)(登記)
築年月 1987年3月 築年数 築38年8ヶ月
おすすめポイント
-物件のおすすめポイント-▼立地・京阪本線「光善寺」駅 徒歩9分・第一種低層住居専用地域内・前面道路は南東側▼特徴・LDに足を伸ばしてくつろげる和室が隣接・洗面室は2WAY仕様、家事・生活動線良好・2階廊下に窓付の納戸を設置・玄関上部は開放感のある吹抜け仕様・各階にトイレ有・駐車場有(車種による)▼周辺環境・ふれあい公園 徒歩1分(約80m)・枚方市立さだ東小学校 徒歩8分(約610m)・スーパーストアナカガワひらら光善寺店 徒歩9分(約670m)■ ご希望の住まい探しをお手伝いします ━━━━━・・・物件の詳細・ご相談はお気軽にお問い合わせください。
閑静な住宅街
お問い合わせ先
三井のリハウス枚方センター三井不動産リアルティ(株)
物件を見たい、物件や住環境の詳しい情報やローン相談など、
お問い合わせ先
三井のリハウス枚方センター三井不動産リアルティ(株)

詳細情報

価格 3980万円
所在地 大阪府枚方市翠香園町周辺地図
交通
間取り 5SLDK 築年月(築年数) 1987年3月(築38年8ヶ月)
建物面積 163.91m2(49.58坪)(登記) 建物構造・規模 木造2階建
土地面積 225.8m2(68.30坪)(登記) 土地権利 所有権
私道面積 12.4m2 借地期間・地代
接道状況 南東4.4m接面13.4m 駐車場
用途地域 1種低層 都市計画
建ぺい率/容積率 50%/100% 現況
地目 引渡可能時期 2025年12月
情報提供元 SUUMO [060Z78230884] 情報公開日
情報更新日 次回更新予定日 随時

設備など

1種低層地域 即入居可 - 売主・代理 -
駐車2台以上 - 平屋 - 本下水
都市ガス カウンターキッチン - 床暖房 -
ウォークインクローゼット - バリアフリー -
設備 収納スペース・洗面所・都市ガス・シャンプードレッサ・風呂・庭・トイレ2ヶ所・上水道・本下水
リフォーム履歴 -
リノベーション履歴 -
備考 <物件名>翠香園町(光善寺駅) 3980万円/<駐車場>カースペース/<土地権利>所有権/<間取り>5LDK+S(納戸)/<特徴>■三井のリハウス■お庭付の和風注文邸宅閑静な住宅地、公園まで徒歩1分、土地50坪以上・スーパー 徒歩10分以内・閑静な住宅地・和室・庭
販売戸数:1戸
特記事項 閑静な住宅街

省エネ性能

エネルギー消費性能 -
断熱性能 -
目安光熱費 -

大阪府枚方市翠香園町 周辺地図情報

地図
※地図上に表示される物件の位置は付近住所に所在することを表すものであり、実際の物件所在地とは異なる場合がございます。
   正確な物件所在地は、取扱い不動産会社にお問い合わせください。
物件を見たい、物件や住環境の詳しい情報やローン相談など、
お問い合わせ先
三井のリハウス枚方センター三井不動産リアルティ(株)

不動産会社情報

お問い合わせ先 商号:三井のリハウス枚方センター三井不動産リアルティ(株)
免許番号:国土交通大臣(15)第000777号
所在地:大阪府枚方市岡東町8-6 現代枚方駅前ビル3階
TEL:00786-01794197
取引態様:専属専任媒介
管理コード:FXGAQA09
共有する
QRコード
物件を見たい、物件や住環境の詳しい情報やローン相談など、
お問い合わせ先
三井のリハウス枚方センター三井不動産リアルティ(株)

枚方市の暮らしデータ

人口などの統計情報

世帯数 172035世帯
人口総数 394221人
転入者数 14080人
転入率(人口1000人当たり)
35.72人
転出者数 13784人
転出率(人口1000人当たり)
34.97人
土地平均価格
住宅地
138487円/m2
商業地
370500円/m2

結婚・育児の助成金

子育て関連の独自の取り組み (1)保育所(園)ふれあい体験(生後5~8ヶ月に1回と1歳の誕生月に全親子対象に保育所訪問。誕生月に誕生会やブックスタート実施)。(2)ふれあいルーム(図書館等で月2~4回親子交流や本とのふれあいの場提供)。(3)スマホアプリ「スマイル★ひらかたっ子」を配信し対象者限定でプッシュ通知で情報発信。(4)多胎児家庭育児支援事業の拡充。2022年度よりファミリーサポートセンター利用料補助の対象年齢を引き下げ(1歳から概ね3ヶ月)し利用方法をクーポン制に変更。(5)全ての児童が自主的自由に遊べる場として学校の一部を開放する「放課後オープンスクエア」を市立44小学校で開室。傷害保険等実費負担は年間1,000円。
出産祝い あり
公立保育所数 7所(うち0歳児保育を実施している保育所:6所)
私立保育所数 41所(うち0歳児保育を実施している保育所:41所)
保育所入所待機児童数 0人
認定こども園数 15園 預かり保育実施園数 公立:6園 私立:9園
学校給食 【小学校】完全給食【中学校】完全給食 家庭弁当との選択制(完全給食はランチボックス方式)
公立中学校の学校選択制 未実施
子ども・学生等医療費助成<通院>対象年齢 18歳3月末まで 子ども・学生等医療費助成<入院>対象年齢 18歳3月末まで(子ども医療)、19歳から22歳3月末まで(若者入院医療)

枚方市の治安・ごみ収集情報

公共料金・インフラ

ガス料金(22m3使用した場合の月額) 大阪瓦斯株式会社4544円
水道料金(口径20mmで20m3の月額) 枚方市2290円
下水道料金(20m3を使用した場合の月額) 枚方市2618円
下水道普及率 97.8%

安心・安全

建物火災出火件数 67件
人口10000人当たり
1.69件
刑法犯認知件数 1708件
人口1000人当たり
4.30件
ハザード・防災マップ あり

医療

一般病院総数 22ヶ所
一般診療所総数 284ヶ所
小児科医師数 83人
小児人口10000人当たり
17.79人
産婦人科医師数 37人
15~49歳女性人口1万人当たり
4.92人
介護保険料基準額(月額) 6276円

ごみ

家庭ごみ収集(可燃ごみ) 無料
備考
-
家庭ごみの分別方式 4分別6種〔一般ごみ 空き缶・びん・ガラス類 ペットボトル・プラスチック製容器包装、紙類(新聞紙、段ボール、雑誌・雑がみ)〕 拠点回収:使用済小型家電 水銀使用廃製品 紙類
家庭ごみの戸別収集 一部実施(【ふれあいサポート収集】一般ごみ、空き缶・びん・ガラス類、ペットボトル・プラスチック類容器包装、紙類)
粗大ごみ収集 あり
備考
粗ごみは6点まで無料。大型ごみ・臨時ごみは有料。いずれも事前申込制(電話・インターネット)。戸別収集。月1回。
生ごみ処理機助成金制度 なし
上限金額
-
上限比率
-

枚方市の住まいの給付金

中古購入

利子補給制度 なし
補助/助成金制度 あり
上限金額
100万円
備考
【若者世代空き家活用補助金】市外又は市内賃貸・実家等に住む若者・子育て世帯による、1981年5月以前着工の居住のない一戸建住宅の建替え費。又は、耐震改修し、リフォームする工事費の1/2を補助。上限100万円。

増築・改築・改修

利子補給制度 なし
補助/助成金制度 あり
上限金額
(1)500万円(2)105万円
備考
(1)【街なみ環境整備事業(枚方宿地区)修景補助金】歴史的建造物等の外観修復・復元等(補助率8/10、限度額500万円)、建築物の増改築、修繕(外観にかかるもの)(補助率5/10、限度額300万円※生活環境整備ゾーン等は200万円)。(2)【木造住宅耐震化補助金】1981年5月以前着工の木造住宅の耐震化に要する費用の一部補助。耐震診断は要した費用の10/11、上限5万円。耐震改修は設計費の70%、上限10万円と工事費の上限最大70万円(一定所得以下の世帯は90万円)の合計。
暮らしデータ提供元:生活ガイド.com
※行政機関により公表していない地域及びデータがございます。東京23区以外の政令指定都市は、市全体のデータとして表示しています。
※提供データには細心の注意を払っておりますが、調査後に変更がある場合があります。 最新の情報につきましては各市区役所までお問い合わせいただくか、自治体HPなどをご確認ください。

この物件を見た人はこんな物件も見ています

OCN×ドコモ光新規お申込みで合計最大137,280円相当おトク!特典の内訳・適用条件など詳細はこちら

枚方市内の各駅の住みやすさ

他のエリアから探す

枚方市の詳細地域から一戸建て物件を探す

朝日丘町天之川町伊加賀栄町伊加賀西町伊加賀緑町池之宮磯島茶屋町印田町宇山町宇山東町大峰南町大峰元町岡山手町小倉町甲斐田新町甲斐田町甲斐田東町春日西町片鉾東町片鉾本町上島町上島東町菊丘町北楠葉町北中振北山禁野本町楠葉丘楠葉並木楠葉野田楠葉美咲楠葉面取町高田交北高野道香里園桜木町香里園町香里園東之町香里園山之手町香里ケ丘黄金野桜丘町桜町釈尊寺町招提大谷招提中町招提平野町招提南町招提元町新之栄町翠香園町杉山手須山町宗谷尊延寺高塚町田口田口山田宮本町津田駅前津田西町津田東町津田元町出口出屋敷元町藤田町堂山中宮北町中宮東之町中宮山戸町長尾家具町長尾北町長尾谷町長尾台長尾西町長尾東町長尾宮前長尾元町渚栄町渚東町渚本町渚南町渚元町茄子作茄子作北町茄子作東町西禁野西田宮町西船橋西牧野野村中町野村元町走谷東香里東香里新町東香里南町東香里元町東田宮東中振東船橋東牧野町東山氷室台枚方上之町枚方元町藤阪北町藤阪天神町藤阪中町藤阪東町藤阪元町船橋本町星丘牧野阪牧野下島町牧野本町町楠葉松丘町南楠葉南中振南船橋都丘町宮之阪宮之下町村野高見台村野東町村野本町三栗養父丘養父西町山田池東町山之上山之上北町山之上西町

近辺の市区から探す

城陽市八幡市京田辺市乙訓郡大山崎町久世郡久御山町高槻市守口市茨木市寝屋川市大東市門真市摂津市四條畷市交野市三島郡島本町

周辺の駅から探す

京阪電気鉄道京阪線
牧野御殿山枚方市枚方公園光善寺香里園寝屋川市萱島大和田

住宅ローンの返済額一覧

物件価格 3980万円に対して、年率 で、頭金 の場合
↓ボーナス 35年間 30年間 25年間 20年間 15年間 10年間
0万円 90,335円/月 104,117円/月 123,425円/月 152,400円/月 200,714円/月 297,370円/月
5万円 81,250円/月 95,142円/月 114,558円/月 143,642円/月 192,062円/月 288,825円/月
10万円 72,164円/月 86,166円/月 105,691円/月 134,883円/月 183,411円/月 280,280円/月
15万円 63,079円/月 77,190円/月 96,824円/月 126,124円/月 174,759円/月 271,735円/月
20万円 53,993円/月 68,215円/月 87,958円/月 117,366円/月 166,108円/月 263,190円/月
25万円 ローン不可 59,239円/月 79,091円/月 108,607円/月 157,456円/月 254,645円/月
30万円 ローン不可 ローン不可 70,224円/月 99,848円/月 148,805円/月 246,099円/月
支払い利息合計 3,155,190円~ 2,697,840円~ 2,242,900円~ 1,788,480円~ 1,337,850円~ 890,620円~
※元利均等返済方式で試算しています。 「円」の単位以下の端数金額は「切り捨て」として計算しております。
※金利は、固定金利として計算しております。
※上記の住宅ローン返済額一覧は、あくまで試算であり、将来の金利動向により、実際のご返済額とは異なります。
※ボーナス支払総額が総支払額の50%を超えている場合、上記の表では「ローン不可」となります。
※住宅ローン返済額一覧の数値は、住宅ローンのお申し込みやご融資をお約束するものではございません。
物件を見たい、物件や住環境の詳しい情報やローン相談など、
お問い合わせ先
三井のリハウス枚方センター三井不動産リアルティ(株)

掲載情報の著作権は提供元企業等に帰属します。
Copyright:(C) 2025 Recruit Co., Ltd.
アプリで簡単 物件探し 大手不動産サイトの情報から一括検!プッシュ通知で物件を見逃さない
App Storeからダウンロード Google Playで手に入れよう QRコード