アプリで簡単 物件探し 通知 共有 アプリならではの機能を使ってみる
中古住宅

東京都江戸川区平井1 平井駅 中古一戸建て・中古住宅

情報提供元
SUUMO
東京都江戸川区平井1 平井駅 中古一戸建て・中古住宅
価格 4100万円
交通
所在地 東京都江戸川区平井1周辺地図
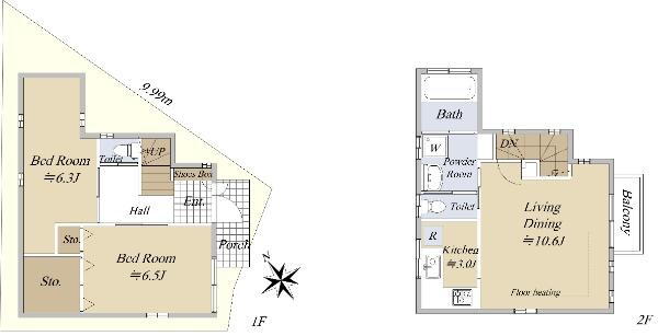
間取り 2LDK
建物面積 66.76m2(20.19坪) 土地面積 55.66m2(16.83坪)(登記)
築年月 2004年5月 築年数 築21年6ヶ月
おすすめポイント
【アクセス】・JR総武線「平井」駅 徒歩13分【建物情報】・土地面積:55.66㎡(16.83坪)・建物延べ面積:66.76㎡(20.19坪)・構造:木造2階建て・築年数:2004年5月・間取り:2LDK~設備情報~・オール電化・システムキッチン・トイレ2か所・オートバス・洗面三面鏡収納・床暖房(LD部分)
お問い合わせ先
住友不動産ステップ(株)錦糸町営業センター
物件を見たい、物件や住環境の詳しい情報やローン相談など、
お問い合わせ先
住友不動産ステップ(株)錦糸町営業センター

詳細情報

価格 4100万円
所在地 東京都江戸川区平井1周辺地図
交通
間取り 2LDK 築年月(築年数) 2004年5月(築21年6ヶ月)
建物面積 66.76m2(20.19坪) 建物構造・規模 木造2階建
土地面積 55.66m2(16.83坪)(登記) 土地権利 所有権
私道面積 借地期間・地代
接道状況 北東8.1m接面9.9m 駐車場
用途地域 1種住居 都市計画
建ぺい率/容積率 60%/200% 現況
地目 引渡可能時期 相談
情報提供元 SUUMO [030Z77966441] 情報公開日
情報更新日 次回更新予定日 随時

設備など

1種低層地域 - 即入居可 - 売主・代理 -
駐車2台以上 - 平屋 - 本下水 -
都市ガス - カウンターキッチン - 床暖房 -
ウォークインクローゼット - バリアフリー -
設備
リフォーム履歴 -
リノベーション履歴 -
備考 <物件名>平井1(平井駅) 4100万円/<土地権利>所有権/<間取り>2LDK/<特徴>2LDK・2階建の戸建て、オール電化採用
販売戸数:1戸
法令等制限:地勢:平坦/都市計画道路が敷地にかかっています。
特記事項

省エネ性能

エネルギー消費性能 -
断熱性能 -
目安光熱費 -

東京都江戸川区平井1 周辺地図情報

地図
※地図上に表示される物件の位置は付近住所に所在することを表すものであり、実際の物件所在地とは異なる場合がございます。
   正確な物件所在地は、取扱い不動産会社にお問い合わせください。
物件を見たい、物件や住環境の詳しい情報やローン相談など、
お問い合わせ先
住友不動産ステップ(株)錦糸町営業センター

不動産会社情報

お問い合わせ先 商号:住友不動産ステップ(株)錦糸町営業センター
免許番号:国土交通大臣(13)第002077号
所在地:東京都墨田区江東橋3-7-8 日本生命錦糸町ビル8階
TEL:0120-432882
取引態様:専属専任媒介
管理コード:15662017
共有する
QRコード
物件を見たい、物件や住環境の詳しい情報やローン相談など、
お問い合わせ先
住友不動産ステップ(株)錦糸町営業センター

江戸川区の暮らしデータ

人口などの統計情報

世帯数 332895世帯
人口総数 689961人
転入者数 44056人
転入率(人口1000人当たり)
63.85人
転出者数 39032人
転出率(人口1000人当たり)
56.57人
土地平均価格
住宅地
388500円/m2
商業地
763667円/m2

結婚・育児の助成金

子育て関連の独自の取り組み (1)すくすくスクール(地域の人材と学校施設を利用した子どもの健全育成事業)。(2)ともに生きるまちを目指す条例の制定。(3)乳児養育手当(乳児[0歳児]を養育している保護者に支給。1人月額1.3万円、支給要件あり)。
出産祝い なし
公立保育所数 33所(うち0歳児保育を実施している保育所:0所)
私立保育所数 115所(うち0歳児保育を実施している保育所:63所)
保育所入所待機児童数 0人
認定こども園数 9園 預かり保育実施園数 公立:1園 私立:29園
学校給食 【小学校】完全給食【中学校】完全給食
公立中学校の学校選択制 実施
子ども・学生等医療費助成<通院>対象年齢 18歳3月末まで 子ども・学生等医療費助成<入院>対象年齢 18歳3月末まで

江戸川区の治安・ごみ収集情報

公共料金・インフラ

ガス料金(22m3使用した場合の月額) 東京瓦斯株式会社(東京地区等)3926円
水道料金(口径20mmで20m3の月額) 東京都水道局2816円
下水道料金(20m3を使用した場合の月額) 東京都下水道局2068円
下水道普及率 99.9%

安心・安全

建物火災出火件数 117件
人口10000人当たり
1.68件
刑法犯認知件数 4289件
人口1000人当たり
6.15件
ハザード・防災マップ あり

医療

一般病院総数 22ヶ所
一般診療所総数 463ヶ所
小児科医師数 123人
小児人口10000人当たり
15.16人
産婦人科医師数 31人
15~49歳女性人口1万人当たり
2.07人
介護保険料基準額(月額) 6100円

ごみ

家庭ごみ収集(可燃ごみ) 無料
備考
45リットル袋3袋まで無料。それを超える場合は45リットル袋300円。
家庭ごみの分別方式 3分別10種〔燃やすごみ 燃やさないごみ 資源ごみ(資源となる容器包装プラスチック、ペットボトル、びん、缶、古紙[新聞、雑誌・雑紙、段ボール、紙パック])〕 拠点回収:古着 古布 集団回収:新聞 雑誌 雑紙 段ボール 紙パック 布類 スチール缶 アルミ缶 生きびん ペットボトル
家庭ごみの戸別収集 一部実施(【戸別訪問収集】自ら、ごみ又は資源を集積所に出すことが困難な65歳以上の一人暮らしの世帯、または世帯全員が65歳以上の方、身体障害者のみの世帯の方)
粗大ごみ収集 あり
備考
有料。戸別収集。事前申込制。持ち込みも可能。
生ごみ処理機助成金制度 なし
上限金額
-
上限比率
-

江戸川区の住まいの給付金

中古購入

利子補給制度 なし
補助/助成金制度 なし

増築・改築・改修

利子補給制度 あり
上限金額
(融資限度額)500万円
備考
【住宅リフォーム資金融資あっせん制度】住宅の改修工事を行う際に、年利2.0%を超過する分を利子補給。耐震補強工事、アスベスト除去等の工事、住宅用太陽エネルギー利用機器・高効率給湯器・家庭用燃料電池コージェネレーションシステムの設置工事、バリアフリー化工事、屋根・外壁・窓等の断熱性または遮熱性を高める工事を行う場合は年利0.9%をと超過する分を利子補給。融資額に応じて、最長10年間の補給。
補助/助成金制度 あり
上限金額
(1)全額(2)30万円(3)200万円
備考
(1)【耐震コンサルタント派遣制度】1981年5月31日以前に建築された住宅が対象。耐震の簡易診断を無料で受けることができる制度。(2)【戸建住宅耐震改修設計等助成事業】1981年5月31日以前に建築された住宅と1981年6月1日から2000年5月31日に建築された木造住宅が対象。耐震診断の精密診断費用、耐震改修設計費の80%(上限30万円)を助成。(3)【戸建住宅耐震改修工事助成事業】(2)の制度を利用した住宅が対象。改修工事費用の1/2、上限150万円を助成。非課税世帯は2/3、上限200万円。
暮らしデータ提供元:生活ガイド.com
※行政機関により公表していない地域及びデータがございます。東京23区以外の政令指定都市は、市全体のデータとして表示しています。
※提供データには細心の注意を払っておりますが、調査後に変更がある場合があります。 最新の情報につきましては各市区役所までお問い合わせいただくか、自治体HPなどをご確認ください。

この物件を見た人はこんな物件も見ています

OCN×ドコモ光新規お申込みで合計最大137,280円相当おトク!特典の内訳・適用条件など詳細はこちら

江戸川区内の各駅の住みやすさ

住宅ローンの返済額一覧

物件価格 4100万円に対して、年率 で、頭金 の場合
↓ボーナス 35年間 30年間 25年間 20年間 15年間 10年間
0万円 93,450円/月 107,708円/月 127,681円/月 157,656円/月 207,635円/月 307,624円/月
5万円 84,365円/月 98,732円/月 118,814円/月 148,897円/月 198,983円/月 299,079円/月
10万円 75,279円/月 89,756円/月 109,947円/月 140,138円/月 190,332円/月 290,534円/月
15万円 66,194円/月 80,781円/月 101,080円/月 131,380円/月 181,680円/月 281,989円/月
20万円 57,108円/月 71,805円/月 92,214円/月 122,621円/月 173,029円/月 273,444円/月
25万円 48,023円/月 62,829円/月 83,347円/月 113,862円/月 164,378円/月 264,899円/月
30万円 ローン不可 53,854円/月 74,480円/月 105,104円/月 155,726円/月 256,354円/月
支払い利息合計 3,267,340円~ 2,793,600円~ 2,319,700円~ 1,849,920円~ 1,383,630円~ 921,220円~
※元利均等返済方式で試算しています。 「円」の単位以下の端数金額は「切り捨て」として計算しております。
※金利は、固定金利として計算しております。
※上記の住宅ローン返済額一覧は、あくまで試算であり、将来の金利動向により、実際のご返済額とは異なります。
※ボーナス支払総額が総支払額の50%を超えている場合、上記の表では「ローン不可」となります。
※住宅ローン返済額一覧の数値は、住宅ローンのお申し込みやご融資をお約束するものではございません。
物件を見たい、物件や住環境の詳しい情報やローン相談など、
お問い合わせ先
住友不動産ステップ(株)錦糸町営業センター

掲載情報の著作権は提供元企業等に帰属します。
Copyright:(C) 2025 Recruit Co., Ltd.
アプリで簡単 物件探し 大手不動産サイトの情報から一括検!プッシュ通知で物件を見逃さない
App Storeからダウンロード Google Playで手に入れよう QRコード