アプリで簡単 物件探し 通知 共有 アプリならではの機能を使ってみる
中古住宅

埼玉県白岡市新白岡5 新白岡駅 中古一戸建て・中古住宅

情報提供元
SUUMO
埼玉県白岡市新白岡5 新白岡駅 中古一戸建て・中古住宅
価格 5980万円
交通
所在地 埼玉県白岡市新白岡5周辺地図
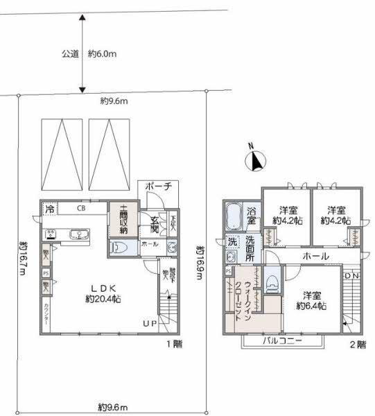
間取り 3LDK
建物面積 99.5m2(登記) 土地面積 162.89m2(登記)
築年月 2020年11月 築年数 築5年
おすすめポイント
積水ハウス株式会社保証:新築時から30年継承可能!○JR湘南新宿ライン宇都宮線「新白岡」駅 徒歩4分!○令和2年11月築!○駐車場2台分あり!(車種による)■瓦一体型太陽光発電システム4.823kw搭載■ZEH仕様住宅■約20.4帖のLDK■陶版外壁ベルバーン採用■キッチンはIHクッキングヒーター使用
駐車場2台分・長期優良住宅・瑕疵保険(国交省指定法人)
お問い合わせ先
積水ハウス不動産(株)埼玉南営業所
物件を見たい、物件や住環境の詳しい情報やローン相談など、
お問い合わせ先
積水ハウス不動産(株)埼玉南営業所

詳細情報

価格 5980万円
所在地 埼玉県白岡市新白岡5周辺地図
交通
  • 湘南新宿ライン宇須 新白岡駅 徒歩4分乗換案内
間取り 3LDK 築年月(築年数) 2020年11月(築5年)
建物面積 99.5m2(登記) 建物構造・規模 木造2階建
土地面積 162.89m2(登記) 土地権利 所有権
私道面積 借地期間・地代
接道状況 北6m接面9.6m 駐車場
用途地域 2種中高 都市計画
建ぺい率/容積率 60%/150% 現況
地目 引渡可能時期 相談
情報提供元 SUUMO [030Z76884334] 情報公開日
情報更新日 次回更新予定日 随時

設備など

1種低層地域 - 即入居可 - 売主・代理 -
駐車2台以上 平屋 - 本下水
都市ガス カウンターキッチン - 床暖房 -
ウォークインクローゼット バリアフリー -
設備 都市ガス・ウォークインクローゼット・システムキッチン・トイレ2ヶ所・IHクッキングヒータ・食器洗浄乾燥機・上水道・本下水・駐車場2台分・太陽光システム
リフォーム履歴 -
リノベーション履歴 -
備考 <物件名>白岡市新白岡【スムストック】/<土地権利>所有権/<間取り>3LDK/<その他制限事項>外壁後退1m※太陽光発電の権利の引継ぎの際に費用がかかる可能性がございます。※設備:ガス/都市ガス、飲用水/公営水道 、汚水・雑排水/公共下水(敷地内引込有)/<特徴>◆積水ハウス施工のスムストック◆、長期優良住宅認定通知書・瑕疵保険(国交省指定)保証利用可・太陽光発電システム・駐車2台可・LDK20畳以上
販売戸数:1戸
法令等制限:景観法による規制有、景観地区、敷地面積最低限度有、日影制限有、壁面後退有、※野牛・高岩地区地区計画(C地区に該当)容積率150%に制限、最低敷地面積150㎡
特記事項 駐車場2台分・長期優良住宅・瑕疵保険(国交省指定法人)

省エネ性能

エネルギー消費性能 -
断熱性能 -
目安光熱費 -

埼玉県白岡市新白岡5 周辺地図情報

地図
※地図上に表示される物件の位置は付近住所に所在することを表すものであり、実際の物件所在地とは異なる場合がございます。
   正確な物件所在地は、取扱い不動産会社にお問い合わせください。
物件を見たい、物件や住環境の詳しい情報やローン相談など、
お問い合わせ先
積水ハウス不動産(株)埼玉南営業所

不動産会社情報

お問い合わせ先 商号:積水ハウス不動産(株)埼玉南営業所
免許番号:国土交通大臣(13)第002343号
所在地:埼玉県さいたま市浦和区高砂2-1-1
TEL:048-824-3377
取引態様:専任媒介
管理コード:C14803218620
共有する
QRコード
物件を見たい、物件や住環境の詳しい情報やローン相談など、
お問い合わせ先
積水ハウス不動産(株)埼玉南営業所

白岡市の暮らしデータ

人口などの統計情報

世帯数 20484世帯
人口総数 52649人
転入者数 2363人
転入率(人口1000人当たり)
44.88人
転出者数 2131人
転出率(人口1000人当たり)
40.48人
土地平均価格
住宅地
87633円/m2
商業地
143000円/m2

結婚・育児の助成金

子育て関連の独自の取り組み (1)ベビーベッドの無料貸与(乳児の健やかな成長の支援と保護者の経済的負担の軽減を目的とし、乳児[0歳児]の保護者に対し、ベビーベッドを無料で貸出ししている。利用期間は6ヶ月で、1歳の誕生日の前日まで延長できる。2023年4月から里帰り出産で市内に住所を有する祖父母にも貸出対象を拡大。里帰り利用の貸出期間は6ヶ月のみ)。(2)1ヶ月児健康診査費用助成。(3)おたふくかぜ予防接種費用の一部助成。(4)多胎妊婦に対する妊婦健康診査の追加助成。(5)骨髄移植後予防接種の再接種費用の助成。
出産祝い あり
公立保育所数 3所(うち0歳児保育を実施している保育所:1所)
私立保育所数 6所(うち0歳児保育を実施している保育所:5所)
保育所入所待機児童数 36人
認定こども園数 0園 預かり保育実施園数 公立:- 私立:4園
学校給食 【小学校】完全給食【中学校】完全給食
公立中学校の学校選択制 未実施
子ども・学生等医療費助成<通院>対象年齢 18歳3月末まで 子ども・学生等医療費助成<入院>対象年齢 18歳3月末まで

白岡市の治安・ごみ収集情報

公共料金・インフラ

ガス料金(22m3使用した場合の月額) 東京瓦斯株式会社(東京地区等)3926円
東彩ガス株式会社(北本・桶川地区)4609円
日本瓦斯株式会社(蓮田・白岡地区)4536円
堀川産業株式会社(沖山地区)6063円
水道料金(口径20mmで20m3の月額) 白岡市3696円
下水道料金(20m3を使用した場合の月額) 白岡市2806円
下水道普及率 70.6%

安心・安全

建物火災出火件数 10件
人口10000人当たり
1.92件
刑法犯認知件数 241件
人口1000人当たり
4.62件
ハザード・防災マップ あり

医療

一般病院総数 3ヶ所
一般診療所総数 29ヶ所
小児科医師数 10人
小児人口10000人当たり
15.92人
産婦人科医師数 5人
15~49歳女性人口1万人当たり
4.99人
介護保険料基準額(月額) 5491円

ごみ

家庭ごみ収集(可燃ごみ) 有料
備考
指定ごみ袋有料(燃えるごみ・燃えないごみ)。
家庭ごみの分別方式 7分別14種〔燃えるごみ 燃やせないごみ ガラス類 ペットボトル 飲食料用缶 古紙・布類(新聞紙、紙パック、段ボール、雑誌及び古紙、布類) 有害・危険ごみ(蛍光管・水銀体温計、スプレー缶、ガスライター、乾電池)〕
家庭ごみの戸別収集 一部実施([1]介護保険制度の要介護認定を受けている65歳以上の方[2]介護保険制度の要支援認定を受けている方[3]身体障害者手帳、療育手帳又は精神障害者保健福祉手帳の交付を受けている方※1~3のいずれかに該当する方又は該当する者のみで構成される世帯が対象となる。「ふれあい収集」収集の際の指定ごみ袋は有料)
粗大ごみ収集 あり
備考
有料。品目別に477円~1,905円(税抜)の料金を設定。条例に個別の設定が無い品目は寸法に準じ料金477円・953円・1,905円(税抜)を設定。
生ごみ処理機助成金制度 なし
上限金額
-
上限比率
-

白岡市の住まいの給付金

中古購入

利子補給制度 なし
補助/助成金制度 なし

増築・改築・改修

利子補給制度 なし
補助/助成金制度 あり
上限金額
(1)8.2万円(2)40万円(3)10万円(4)5万円
備考
(1)【既存建築物耐震診断補助金】耐震診断料が10万円以下の場合は5万円。10万円を超えた場合は上限8万2,000円。(2)【既存建築物耐震改修補助金】耐震改修工事の費用の23%で上限40万円。(3)【既存建築物耐震シェルター設置補助金】購入及び設置に要する費用で上限10万円。(4)【住宅リフォーム事業補助金】住宅リフォーム工事に要する費用の一部を助成。費用の5%(上限5万円)。予算上限あり。
暮らしデータ提供元:生活ガイド.com
※行政機関により公表していない地域及びデータがございます。東京23区以外の政令指定都市は、市全体のデータとして表示しています。
※提供データには細心の注意を払っておりますが、調査後に変更がある場合があります。 最新の情報につきましては各市区役所までお問い合わせいただくか、自治体HPなどをご確認ください。

この物件を見た人はこんな物件も見ています

OCN×ドコモ光新規お申込みで合計最大137,280円相当おトク!特典の内訳・適用条件など詳細はこちら

白岡市内の各駅の住みやすさ

住宅ローンの返済額一覧

物件価格 5980万円に対して、年率 で、頭金 の場合
↓ボーナス 35年間 30年間 25年間 20年間 15年間 10年間
0万円 142,252円/月 163,955円/月 194,359円/月 239,987円/月 316,067円/月 468,273円/月
5万円 133,167円/月 154,980円/月 185,492円/月 231,229円/月 307,415円/月 459,728円/月
10万円 124,081円/月 146,004円/月 176,625円/月 222,470円/月 298,764円/月 451,183円/月
15万円 114,996円/月 137,028円/月 167,758円/月 213,711円/月 290,112円/月 442,638円/月
20万円 105,910円/月 128,053円/月 158,892円/月 204,953円/月 281,461円/月 434,093円/月
25万円 96,825円/月 119,077円/月 150,025円/月 196,194円/月 272,809円/月 425,547円/月
30万円 87,739円/月 110,101円/月 141,158円/月 187,435円/月 264,158円/月 417,002円/月
支払い利息合計 4,967,610円~ 4,242,520円~ 3,523,100円~ 2,809,360円~ 2,101,390円~ 1,398,980円~
※元利均等返済方式で試算しています。 「円」の単位以下の端数金額は「切り捨て」として計算しております。
※金利は、固定金利として計算しております。
※上記の住宅ローン返済額一覧は、あくまで試算であり、将来の金利動向により、実際のご返済額とは異なります。
※ボーナス支払総額が総支払額の50%を超えている場合、上記の表では「ローン不可」となります。
※住宅ローン返済額一覧の数値は、住宅ローンのお申し込みやご融資をお約束するものではございません。
物件を見たい、物件や住環境の詳しい情報やローン相談など、
お問い合わせ先
積水ハウス不動産(株)埼玉南営業所

掲載情報の著作権は提供元企業等に帰属します。
Copyright:(C) 2025 Recruit Co., Ltd.
アプリで簡単 物件探し 大手不動産サイトの情報から一括検!プッシュ通知で物件を見逃さない
App Storeからダウンロード Google Playで手に入れよう QRコード