アプリで簡単 物件探し 通知 共有 アプリならではの機能を使ってみる
中古住宅

埼玉県さいたま市西区三橋6 西大宮駅 中古一戸建て・中古住宅

情報提供元
SUUMO
埼玉県さいたま市西区三橋6 西大宮駅 中古一戸建て・中古住宅
価格 5480万円
交通
所在地 埼玉県さいたま市西区三橋6周辺地図
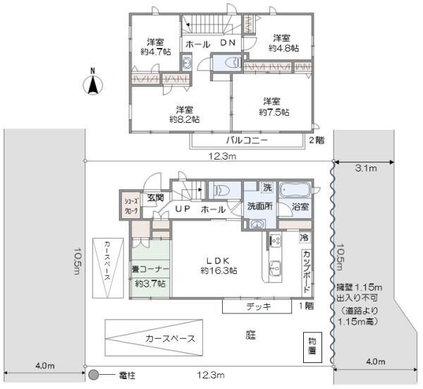
間取り 4LDK
建物面積 107.75m2(登記) 土地面積 130.02m2(登記)
築年月 2021年5月 築年数 築4年6ヶ月
おすすめポイント
◆令和3年築の積水ハウス施工「シャーウッド (商品名)グラヴィス・ベルサ」◆全窓ペアガラス◆畳コーナーあり◆電動シャッター付き◆2階南向き洋室は引き戸を開放すると約15.7帖としてお使い頂けます
お問い合わせ先
積水ハウス不動産(株)埼玉南営業所
物件を見たい、物件や住環境の詳しい情報やローン相談など、
お問い合わせ先
積水ハウス不動産(株)埼玉南営業所

詳細情報

価格 5480万円
所在地 埼玉県さいたま市西区三橋6周辺地図
交通
間取り 4LDK 築年月(築年数) 2021年5月(築4年6ヶ月)
建物面積 107.75m2(登記) 建物構造・規模 木造2階建
土地面積 130.02m2(登記) 土地権利 所有権
私道面積 借地期間・地代
接道状況 西4m接面10.5m 東3.1m接面10.5m 駐車場
用途地域 2種中高 都市計画
建ぺい率/容積率 60%/160% 現況
地目 引渡可能時期 相談
情報提供元 SUUMO [030Z78472502] 情報公開日
情報更新日 次回更新予定日 随時

設備など

1種低層地域 - 即入居可 - 売主・代理 -
駐車2台以上 - 平屋 - 本下水
都市ガス カウンターキッチン - 床暖房 -
ウォークインクローゼット - バリアフリー -
設備 バルコニー・都市ガス・上水道・本下水
リフォーム履歴 -
リノベーション履歴 -
備考 <物件名>さいたま市西区三橋六丁目・スムストック/<土地権利>所有権/<間取り>4LDK/<その他制限事項>敷地内引込有※二方道路につき建蔽率が70%に緩和されます※前面道路幅員により容積率は160%に制限されます※上記土地面積の他にゴミ置場用地2.7㎡(持分1/7)があります。※東側道路より1.15㎡高くなっております。※東側対面側のセットバックが未了です。/<特徴>◆令和3年築の積水ハウス施工、2沿線以上利用可・南面バルコニー
販売戸数:1戸
法令等制限:※設備:ガス/都市ガス、飲用水/公営水道、汚水・雑排水/公共下水※設備各種
特記事項

省エネ性能

エネルギー消費性能 -
断熱性能 -
目安光熱費 -

埼玉県さいたま市西区三橋6 周辺地図情報

地図
※地図上に表示される物件の位置は付近住所に所在することを表すものであり、実際の物件所在地とは異なる場合がございます。
   正確な物件所在地は、取扱い不動産会社にお問い合わせください。
物件を見たい、物件や住環境の詳しい情報やローン相談など、
お問い合わせ先
積水ハウス不動産(株)埼玉南営業所

不動産会社情報

お問い合わせ先 商号:積水ハウス不動産(株)埼玉南営業所
免許番号:国土交通大臣(13)第002343号
所在地:埼玉県さいたま市浦和区高砂2-1-1
TEL:048-824-3377
取引態様:専任媒介
管理コード:C14810025952
共有する
QRコード
物件を見たい、物件や住環境の詳しい情報やローン相談など、
お問い合わせ先
積水ハウス不動産(株)埼玉南営業所

さいたま市西区の暮らしデータ

人口などの統計情報

世帯数 581501世帯
人口総数 1345012人
転入者数 83362人
転入率(人口1000人当たり)
61.98人
転出者数 73089人
転出率(人口1000人当たり)
54.34人
土地平均価格
住宅地
205305円/m2
商業地
715276円/m2

結婚・育児の助成金

子育て関連の独自の取り組み (1)父親の子育て参加の推進(父親等の1日保育士・幼稚園教諭体験の実施、父親向け子育て応援冊子「父子手帖」の配布)。(2)のびのびルーム事業(3歳未満の子どもと保護者の集い・遊びの場として、放課後児童クラブの空き時間を開放)。(3)三世代子育て応援事業(「孫育て講座」の実施、祖父母と子育て世代の関係をより円滑にするため「祖父母手帳」の配布)。(4)子どもの社会参画推進事業(「子どもがつくるまち」の実施)。(5)のびのび赤ちゃん応援金、多子世帯子育て応援金の給付。
出産祝い あり
公立保育所数 59所(うち0歳児保育を実施している保育所:36所)
私立保育所数 268所(うち0歳児保育を実施している保育所:253所)
保育所入所待機児童数 0人
認定こども園数 17園 預かり保育実施園数 公立:- 私立:85園
学校給食 【小学校】完全給食【中学校】完全給食
公立中学校の学校選択制 一部実施(特定地域選択制)
子ども・学生等医療費助成<通院>対象年齢 18歳3月末まで 子ども・学生等医療費助成<入院>対象年齢 18歳3月末まで

さいたま市西区の治安・ごみ収集情報

公共料金・インフラ

ガス料金(22m3使用した場合の月額) 東京瓦斯株式会社(東京地区等)3926円
東彩ガス株式会社(越谷・春日部地区)4893円
水道料金(口径20mmで20m3の月額) さいたま市3498円
下水道料金(20m3を使用した場合の月額) さいたま市2459円
下水道普及率 95.1%

安心・安全

建物火災出火件数 176件
人口10000人当たり
1.33件
刑法犯認知件数 8745件
人口1000人当たり
6.60件
ハザード・防災マップ あり

医療

一般病院総数 35ヶ所
一般診療所総数 1028ヶ所
小児科医師数 318人
小児人口10000人当たり
18.64人
産婦人科医師数 80人
15~49歳女性人口1万人当たり
2.82人
介護保険料基準額(月額) 6406円

ごみ

家庭ごみ収集(可燃ごみ) 無料
備考
-
家庭ごみの分別方式 5分別17種〔資源物1類(びん、かん、ペットボトル、容器包装プラスチック) 資源物2類(新聞、ダンボール、牛乳パック、雑誌類、その他の紙、繊維) 有害危険ごみ(蛍光管、乾電池、スプレーかん・カートリッジ式ボンベ、水銀体温計、ライター) もえないごみ もえるごみ〕 拠点回収:使用済小型家電
家庭ごみの戸別収集 一部実施(ふれあい収集)
粗大ごみ収集 あり
備考
有料。戸別収集。事前申込制。納付券払。
生ごみ処理機助成金制度 あり
上限金額
20000円
上限比率
50.0%

さいたま市西区の住まいの給付金

中古購入

利子補給制度 なし
補助/助成金制度 なし

増築・改築・改修

利子補給制度 なし
補助/助成金制度 あり
上限金額
126.6万円
備考
【さいたま市既存建築物耐震補強等助成事業】耐震診断費用、上限6.6万円。耐震補強設計費用の2/3、上限20万円。耐震補強工事費用の1/2、上限120万円から耐震補強設計に係る助成金の額を減じた額。
暮らしデータ提供元:生活ガイド.com
※行政機関により公表していない地域及びデータがございます。東京23区以外の政令指定都市は、市全体のデータとして表示しています。
※提供データには細心の注意を払っておりますが、調査後に変更がある場合があります。 最新の情報につきましては各市区役所までお問い合わせいただくか、自治体HPなどをご確認ください。

この物件を見た人はこんな物件も見ています

OCN×ドコモ光新規お申込みで合計最大137,280円相当おトク!特典の内訳・適用条件など詳細はこちら

さいたま市西区内の各駅の住みやすさ

住宅ローンの返済額一覧

物件価格 5480万円に対して、年率 で、頭金 の場合
↓ボーナス 35年間 30年間 25年間 20年間 15年間 10年間
0万円 129,273円/月 148,996円/月 176,625円/月 218,091円/月 287,228円/月 425,547円/月
5万円 120,188円/月 140,020円/月 167,758円/月 209,332円/月 278,577円/月 417,002円/月
10万円 111,102円/月 131,045円/月 158,892円/月 200,573円/月 269,926円/月 408,457円/月
15万円 102,017円/月 122,069円/月 150,025円/月 191,815円/月 261,274円/月 399,912円/月
20万円 92,931円/月 113,093円/月 141,158円/月 183,056円/月 252,623円/月 391,367円/月
25万円 83,846円/月 104,117円/月 132,291円/月 174,297円/月 243,971円/月 382,822円/月
30万円 74,760円/月 95,142円/月 123,425円/月 165,539円/月 235,320円/月 374,277円/月
支払い利息合計 4,516,430円~ 3,857,280円~ 3,203,200円~ 2,554,320円~ 1,910,550円~ 1,271,980円~
※元利均等返済方式で試算しています。 「円」の単位以下の端数金額は「切り捨て」として計算しております。
※金利は、固定金利として計算しております。
※上記の住宅ローン返済額一覧は、あくまで試算であり、将来の金利動向により、実際のご返済額とは異なります。
※ボーナス支払総額が総支払額の50%を超えている場合、上記の表では「ローン不可」となります。
※住宅ローン返済額一覧の数値は、住宅ローンのお申し込みやご融資をお約束するものではございません。
物件を見たい、物件や住環境の詳しい情報やローン相談など、
お問い合わせ先
積水ハウス不動産(株)埼玉南営業所

掲載情報の著作権は提供元企業等に帰属します。
Copyright:(C) 2025 Recruit Co., Ltd.
アプリで簡単 物件探し 大手不動産サイトの情報から一括検!プッシュ通知で物件を見逃さない
App Storeからダウンロード Google Playで手に入れよう QRコード