アプリで簡単 物件探し 通知 共有 アプリならではの機能を使ってみる
中古住宅

埼玉県ふじみ野市上福岡6 上福岡駅 中古一戸建て・中古住宅

情報提供元
SUUMO
埼玉県ふじみ野市上福岡6 上福岡駅 中古一戸建て・中古住宅
価格 4280万円
交通
所在地 埼玉県ふじみ野市上福岡6周辺地図
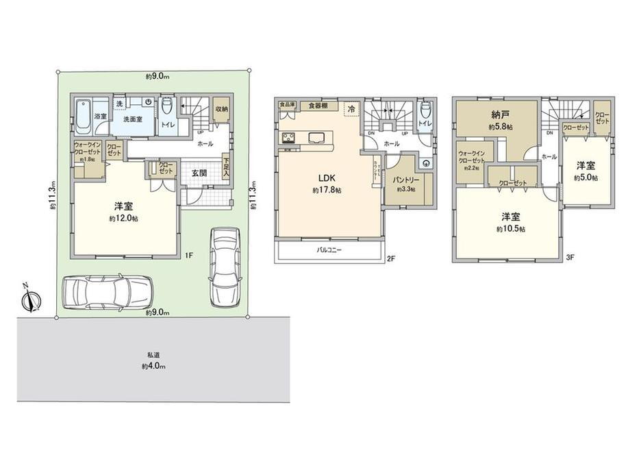
間取り 3SLDK
建物面積 143.12m2(43.29坪)(登記) 土地面積 95.84m2(28.99坪)(登記)
築年月 2012年11月 築年数 築13年
おすすめポイント
-物件のおすすめポイント-▼立地・東武東上線「上福岡」駅 徒歩6分▼特徴・プライバシーを保ちやすい2階LDKは約17.8帖・会話が弾む対面式キッチン、食品庫有・ホール・LDから利用可能な約3.3帖のパントリー付・2ヶ所のWIC等、全居室に収納有・約5.8帖の納戸は多彩に利用可能・全居室に2面以上の採光を確保、通風良好・駐車スペース2台分有(車種による)▼設備・オール電化・浴室乾燥機▼周辺環境・スーパー「ヤオコー上福岡西口店」徒歩5分(約400m)■ ご希望の住まい探しをお手伝いします ━━━━━・・・物件の詳細・ご相談はお気軽にお問い合わせください。
日当り良好・駐車場2台分・オール電化・整形地
お問い合わせ先
三井のリハウスふじみ野センター三井不動産リアルティ(株)
物件を見たい、物件や住環境の詳しい情報やローン相談など、
お問い合わせ先
三井のリハウスふじみ野センター三井不動産リアルティ(株)

詳細情報

価格 4280万円
所在地 埼玉県ふじみ野市上福岡6周辺地図
交通
間取り 3SLDK 築年月(築年数) 2012年11月(築13年)
建物面積 143.12m2(43.29坪)(登記) 建物構造・規模 鉄骨3階建
土地面積 95.84m2(28.99坪)(登記) 土地権利 所有権
私道面積 16.3m2 借地期間・地代
接道状況 南4m接面9m 駐車場
用途地域 1種住居 都市計画
建ぺい率/容積率 60%/200% 現況
地目 引渡可能時期 相談
情報提供元 SUUMO [030Z78258786] 情報公開日
情報更新日 次回更新予定日 随時

設備など

1種低層地域 - 即入居可 - 売主・代理 -
駐車2台以上 平屋 - 本下水
都市ガス - カウンターキッチン - 床暖房 -
ウォークインクローゼット バリアフリー -
設備 バルコニー・トイレ・収納スペース・浴室乾燥機・ウォークインクローゼット・温水洗浄便座・システムキッチン・モニタ付インターホン・風呂・対面K・トイレ2ヶ所・床下収納・IHクッキングヒータ・衣類乾燥機・上水道・本下水・駐車場2台分
リフォーム履歴 -
リノベーション履歴 -
備考 <物件名>上福岡6(上福岡駅) 4280万円/<駐車場>カースペース/<土地権利>所有権/<間取り>3LDK+S(納戸)/<特徴>■三井のリハウス■鉄骨造3階建ての注文住宅全居室南向きで、陽当り良好、駐車2台可・スーパー 徒歩10分以内・システムキッチン・浴室乾燥機・陽当り良好
販売戸数:1戸
法令等制限:※前面道路幅員による容積率の制限あり
特記事項 日当り良好・駐車場2台分・オール電化・整形地

省エネ性能

エネルギー消費性能 -
断熱性能 -
目安光熱費 -

埼玉県ふじみ野市上福岡6 周辺地図情報

地図
※地図上に表示される物件の位置は付近住所に所在することを表すものであり、実際の物件所在地とは異なる場合がございます。
   正確な物件所在地は、取扱い不動産会社にお問い合わせください。
物件を見たい、物件や住環境の詳しい情報やローン相談など、
お問い合わせ先
三井のリハウスふじみ野センター三井不動産リアルティ(株)

不動産会社情報

お問い合わせ先 商号:三井のリハウスふじみ野センター三井不動産リアルティ(株)
免許番号:国土交通大臣(15)第000777号
所在地:埼玉県富士見市ふじみ野西1-21-5 KIビルふじみ野1階
TEL:00786-01794068
取引態様:専任媒介
管理コード:FLSAQA09
共有する
QRコード
物件を見たい、物件や住環境の詳しい情報やローン相談など、
お問い合わせ先
三井のリハウスふじみ野センター三井不動産リアルティ(株)

ふじみ野市の暮らしデータ

人口などの統計情報

世帯数 49338世帯
人口総数 114363人
転入者数 6062人
転入率(人口1000人当たり)
53.01人
転出者数 5082人
転出率(人口1000人当たり)
44.44人
土地平均価格
住宅地
195500円/m2
商業地
275000円/m2

結婚・育児の助成金

子育て関連の独自の取り組み -
出産祝い なし
公立保育所数 5所(うち0歳児保育を実施している保育所:4所)
私立保育所数 16所(うち0歳児保育を実施している保育所:16所)
保育所入所待機児童数 2人
認定こども園数 2園 預かり保育実施園数 公立:- 私立:7園
学校給食 【小学校】完全給食【中学校】完全給食
公立中学校の学校選択制 未実施
子ども・学生等医療費助成<通院>対象年齢 18歳3月末まで 子ども・学生等医療費助成<入院>対象年齢 18歳3月末まで

ふじみ野市の治安・ごみ収集情報

公共料金・インフラ

ガス料金(22m3使用した場合の月額) 武州瓦斯株式会社4281円
水道料金(口径20mmで20m3の月額) ふじみ野市2598円
下水道料金(20m3を使用した場合の月額) ふじみ野市1367円
下水道普及率 94.4%

安心・安全

建物火災出火件数 8件
人口10000人当たり
0.70件
刑法犯認知件数 694件
人口1000人当たり
6.11件
ハザード・防災マップ あり

医療

一般病院総数 3ヶ所
一般診療所総数 69ヶ所
小児科医師数 13人
小児人口10000人当たり
9.39人
産婦人科医師数 2人
15~49歳女性人口1万人当たり
0.88人
介護保険料基準額(月額) 5750円

ごみ

家庭ごみ収集(可燃ごみ) 無料
備考
-
家庭ごみの分別方式 5分別17種〔もやすごみ もやさないごみ 有害ごみ(スプレー缶、蛍光管・電球・水銀体温計・使い捨てライター、乾電池) 容器包装プラスチック類 容器包装以外のプラスチック類(容器包装以外のプラスチック類、テープ類) 資源物(びん[色付きびん、透明・白色びん]、新聞紙、ダンボール、紙パック、布類、飲み物のかん、ペットボトル、雑誌・雑がみ)〕
家庭ごみの戸別収集 一部実施(【ふれあい収集事業】)
粗大ごみ収集 あり
備考
無料。ステーション収集。2週間に1回。もえる素材のもの30cm以上。もえない素材のもの50cm以上。1度につき1世帯2点まで。
生ごみ処理機助成金制度 なし
上限金額
-
上限比率
-

ふじみ野市の住まいの給付金

中古購入

利子補給制度 なし
補助/助成金制度 なし

増築・改築・改修

利子補給制度 なし
補助/助成金制度 あり
上限金額
35万円
備考
【既存住宅耐震診断料・耐震改修工事費補助金交】1981年5月31日以前に着工された戸建専用住宅および戸建兼用住宅の診断に要した費用の2/3、補助限度額5万円(共同住宅および長屋住宅向け補助もあり)。1981年5月31日以前に着工された戸建専用住宅および戸建兼用住宅の改修に要した費用の23%、補助限度額30万円(共同住宅および長屋住宅向け補助もあり)。
暮らしデータ提供元:生活ガイド.com
※行政機関により公表していない地域及びデータがございます。東京23区以外の政令指定都市は、市全体のデータとして表示しています。
※提供データには細心の注意を払っておりますが、調査後に変更がある場合があります。 最新の情報につきましては各市区役所までお問い合わせいただくか、自治体HPなどをご確認ください。

この物件を見た人はこんな物件も見ています

OCN×ドコモ光新規お申込みで合計最大137,280円相当おトク!特典の内訳・適用条件など詳細はこちら

ふじみ野市内の各駅の住みやすさ

住宅ローンの返済額一覧

物件価格 4280万円に対して、年率 で、頭金 の場合
↓ボーナス 35年間 30年間 25年間 20年間 15年間 10年間
0万円 98,123円/月 113,093円/月 134,065円/月 165,539円/月 218,017円/月 323,006円/月
5万円 89,037円/月 104,117円/月 125,198円/月 156,780円/月 209,365円/月 314,461円/月
10万円 79,952円/月 95,142円/月 116,331円/月 148,021円/月 200,714円/月 305,915円/月
15万円 70,866円/月 86,166円/月 107,464円/月 139,262円/月 192,062円/月 297,370円/月
20万円 61,781円/月 77,190円/月 98,598円/月 130,504円/月 183,411円/月 288,825円/月
25万円 52,695円/月 68,215円/月 89,731円/月 121,745円/月 174,759円/月 280,280円/月
30万円 ローン不可 59,239円/月 80,864円/月 112,986円/月 166,108円/月 271,735円/月
支払い利息合計 3,429,580円~ 2,932,200円~ 2,434,900円~ 1,941,600円~ 1,452,390円~ 966,940円~
※元利均等返済方式で試算しています。 「円」の単位以下の端数金額は「切り捨て」として計算しております。
※金利は、固定金利として計算しております。
※上記の住宅ローン返済額一覧は、あくまで試算であり、将来の金利動向により、実際のご返済額とは異なります。
※ボーナス支払総額が総支払額の50%を超えている場合、上記の表では「ローン不可」となります。
※住宅ローン返済額一覧の数値は、住宅ローンのお申し込みやご融資をお約束するものではございません。
物件を見たい、物件や住環境の詳しい情報やローン相談など、
お問い合わせ先
三井のリハウスふじみ野センター三井不動産リアルティ(株)

掲載情報の著作権は提供元企業等に帰属します。
Copyright:(C) 2025 Recruit Co., Ltd.
アプリで簡単 物件探し 大手不動産サイトの情報から一括検!プッシュ通知で物件を見逃さない
App Storeからダウンロード Google Playで手に入れよう QRコード