アプリで簡単 物件探し 通知 共有 アプリならではの機能を使ってみる
中古住宅

埼玉県新座市野火止8 新座駅 中古一戸建て・中古住宅

情報提供元
SUUMO
埼玉県新座市野火止8 新座駅 中古一戸建て・中古住宅
価格 3280万円
交通
所在地 埼玉県新座市野火止8周辺地図
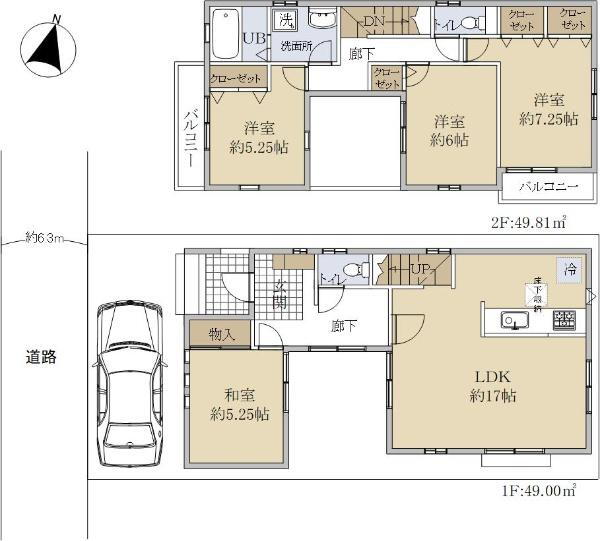
間取り 4LDK
建物面積 98.81m2(29.88坪) 土地面積 100.07m2(30.27坪)(登記)
築年月 2007年6月 築年数 築18年5ヶ月
おすすめポイント
《物件情報》◎築年月:2007年6月◎土地面積:100.07㎡◎延べ床面積:98.81㎡(1階49.00㎡ 2階49.81㎡)◎前面道路:約6.0m◎間取り:4LDK(和室有)+トイレ各階有◎用途地域:第一種住居地域◎建蔽率/容積率:60/200%◎TES床暖房あり◎リフォーム内容 ◆外壁・屋根塗装補修(2017年8月実施) ◆IHコンロ設置・電化給湯器交換(2022年8月実施) ◆太陽光発電ひまわり設置(2011年3月設置) ◆太陽光発電設置(2009年10月設置) ◆食洗器設置(2022年6月設置)
整形地
お問い合わせ先
住友不動産ステップ(株)志木営業センター
物件を見たい、物件や住環境の詳しい情報やローン相談など、
お問い合わせ先
住友不動産ステップ(株)志木営業センター

詳細情報

価格 3280万円
所在地 埼玉県新座市野火止8周辺地図
交通
間取り 4LDK 築年月(築年数) 2007年6月(築18年5ヶ月)
建物面積 98.81m2(29.88坪) 建物構造・規模 木造2階建
土地面積 100.07m2(30.27坪)(登記) 土地権利 所有権
私道面積 借地期間・地代
接道状況 北西6m接面7.1m 駐車場
用途地域 1種住居 都市計画
建ぺい率/容積率 60%/200% 現況
地目 引渡可能時期 相談
情報提供元 SUUMO [030Z78275890] 情報公開日
情報更新日 次回更新予定日 随時

設備など

1種低層地域 - 即入居可 - 売主・代理 -
駐車2台以上 - 平屋 - 本下水 -
都市ガス カウンターキッチン - 床暖房 -
ウォークインクローゼット - バリアフリー -
設備 トイレ・温水洗浄便座・システムキッチン・トイレ2ヶ所・IHクッキングヒータ・食器洗浄乾燥機・都市ガス・リフォーム・太陽光システム
リフォーム履歴 2017年8月完了
 その他リフォーム:外壁・屋根
※年月は一番古いリフォーム箇所を表します
リノベーション履歴 -
備考 <物件名>野火止8(新座駅) 3280万円/<土地権利>所有権/<間取り>4LDK/<リフォーム>●リフォーム:2017年8月完了(その他リフォーム:外壁・屋根)※年月は一番古いリフォーム箇所を表します/<その他制限事項>約46.9㎡は高圧線下。/<特徴>◆2007年築◆◇木造2階建◇◆第一種住居地域の閑静な住宅街◆、太陽光発電システム・スーパー 徒歩10分以内・システムキッチン・LDK15畳以上・整形地
販売戸数:1戸
法令等制限:地勢:平坦/駐車場有り/土地100.07㎡。ただし、約46.9㎡は高圧線下/カースペース1台分(車種による)/☆土地100.07㎡。ただし
特記事項 整形地

省エネ性能

エネルギー消費性能 -
断熱性能 -
目安光熱費 -

埼玉県新座市野火止8 周辺地図情報

地図
※地図上に表示される物件の位置は付近住所に所在することを表すものであり、実際の物件所在地とは異なる場合がございます。
   正確な物件所在地は、取扱い不動産会社にお問い合わせください。
物件を見たい、物件や住環境の詳しい情報やローン相談など、
お問い合わせ先
住友不動産ステップ(株)志木営業センター

不動産会社情報

お問い合わせ先 商号:住友不動産ステップ(株)志木営業センター
免許番号:国土交通大臣(13)第002077号
所在地:埼玉県新座市東北2-36-27 志木駅前新座ビル4階
TEL:0120-474066
取引態様:専任媒介
管理コード:15352017
共有する
QRコード
物件を見たい、物件や住環境の詳しい情報やローン相談など、
お問い合わせ先
住友不動産ステップ(株)志木営業センター

新座市の暮らしデータ

人口などの統計情報

世帯数 73634世帯
人口総数 166036人
転入者数 8673人
転入率(人口1000人当たり)
52.24人
転出者数 7379人
転出率(人口1000人当たり)
44.44人
土地平均価格
住宅地
200273円/m2
商業地
750000円/m2

結婚・育児の助成金

子育て関連の独自の取り組み (1)子育て支援ホームヘルパー派遣事業(出産直後の母親のうち、家族や親戚等からの家事援助が得られない方に対し、退院日を含めて30日以内でホームヘルパーを派遣して家事援助を行う。多胎児を養育する場合は、当該多胎児の出生直後の退院の日から起算して1年以内で、加えて20日を限度とする)。(2)新座市子どもの放課後居場所づくり事業[ココフレンド](小学校施設を活用し、地域の方々の協力を得ながら、子どもたちが放課後等に安全・安心に集える居場所づくりを行う)。(3)新座っ子ぱわーあっぷくらぶ(土曜日の学習・文化・スポーツ・体験活動の場として、安全・安心な活動ができる居場所を提供し、地域のボランティアを活用することで、地域教育力の活性化を図る)。
出産祝い なし
公立保育所数 6所(うち0歳児保育を実施している保育所:6所)
私立保育所数 31所(うち0歳児保育を実施している保育所:28所)
保育所入所待機児童数 8人
認定こども園数 1園 預かり保育実施園数 公立:- 私立:10園
学校給食 【小学校】完全給食【中学校】完全給食
公立中学校の学校選択制 未実施
子ども・学生等医療費助成<通院>対象年齢 18歳3月末まで 子ども・学生等医療費助成<入院>対象年齢 18歳3月末まで

新座市の治安・ごみ収集情報

公共料金・インフラ

ガス料金(22m3使用した場合の月額) 東京瓦斯株式会社(東京地区等)3926円
大東ガス株式会社4335円
水道料金(口径20mmで20m3の月額) 新座市2365円
下水道料金(20m3を使用した場合の月額) 新座市1639円
下水道普及率 97.4%

安心・安全

建物火災出火件数 19件
人口10000人当たり
1.14件
刑法犯認知件数 915件
人口1000人当たり
5.51件
ハザード・防災マップ あり

医療

一般病院総数 6ヶ所
一般診療所総数 71ヶ所
小児科医師数 18人
小児人口10000人当たり
8.90人
産婦人科医師数 3人
15~49歳女性人口1万人当たり
0.92人
介護保険料基準額(月額) 6139円

ごみ

家庭ごみ収集(可燃ごみ) 無料
備考
-
家庭ごみの分別方式 4分別14種〔可燃ごみ 不燃ごみ リサイクル資源(カン、ビン、ペットボトル、資源プラスチック、新聞、雑誌・雑がみ、段ボール、紙パック、布類) 有害ごみ(乾電池、使い捨てライター、蛍光灯)〕 拠点回収:廃食用油 小型充電式電池 インクカートリッジ アルミ付紙パック
家庭ごみの戸別収集 一部実施(【ふれあい収集】ごみ出しが困難であり、要介護認定を受けているか障がい者手帳をお持ちの方のみで構成される世帯が対象)
粗大ごみ収集 あり
備考
有料。事前申込制。市ホームページから電子申請も可能。
生ごみ処理機助成金制度 あり
上限金額
20000円
上限比率
50.0%

新座市の住まいの給付金

中古購入

利子補給制度 なし
補助/助成金制度 なし

増築・改築・改修

利子補給制度 なし
補助/助成金制度 あり
上限金額
(1)10万円(2)80万円
備考
(1)【既存木造住宅耐震診断助成金制度】1981年5月31日以前に着工の木造二階建以下の住宅を耐震診断に助成。上限10万円。(2)【既存木造住宅耐震改修等助成金制度】1981年5月31日以前に着工された木造二階建て以下の住宅で、倒壊する可能性がある建物に助成。上限80万円。
暮らしデータ提供元:生活ガイド.com
※行政機関により公表していない地域及びデータがございます。東京23区以外の政令指定都市は、市全体のデータとして表示しています。
※提供データには細心の注意を払っておりますが、調査後に変更がある場合があります。 最新の情報につきましては各市区役所までお問い合わせいただくか、自治体HPなどをご確認ください。

この物件を見た人はこんな物件も見ています

OCN×ドコモ光新規お申込みで合計最大137,280円相当おトク!特典の内訳・適用条件など詳細はこちら

新座市内の各駅の住みやすさ

住宅ローンの返済額一覧

物件価格 3280万円に対して、年率 で、頭金 の場合
↓ボーナス 35年間 30年間 25年間 20年間 15年間 10年間
0万円 72,164円/月 83,174円/月 98,598円/月 121,745円/月 160,340円/月 237,554円/月
5万円 63,079円/月 74,198円/月 89,731円/月 112,986円/月 151,689円/月 229,009円/月
10万円 53,993円/月 65,223円/月 80,864円/月 104,228円/月 143,037円/月 220,464円/月
15万円 44,908円/月 56,247円/月 71,997円/月 95,469円/月 134,386円/月 211,919円/月
20万円 ローン不可 47,271円/月 63,131円/月 86,710円/月 125,734円/月 203,374円/月
25万円 ローン不可 ローン不可 54,264円/月 77,952円/月 117,083円/月 194,829円/月
30万円 ローン不可 ローン不可 ローン不可 69,193円/月 108,431円/月 186,284円/月
支払い利息合計 2,519,940円~ 2,155,000円~ 1,792,300円~ 1,431,280円~ 1,070,530円~ 712,820円~
※元利均等返済方式で試算しています。 「円」の単位以下の端数金額は「切り捨て」として計算しております。
※金利は、固定金利として計算しております。
※上記の住宅ローン返済額一覧は、あくまで試算であり、将来の金利動向により、実際のご返済額とは異なります。
※ボーナス支払総額が総支払額の50%を超えている場合、上記の表では「ローン不可」となります。
※住宅ローン返済額一覧の数値は、住宅ローンのお申し込みやご融資をお約束するものではございません。
物件を見たい、物件や住環境の詳しい情報やローン相談など、
お問い合わせ先
住友不動産ステップ(株)志木営業センター

掲載情報の著作権は提供元企業等に帰属します。
Copyright:(C) 2025 Recruit Co., Ltd.
アプリで簡単 物件探し 大手不動産サイトの情報から一括検!プッシュ通知で物件を見逃さない
App Storeからダウンロード Google Playで手に入れよう QRコード