アプリで簡単 物件探し 通知 共有 アプリならではの機能を使ってみる
中古住宅

埼玉県越谷市大字袋山 大袋駅 中古一戸建て・中古住宅

情報提供元
SUUMO
埼玉県越谷市大字袋山 大袋駅 中古一戸建て・中古住宅
価格 2380万円
交通
所在地 埼玉県越谷市大字袋山周辺地図
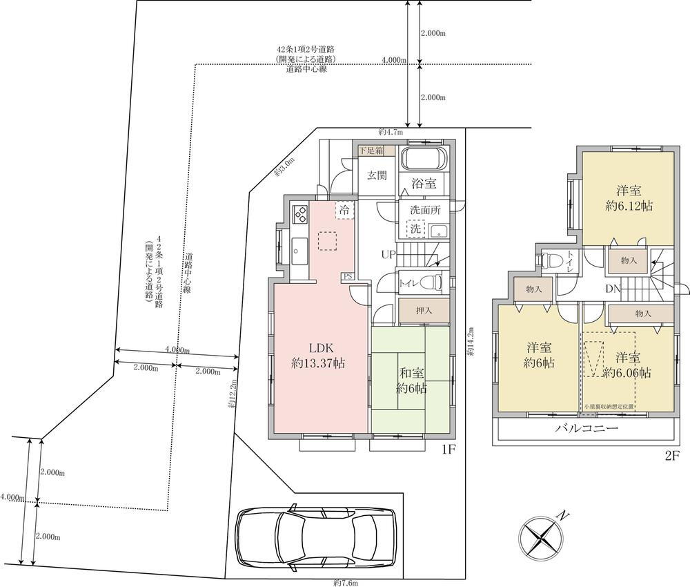
間取り 4LDK
建物面積 91.08m2(登記) 土地面積 101.23m2(登記)
築年月 2006年5月 築年数 築19年6ヶ月
おすすめポイント
◇4LDK・カースペース1台◇南西・北西角地につき陽当り、通風良好です!◇都市ガス・本下水利用◇室内大変きれいにお使いです!◇小さいお子さまの通学も安心、大袋東小学校徒歩3分(220m)◇買物便利な住環境(ジョイフーズ450m/セブンイレブン500m)※未利用地持分あり※引渡日については柔軟に相談可※境界非明示※契約不適合責任免責
日当り良好・角地
お問い合わせ先
(株)中央住宅ポラス住まいの情報館千間台営業所
物件を見たい、物件や住環境の詳しい情報やローン相談など、
お問い合わせ先
(株)中央住宅ポラス住まいの情報館千間台営業所

詳細情報

価格 2380万円
所在地 埼玉県越谷市大字袋山周辺地図
交通
間取り 4LDK 築年月(築年数) 2006年5月(築19年6ヶ月)
建物面積 91.08m2(登記) 建物構造・規模 木造2階建
土地面積 101.23m2(登記) 土地権利 所有権
私道面積 借地期間・地代
接道状況 南西4m接面12.2m 北西4m接面4.7m 二方道路 駐車場
用途地域 1種中高 都市計画
建ぺい率/容積率 70%/160% 現況
地目 引渡可能時期 2026年6月
情報提供元 SUUMO [030Z78543418] 情報公開日
情報更新日 次回更新予定日 随時

設備など

1種低層地域 - 即入居可 - 売主・代理 -
駐車2台以上 - 平屋 - 本下水
都市ガス カウンターキッチン - 床暖房 -
ウォークインクローゼット - バリアフリー -
設備 収納スペース・都市ガス・システムキッチン・風呂・庭・トイレ2ヶ所・上水道・本下水
リフォーム履歴 -
リノベーション履歴 -
備考 <物件名>大字袋山(大袋駅) 2380万円/<駐車場>カースペース/<土地権利>所有権/<間取り>4LDK/<特徴>【ポラスの仲介】「大袋駅」徒歩12分/2006年5月築/旧大型分譲地内!、スーパー 徒歩10分以内・システムキッチン・陽当り良好・全居室収納・角地
販売戸数:1戸
法令等制限:建築基準法第22条区域
特記事項 日当り良好・角地

省エネ性能

エネルギー消費性能 -
断熱性能 -
目安光熱費 -

埼玉県越谷市大字袋山 周辺地図情報

地図
※地図上に表示される物件の位置は付近住所に所在することを表すものであり、実際の物件所在地とは異なる場合がございます。
   正確な物件所在地は、取扱い不動産会社にお問い合わせください。
物件を見たい、物件や住環境の詳しい情報やローン相談など、
お問い合わせ先
(株)中央住宅ポラス住まいの情報館千間台営業所

不動産会社情報

お問い合わせ先 商号:(株)中央住宅ポラス住まいの情報館千間台営業所
免許番号:国土交通大臣(13)第002401号
所在地:埼玉県越谷市千間台東1-8-29
TEL:0120-411057
取引態様:専任媒介
管理コード:TSG005108
共有する
QRコード
物件を見たい、物件や住環境の詳しい情報やローン相談など、
お問い合わせ先
(株)中央住宅ポラス住まいの情報館千間台営業所

越谷市の暮らしデータ

人口などの統計情報

世帯数 142590世帯
人口総数 343062人
転入者数 13809人
転入率(人口1000人当たり)
40.25人
転出者数 12936人
転出率(人口1000人当たり)
37.71人
土地平均価格
住宅地
142558円/m2
商業地
323143円/m2

結婚・育児の助成金

子育て関連の独自の取り組み こしがや「プラス保育」幼稚園事業(保育施設希望者にやさしい長時間預かり保育を行う私立幼稚園と認定こども園[教育部分]をこしがや「プラス保育」幼稚園と認定。「プラス保育枠」[保育所等の条件を満たす就労・就学等の方が利用できる。園ごとに定員あり]として利用する場合、8時~18時の預かり保育を原則無料で行う)。
出産祝い なし
公立保育所数 18所(うち0歳児保育を実施している保育所:14所)
私立保育所数 21所(うち0歳児保育を実施している保育所:19所)
保育所入所待機児童数 4人
認定こども園数 10園 預かり保育実施園数 公立:- 私立:19園
学校給食 【小学校】完全給食【中学校】完全給食
公立中学校の学校選択制 一部実施(1年生のみ)
子ども・学生等医療費助成<通院>対象年齢 18歳3月末まで 子ども・学生等医療費助成<入院>対象年齢 18歳3月末まで

越谷市の治安・ごみ収集情報

公共料金・インフラ

ガス料金(22m3使用した場合の月額) 東京瓦斯株式会社(東京地区等)3926円
東彩ガス株式会社(越谷・春日部地区)4893円
水道料金(口径20mmで20m3の月額) 越谷・松伏水道企業団2805円
下水道料金(20m3を使用した場合の月額) 越谷市2574円
下水道普及率 84.3%

安心・安全

建物火災出火件数 50件
人口10000人当たり
1.46件
刑法犯認知件数 2772件
人口1000人当たり
8.11件
ハザード・防災マップ あり

医療

一般病院総数 12ヶ所
一般診療所総数 200ヶ所
小児科医師数 73人
小児人口10000人当たり
17.66人
産婦人科医師数 39人
15~49歳女性人口1万人当たり
5.67人
介護保険料基準額(月額) 6000円

ごみ

家庭ごみ収集(可燃ごみ) 無料
備考
-
家庭ごみの分別方式 10分別14区別〔可燃ごみ 不燃ごみ 古紙類(新聞紙、雑誌、段ボール、雑紙、紙パック) ペットボトル 缶 びん 古着類 危険ごみ 白色トレイ せん定枝・刈草〕
家庭ごみの戸別収集 一部実施(【ふれあい収集】ごみ集積所に排出することが困難な高齢者のみの世帯・障がい者のみの世帯に対し戸別収集を行う)
粗大ごみ収集 あり
備考
有料。戸別収集。事前申込制。一辺の長さが50cm以上または、重量が10kg以上のものが粗大ごみ。
生ごみ処理機助成金制度 なし
上限金額
-
上限比率
-

越谷市の住まいの給付金

中古購入

利子補給制度 なし
補助/助成金制度 なし

増築・改築・改修

利子補給制度 なし
補助/助成金制度 あり
上限金額
(1)7万円(2)50万円(3)10万円
備考
(1)【既存建築物耐震診断補助金】2000年5月31日以前の耐震基準に基づき建築された2階建て以下の木造一戸建て住宅で、市の簡易耐震診断による総合評価が1.0未満であること。診断費用の2/3に相当する額かつ7万円を上限として助成。(2)【既存建築物耐震改修補助金】(1)と同じ木造一戸建て住宅で、一般耐震診断による安全性の総合評価が1.0未満であること。工事費用の23%に相当する額かつ50万円(1981年6月1日から2000年5月31日までの耐震基準に基づき建築されたものは30万円)を上限として助成。(3)【住宅・店舗改修促進補助金】市内の施工業者を利用し、機能の維持、向上等のために住宅・店舗の改修工事を行う場合に、その工事費の一部を助成。補助対象経費の20%(上限10万円)。他要件あり。
暮らしデータ提供元:生活ガイド.com
※行政機関により公表していない地域及びデータがございます。東京23区以外の政令指定都市は、市全体のデータとして表示しています。
※提供データには細心の注意を払っておりますが、調査後に変更がある場合があります。 最新の情報につきましては各市区役所までお問い合わせいただくか、自治体HPなどをご確認ください。

この物件を見た人はこんな物件も見ています

OCN×ドコモ光新規お申込みで合計最大137,280円相当おトク!特典の内訳・適用条件など詳細はこちら

越谷市内の各駅の住みやすさ

住宅ローンの返済額一覧

物件価格 2380万円に対して、年率 で、頭金 の場合
↓ボーナス 35年間 30年間 25年間 20年間 15年間 10年間
0万円 48,802円/月 56,247円/月 66,677円/月 82,331円/月 108,431円/月 160,648円/月
5万円 39,716円/月 47,271円/月 57,811円/月 73,572円/月 99,780円/月 152,103円/月
10万円 30,631円/月 38,296円/月 48,944円/月 64,814円/月 91,128円/月 143,558円/月
15万円 ローン不可 29,320円/月 40,077円/月 56,055円/月 82,477円/月 135,013円/月
20万円 ローン不可 ローン不可 ローン不可 47,296円/月 73,825円/月 126,468円/月
25万円 ローン不可 ローン不可 ローン不可 ローン不可 65,174円/月 117,922円/月
30万円 ローン不可 ローン不可 ローン不可 ローン不可 56,522円/月 109,377円/月
支払い利息合計 1,704,050円~ 1,458,280円~ 1,210,950円~ 967,680円~ 726,910円~ 483,980円~
※元利均等返済方式で試算しています。 「円」の単位以下の端数金額は「切り捨て」として計算しております。
※金利は、固定金利として計算しております。
※上記の住宅ローン返済額一覧は、あくまで試算であり、将来の金利動向により、実際のご返済額とは異なります。
※ボーナス支払総額が総支払額の50%を超えている場合、上記の表では「ローン不可」となります。
※住宅ローン返済額一覧の数値は、住宅ローンのお申し込みやご融資をお約束するものではございません。
物件を見たい、物件や住環境の詳しい情報やローン相談など、
お問い合わせ先
(株)中央住宅ポラス住まいの情報館千間台営業所

掲載情報の著作権は提供元企業等に帰属します。
Copyright:(C) 2025 Recruit Co., Ltd.
アプリで簡単 物件探し 大手不動産サイトの情報から一括検!プッシュ通知で物件を見逃さない
App Storeからダウンロード Google Playで手に入れよう QRコード