アプリで簡単 物件探し 通知 共有 アプリならではの機能を使ってみる
中古住宅

群馬県邑楽郡大泉町西小泉4 西小泉駅 中古一戸建て・中古住宅

情報提供元
SUUMO
群馬県邑楽郡大泉町西小泉4 西小泉駅 中古一戸建て・中古住宅
価格 1899万円
交通
所在地 群馬県邑楽郡大泉町西小泉4周辺地図
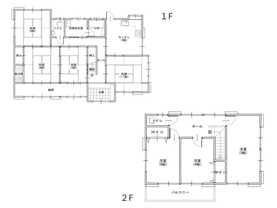
間取り 7DK
建物面積 153.75m2(46.50坪)(登記) 土地面積 465.72m2(140.87坪)(登記)
築年月 2000年3月 築年数 築25年8ヶ月
おすすめポイント
*--------------------*▼おすすめポイント・住環境充実で子育て世代にもおすすめ・周辺環境◎スーパー、コンビニ、ドラッグストアまで徒歩10分圏内!・140坪の広々とした土地◎・閑静な住宅街で安心▼周辺環境・大泉町立北小学校(約400m)・大泉町立北中学校(約500m)・セブンイレブン大泉中央店(約800m)・ドラッグセイムス西小泉店(約350m)*-------------------*▼本日ご見学可能「今から見たい!」「お一人でも安心」お気軽にお問い合わせ♪住宅ローンのご相談も随時お任せください!
日当り良好・閑静な住宅街
お問い合わせ先
はなまるハウス(株)太田営業所
物件を見たい、物件や住環境の詳しい情報やローン相談など、
お問い合わせ先
はなまるハウス(株)太田営業所

詳細情報

価格 1899万円
所在地 群馬県邑楽郡大泉町西小泉4周辺地図
交通
間取り 7DK 築年月(築年数) 2000年3月(築25年8ヶ月)
建物面積 153.75m2(46.50坪)(登記) 建物構造・規模 木造2階建
土地面積 465.72m2(140.87坪)(登記) 土地権利 所有権
私道面積 借地期間・地代
接道状況 西6.1m 南6.1m 駐車場
用途地域 1種住居 都市計画
建ぺい率/容積率 60%/200% 現況
地目 引渡可能時期 相談
情報提供元 SUUMO [030Z78486758] 情報公開日
情報更新日 次回更新予定日 随時

設備など

1種低層地域 - 即入居可 - 売主・代理
駐車2台以上 - 平屋 - 本下水
都市ガス - カウンターキッチン - 床暖房 -
ウォークインクローゼット - バリアフリー -
設備 風呂・LPガス・上水道・本下水
リフォーム履歴 -
リノベーション履歴 -
備考 <物件名>西小泉4(西小泉駅) 1899万円/<駐車場>車庫/<土地権利>所有権/<間取り>7DK/<特徴>\現況販売中/小中学校まで徒歩約5分圏内|敷地内駐車6台分以上可能!、土地50坪以上・陽当り良好・閑静な住宅地・前道6m以上・和室
販売戸数:1戸
特記事項 日当り良好・閑静な住宅街

省エネ性能

エネルギー消費性能 -
断熱性能 -
目安光熱費 -

群馬県邑楽郡大泉町西小泉4 周辺地図情報

地図
※地図上に表示される物件の位置は付近住所に所在することを表すものであり、実際の物件所在地とは異なる場合がございます。
   正確な物件所在地は、取扱い不動産会社にお問い合わせください。
物件を見たい、物件や住環境の詳しい情報やローン相談など、
お問い合わせ先
はなまるハウス(株)太田営業所

不動産会社情報

お問い合わせ先 商号:はなまるハウス(株)太田営業所
免許番号:国土交通大臣(2)第009300号
所在地:群馬県太田市内ケ島町2005-2
TEL:0120-176151
取引態様:売主
管理コード:10301320
共有する
QRコード
物件を見たい、物件や住環境の詳しい情報やローン相談など、
お問い合わせ先
はなまるハウス(株)太田営業所

この物件を見た人はこんな物件も見ています

OCN×ドコモ光新規お申込みで合計最大137,280円相当おトク!特典の内訳・適用条件など詳細はこちら

邑楽郡大泉町内の各駅の住みやすさ

他のエリアから探す

邑楽郡大泉町の詳細地域から一戸建て物件を探す

朝日大字古海大字坂田大字吉田大字寄木戸坂田住吉西小泉東小泉

近辺の市区から探す

足利市太田市館林市邑楽郡明和町邑楽郡千代田町邑楽郡邑楽町熊谷市行田市深谷市

周辺の駅から探す

東武鉄道小泉線
東小泉竜舞太田小泉町西小泉

群馬県邑楽郡大泉町で他のジャンルから探す

住宅ローンの返済額一覧

物件価格 1899万円に対して、年率 で、頭金 の場合
↓ボーナス 35年間 30年間 25年間 20年間 15年間 10年間
0万円 36,315円/月 41,856円/月 49,618円/月 61,266円/月 80,689円/月 119,546円/月
5万円 27,230円/月 32,880円/月 40,751円/月 52,508円/月 72,037円/月 111,001円/月
10万円 ローン不可 23,905円/月 31,884円/月 43,749円/月 63,386円/月 102,456円/月
15万円 ローン不可 ローン不可 ローン不可 34,990円/月 54,734円/月 93,911円/月
20万円 ローン不可 ローン不可 ローン不可 ローン不可 46,083円/月 85,365円/月
25万円 ローン不可 ローン不可 ローン不可 ローン不可 ローン不可 76,820円/月
30万円 ローン不可 ローン不可 ローン不可 ローン不可 ローン不可 68,275円/月
支払い利息合計 1,266,080円~ 1,084,520円~ 900,400円~ 720,080円~ 540,230円~ 361,740円~
※元利均等返済方式で試算しています。 「円」の単位以下の端数金額は「切り捨て」として計算しております。
※金利は、固定金利として計算しております。
※上記の住宅ローン返済額一覧は、あくまで試算であり、将来の金利動向により、実際のご返済額とは異なります。
※ボーナス支払総額が総支払額の50%を超えている場合、上記の表では「ローン不可」となります。
※住宅ローン返済額一覧の数値は、住宅ローンのお申し込みやご融資をお約束するものではございません。
物件を見たい、物件や住環境の詳しい情報やローン相談など、
お問い合わせ先
はなまるハウス(株)太田営業所

掲載情報の著作権は提供元企業等に帰属します。
Copyright:(C) 2025 Recruit Co., Ltd.
アプリで簡単 物件探し 大手不動産サイトの情報から一括検!プッシュ通知で物件を見逃さない
App Storeからダウンロード Google Playで手に入れよう QRコード