アプリで簡単 物件探し 通知 共有 アプリならではの機能を使ってみる
中古住宅

群馬県太田市新田木崎町 木崎駅 中古一戸建て・中古住宅

情報提供元
SUUMO
群馬県太田市新田木崎町 木崎駅 中古一戸建て・中古住宅
価格 799万円
交通
所在地 群馬県太田市新田木崎町周辺地図
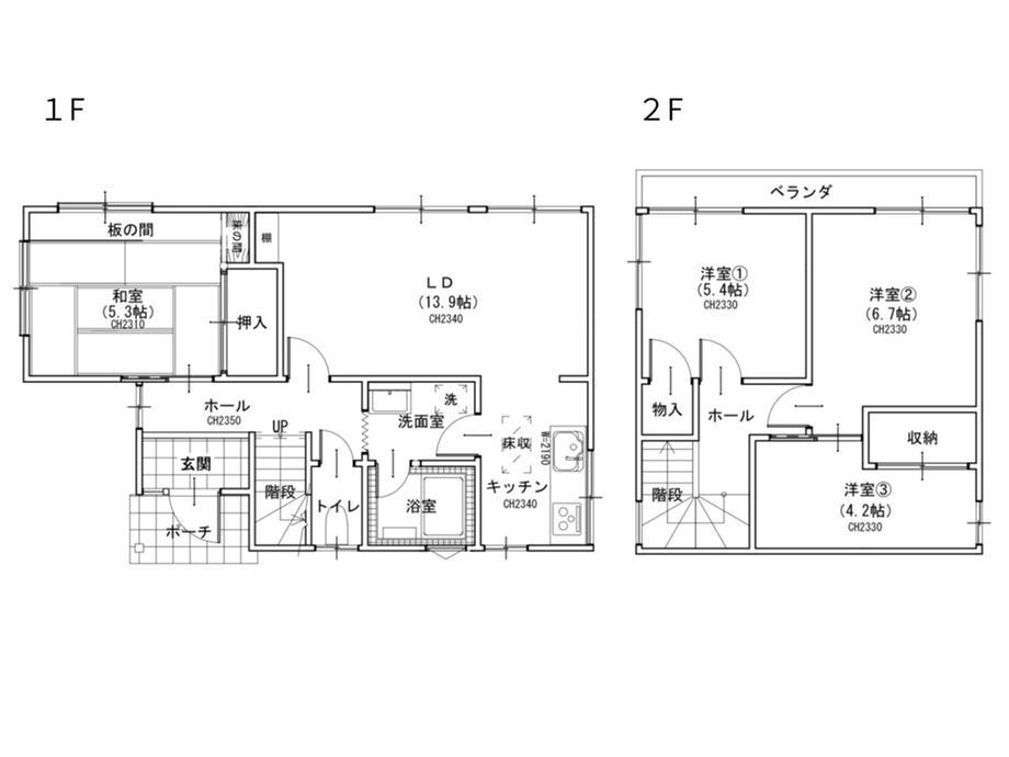
間取り 3SLDK
建物面積 89.68m2(27.12坪) 土地面積 256.97m2(77.73坪)(登記)
築年月 1981年7月 築年数 築44年4ヶ月
おすすめポイント
*---------------------------------*▼おすすめポイント・住環境充実で子育て世代にもおすすめ・敷地内駐車2台可能!・閑静な住宅街で安心▼周辺環境・木崎小学校(約1300m)・木崎中学校(約950m)・ローソン太田泉町店(約850m)・とりせん下田島店(約1500m)*--------------------------------*▼本日ご見学可能「今から見たい!」「お一人でも安心」お気軽にお問い合わせ♪住宅ローンのご相談も随時お任せください!
日当り良好・閑静な住宅街
お問い合わせ先
はなまるハウス(株)太田営業所
物件を見たい、物件や住環境の詳しい情報やローン相談など、
お問い合わせ先
はなまるハウス(株)太田営業所

詳細情報

価格 799万円
所在地 群馬県太田市新田木崎町周辺地図
交通
間取り 3SLDK 築年月(築年数) 1981年7月(築44年4ヶ月)
建物面積 89.68m2(27.12坪) 建物構造・規模 軽量鉄骨2階建
土地面積 256.97m2(77.73坪)(登記) 土地権利 所有権
私道面積 借地期間・地代
接道状況 北東4m 駐車場
用途地域 1種住居 都市計画
建ぺい率/容積率 60%/200% 現況
地目 引渡可能時期 相談
情報提供元 SUUMO [030Z78511246] 情報公開日
情報更新日 次回更新予定日 随時

設備など

1種低層地域 - 即入居可 - 売主・代理
駐車2台以上 - 平屋 - 本下水 -
都市ガス - カウンターキッチン - 床暖房 -
ウォークインクローゼット - バリアフリー -
設備 収納スペース・風呂・LPガス・床下収納・上水道・浄化槽
リフォーム履歴 -
リノベーション履歴 -
備考 <物件名>新田木崎町(木崎駅) 799万円/<駐車場>車庫/<土地権利>所有権/<間取り>3LDK+S(納戸)/<特徴>\現況販売中!/セキスイハイム施工!周辺環境◎木崎駅まで徒歩約8分!、土地50坪以上・陽当り良好・閑静な住宅地・2階建・床下収納
販売戸数:1戸
特記事項 日当り良好・閑静な住宅街

省エネ性能

エネルギー消費性能 -
断熱性能 -
目安光熱費 -

群馬県太田市新田木崎町 周辺地図情報

地図
※地図上に表示される物件の位置は付近住所に所在することを表すものであり、実際の物件所在地とは異なる場合がございます。
   正確な物件所在地は、取扱い不動産会社にお問い合わせください。
物件を見たい、物件や住環境の詳しい情報やローン相談など、
お問い合わせ先
はなまるハウス(株)太田営業所

不動産会社情報

お問い合わせ先 商号:はなまるハウス(株)太田営業所
免許番号:国土交通大臣(2)第009300号
所在地:群馬県太田市内ケ島町2005-2
TEL:0120-176151
取引態様:売主
管理コード:10301360
共有する
QRコード
物件を見たい、物件や住環境の詳しい情報やローン相談など、
お問い合わせ先
はなまるハウス(株)太田営業所

太田市の暮らしデータ

人口などの統計情報

世帯数 92346世帯
人口総数 222518人
転入者数 10357人
転入率(人口1000人当たり)
46.54人
転出者数 8416人
転出率(人口1000人当たり)
37.82人
土地平均価格
住宅地
36957円/m2
商業地
63064円/m2

結婚・育児の助成金

子育て関連の独自の取り組み (1)給食費無料化事業。(2)保育園等利用児童おむつ給付事業。(3)こどもプラッツ推進事業。(4)子育て世帯ベーシックサービス事業。(5)インフルエンザ予防接種費用一部助成事業(中学校3年生・高校3年生)。(6)英検及び漢検・3級受験料半額助成(中学生)。(7)子育て短期支援事業(ショートステイ事業・トワイライトステイ事業)。(8)太田市奨学金免除制度。(9)第3子以降保育料免除(助成)事業。
出産祝い なし
公立保育所数 0所(うち0歳児保育を実施している保育所:-)
私立保育所数 20所(うち0歳児保育を実施している保育所:20所)
保育所入所待機児童数 0人
認定こども園数 40園 預かり保育実施園数 公立:1園 私立:2園
学校給食 【小学校】完全給食【中学校】完全給食 給食なし(太田中学校)
公立中学校の学校選択制 一部実施
子ども・学生等医療費助成<通院>対象年齢 18歳3月末まで 子ども・学生等医療費助成<入院>対象年齢 18歳3月末まで

太田市の治安・ごみ収集情報

公共料金・インフラ

ガス料金(22m3使用した場合の月額) 足利ガス株式会社4453円
桐生瓦斯株式会社4326円
太田都市ガス株式会社5111円
水道料金(口径20mmで20m3の月額) 群馬東部水道企業団3498円
下水道料金(20m3を使用した場合の月額) 太田市2530円
下水道普及率 50.4%

安心・安全

建物火災出火件数 56件
人口10000人当たり
2.51件
刑法犯認知件数 1882件
人口1000人当たり
8.44件
ハザード・防災マップ あり

医療

一般病院総数 9ヶ所
一般診療所総数 152ヶ所
小児科医師数 50人
小児人口10000人当たり
17.88人
産婦人科医師数 10人
15~49歳女性人口1万人当たり
2.37人
介護保険料基準額(月額) 5891円

ごみ

家庭ごみ収集(可燃ごみ) 有料
備考
指定ごみ袋有料。
家庭ごみの分別方式 4分別11種〔もえるごみ もえないごみ 危険ごみ 資源ごみ(カン、ビン[無色透明びん、茶色びん、その他の色びん]、白色トレイ、紙パック、ペットボトル、その他プラスチック)〕
家庭ごみの戸別収集 一部実施(ごみ出し困難高齢者調査支援事業)
粗大ごみ収集 あり
備考
有料。戸別収集。事前申込制。ステーション回収とリサイクルプラザへの直接搬入もあり、いずれかで排出。同一品目であっても収集方法で料金や収集可否が異なる。直接搬入の場合、現金精算のため粗大ごみ処理シールは不要。
生ごみ処理機助成金制度 あり
上限金額
50000円
上限比率
50.0%

太田市の住まいの給付金

中古購入

利子補給制度 なし
補助/助成金制度 なし

増築・改築・改修

利子補給制度 なし
補助/助成金制度 あり
上限金額
20万円
備考
【太田市住宅リフォーム補助金】10万円を超える住宅リフォーム工事に要する費用の一部を助成。費用の30%(上限20万円)。
暮らしデータ提供元:生活ガイド.com
※行政機関により公表していない地域及びデータがございます。東京23区以外の政令指定都市は、市全体のデータとして表示しています。
※提供データには細心の注意を払っておりますが、調査後に変更がある場合があります。 最新の情報につきましては各市区役所までお問い合わせいただくか、自治体HPなどをご確認ください。

この物件を見た人はこんな物件も見ています

OCN×ドコモ光新規お申込みで合計最大137,280円相当おトク!特典の内訳・適用条件など詳細はこちら

太田市内の各駅の住みやすさ

住宅ローンの返済額一覧

物件価格 799万円に対して、年率 で、頭金 の場合
↓ボーナス 35年間 30年間 25年間 20年間 15年間 10年間
0万円 7,761円/月 8,945円/月 10,604円/月 13,094円/月 17,245円/月 25,549円/月
5万円 ローン不可 ローン不可 ローン不可 ローン不可 ローン不可 17,004円/月
10万円 ローン不可 ローン不可 ローン不可 ローン不可 ローン不可 ローン不可
15万円 ローン不可 ローン不可 ローン不可 ローン不可 ローン不可 ローン不可
20万円 ローン不可 ローン不可 ローン不可 ローン不可 ローン不可 ローン不可
25万円 ローン不可 ローン不可 ローン不可 ローン不可 ローン不可 ローン不可
30万円 ローン不可 ローン不可 ローン不可 ローン不可 ローン不可 ローン不可
支払い利息合計 269,620円~ 230,200円~ 191,200円~ 152,560円~ 114,100円~ 76,920円~
※元利均等返済方式で試算しています。 「円」の単位以下の端数金額は「切り捨て」として計算しております。
※金利は、固定金利として計算しております。
※上記の住宅ローン返済額一覧は、あくまで試算であり、将来の金利動向により、実際のご返済額とは異なります。
※ボーナス支払総額が総支払額の50%を超えている場合、上記の表では「ローン不可」となります。
※住宅ローン返済額一覧の数値は、住宅ローンのお申し込みやご融資をお約束するものではございません。
物件を見たい、物件や住環境の詳しい情報やローン相談など、
お問い合わせ先
はなまるハウス(株)太田営業所

掲載情報の著作権は提供元企業等に帰属します。
Copyright:(C) 2025 Recruit Co., Ltd.
アプリで簡単 物件探し 大手不動産サイトの情報から一括検!プッシュ通知で物件を見逃さない
App Storeからダウンロード Google Playで手に入れよう QRコード