中古住宅
群馬県伊勢崎市富塚町 中古一戸建て・中古住宅
| 価格 |
1299万円
|
| 交通 |
|
| 所在地 |
群馬県伊勢崎市富塚町周辺地図
|
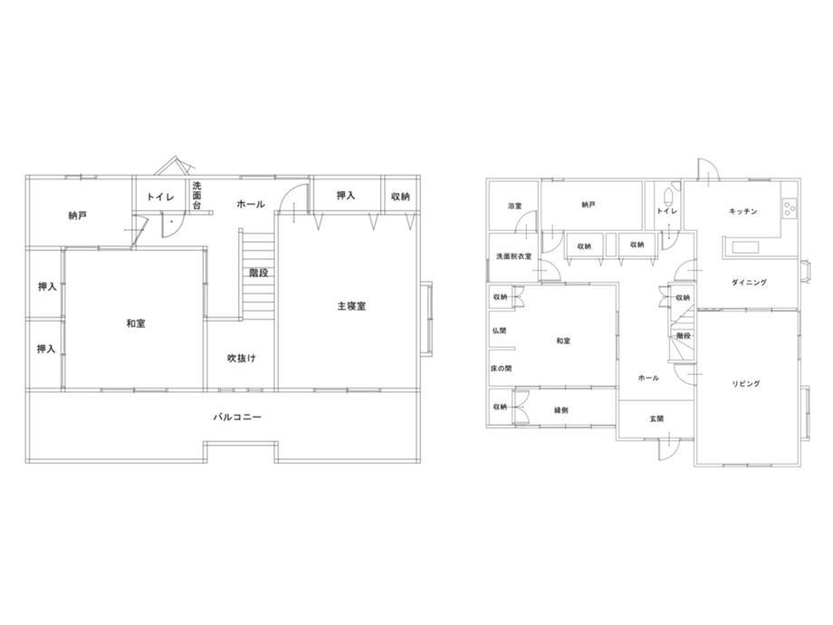
| 間取り |
4SLDK |
| 建物面積 |
152.45m2(46.11坪) |
土地面積 |
273.34m2(82.68坪)(登記) |
| 築年月 |
1995年3月 |
築年数 |
築30年9ヶ月 |
- おすすめポイント
- *---------------------------------*▼おすすめポイント・周辺環境◎・スーパー、コンビニ、ドラッグストアまで徒歩10分圏内!・日当たり良好!明るいお部屋・閑静な住宅街で安心・住環境充実で子育て世代にもおすすめ▼周辺環境・坂東小学校(約450m)・第四中中学校(約1000m)・フレッセイ富塚店(約650m)・クスリのアオキ伊勢崎富塚店(約430m)*----------------------------------*▼本日ご見学可能「今から見たい!」「お一人でも安心」お気軽にお問い合わせ♪住宅ローンのご相談も随時お任せください!
日当り良好・閑静な住宅街・整形地
物件を見たい、物件や住環境の詳しい情報やローン相談など、
- お問い合わせ先
- はなまるハウス(株)太田営業所
| 価格 |
1299万円 |
| 所在地 |
群馬県伊勢崎市富塚町周辺地図
|
| 交通 |
|
| 間取り |
4SLDK |
築年月(築年数) |
1995年3月(築30年9ヶ月) |
| 建物面積 |
152.45m2(46.11坪) |
建物構造・規模 |
木造2階建
|
| 土地面積 |
273.34m2(82.68坪)(登記) |
土地権利 |
所有権 |
| 私道面積 |
|
借地期間・地代 |
|
| 接道状況 |
東6m |
駐車場 |
|
| 用途地域 |
1種住居 |
都市計画 |
|
| 建ぺい率/容積率 |
60%/200% |
現況 |
|
| 地目 |
|
引渡可能時期 |
相談 |
| 情報提供元 |
SUUMO [030Z78438269] |
情報公開日 |
|
| 情報更新日 |
|
次回更新予定日 |
随時 |
設備など
| 1種低層地域 |
- |
即入居可 |
- |
売主・代理 |
○ |
| 駐車2台以上 |
- |
平屋 |
- |
本下水 |
○ |
| 都市ガス |
- |
カウンターキッチン |
- |
床暖房 |
- |
| ウォークインクローゼット |
- |
バリアフリー |
- |
|
|
| 設備 |
バルコニー・収納スペース・LPガス・対面K・上水道・本下水 |
| リフォーム履歴 |
- |
| リノベーション履歴 |
- |
| 備考 |
<物件名>富塚町 1299万円/<土地権利>所有権/<間取り>4LDK+S(納戸)/<特徴>\現況販売中/敷地内駐車2台分可能!高台で陽当たり良好!、土地50坪以上・陽当り良好・閑静な住宅地・前道6m以上・和室 販売戸数:1戸 |
| 特記事項 |
日当り良好・閑静な住宅街・整形地 |
群馬県伊勢崎市富塚町 周辺地図情報
※地図上に表示される物件の位置は付近住所に所在することを表すものであり、実際の物件所在地とは異なる場合がございます。
正確な物件所在地は、取扱い不動産会社にお問い合わせください。
物件を見たい、物件や住環境の詳しい情報やローン相談など、
- お問い合わせ先
- はなまるハウス(株)太田営業所
不動産会社情報
| お問い合わせ先 |
商号:はなまるハウス(株)太田営業所
免許番号:国土交通大臣(2)第009300号 所在地:群馬県太田市内ケ島町2005-2 TEL:0120-176151 取引態様:売主 管理コード:10301280 |
共有する |
|
物件を見たい、物件や住環境の詳しい情報やローン相談など、
- お問い合わせ先
- はなまるハウス(株)太田営業所
人口などの統計情報
| 世帯数 |
86014世帯 |
| 人口総数 |
212237人 |
| 転入者数 |
9709人
- 転入率(人口1000人当たり)
- 45.75人
|
| 転出者数 |
8184人
- 転出率(人口1000人当たり)
- 38.56人
|
| 土地平均価格 |
- 住宅地
- 33229円/m2
- 商業地
- 49650円/m2
|
結婚・育児の助成金
| 子育て関連の独自の取り組み |
(1)妊婦歯科健康診査。(2)伊勢崎市ワクチン&子育てナビ(予防接種スケジュール管理システムと子育て情報提供サービス)。(3)放課後児童クラブ(公設)利用者負担金減免。(4)放課後児童クラブ(民設)利用者負担金助成。(5)第3子以降の副食費助成。(6)市内保育所、保育園、幼稚園、認定こども園を巡回する5歳児健康診査を実施。(7)おたふくかぜ予防接種費用の一部助成。(8)第3子以降の保育所利用者負担無料化。 |
| 出産祝い |
あり |
| 公立保育所数 |
5所(うち0歳児保育を実施している保育所:5所) |
| 私立保育所数 |
25所(うち0歳児保育を実施している保育所:25所) |
| 保育所入所待機児童数 |
0人 |
| 認定こども園数 |
23園 |
預かり保育実施園数 |
公立:6園 私立:1園 |
| 学校給食 |
【小学校】完全給食【中学校】完全給食 |
| 公立中学校の学校選択制 |
未実施 |
| 子ども・学生等医療費助成<通院>対象年齢 |
18歳3月末まで |
子ども・学生等医療費助成<入院>対象年齢 |
18歳3月末まで |
伊勢崎市の治安・ごみ収集情報
公共料金・インフラ
| ガス料金(22m3使用した場合の月額) |
伊勢崎ガス株式会社4424円 |
| 水道料金(口径20mmで20m3の月額) |
伊勢崎市3190円 |
| 下水道料金(20m3を使用した場合の月額) |
伊勢崎市2453円 |
| 下水道普及率 |
36.5% |
安心・安全
| 建物火災出火件数 |
36件
- 人口10000人当たり
- 1.70件
|
| 刑法犯認知件数 |
1869件
- 人口1000人当たり
- 8.82件
|
| ハザード・防災マップ |
あり |
医療
| 一般病院総数 |
8ヶ所 |
| 一般診療所総数 |
147ヶ所 |
| 小児科医師数 |
32人
- 小児人口10000人当たり
- 12.31人
|
| 産婦人科医師数 |
12人
- 15~49歳女性人口1万人当たり
- 2.85人
|
| 介護保険料基準額(月額) |
6000円 |
ごみ
| 家庭ごみ収集(可燃ごみ) |
無料
|
| 家庭ごみの分別方式 |
【伊勢崎・東・境地区】11分別18種〔もえるごみ もえないごみ プラスチック製容器包装 びん 缶 ペットボトル 古紙類(新聞、雑誌、段ボール、雑がみ、紙パック) 衣類 廃食用油 有害物(蛍光管、電池類、水銀式体温計) 危険物(カセットボンベ・スプレー缶、ライター)〕 【赤堀地区】11分別18種〔もえるごみ もえないごみ びん 缶 ペットボトル 古紙類(新聞、雑誌、段ボール、雑がみ、紙パック) 衣類 廃食用油 有害物(蛍光管、電池類、水銀式体温計) 危険物(カセットボンベ・スプレー缶、ライター) 発泡トレイ〕 |
| 家庭ごみの戸別収集 |
未実施 |
| 粗大ごみ収集 |
あり
|
| 生ごみ処理機助成金制度 |
あり
- 上限金額
- 20000円
- 上限比率
- 50.0%
|
伊勢崎市の住まいの給付金
中古購入
増築・改築・改修
| 利子補給制度 |
なし |
| 補助/助成金制度 |
あり
- 上限金額
- (1)100万円(2)20万円(3)10万円
|
※行政機関により公表していない地域及びデータがございます。東京23区以外の政令指定都市は、市全体のデータとして表示しています。
※提供データには細心の注意を払っておりますが、調査後に変更がある場合があります。 最新の情報につきましては各市区役所までお問い合わせいただくか、自治体HPなどをご確認ください。
伊勢崎市の暮らしデータをもっと見る
物件を見たい、物件や住環境の詳しい情報やローン相談など、
- お問い合わせ先
- はなまるハウス(株)太田営業所